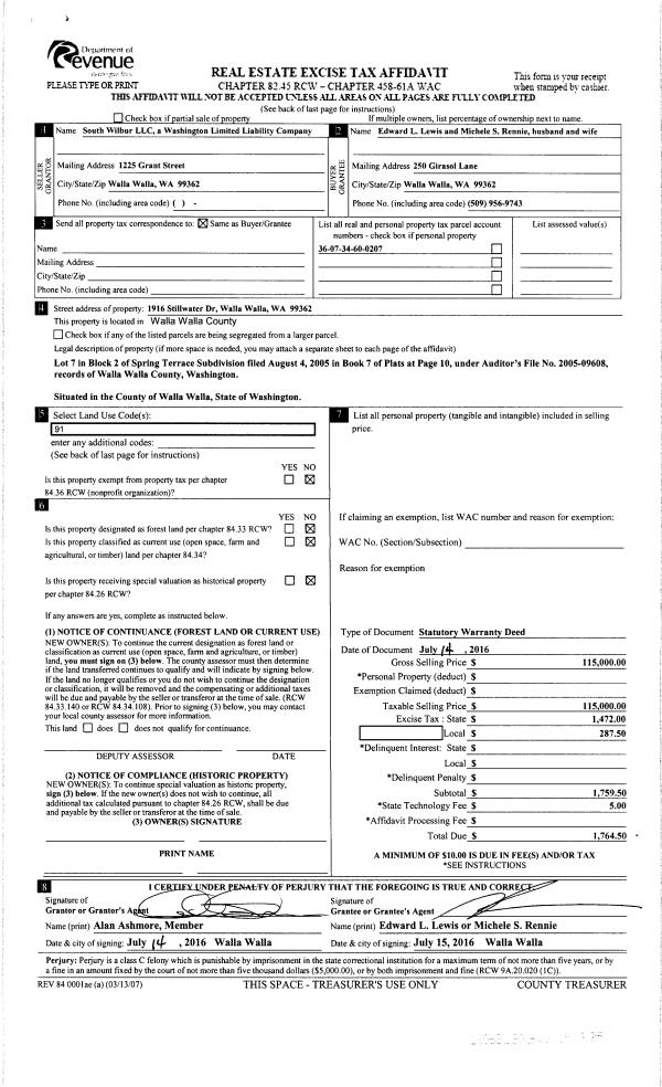
Property
Account |
| Property ID: | 15478 | Abbreviated Legal Description: | SPRING TERRACE LOT 7 BLOCK 2 |
| Parcel Number: | 360734600207 | Agent Code: | |
| Type: | Real | | |
| Tax Area: | 101 - 140-4 | Land Use Code | 11 |
| Open Space: | N | DFL | N |
| Historic Property: | N | Remodel Property: | N |
| Multi-Family Redevelopment: | N | | |
| Township: | 7 | Section: | 34 |
| Range: | 36 |
Location |
| Address: | 1916 STILLWATER DR WA 99362 | Mapsco: | |
| Neighborhood: | VG Res Rural/City Inf | Map ID: | |
| Neighborhood CD: | 615012 |
Owner |
| Name: | LEWIS EDWARD L | Owner ID: | 39300 |
| Mailing Address: | MICHELE SYBIL RENNIE 1916 STILLWATER DR WALLA WALLA, WA 99362 | % Ownership: | 100.0000000000% |
| | | Exemptions: | |
Taxes and Assessment Details
Property Tax Information as of
02/21/2026
Click on "Statement Details" to expand or collapse a tax statement.
* Please enter a valid date ** Please enter a valid date *
Statement Details |
| | TOTAL: | $0.00 | $0.00 | $0.00 | $0.00 | $0.00 | $0.00 |
|
| | $0.00 | $0.00 | $0.00 | $0.00 | $0.00 | $0.00 |
Values
| (+) Improvement Homesite Value: | + | $0 | |
| (+) Improvement Non-Homesite Value: | + | $486,140 | |
| (+) Land Homesite Value: | + | $0 | |
| (+) Land Non-Homesite Value: | + | $150,000 | |
| (+) Curr Use (HS): | + | $0 | $0 |
| (+) Curr Use (NHS): | + | $0 | $0 |
| | | -------------------------- | |
| (=) Market Value: | = | $636,140 | |
| (–) Productivity Loss: | – | $0 | |
| | | -------------------------- | |
| (=) Subtotal: | = | $636,140 | |
| (+) Senior Appraised Value: | + | $0 | |
| (+) Non-Senior Appraised Value: | + | $636,140 | |
| | | -------------------------- | |
| (=) Total Appraised Value: | = | $636,140 | |
| (–) Senior Exemption Loss: | – | $0 | |
| (–) Exemption Loss: | – | $0 | |
| | | -------------------------- | |
| (=) Taxable Value: | = | $636,140 | |
Taxing Jurisdiction
| Owner: | LEWIS EDWARD L | | |
| % Ownership: | 100.0000000000% | | |
| Total Value: | $636,140 | | |
| Tax Area: | 101 - 140-4 |
| CERFD | CURRENT EXPENSE REFUND 010 | 0.0000000000 | $636,140 | $636,140 | $0.00 | | |
| CURREXP | CURRENT EXPENSE 010 | 1.0175366760 | $636,140 | $636,140 | $647.30 | | |
| HUMNSERV | HUMAN SERVICES 119 | 0.0250000000 | $636,140 | $636,140 | $15.90 | | |
| SLDREL | SOLDIERS RELIEF 121 | 0.0155990005 | $636,140 | $636,140 | $9.92 | | |
| EMERGSER | EMS 147 | 0.3792580840 | $636,140 | $636,140 | $241.26 | | |
| EMSRFD | EMS REFUND 147 | 0.0000000000 | $636,140 | $636,140 | $0.00 | | |
| FD4EXP | FD #4 EXPENSE 686 | 0.8836993059 | $636,140 | $636,140 | $562.16 | | |
| RLBRFD | RURAL LIBRARY REFUND 623 | 0.0000000000 | $636,140 | $636,140 | $0.00 | | |
| RURALLIB | RURAL LIBRARY 623 | 0.3710609029 | $636,140 | $636,140 | $236.05 | | |
| PORTRFD | PORT REFUND 640 | 0.0000000000 | $636,140 | $636,140 | $0.00 | | |
| PORTWWGEN | PORT OF WW 640 | 0.2460186015 | $636,140 | $636,140 | $156.50 | | |
| SD140BOND | SD #140 BOND 764 | 0.8342371393 | $636,140 | $636,140 | $530.69 | | |
| SD140GEN | SD #140 GENERAL 760 | 2.0646500647 | $636,140 | $636,140 | $1,313.41 | | |
| ST2 | STATE SCHOOL PART 2 600 | 0.8131451643 | $636,140 | $636,140 | $517.27 | | |
| STATESCHL | STATE SCHOOL 600 | 1.5158548041 | $636,140 | $636,140 | $964.30 | | |
| STREFUND | STATE REFUND LEVY 603 | 0.0000000000 | $636,140 | $636,140 | $0.00 | | |
| COROAD | COUNTY ROAD 115 | 1.6549953990 | $636,140 | $636,140 | $1,052.81 | | |
| CRPRD | COUNTY ROAD REFUND 115 | 0.0000000000 | $636,140 | $636,140 | $0.00 | | |
| | Total Tax Rate: | 9.8210551422 | | | | | |
| | | | | Taxes w/Current Exemptions: | $6,247.57 | | |
| | | | | Taxes w/o Exemptions: | $6,247.57 | | |
Improvement / Building
| Improvement #1: | RESIDENTIAL | State Code: | 11 | 2440.0 sqft | Value: | $486,140 |
| Exterior Wall: | STUCCO | Heating/Cooling: | HEAT PUMP | | Number of Bathrooms: | 2.5 | Number of Bedrooms: | 3 | | Plumbing: | 13 | Roof Covering: | COMP SHINGLE |
|
| | Type | Description | Class CD | Sub Class CD | Year Built | Area |
| | MA | Main Area | 1 | 50 | 2017 | 2440.0 |
| | ATG | Attached Garage | 1 | 50 | 2017 | 767.0 |
| | RPC | OPEN PORCH W/ROOF , CEILED | 1 | 50 | 2017 | 45.0 |
| | RPC | OPEN PORCH W/ROOF , CEILED | 1 | 50 | 2017 | 324.0 |
| | GFP | GAS FIREPLACE | 1 | 50 | 2017 | 1.0 |
| | SI1 | SITE IMPROVEMENT | 1 | 50 | 2017 | 5.5 |
Sketch
Property Image
Land
| 1 | RES 1 | Converted: Residential | 0.2948 | 12841.00 | 0.00 | 0.00 | 1.00 | $150,000 | $0 |
Roll Value History
| 2026 | N/A | N/A | N/A | N/A | N/A |
| 2025 | $572,090 | $180,000 | $0 | $752,090 | $752,090 |
| 2024 | $510,440 | $150,000 | $0 | $660,440 | $660,440 |
| 2023 | $486,140 | $150,000 | $0 | $636,140 | $636,140 |
| 2022 | $462,990 | $120,000 | $0 | $582,990 | $582,990 |
| 2021 | $440,940 | $120,000 | $0 | $560,940 | $560,940 |
| 2020 | $367,450 | $120,000 | $0 | $487,450 | $487,450 |
| 2019 | $367,450 | $120,000 | $0 | $487,450 | $487,450 |
| 2018 | $341,260 | $120,000 | $0 | $461,260 | $461,260 |
| 2017 | $383,500 | $80,000 | $0 | $463,500 | $463,500 |
| 2016 | $0 | $80,000 | $0 | $80,000 | $80,000 |
| 2015 | $0 | $80,000 | $0 | $80,000 | $80,000 |
| 2014 | $0 | $80,000 | $0 | $80,000 | $80,000 |
| 2013 | $0 | $80,000 | $0 | $80,000 | $80,000 |
| 2012 | $0 | $80,000 | $0 | $0 | $0 |
| 2011 | $0 | $80,000 | $0 | $0 | $0 |
| 2010 | $0 | $80,000 | $0 | $0 | $0 |
| 2009 | $0 | $80,000 | $0 | $0 | $0 |
| 2008 | $0 | $80,000 | $0 | $0 | $0 |
| 2007 | $0 | $2,600 | $0 | $0 | $0 |
Deed and Sales History
| 1 | 07/15/2016 | SWD | STATUTORY WARRANTY DEED | SOUTH WILBUR LLC | LEWIS EDWARD L | | | $115,000.00 | 130631 | 2016-05526 |
| 2 | 08/05/2005 | WARRANTY D | WARRANTY DEED | "CRAIG, ANNETTE V" | SOUTH WILBUR LLC | | | | 108163 | 2005-09679 |
Payout Agreement
| No payout information available.. |