Property
Account |
| Property ID: | 15470 | Abbreviated Legal Description: | SPRING TERRACE LOT 10 BLOCK 1 |
| Parcel Number: | 360734600110 | Agent Code: | |
| Type: | Real | | |
| Tax Area: | 101 - 140-4 | Land Use Code | 11 |
| Open Space: | N | DFL | N |
| Historic Property: | N | Remodel Property: | N |
| Multi-Family Redevelopment: | N | | |
| Township: | 7 | Section: | 34 |
| Range: | 36 |
Location |
| Address: | 1676 GREENBRIAR DR WA 99362 | Mapsco: | |
| Neighborhood: | VG Res Rural/City Inf | Map ID: | |
| Neighborhood CD: | 615012 |
Owner |
| Name: | LUCAS-ROBERTS CONNOR & ABREIAN | Owner ID: | 71885 |
| Mailing Address: | 1676 GREENBRIAR DR WALLA WALLA, WA 99362 | % Ownership: | 100.0000000000% |
| | | Exemptions: | |
Taxes and Assessment Details
Values
| (+) Improvement Homesite Value: | + | $0 | |
| (+) Improvement Non-Homesite Value: | + | $427,000 | |
| (+) Land Homesite Value: | + | $0 | |
| (+) Land Non-Homesite Value: | + | $150,000 | |
| (+) Curr Use (HS): | + | $0 | $0 |
| (+) Curr Use (NHS): | + | $0 | $0 |
| | | -------------------------- | |
| (=) Market Value: | = | $577,000 | |
| (–) Productivity Loss: | – | $0 | |
| | | -------------------------- | |
| (=) Subtotal: | = | $577,000 | |
| (+) Senior Appraised Value: | + | $0 | |
| (+) Non-Senior Appraised Value: | + | $577,000 | |
| | | -------------------------- | |
| (=) Total Appraised Value: | = | $577,000 | |
| (–) Senior Exemption Loss: | – | $0 | |
| (–) Exemption Loss: | – | $0 | |
| | | -------------------------- | |
| (=) Taxable Value: | = | $577,000 | |
Taxing Jurisdiction
| Owner: | LUCAS-ROBERTS CONNOR & ABREIAN | | |
| % Ownership: | 100.0000000000% | | |
| Total Value: | $577,000 | | |
| Tax Area: | 101 - 140-4 |
| CERFD | CURRENT EXPENSE REFUND 010 | 0.0000000000 | $577,000 | $577,000 | $0.00 | | |
| CURREXP | CURRENT EXPENSE 010 | 1.0175366760 | $577,000 | $577,000 | $587.12 | | |
| HUMNSERV | HUMAN SERVICES 119 | 0.0250000000 | $577,000 | $577,000 | $14.43 | | |
| SLDREL | SOLDIERS RELIEF 121 | 0.0155990005 | $577,000 | $577,000 | $9.00 | | |
| EMERGSER | EMS 147 | 0.3792580840 | $577,000 | $577,000 | $218.83 | | |
| EMSRFD | EMS REFUND 147 | 0.0000000000 | $577,000 | $577,000 | $0.00 | | |
| FD4EXP | FD #4 EXPENSE 686 | 0.8836993059 | $577,000 | $577,000 | $509.89 | | |
| RLBRFD | RURAL LIBRARY REFUND 623 | 0.0000000000 | $577,000 | $577,000 | $0.00 | | |
| RURALLIB | RURAL LIBRARY 623 | 0.3710609029 | $577,000 | $577,000 | $214.10 | | |
| PORTRFD | PORT REFUND 640 | 0.0000000000 | $577,000 | $577,000 | $0.00 | | |
| PORTWWGEN | PORT OF WW 640 | 0.2460186015 | $577,000 | $577,000 | $141.95 | | |
| SD140BOND | SD #140 BOND 764 | 0.8342371393 | $577,000 | $577,000 | $481.35 | | |
| SD140GEN | SD #140 GENERAL 760 | 2.0646500647 | $577,000 | $577,000 | $1,191.30 | | |
| ST2 | STATE SCHOOL PART 2 600 | 0.8131451643 | $577,000 | $577,000 | $469.18 | | |
| STATESCHL | STATE SCHOOL 600 | 1.5158548041 | $577,000 | $577,000 | $874.65 | | |
| STREFUND | STATE REFUND LEVY 603 | 0.0000000000 | $577,000 | $577,000 | $0.00 | | |
| COROAD | COUNTY ROAD 115 | 1.6549953990 | $577,000 | $577,000 | $954.93 | | |
| CRPRD | COUNTY ROAD REFUND 115 | 0.0000000000 | $577,000 | $577,000 | $0.00 | | |
| | Total Tax Rate: | 9.8210551422 | | | | | |
| | | | | Taxes w/Current Exemptions: | $5,666.73 | | |
| | | | | Taxes w/o Exemptions: | $5,666.73 | | |
Improvement / Building
| Improvement #1: | RESIDENTIAL | State Code: | 11 | 2312.0 sqft | Value: | $427,000 |
| Exterior Wall: | SIDING | Heating/Cooling: | WARM & COOLED AIR | | Number of Bathrooms: | 2 | Number of Bedrooms: | 3 | | Plumbing: | 12 | Roof Covering: | COMP SHINGLE |
|
| | Type | Description | Class CD | Sub Class CD | Year Built | Area |
| | MA | Main Area | 1 | 35 | 2005 | 2312.0 |
| | SI1 | SITE IMPROVEMENT | 1 | 35 | 2005 | 4.5 |
| | ATG | Attached Garage | 1 | 35 | 2005 | 528.0 |
| | CPCG | CARPORT/ GABLE ROOF | 1 | 35 | 2005 | 290.0 |
| | RPC | OPEN PORCH W/ROOF , CEILED | 1 | 35 | 2005 | 281.0 |
| | GFP | GAS FIREPLACE | 1 | 35 | 2005 | 1.0 |
Sketch
Property Image
Land
| 1 | RES 1 | Converted: Residential | 0.2564 | 11169.00 | 0.00 | 0.00 | 1.00 | $150,000 | $0 |
Roll Value History
| 2026 | N/A | N/A | N/A | N/A | N/A |
| 2025 | $492,600 | $180,000 | $0 | $672,600 | $672,600 |
| 2024 | $448,350 | $150,000 | $0 | $598,350 | $598,350 |
| 2023 | $427,000 | $150,000 | $0 | $577,000 | $577,000 |
| 2022 | $427,000 | $120,000 | $0 | $547,000 | $547,000 |
| 2021 | $388,180 | $120,000 | $0 | $508,180 | $508,180 |
| 2020 | $228,340 | $120,000 | $0 | $348,340 | $348,340 |
| 2019 | $228,340 | $120,000 | $0 | $348,340 | $348,340 |
| 2018 | $222,900 | $120,000 | $0 | $342,900 | $342,900 |
| 2017 | $250,380 | $80,000 | $0 | $330,380 | $330,380 |
| 2016 | $250,380 | $80,000 | $0 | $330,380 | $330,380 |
| 2015 | $263,560 | $80,000 | $0 | $343,560 | $343,560 |
| 2014 | $239,600 | $80,000 | $0 | $319,600 | $319,600 |
| 2013 | $239,600 | $80,000 | $0 | $319,600 | $319,600 |
| 2012 | $239,600 | $80,000 | $0 | $0 | $0 |
| 2011 | $239,600 | $80,000 | $0 | $0 | $0 |
| 2010 | $239,600 | $80,000 | $0 | $0 | $0 |
| 2009 | $258,200 | $80,000 | $0 | $0 | $0 |
| 2008 | $258,200 | $80,000 | $0 | $0 | $0 |
| 2007 | $248,800 | $72,000 | $0 | $0 | $0 |
Deed and Sales History
| 1 | 07/01/2022 | SWD | STATUTORY WARRANTY DEED | TOCK ROBERT J & MARY K | LUCAS-ROBERTS CONNOR & ABREIAN | | | $615,000.00 | 144247 | 2022-05608 |
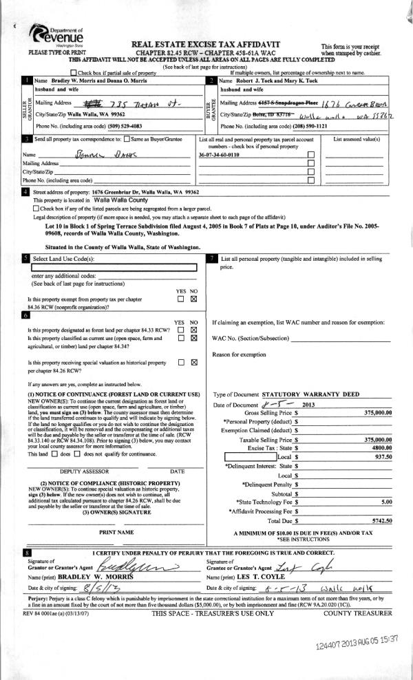
| 2 | 08/05/2013 | WARRANTY D | WARRANTY DEED | MORRIS, BRADLEY W & DONNA O | TOCK, ROBERT J & MARY K | | | $375,000.00 | 124407 | 2013-07956 |
| 3 | 08/25/2005 | WARRANTY D | WARRANTY DEED | SOUTH WILBUR LLC | MORRIS, BRADLEY W & DONNA O | | | $69,500.00 | 108322 | 2005-10553 |
| 4 | 08/05/2005 | WARRANTY D | WARRANTY DEED | "CRAIG, ANNETTE V" | SOUTH WILBUR LLC | | | | 108163 | 2005-09679 |
Payout Agreement
| No payout information available.. |