Property
Account |
| Property ID: | 15409 | Abbreviated Legal Description: | TAUSICK PARK LOT 11 BLK 7 |
| Parcel Number: | 360722550711 | Agent Code: | |
| Type: | Real | | |
| Tax Area: | 1 - OL-140-F | Land Use Code | 11 |
| Open Space: | N | DFL | N |
| Historic Property: | N | Remodel Property: | N |
| Multi-Family Redevelopment: | N | | |
| Township: | 7 | Section: | 22 |
| Range: | 36 |
Location |
| Address: | 2096 PARISH ST WA 99362 | Mapsco: | |
| Neighborhood: | A SFR | Map ID: | |
| Neighborhood CD: | 413011 |
Owner |
| Name: | DAVIN MEGAN RENAE | Owner ID: | 73974 |
| Mailing Address: | 2096 PARISH ST WALLA WALLA, WA 99362 | % Ownership: | 100.0000000000% |
| | | Exemptions: | |
Taxes and Assessment Details
Values
| (+) Improvement Homesite Value: | + | N/A | |
| (+) Improvement Non-Homesite Value: | + | N/A | |
| (+) Land Homesite Value: | + | N/A | |
| (+) Land Non-Homesite Value: | + | N/A | Ag / Timber Use Value |
| (+) Curr Use (HS): | + | N/A | N/A |
| (+) Curr Use (NHS): | + | N/A | N/A |
| | | -------------------------- | |
| (=) Market Value: | = | N/A | |
| (–) Productivity Loss: | – | N/A | |
| | | -------------------------- | |
| (=) Subtotal: | = | N/A | |
| (+) Senior Appraised Value: | + | N/A | |
| (+) Non-Senior Appraised Value: | + | N/A | |
| | | -------------------------- | |
| (=) Total Appraised Value: | = | N/A | |
| (–) Senior Exemption Loss: | – | N/A | |
| (–) Exemption Loss: | – | N/A | |
| | | -------------------------- | |
| (=) Taxable Value: | = | N/A | |
Taxing Jurisdiction
| Owner: | DAVIN MEGAN RENAE | | |
| % Ownership: | 100.0000000000% | | |
| Total Value: | N/A | | |
| Tax Area: | 1 - OL-140-F |
| CERFD | CURRENT EXPENSE REFUND 010 | N/A | N/A | N/A | N/A | | |
| CURREXP | CURRENT EXPENSE 010 | N/A | N/A | N/A | N/A | | |
| HUMNSERV | HUMAN SERVICES 119 | N/A | N/A | N/A | N/A | | |
| SLDREL | SOLDIERS RELIEF 121 | N/A | N/A | N/A | N/A | | |
| EMERGSER | EMS 147 | N/A | N/A | N/A | N/A | | |
| EMSRFD | EMS REFUND 147 | N/A | N/A | N/A | N/A | | |
| PORTRFD | PORT REFUND 640 | N/A | N/A | N/A | N/A | | |
| PORTWWGEN | PORT OF WW 640 | N/A | N/A | N/A | N/A | | |
| SD140BOND | SD #140 BOND 764 | N/A | N/A | N/A | N/A | | |
| SD140GEN | SD #140 GENERAL 760 | N/A | N/A | N/A | N/A | | |
| ST2 | STATE SCHOOL PART 2 600 | N/A | N/A | N/A | N/A | | |
| STATESCHL | STATE SCHOOL 600 | N/A | N/A | N/A | N/A | | |
| STREFUND | STATE REFUND LEVY 603 | N/A | N/A | N/A | N/A | | |
| CWWBOND | C OF WW BOND 643 | N/A | N/A | N/A | N/A | | |
| CWWGEN | CITY OF WW 631 | N/A | N/A | N/A | N/A | | |
| CWWRFD | CITY OF WALLA WALLA REFUND 631 | N/A | N/A | N/A | N/A | | |
| | Total Tax Rate: | N/A | | | | | |
| | | | | Taxes w/Current Exemptions: | N/A | | |
| | | | | Taxes w/o Exemptions: | N/A | | |
Improvement / Building
| Improvement #1: | RESIDENTIAL | State Code: | 11 | 1246.0 sqft | Value: | N/A |
| Exterior Wall: | HARDBOARD | Heating/Cooling: | WARM & COOLED AIR | | Number of Bathrooms: | 2 | Number of Bedrooms: | 3 | | Plumbing: | 9 | Roof Covering: | COMP SHINGLE |
|
| | Type | Description | Class CD | Sub Class CD | Year Built | Area |
| | MA | Main Area | 1 | 30 | 2004 | 1246.0 |
| | RPC | OPEN PORCH W/ROOF , CEILED | 1 | 30 | 0 | 200.0 |
| | SI1 | SITE IMPROVEMENT | 1 | 30 | 0 | 3.0 |
| | ATG | Attached Garage | 1 | 30 | 2004 | 440.0 |
| | UTST | Utility Storage Shed | 1 | 30 | 2004 | 96.0 |
Sketch
Property Image
Land
| 1 | RES 1 | Converted: Residential | 0.1862 | 8113.00 | 0.00 | 0.00 | 1.00 | N/A | N/A |
Roll Value History
| 2026 | N/A | N/A | N/A | N/A | N/A |
| 2025 | $282,540 | $64,900 | $0 | $347,440 | $347,440 |
| 2024 | $256,850 | $64,900 | $0 | $321,750 | $321,750 |
| 2023 | $256,850 | $64,900 | $0 | $321,750 | $321,750 |
| 2022 | $281,380 | $42,590 | $0 | $323,970 | $323,970 |
| 2021 | $187,580 | $42,590 | $0 | $230,170 | $230,170 |
| 2020 | $156,320 | $42,590 | $0 | $198,910 | $198,910 |
| 2019 | $156,320 | $42,590 | $0 | $198,910 | $198,910 |
| 2018 | $148,880 | $42,590 | $0 | $191,470 | $191,470 |
| 2017 | $148,880 | $42,590 | $0 | $191,470 | $191,470 |
| 2016 | $148,880 | $32,500 | $0 | $181,380 | $181,380 |
| 2015 | $148,880 | $32,500 | $0 | $181,380 | $181,380 |
| 2014 | $131,400 | $32,500 | $0 | $163,900 | $163,900 |
| 2013 | $131,400 | $32,500 | $0 | $163,900 | $163,900 |
| 2012 | $116,500 | $32,500 | $0 | $0 | $0 |
| 2011 | $103,400 | $32,500 | $0 | $0 | $0 |
| 2010 | $103,400 | $32,500 | $0 | $0 | $0 |
| 2009 | $118,500 | $32,500 | $0 | $0 | $0 |
| 2008 | $118,500 | $32,500 | $0 | $0 | $0 |
| 2007 | $118,500 | $32,500 | $0 | $0 | $0 |
Deed and Sales History
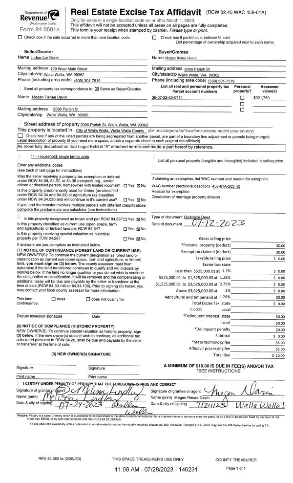
| 1 | 07/28/2023 | QCD | QUIT CLAIM DEED | DAVIN JOSHUA L | DAVIN MEGAN RENAE | | | | 146231 | 2023-04291 |
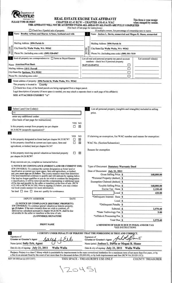
| 2 | 07/22/2011 | WARRANTY D | WARRANTY DEED | ARFMAN, BRAD & SHARON | DAVIN, JOSHUA L | | | $168,000.00 | 120451 | 2011-05716 |
| 3 | 06/01/2004 | WARRANTY D | WARRANTY DEED | ALDERWOOD CUSTOM HOMES INC | ARFMAN, BRAD & SHARON | | | $139,000.00 | 0 | 2004-05992 |
| 4 | 04/06/1998 | WARRANTY D | WARRANTY DEED | | | | | $30,000.00 | 90156 | 2659-803625 |
|   | |
Payout Agreement
| No payout information available.. |