Property
Account |
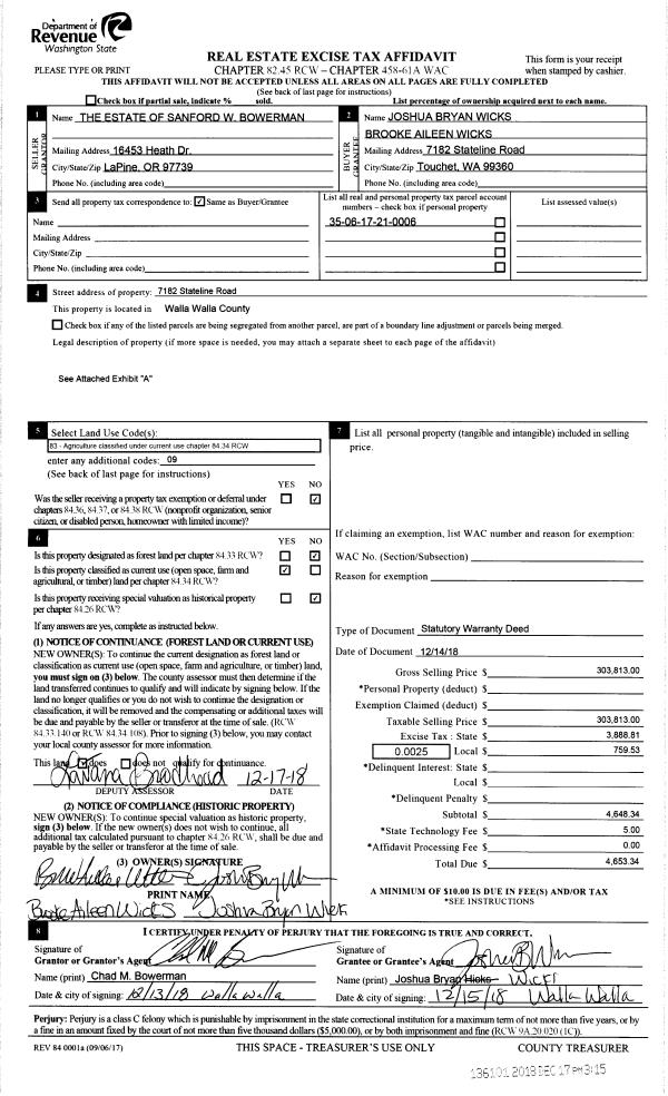
| Property ID: | 15382 | Abbreviated Legal Description: | 17-6-35 PARCEL 6 TAX 4 PTN LOT 2 |
| Parcel Number: | 350617210006 | Agent Code: | |
| Type: | Real | | |
| Tax Area: | 311 - 250-4 | Land Use Code | 83 |
| Open Space: | Y | DFL | N |
| Historic Property: | N | Remodel Property: | N |
| Multi-Family Redevelopment: | N | | |
| Township: | 6 | Section: | 17 |
| Range: | 35 |
Location |
| Address: | 7182 STATELINE RD WA 99324 | Mapsco: | |
| Neighborhood: | 0 Farm | Map ID: | |
| Neighborhood CD: | 2220 |
Owner |
| Name: | WICKS BROOKE & JOSHUA | Owner ID: | 68294 |
| Mailing Address: | 7182 STATELINE RD TOUCHET, WA 99360 | % Ownership: | 100.0000000000% |
| | | Exemptions: | |
Taxes and Assessment Details
Values
| (+) Improvement Homesite Value: | + | $0 | |
| (+) Improvement Non-Homesite Value: | + | $157,720 | |
| (+) Land Homesite Value: | + | $150,000 | |
| (+) Land Non-Homesite Value: | + | $0 | |
| (+) Curr Use (HS): | + | $0 | $0 |
| (+) Curr Use (NHS): | + | $72,000 | $11,340 |
| | | -------------------------- | |
| (=) Market Value: | = | $379,720 | |
| (–) Productivity Loss: | – | $60,660 | |
| | | -------------------------- | |
| (=) Subtotal: | = | $319,060 | |
| (+) Senior Appraised Value: | + | $0 | |
| (+) Non-Senior Appraised Value: | + | $319,060 | |
| | | -------------------------- | |
| (=) Total Appraised Value: | = | $319,060 | |
| (–) Senior Exemption Loss: | – | $0 | |
| (–) Exemption Loss: | – | $0 | |
| | | -------------------------- | |
| (=) Taxable Value: | = | $319,060 | |
Taxing Jurisdiction
| Owner: | WICKS BROOKE & JOSHUA | | |
| % Ownership: | 100.0000000000% | | |
| Total Value: | $379,720 | | |
| Tax Area: | 311 - 250-4 |
| CERFD | CURRENT EXPENSE REFUND 010 | 0.0000000000 | $319,060 | $319,060 | $0.00 | | |
| CURREXP | CURRENT EXPENSE 010 | 1.0175366760 | $319,060 | $319,060 | $324.66 | | |
| HUMNSERV | HUMAN SERVICES 119 | 0.0250000000 | $319,060 | $319,060 | $7.98 | | |
| SLDREL | SOLDIERS RELIEF 121 | 0.0155990005 | $319,060 | $319,060 | $4.98 | | |
| EMERGSER | EMS 147 | 0.3792580840 | $319,060 | $319,060 | $121.01 | | |
| EMSRFD | EMS REFUND 147 | 0.0000000000 | $319,060 | $319,060 | $0.00 | | |
| FD4EXP | FD #4 EXPENSE 686 | 0.8836993059 | $319,060 | $319,060 | $281.95 | | |
| RLBRFD | RURAL LIBRARY REFUND 623 | 0.0000000000 | $319,060 | $319,060 | $0.00 | | |
| RURALLIB | RURAL LIBRARY 623 | 0.3710609029 | $319,060 | $319,060 | $118.39 | | |
| PORTRFD | PORT REFUND 640 | 0.0000000000 | $319,060 | $319,060 | $0.00 | | |
| PORTWWGEN | PORT OF WW 640 | 0.2460186015 | $319,060 | $319,060 | $78.49 | | |
| SD250BOND | SD #250 BOND 773 | 1.4560608159 | $319,060 | $319,060 | $464.57 | | |
| SD250GEN | SD #250 GENERAL 770 | 2.3880724087 | $319,060 | $319,060 | $761.94 | | |
| ST2 | STATE SCHOOL PART 2 600 | 0.8131451643 | $319,060 | $319,060 | $259.44 | | |
| STATESCHL | STATE SCHOOL 600 | 1.5158548041 | $319,060 | $319,060 | $483.65 | | |
| STREFUND | STATE REFUND LEVY 603 | 0.0000000000 | $319,060 | $319,060 | $0.00 | | |
| COROAD | COUNTY ROAD 115 | 1.6549953990 | $319,060 | $319,060 | $528.04 | | |
| CRPRD | COUNTY ROAD REFUND 115 | 0.0000000000 | $319,060 | $319,060 | $0.00 | | |
| | Total Tax Rate: | 10.7663011628 | | | | | |
| | | | | Taxes w/Current Exemptions: | $3,435.10 | | |
| | | | | Taxes w/o Exemptions: | $3,435.10 | | |
Improvement / Building
| Improvement #1: | MANUFACTURED HOME | State Code: | 83 | 1758.0 sqft | Value: | $157,720 |
| Exterior Wall: | PLYWOOD | Heating/Cooling: | WARM & COOLED AIR | | Number of Bathrooms: | 2 | Number of Bedrooms: | 3 | | Plumbing: | 8 | Roof Covering: | GALVANIZED METAL |
|
| | Type | Description | Class CD | Sub Class CD | Year Built | Area |
| | MOBHOME | MANUFACTURD HOMES | 1 | 30 | 1989 | 1758.0 |
| | MI1 | MH SET-UP COSTS | 1 | 30 | 1989 | 1.0 |
| | POL2 | POLE BUILDING-CONCRETE | 1 | 30 | 1989 | 1440.0 |
| | WDR | WOOD DECK W/ROOF | 1 | 30 | 1989 | 1505.0 |
| | CPC | COVERED CARPORT/PATIO | 1 | 30 | 1989 | 864.0 |
| | RPO | OPEN PORCH W/ROOF | 1 | 30 | 1989 | 24.0 |
| | CPCD | CARPORT/DIRT FLOOR | 1 | 30 | 1989 | 238.0 |
Sketch
Property Image
Land
| 1 | HS-150,000 | Homesite 150,000 | 1.0000 | 0.00 | 0.00 | 0.00 | 1.00 | $150,000 | $0 |
| 2 | 8000-C1-I | Class 1 irrigated | 9.0000 | 0.00 | 0.00 | 0.00 | 1.00 | $72,000 | $11,340 |
Roll Value History
| 2026 | N/A | N/A | N/A | N/A | N/A |
| 2025 | $157,720 | $222,000 | $11,190 | $318,910 | $318,910 |
| 2024 | $157,720 | $222,000 | $11,390 | $319,110 | $319,110 |
| 2023 | $157,720 | $222,000 | $11,340 | $319,060 | $319,060 |
| 2022 | $139,900 | $195,000 | $11,150 | $301,050 | $301,050 |
| 2021 | $139,900 | $195,000 | $11,150 | $301,050 | $301,050 |
| 2020 | $104,680 | $120,000 | $11,390 | $191,070 | $191,070 |
| 2019 | $104,680 | $120,000 | $11,740 | $191,420 | $191,420 |
| 2018 | $88,800 | $120,000 | $11,960 | $175,760 | $175,760 |
| 2017 | $88,800 | $120,000 | $12,340 | $176,140 | $176,140 |
| 2016 | $88,800 | $120,000 | $12,380 | $176,180 | $176,180 |
| 2015 | $88,800 | $120,000 | $11,280 | $175,080 | $175,080 |
| 2014 | $88,800 | $120,000 | $11,280 | $175,080 | $175,080 |
| 2013 | $88,800 | $120,000 | $9,700 | $173,500 | $173,500 |
| 2012 | $88,800 | $82,700 | $0 | $0 | $0 |
| 2011 | $87,400 | $82,400 | $0 | $0 | $0 |
| 2010 | $87,800 | $82,600 | $0 | $0 | $0 |
| 2009 | $88,800 | $82,500 | $0 | $0 | $0 |
| 2008 | $83,200 | $55,400 | $0 | $0 | $0 |
| 2007 | $83,200 | $55,400 | $0 | $0 | $0 |
Deed and Sales History
| 1 | 11/12/2020 | QCD | QUIT CLAIM DEED | WICKS JOSHUA BRYAN & BROOKE AILEEN | WICKS BROOKE & JOSHUA | | | | 140316 | 2020-11899 |
| 2 | 12/17/2018 | SWD | STATUTORY WARRANTY DEED | BOWERMAN SANFORD ESTATE OF | WICKS JOSHUA BRYAN & BROOKE AILEEN | | | $303,813.00 | 136101 | 2018-10394 |
Payout Agreement
| No payout information available.. |