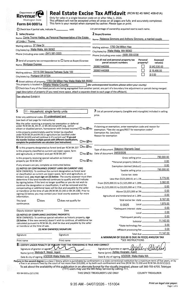
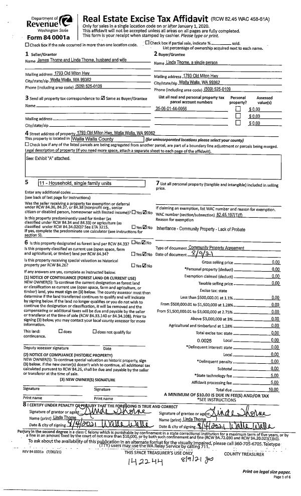
Property
Account |
| Property ID: | 15322 | Abbreviated Legal Description: | 1-6-35 TAX 37A |
| Parcel Number: | 350601440056 | Agent Code: | |
| Type: | Real | | |
| Tax Area: | 311 - 250-4 | Land Use Code | 11 |
| Open Space: | N | DFL | N |
| Historic Property: | N | Remodel Property: | N |
| Multi-Family Redevelopment: | N | | |
| Township: | 6 | Section: | 1 |
| Range: | 35 |
Location |
| Address: | 1793 OLD MILTON HWY WA 99324 | Mapsco: | |
| Neighborhood: | VG Res Rural/City Inf | Map ID: | |
| Neighborhood CD: | 415012 |
Owner |
| Name: | THORNE LINDA | Owner ID: | 70042 |
| Mailing Address: | 1793 OLD MILTON HWY WALLA WALLA, WA 99362 | % Ownership: | 100.0000000000% |
| | | Exemptions: | |
Taxes and Assessment Details
Values
| (+) Improvement Homesite Value: | + | $0 | |
| (+) Improvement Non-Homesite Value: | + | $347,870 | |
| (+) Land Homesite Value: | + | $0 | |
| (+) Land Non-Homesite Value: | + | $177,260 | |
| (+) Curr Use (HS): | + | $0 | $0 |
| (+) Curr Use (NHS): | + | $0 | $0 |
| | | -------------------------- | |
| (=) Market Value: | = | $525,130 | |
| (–) Productivity Loss: | – | $0 | |
| | | -------------------------- | |
| (=) Subtotal: | = | $525,130 | |
| (+) Senior Appraised Value: | + | $0 | |
| (+) Non-Senior Appraised Value: | + | $525,130 | |
| | | -------------------------- | |
| (=) Total Appraised Value: | = | $525,130 | |
| (–) Senior Exemption Loss: | – | $0 | |
| (–) Exemption Loss: | – | $0 | |
| | | -------------------------- | |
| (=) Taxable Value: | = | $525,130 | |
Taxing Jurisdiction
| Owner: | THORNE LINDA | | |
| % Ownership: | 100.0000000000% | | |
| Total Value: | $525,130 | | |
| Tax Area: | 311 - 250-4 |
| CERFD | CURRENT EXPENSE REFUND 010 | 0.0000000000 | $525,130 | $525,130 | $0.00 | | |
| CURREXP | CURRENT EXPENSE 010 | 1.0175366760 | $525,130 | $525,130 | $534.34 | | |
| HUMNSERV | HUMAN SERVICES 119 | 0.0250000000 | $525,130 | $525,130 | $13.13 | | |
| SLDREL | SOLDIERS RELIEF 121 | 0.0155990005 | $525,130 | $525,130 | $8.19 | | |
| EMERGSER | EMS 147 | 0.3792580840 | $525,130 | $525,130 | $199.16 | | |
| EMSRFD | EMS REFUND 147 | 0.0000000000 | $525,130 | $525,130 | $0.00 | | |
| FD4EXP | FD #4 EXPENSE 686 | 0.8836993059 | $525,130 | $525,130 | $464.06 | | |
| RLBRFD | RURAL LIBRARY REFUND 623 | 0.0000000000 | $525,130 | $525,130 | $0.00 | | |
| RURALLIB | RURAL LIBRARY 623 | 0.3710609029 | $525,130 | $525,130 | $194.86 | | |
| PORTRFD | PORT REFUND 640 | 0.0000000000 | $525,130 | $525,130 | $0.00 | | |
| PORTWWGEN | PORT OF WW 640 | 0.2460186015 | $525,130 | $525,130 | $129.19 | | |
| SD250BOND | SD #250 BOND 773 | 1.4560608159 | $525,130 | $525,130 | $764.62 | | |
| SD250GEN | SD #250 GENERAL 770 | 2.3880724087 | $525,130 | $525,130 | $1,254.05 | | |
| ST2 | STATE SCHOOL PART 2 600 | 0.8131451643 | $525,130 | $525,130 | $427.01 | | |
| STATESCHL | STATE SCHOOL 600 | 1.5158548041 | $525,130 | $525,130 | $796.02 | | |
| STREFUND | STATE REFUND LEVY 603 | 0.0000000000 | $525,130 | $525,130 | $0.00 | | |
| COROAD | COUNTY ROAD 115 | 1.6549953990 | $525,130 | $525,130 | $869.09 | | |
| CRPRD | COUNTY ROAD REFUND 115 | 0.0000000000 | $525,130 | $525,130 | $0.00 | | |
| | Total Tax Rate: | 10.7663011628 | | | | | |
| | | | | Taxes w/Current Exemptions: | $5,653.72 | | |
| | | | | Taxes w/o Exemptions: | $5,653.72 | | |
Improvement / Building
| Improvement #1: | RESIDENTIAL | State Code: | 11 | 1727.0 sqft | Value: | $347,870 |
| Exterior Wall: | SIDING | Heating/Cooling: | WARM & COOLED AIR | | Number of Bathrooms: | 3 | Number of Bedrooms: | 3 | | Plumbing: | 9 | Roof Covering: | WOOD SHAKE |
|
| | Type | Description | Class CD | Sub Class CD | Year Built | Area |
| | MA | Main Area | 1 | 35 | 1958 | 1727.0 |
| | POL3 | POLE BUILDING-CON,ELEC,INSU | 1 | 35 | 0 | 1624.0 |
| | SI1 | SITE IMPROVEMENT | 1 | 35 | 0 | 2.0 |
| | BASE | BASEMENT | 1 | 35 | 1958 | 1232.0 |
| | BPF | BASEMENT -PARTITIONED FINISH | 1 | 35 | 1958 | 616.0 |
| | RPO | OPEN PORCH W/ROOF | 1 | 35 | 1958 | 144.0 |
| | UTST | Utility Storage Shed | 1 | 35 | 1958 | 560.0 |
| | S2F | Single 2S Fireplace | 1 | 35 | 1958 | 1.0 |
| | ATG | Attached Garage | 1 | 35 | 1958 | 999.0 |
Sketch
Property Image
Land
| 1 | RES 1 | Converted: Residential | 1.7000 | 74052.00 | 0.00 | 0.00 | 1.00 | $177,260 | $0 |
Roll Value History
| 2026 | N/A | N/A | N/A | N/A | N/A |
| 2025 | $365,270 | $177,260 | $0 | $542,530 | $542,530 |
| 2024 | $347,870 | $177,260 | $0 | $525,130 | $525,130 |
| 2023 | $347,870 | $177,260 | $0 | $525,130 | $525,130 |
| 2022 | $409,260 | $80,600 | $0 | $489,860 | $489,860 |
| 2021 | $303,160 | $80,600 | $0 | $383,760 | $383,760 |
| 2020 | $252,630 | $80,600 | $0 | $333,230 | $333,230 |
| 2019 | $252,630 | $80,600 | $0 | $333,230 | $333,230 |
| 2018 | $252,630 | $80,600 | $0 | $333,230 | $333,230 |
| 2017 | $240,600 | $80,600 | $0 | $321,200 | $321,200 |
| 2016 | $240,600 | $80,600 | $0 | $321,200 | $321,200 |
| 2015 | $240,600 | $80,600 | $0 | $321,200 | $321,200 |
| 2014 | $200,500 | $80,600 | $0 | $281,100 | $281,100 |
| 2013 | $200,500 | $80,600 | $0 | $281,100 | $281,100 |
| 2012 | $200,500 | $80,600 | $0 | $0 | $0 |
| 2011 | $203,000 | $80,600 | $0 | $0 | $0 |
| 2010 | $201,200 | $80,600 | $0 | $0 | $0 |
| 2009 | $210,700 | $80,600 | $0 | $0 | $0 |
| 2008 | $161,400 | $49,200 | $0 | $0 | $0 |
| 2007 | $161,400 | $49,200 | $0 | $0 | $0 |
Deed and Sales History
| 1 | 08/09/2021 | COMMUNITY | COMMUNITY PROPERTY AGREEMENT | THORNE JAMES L | THORNE LINDA | | | $0.00 | 142244 | 2021-09672 |
| 2 | 05/07/1975 | QCD | QUIT CLAIM DEED | | | | | $0.00 | 0 | 2605-44318 |
Payout Agreement
| No payout information available.. |