Property
Account |
| Property ID: | 15290 | Abbreviated Legal Description: | UNNUMBERED BLOCK-ROBERTS TAX 4A; PLUS TAX 25A; PLUS TAX 26A; LESS PUBLIC ROW |
| Parcel Number: | 360729870310 | Agent Code: | |
| Type: | Real | | |
| Tax Area: | 1 - OL-140-F | Land Use Code | 13 |
| Open Space: | N | DFL | N |
| Historic Property: | N | Remodel Property: | N |
| Multi-Family Redevelopment: | N | | |
| Township: | 7 | Section: | 29 |
| Range: | 36 |
Location |
| Address: | 259 E POPLAR ST WALLA WALLA, WA 99362 | Mapsco: | |
| Neighborhood: | G Apartment | Map ID: | |
| Neighborhood CD: | 514021 |
Owner |
| Name: | ALLEN L RENVILLE REVOCABLE TRUST | Owner ID: | 70984 |
| Mailing Address: | 14 DANA POINT RD CHICO, CA 95928 | % Ownership: | 100.0000000000% |
| | | Exemptions: | |
Taxes and Assessment Details
Values
| (+) Improvement Homesite Value: | + | $0 | |
| (+) Improvement Non-Homesite Value: | + | $766,450 | |
| (+) Land Homesite Value: | + | $0 | |
| (+) Land Non-Homesite Value: | + | $74,680 | |
| (+) Curr Use (HS): | + | $0 | $0 |
| (+) Curr Use (NHS): | + | $0 | $0 |
| | | -------------------------- | |
| (=) Market Value: | = | $841,130 | |
| (–) Productivity Loss: | – | $0 | |
| | | -------------------------- | |
| (=) Subtotal: | = | $841,130 | |
| (+) Senior Appraised Value: | + | $0 | |
| (+) Non-Senior Appraised Value: | + | $841,130 | |
| | | -------------------------- | |
| (=) Total Appraised Value: | = | $841,130 | |
| (–) Senior Exemption Loss: | – | $0 | |
| (–) Exemption Loss: | – | $0 | |
| | | -------------------------- | |
| (=) Taxable Value: | = | $841,130 | |
Taxing Jurisdiction
| Owner: | ALLEN L RENVILLE REVOCABLE TRUST | | |
| % Ownership: | 100.0000000000% | | |
| Total Value: | $841,130 | | |
| Tax Area: | 1 - OL-140-F |
| CERFD | CURRENT EXPENSE REFUND 010 | 0.0000000000 | $841,130 | $841,130 | $0.00 | | |
| CURREXP | CURRENT EXPENSE 010 | 1.0175366760 | $841,130 | $841,130 | $855.88 | | |
| HUMNSERV | HUMAN SERVICES 119 | 0.0250000000 | $841,130 | $841,130 | $21.03 | | |
| SLDREL | SOLDIERS RELIEF 121 | 0.0155990005 | $841,130 | $841,130 | $13.12 | | |
| EMERGSER | EMS 147 | 0.3792580840 | $841,130 | $841,130 | $319.01 | | |
| EMSRFD | EMS REFUND 147 | 0.0000000000 | $841,130 | $841,130 | $0.00 | | |
| PORTRFD | PORT REFUND 640 | 0.0000000000 | $841,130 | $841,130 | $0.00 | | |
| PORTWWGEN | PORT OF WW 640 | 0.2460186015 | $841,130 | $841,130 | $206.93 | | |
| SD140BOND | SD #140 BOND 764 | 0.8342371393 | $841,130 | $841,130 | $701.70 | | |
| SD140GEN | SD #140 GENERAL 760 | 2.0646500647 | $841,130 | $841,130 | $1,736.64 | | |
| ST2 | STATE SCHOOL PART 2 600 | 0.8131451643 | $841,130 | $841,130 | $683.96 | | |
| STATESCHL | STATE SCHOOL 600 | 1.5158548041 | $841,130 | $841,130 | $1,275.03 | | |
| STREFUND | STATE REFUND LEVY 603 | 0.0000000000 | $841,130 | $841,130 | $0.00 | | |
| CWWBOND | C OF WW BOND 643 | 0.2760494372 | $841,130 | $841,130 | $232.19 | | |
| CWWGEN | CITY OF WW 631 | 1.6100204973 | $841,130 | $841,130 | $1,354.24 | | |
| CWWRFD | CITY OF WALLA WALLA REFUND 631 | 0.0000000000 | $841,130 | $841,130 | $0.00 | | |
| | Total Tax Rate: | 8.7973694689 | | | | | |
| | | | | Taxes w/Current Exemptions: | $7,399.73 | | |
| | | | | Taxes w/o Exemptions: | $7,399.73 | | |
Improvement / Building
| Improvement #1: | RESIDENTIAL | State Code: | 13 | 2800.0 sqft | Value: | $393,800 |
| Exterior Wall: | SHINGLE | Heating/Cooling: | FORCED AIR | | Number of Bathrooms: | 4 | Number of Bedrooms: | 4 | | Plumbing: | 18 | Roof Covering: | COMP SHINGLE |
|
| | Type | Description | Class CD | Sub Class CD | Year Built | Area |
| | MA | Main Area | 2 | 35 | 1938 | 2800.0 |
| | UPFL | Upper Floor (included in main area) | 2 | 35 | 1938 | 1400.0 |
| | SI1 | SITE IMPROVEMENT | 2 | 35 | 1938 | 4.0 |
| | BLW | WOOD BALCONIES | 2 | 35 | 1938 | 80.0 |
| | DTG | Detached Garage | 2 | 35 | 1938 | 760.0 |
| | BASE | BASEMENT | D | * | 1938 | 883.0 |
| | UTST | Utility Storage Shed | D | * | 1938 | 154.0 |
| Improvement #2: | RESIDENTIAL | State Code: | 13 | 2800.0 sqft | Value: | $372,650 |
| Exterior Wall: | SHINGLE | Heating/Cooling: | FORCED AIR | | Number of Bathrooms: | 4 | Number of Bedrooms: | 4 | | Plumbing: | 18 | Roof Covering: | COMP SHINGLE |
|
| | Type | Description | Class CD | Sub Class CD | Year Built | Area |
| | MA | Main Area | 2 | 35 | 1938 | 2800.0 |
| | UPFL | Upper Floor (included in main area) | 2 | 35 | 1938 | 1400.0 |
| | SI1 | SITE IMPROVEMENT | 2 | 35 | 1938 | 4.0 |
| | BLW | WOOD BALCONIES | 2 | 35 | 1938 | 80.0 |
| | BASE | BASEMENT | 2 | 35 | 1938 | 680.0 |
Sketch
Property Image
Land
| 1 | RES 1 | Converted: Residential | 0.3186 | 13880.35 | 0.00 | 0.00 | 1.00 | $74,680 | $0 |
Roll Value History
| 2026 | N/A | N/A | N/A | N/A | N/A |
| 2025 | $752,700 | $111,000 | $0 | $863,700 | $863,700 |
| 2024 | $756,100 | $103,000 | $0 | $859,100 | $859,100 |
| 2023 | $766,450 | $74,680 | $0 | $841,130 | $841,130 |
| 2022 | $766,450 | $74,680 | $0 | $841,130 | $841,130 |
| 2021 | $528,580 | $74,730 | $0 | $603,310 | $603,310 |
| 2020 | $406,600 | $74,730 | $0 | $481,330 | $481,330 |
| 2019 | $406,600 | $74,730 | $0 | $481,330 | $481,330 |
| 2018 | $406,600 | $74,730 | $0 | $481,330 | $481,330 |
| 2017 | $406,600 | $47,400 | $0 | $454,000 | $454,000 |
| 2016 | $406,600 | $47,400 | $0 | $454,000 | $454,000 |
| 2015 | $406,600 | $47,400 | $0 | $454,000 | $454,000 |
| 2014 | $406,600 | $47,400 | $0 | $454,000 | $454,000 |
| 2013 | $406,600 | $47,400 | $0 | $454,000 | $454,000 |
| 2012 | $406,600 | $47,400 | $0 | $0 | $0 |
| 2011 | $406,600 | $47,400 | $0 | $0 | $0 |
| 2010 | $265,700 | $47,400 | $0 | $0 | $0 |
| 2009 | $265,700 | $47,400 | $0 | $0 | $0 |
| 2008 | $265,700 | $47,400 | $0 | $0 | $0 |
| 2007 | $265,700 | $47,400 | $0 | $0 | $0 |
Deed and Sales History
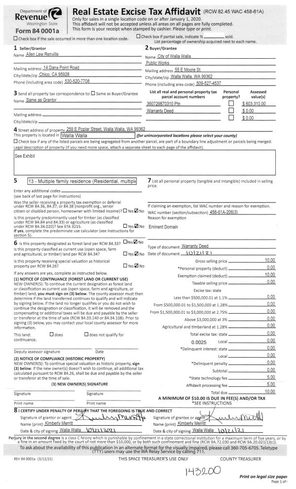
| 1 | 12/08/2021 | SWD | STATUTORY WARRANTY DEED | RENVILLE ALLEN LEW | ALLEN L RENVILLE REVOCABLE TRUST | | | $0.00 | 143224 | 2022-00321 |
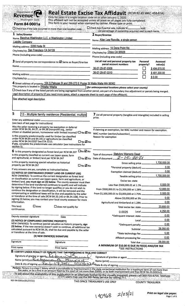
| 2 | 02/23/2021 | SWD | STATUTORY WARRANTY DEED | BACCHUS WASHINGTON LLC | RENVILLE ALLEN LEW | | 2-PARCELS | $1,700,000.00 | 140968 | 2021-02105 |
|   | |
| 3 | 09/19/2005 | WARRANTY D | WARRANTY DEED | BURAD, REBECCA A | BACCHUS WASHINGTON LLC | | | | 108519 | 2005-11625 |
| 4 | 05/16/2005 | WARRANTY D | WARRANTY DEED | WYLIE, JUSTIN | BURAD REBECCA A | | | $785,000.00 | 107490 | 2005-05781 |
|   | |
| 5 | 09/03/1998 | WARRANTY D | WARRANTY DEED | | | | | $202,400.00 | 91185 | 2729-810213 |
Payout Agreement
| No payout information available.. |