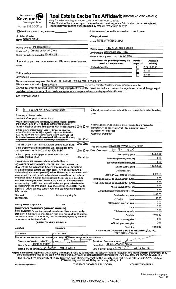
Property
Account |
| Property ID: | 15285 | Abbreviated Legal Description: | 28-7-36 TAX 168D |
| Parcel Number: | 360728140107 | Agent Code: | |
| Type: | Real | | |
| Tax Area: | 105 - 140-F-4 | Land Use Code | 11 |
| Open Space: | N | DFL | N |
| Historic Property: | N | Remodel Property: | N |
| Multi-Family Redevelopment: | N | | |
| Township: | 7 | Section: | 28 |
| Range: | 36 |
Location |
| Address: | 1124 S WILBUR AVE WA 99362 | Mapsco: | |
| Neighborhood: | A Res | Map ID: | |
| Neighborhood CD: | 613011 |
Owner |
| Name: | DIDYK DANIEL | Owner ID: | 68414 |
| Mailing Address: | 1124 S WILBUR AVE WALLA WALLA, WA 99362 | % Ownership: | 100.0000000000% |
| | | Exemptions: | |
Taxes and Assessment Details
Values
| (+) Improvement Homesite Value: | + | $0 | |
| (+) Improvement Non-Homesite Value: | + | $268,650 | |
| (+) Land Homesite Value: | + | $0 | |
| (+) Land Non-Homesite Value: | + | $92,970 | |
| (+) Curr Use (HS): | + | $0 | $0 |
| (+) Curr Use (NHS): | + | $0 | $0 |
| | | -------------------------- | |
| (=) Market Value: | = | $361,620 | |
| (–) Productivity Loss: | – | $0 | |
| | | -------------------------- | |
| (=) Subtotal: | = | $361,620 | |
| (+) Senior Appraised Value: | + | $0 | |
| (+) Non-Senior Appraised Value: | + | $361,620 | |
| | | -------------------------- | |
| (=) Total Appraised Value: | = | $361,620 | |
| (–) Senior Exemption Loss: | – | $0 | |
| (–) Exemption Loss: | – | $0 | |
| | | -------------------------- | |
| (=) Taxable Value: | = | $361,620 | |
Taxing Jurisdiction
| Owner: | DIDYK DANIEL | | |
| % Ownership: | 100.0000000000% | | |
| Total Value: | $361,620 | | |
| Tax Area: | 105 - 140-F-4 |
| CERFD | CURRENT EXPENSE REFUND 010 | 0.0000000000 | $361,620 | $361,620 | $0.00 | | |
| CURREXP | CURRENT EXPENSE 010 | 1.0175366760 | $361,620 | $361,620 | $367.96 | | |
| HUMNSERV | HUMAN SERVICES 119 | 0.0250000000 | $361,620 | $361,620 | $9.04 | | |
| SLDREL | SOLDIERS RELIEF 121 | 0.0155990005 | $361,620 | $361,620 | $5.64 | | |
| EMERGSER | EMS 147 | 0.3792580840 | $361,620 | $361,620 | $137.15 | | |
| EMSRFD | EMS REFUND 147 | 0.0000000000 | $361,620 | $361,620 | $0.00 | | |
| FD4EXP | FD #4 EXPENSE 686 | 0.8836993059 | $361,620 | $361,620 | $319.56 | | |
| RLBRFD | RURAL LIBRARY REFUND 623 | 0.0000000000 | $361,620 | $361,620 | $0.00 | | |
| RURALLIB | RURAL LIBRARY 623 | 0.3710609029 | $361,620 | $361,620 | $134.18 | | |
| PORTRFD | PORT REFUND 640 | 0.0000000000 | $361,620 | $361,620 | $0.00 | | |
| PORTWWGEN | PORT OF WW 640 | 0.2460186015 | $361,620 | $361,620 | $88.97 | | |
| SD140BOND | SD #140 BOND 764 | 0.8342371393 | $361,620 | $361,620 | $301.68 | | |
| SD140GEN | SD #140 GENERAL 760 | 2.0646500647 | $361,620 | $361,620 | $746.62 | | |
| ST2 | STATE SCHOOL PART 2 600 | 0.8131451643 | $361,620 | $361,620 | $294.05 | | |
| STATESCHL | STATE SCHOOL 600 | 1.5158548041 | $361,620 | $361,620 | $548.16 | | |
| STREFUND | STATE REFUND LEVY 603 | 0.0000000000 | $361,620 | $361,620 | $0.00 | | |
| COROAD | COUNTY ROAD 115 | 1.6549953990 | $361,620 | $361,620 | $598.48 | | |
| CRPRD | COUNTY ROAD REFUND 115 | 0.0000000000 | $361,620 | $361,620 | $0.00 | | |
| | Total Tax Rate: | 9.8210551422 | | | | | |
| | | | | Taxes w/Current Exemptions: | $3,551.49 | | |
| | | | | Taxes w/o Exemptions: | $3,551.49 | | |
Improvement / Building
| Improvement #1: | RESIDENTIAL | State Code: | 11 | 1272.0 sqft | Value: | $268,650 |
| Exterior Wall: | VINYL | Heating/Cooling: | FORCED AIR | | Number of Bathrooms: | 3 | Number of Bedrooms: | 2 | | Plumbing: | 9 | Roof Covering: | COMP SHINGLE |
|
| | Type | Description | Class CD | Sub Class CD | Year Built | Area |
| | MA | Main Area | 1 | 30 | 1957 | 1272.0 |
| | SI1 | SITE IMPROVEMENT | 1 | 30 | 1957 | 2.0 |
| | BASE | BASEMENT | 1 | 30 | 1957 | 1280.0 |
| | BPF | BASEMENT -PARTITIONED FINISH | 1 | 30 | 1957 | 640.0 |
| | S1F | Single One Story Fireplace | 1 | 30 | 1957 | 1.0 |
| | CPC | COVERED CARPORT/PATIO | 1 | 30 | 1957 | 220.0 |
| | ATG | Attached Garage | 1 | 30 | 1957 | 484.0 |
| | POL2 | POLE BUILDING-CONCRETE | 1 | 30 | 1957 | 768.0 |
Sketch
Property Image
Land
| 1 | RES 1 | Converted: Residential | 0.3200 | 13939.00 | 0.00 | 0.00 | 1.00 | $92,970 | $0 |
Roll Value History
| 2026 | N/A | N/A | N/A | N/A | N/A |
| 2025 | $261,420 | $113,460 | $0 | $374,880 | $374,880 |
| 2024 | $268,650 | $92,970 | $0 | $361,620 | $361,620 |
| 2023 | $268,650 | $92,970 | $0 | $361,620 | $361,620 |
| 2022 | $268,650 | $74,570 | $0 | $343,220 | $343,220 |
| 2021 | $185,280 | $74,570 | $0 | $259,850 | $259,850 |
| 2020 | $161,110 | $74,570 | $0 | $235,680 | $235,680 |
| 2019 | $161,110 | $74,570 | $0 | $235,680 | $235,680 |
| 2018 | $139,840 | $50,500 | $0 | $190,340 | $190,340 |
| 2017 | $121,600 | $50,500 | $0 | $172,100 | $172,100 |
| 2016 | $121,600 | $50,500 | $0 | $172,100 | $172,100 |
| 2015 | $121,600 | $50,500 | $0 | $172,100 | $172,100 |
| 2014 | $121,600 | $50,500 | $0 | $172,100 | $172,100 |
| 2013 | $121,600 | $50,500 | $0 | $172,100 | $172,100 |
| 2012 | $138,100 | $50,500 | $0 | $0 | $0 |
| 2011 | $138,100 | $50,500 | $0 | $0 | $0 |
| 2010 | $129,100 | $50,500 | $0 | $0 | $0 |
| 2009 | $149,100 | $50,500 | $0 | $0 | $0 |
| 2008 | $149,100 | $50,500 | $0 | $0 | $0 |
| 2007 | $105,500 | $28,000 | $0 | $0 | $0 |
Deed and Sales History
| 1 | 06/05/2025 | SWD | STATUTORY WARRANTY DEED | DIDYK DANIEL | CUHNA SEAN ANTHONY | | | $449,000.00 | 149487 | 2025-03154 |
| 2 | 11/19/2020 | SWP | Special Warranty Deed | ASSET BACKED SECURITIES CORP | DIDYK DANIEL | | | $164,000.00 | 140384 | 2020-12258 |
| 3 | 11/21/2019 | TRUSTEES D | TRUSTEE'S DEED | JOHNSON LACHELLE M | ASSET BACKED SECURITIES CORP | | | $186,750.00 | 138136 | 2019-09657 |
| 4 | 11/28/2006 | QCD | QUIT CLAIM DEED | KEITHLEY, LACHELLE M | JOHNSON, LACHELLE M | | | | 111730 | 2006-14214 |
| 5 | 05/10/2005 | WARRANTY D | WARRANTY DEED | BARKER, LACHELLE M | KEITHLEY, LACHELLE M | | | | 107404 | 2005-05562 |
| 6 | 04/16/2004 | WARRANTY D | WARRANTY DEED | KEITHLEY, JOHN D | BARKER, LACHELLE | | | | 0 | 02-3-00303-1 |
| 7 | 10/17/2001 | WARRANTY D | WARRANTY DEED | | | | | $133,500.00 | 98184 | 3210-111159 |
Payout Agreement
| No payout information available.. |