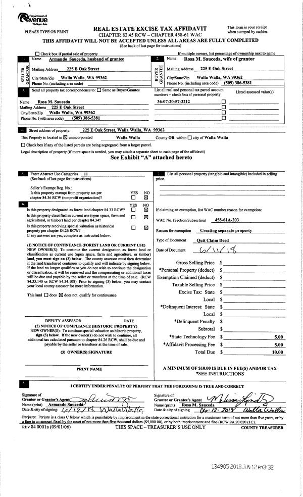
Property
Account |
| Property ID: | 15282 | Abbreviated Legal Description: | CAINS TAX 4A BLK 32 |
| Parcel Number: | 360720573212 | Agent Code: | |
| Type: | Real | | |
| Tax Area: | 1 - OL-140-F | Land Use Code | 11 |
| Open Space: | N | DFL | N |
| Historic Property: | N | Remodel Property: | N |
| Multi-Family Redevelopment: | N | | |
| Township: | 7 | Section: | 20 |
| Range: | 36 |
Location |
| Address: | 225 E OAK ST WA 99362 | Mapsco: | |
| Neighborhood: | F SFR | Map ID: | |
| Neighborhood CD: | 512011 |
Owner |
| Name: | SAUCEDA ROSA M | Owner ID: | 63445 |
| Mailing Address: | 225 E OAK ST WALLA WALLA, WA 99362 | % Ownership: | 100.0000000000% |
| | | Exemptions: | |
Taxes and Assessment Details
Values
| (+) Improvement Homesite Value: | + | $0 | |
| (+) Improvement Non-Homesite Value: | + | $192,260 | |
| (+) Land Homesite Value: | + | $0 | |
| (+) Land Non-Homesite Value: | + | $14,700 | |
| (+) Curr Use (HS): | + | $0 | $0 |
| (+) Curr Use (NHS): | + | $0 | $0 |
| | | -------------------------- | |
| (=) Market Value: | = | $206,960 | |
| (–) Productivity Loss: | – | $0 | |
| | | -------------------------- | |
| (=) Subtotal: | = | $206,960 | |
| (+) Senior Appraised Value: | + | $0 | |
| (+) Non-Senior Appraised Value: | + | $206,960 | |
| | | -------------------------- | |
| (=) Total Appraised Value: | = | $206,960 | |
| (–) Senior Exemption Loss: | – | $0 | |
| (–) Exemption Loss: | – | $0 | |
| | | -------------------------- | |
| (=) Taxable Value: | = | $206,960 | |
Taxing Jurisdiction
| Owner: | SAUCEDA ROSA M | | |
| % Ownership: | 100.0000000000% | | |
| Total Value: | $206,960 | | |
| Tax Area: | 1 - OL-140-F |
| CERFD | CURRENT EXPENSE REFUND 010 | 0.0000000000 | $206,960 | $206,960 | $0.00 | | |
| CURREXP | CURRENT EXPENSE 010 | 1.0175366760 | $206,960 | $206,960 | $210.59 | | |
| HUMNSERV | HUMAN SERVICES 119 | 0.0250000000 | $206,960 | $206,960 | $5.17 | | |
| SLDREL | SOLDIERS RELIEF 121 | 0.0155990005 | $206,960 | $206,960 | $3.23 | | |
| EMERGSER | EMS 147 | 0.3792580840 | $206,960 | $206,960 | $78.49 | | |
| EMSRFD | EMS REFUND 147 | 0.0000000000 | $206,960 | $206,960 | $0.00 | | |
| PORTRFD | PORT REFUND 640 | 0.0000000000 | $206,960 | $206,960 | $0.00 | | |
| PORTWWGEN | PORT OF WW 640 | 0.2460186015 | $206,960 | $206,960 | $50.92 | | |
| SD140BOND | SD #140 BOND 764 | 0.8342371393 | $206,960 | $206,960 | $172.65 | | |
| SD140GEN | SD #140 GENERAL 760 | 2.0646500647 | $206,960 | $206,960 | $427.30 | | |
| ST2 | STATE SCHOOL PART 2 600 | 0.8131451643 | $206,960 | $206,960 | $168.29 | | |
| STATESCHL | STATE SCHOOL 600 | 1.5158548041 | $206,960 | $206,960 | $313.72 | | |
| STREFUND | STATE REFUND LEVY 603 | 0.0000000000 | $206,960 | $206,960 | $0.00 | | |
| CWWBOND | C OF WW BOND 643 | 0.2760494372 | $206,960 | $206,960 | $57.13 | | |
| CWWGEN | CITY OF WW 631 | 1.6100204973 | $206,960 | $206,960 | $333.21 | | |
| CWWRFD | CITY OF WALLA WALLA REFUND 631 | 0.0000000000 | $206,960 | $206,960 | $0.00 | | |
| | Total Tax Rate: | 8.7973694689 | | | | | |
| | | | | Taxes w/Current Exemptions: | $1,820.70 | | |
| | | | | Taxes w/o Exemptions: | $1,820.70 | | |
Improvement / Building
| Improvement #1: | RESIDENTIAL | State Code: | 11 | 493.0 sqft | Value: | $192,260 |
| Exterior Wall: | VINYL | Heating/Cooling: | MINI-SPLIT HP SYSTEM | | Number of Bathrooms: | 1 | Number of Bedrooms: | 1 | | Plumbing: | 6 | Roof Covering: | COMP SHINGLE |
|
| | Type | Description | Class CD | Sub Class CD | Year Built | Area |
| | MA | Main Area | 1 | 20 | 1920 | 493.0 |
| | SI1 | SITE IMPROVEMENT | 1 | 20 | 1920 | 1.0 |
| | BASE | BASEMENT | 1 | 20 | 1920 | 493.0 |
| | BPF | BASEMENT -PARTITIONED FINISH | 1 | 20 | 1920 | 493.0 |
| | RPS | PORCH W/STEPS,ROOF | 1 | 20 | 1920 | 25.0 |
Sketch
Property Image
Land
| 1 | RES 1 | Converted: Residential | 0.0643 | 2800.00 | 0.00 | 0.00 | 1.00 | $14,700 | $0 |
Roll Value History
| 2026 | N/A | N/A | N/A | N/A | N/A |
| 2025 | $120,200 | $25,200 | $0 | $145,400 | $145,400 |
| 2024 | $120,200 | $25,200 | $0 | $145,400 | $145,400 |
| 2023 | $192,260 | $14,700 | $0 | $206,960 | $206,960 |
| 2022 | $167,180 | $14,700 | $0 | $181,880 | $181,880 |
| 2021 | $111,460 | $14,700 | $0 | $126,160 | $126,160 |
| 2020 | $92,880 | $14,700 | $0 | $107,580 | $107,580 |
| 2019 | $92,880 | $14,700 | $0 | $107,580 | $107,580 |
| 2018 | $77,400 | $14,700 | $0 | $92,100 | $92,100 |
| 2017 | $83,690 | $8,400 | $0 | $92,090 | $92,090 |
| 2016 | $76,080 | $8,400 | $0 | $84,480 | $84,480 |
| 2015 | $76,080 | $8,400 | $0 | $84,480 | $84,480 |
| 2014 | $63,400 | $8,400 | $0 | $71,800 | $71,800 |
| 2013 | $63,400 | $8,400 | $0 | $71,800 | $71,800 |
| 2012 | $63,400 | $8,400 | $0 | $0 | $0 |
| 2011 | $63,400 | $8,400 | $0 | $0 | $0 |
| 2010 | $56,900 | $8,400 | $0 | $0 | $0 |
| 2009 | $64,100 | $8,400 | $0 | $0 | $0 |
| 2008 | $64,100 | $8,400 | $0 | $0 | $0 |
| 2007 | $64,100 | $8,400 | $0 | $0 | $0 |
Deed and Sales History
| 1 | 06/12/2018 | QCD | QUIT CLAIM DEED | SAUCEDA ARMANDO | SAUCEDA ROSA M | | | | 134905 | 2018-04723 |
| 2 | 06/12/2018 | SWD | STATUTORY WARRANTY DEED | NORTHWEST AFFORDABLE HOMES LLC | SAUCEDA ROSA M | | | $125,000.00 | 134904 | 2018-04722 |
| 3 | 05/17/2005 | QCD | QUIT CLAIM DEED | STEVENSON, HARRY & WILMA D | WOOD, JOSHUA G & NICHOLE | | | | 107512 | 2005-05941 |
| 4 | 05/17/2005 | WARRANTY D | WARRANTY DEED | WOOD, JOSHUA G & NICHOLE | NORTHWEST AFFORDABLE HOMES LLC | | | $77,500.00 | 107513 | 2005-05942 |
| 5 | 05/10/2005 | QCD | QUIT CLAIM DEED | STEVENSON, HARRY & WILMA D | NO NAME ON DEED | | | | 107434 | 2005-05508 |
| 6 | 07/22/2004 | WARRANTY D | WARRANTY DEED | ROSENKRANZ, KRISTY A | STEVENSON, HARRY & WILMA D | | | $56,500.00 | 105304 | 2004-08272 |
| 7 | 08/31/2001 | WARRANTY D | WARRANTY DEED | | | | | $46,000.00 | 97959 | 3190-109597 |
Payout Agreement
| No payout information available.. |