Property
Account |
| Property ID: | 15280 | Abbreviated Legal Description: | WALLA WALLA LOTS 1-2 AND 3 BLK 14; LOT 8 BLK 14; TAX 3 LOT 4 BLK14 PLUS PT VAC ALLEY |
| Parcel Number: | 360720771401 | Agent Code: | |
| Type: | Real | | |
| Tax Area: | 1 - OL-140-F | Land Use Code | 53 |
| Open Space: | N | DFL | N |
| Historic Property: | N | Remodel Property: | N |
| Multi-Family Redevelopment: | N | | |
| Township: | 7 | Section: | 20 |
| Range: | 36 |
Location |
| Address: | 1 W ALDER ST WA 99362 | Mapsco: | |
| Neighborhood: | WW Downtown Core Area #2 | Map ID: | |
| Neighborhood CD: | 5342 |
Owner |
| Name: | DRUMHELLER BUILDING LLC | Owner ID: | 58159 |
| Mailing Address: | 1302 PUYALLUP ST, SUITE A SUMNER, WA 98390 | % Ownership: | 100.0000000000% |
| | | Exemptions: | |
Taxes and Assessment Details
Property Tax Information as of
02/21/2026
Click on "Statement Details" to expand or collapse a tax statement.
* Please enter a valid date ** Please enter a valid date *
Statement Details |
| | TOTAL: | $0.00 | $0.00 | $0.00 | $0.00 | $0.00 | $0.00 |
|
| | $0.00 | $0.00 | $0.00 | $0.00 | $0.00 | $0.00 |
Values
| (+) Improvement Homesite Value: | + | $0 | |
| (+) Improvement Non-Homesite Value: | + | $2,717,000 | |
| (+) Land Homesite Value: | + | $0 | |
| (+) Land Non-Homesite Value: | + | $374,000 | |
| (+) Curr Use (HS): | + | $0 | $0 |
| (+) Curr Use (NHS): | + | $0 | $0 |
| | | -------------------------- | |
| (=) Market Value: | = | $3,091,000 | |
| (–) Productivity Loss: | – | $0 | |
| | | -------------------------- | |
| (=) Subtotal: | = | $3,091,000 | |
| (+) Senior Appraised Value: | + | $0 | |
| (+) Non-Senior Appraised Value: | + | $3,091,000 | |
| | | -------------------------- | |
| (=) Total Appraised Value: | = | $3,091,000 | |
| (–) Senior Exemption Loss: | – | $0 | |
| (–) Exemption Loss: | – | $0 | |
| | | -------------------------- | |
| (=) Taxable Value: | = | $3,091,000 | |
Taxing Jurisdiction
| Owner: | DRUMHELLER BUILDING LLC | | |
| % Ownership: | 100.0000000000% | | |
| Total Value: | $3,091,000 | | |
| Tax Area: | 1 - OL-140-F |
| CERFD | CURRENT EXPENSE REFUND 010 | 0.0000000000 | $3,091,000 | $3,091,000 | $0.00 | | |
| CURREXP | CURRENT EXPENSE 010 | 1.0175366760 | $3,091,000 | $3,091,000 | $3,145.21 | | |
| HUMNSERV | HUMAN SERVICES 119 | 0.0250000000 | $3,091,000 | $3,091,000 | $77.28 | | |
| SLDREL | SOLDIERS RELIEF 121 | 0.0155990005 | $3,091,000 | $3,091,000 | $48.22 | | |
| EMERGSER | EMS 147 | 0.3792580840 | $3,091,000 | $3,091,000 | $1,172.29 | | |
| EMSRFD | EMS REFUND 147 | 0.0000000000 | $3,091,000 | $3,091,000 | $0.00 | | |
| PORTRFD | PORT REFUND 640 | 0.0000000000 | $3,091,000 | $3,091,000 | $0.00 | | |
| PORTWWGEN | PORT OF WW 640 | 0.2460186015 | $3,091,000 | $3,091,000 | $760.44 | | |
| SD140BOND | SD #140 BOND 764 | 0.8342371393 | $3,091,000 | $3,091,000 | $2,578.63 | | |
| SD140GEN | SD #140 GENERAL 760 | 2.0646500647 | $3,091,000 | $3,091,000 | $6,381.83 | | |
| ST2 | STATE SCHOOL PART 2 600 | 0.8131451643 | $3,091,000 | $3,091,000 | $2,513.43 | | |
| STATESCHL | STATE SCHOOL 600 | 1.5158548041 | $3,091,000 | $3,091,000 | $4,685.51 | | |
| STREFUND | STATE REFUND LEVY 603 | 0.0000000000 | $3,091,000 | $3,091,000 | $0.00 | | |
| CWWBOND | C OF WW BOND 643 | 0.2760494372 | $3,091,000 | $3,091,000 | $853.27 | | |
| CWWGEN | CITY OF WW 631 | 1.6100204973 | $3,091,000 | $3,091,000 | $4,976.57 | | |
| CWWRFD | CITY OF WALLA WALLA REFUND 631 | 0.0000000000 | $3,091,000 | $3,091,000 | $0.00 | | |
| | Total Tax Rate: | 8.7973694689 | | | | | |
| | | | | Taxes w/Current Exemptions: | $27,192.68 | | |
| | | | | Taxes w/o Exemptions: | $27,192.68 | | |
Improvement / Building
| Improvement #1: | COMMERCIAL | State Code: | 53 | 57732.0 sqft | Value: | $2,717,000 |
| | Type | Description | Class CD | Sub Class CD | Year Built | Area |
| | MA | Main Area | D | * | 1900 | 57732.0 |
| | UPFL | Upper Floor (included in main area) | D | * | 1900 | 7200.0 |
| | BASE | BASEMENT | D | * | 1900 | 14400.0 |
| | SI1 | SITE IMPROVEMENT | D | * | 1900 | 20.0 |
| | PRKSTLA | PARK STALL AVERAGE | D | * | 1900 | 15.0 |
Sketch
Property Image
Land
| 1 | COM 1 | Converted: Commercial | 0.7805 | 34000.00 | 0.00 | 0.00 | 1.00 | $374,000 | $0 |
Roll Value History
| 2026 | N/A | N/A | N/A | N/A | N/A |
| 2025 | $2,749,300 | $510,000 | $0 | $3,259,300 | $3,259,300 |
| 2024 | $2,802,300 | $408,000 | $0 | $3,210,300 | $3,210,300 |
| 2023 | $2,717,000 | $374,000 | $0 | $3,091,000 | $3,091,000 |
| 2022 | $2,717,000 | $374,000 | $0 | $3,091,000 | $3,091,000 |
| 2021 | $2,706,500 | $374,000 | $0 | $3,080,500 | $3,080,500 |
| 2020 | $2,706,500 | $374,000 | $0 | $3,080,500 | $3,080,500 |
| 2019 | $2,706,500 | $374,000 | $0 | $3,080,500 | $3,080,500 |
| 2018 | $2,538,800 | $374,000 | $0 | $2,912,800 | $2,912,800 |
| 2017 | $2,528,700 | $374,000 | $0 | $2,902,700 | $2,902,700 |
| 2016 | $2,528,700 | $374,000 | $0 | $2,902,700 | $2,902,700 |
| 2015 | $2,845,300 | $321,200 | $0 | $3,166,500 | $3,166,500 |
| 2014 | $2,800,300 | $321,200 | $0 | $3,121,500 | $3,121,500 |
| 2013 | $2,800,300 | $321,200 | $0 | $3,121,500 | $3,121,500 |
| 2012 | $2,768,000 | $374,000 | $0 | $0 | $0 |
| 2011 | $3,324,000 | $374,000 | $0 | $0 | $0 |
| 2010 | $3,324,000 | $374,000 | $0 | $0 | $0 |
| 2009 | $3,358,000 | $340,000 | $0 | $0 | $0 |
| 2008 | $3,358,000 | $340,000 | $0 | $0 | $0 |
| 2007 | $3,358,000 | $340,000 | $0 | $0 | $0 |
Deed and Sales History
| 1 | 01/07/2016 | SWD | STATUTORY WARRANTY DEED | EHP PARTNERS | DRUMHELLER BUILDING LLC | | 3-PARCLES | | 129471 | 2016-00137 |
| 2 | 01/07/2016 | SWD | STATUTORY WARRANTY DEED | WEST ALDER LLC ET AL | DRUMHELLER BUILDING LLC | | 3-PARCLES | $3,770,000.00 | 129472 | 2016-00138 |
|   | |
| 3 | 09/13/2013 | WARRANTY D | WARRANTY DEED | PENNBROOK HOMES INC | | | | | 124656 | 2013-09454 |
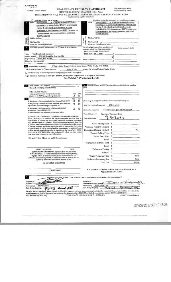
| 4 | 09/13/2013 | WARRANTY D | WARRANTY DEED | WEST ALDER LLC ET AL | | | | | 124658 | 2013-09455 |
| 5 | 07/22/2009 | WARRANTY D | WARRANTY DEED | PENNBROOK HOMES INC | | | | | 117042 | 2009-07464 |
| 6 | 05/18/2005 | WARRANTY D | WARRANTY DEED | WEST ALDER LLC | WEST ALDER LLC ET AL | | | $1,000,000.00 | 107520 | 2005-05977 |
|   | |
| 7 | 05/02/2005 | WARRANTY D | WARRANTY DEED | WASEMILLER PROPERTIES LLC | WEST ALDER LLC | | | $4,675,000.00 | 107391 | 2005-05098 |
|   | |
| 8 | 03/31/2004 | WARRANTY D | WARRANTY DEED | WASEMILLER GARY R & LINDA | WASEMILLER PROPERTIES LLC | | | | 104401 | 2004-03404 |
| 9 | 07/08/1999 | WARRANTY D | WARRANTY DEED | | | | | | 93122 | 2869-908009 |
Payout Agreement
| No payout information available.. |