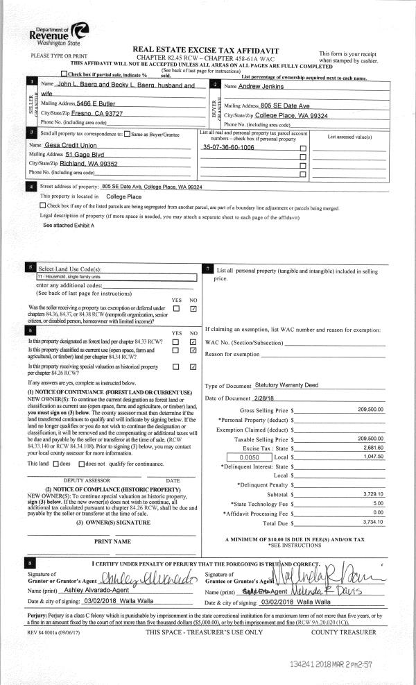
Property
Account |
| Property ID: | 15270 | Abbreviated Legal Description: | CP #2 TAX 2C LOT 2 BLK 10 |
| Parcel Number: | 350736601006 | Agent Code: | |
| Type: | Real | | |
| Tax Area: | 75 - CP 250 | Land Use Code | 11 |
| Open Space: | N | DFL | N |
| Historic Property: | N | Remodel Property: | N |
| Multi-Family Redevelopment: | N | | |
| Township: | 7 | Section: | 36 |
| Range: | 35 |
Location |
| Address: | 805 SE DATE AVE WA 99324 | Mapsco: | |
| Neighborhood: | A SFR | Map ID: | |
| Neighborhood CD: | 113011 |
Owner |
| Name: | JENKINS ANDREW P & MARGARET M | Owner ID: | 67206 |
| Mailing Address: | 805 SE DATE AVE COLLEGE PLACE, WA 99324 | % Ownership: | 100.0000000000% |
| | | Exemptions: | |
Taxes and Assessment Details
Property Tax Information as of
02/21/2026
Click on "Statement Details" to expand or collapse a tax statement.
* Please enter a valid date ** Please enter a valid date *
Statement Details |
| | TOTAL: | $0.00 | $0.00 | $0.00 | $0.00 | $0.00 | $0.00 |
|
| | $0.00 | $0.00 | $0.00 | $0.00 | $0.00 | $0.00 |
Values
| (+) Improvement Homesite Value: | + | $0 | |
| (+) Improvement Non-Homesite Value: | + | $286,070 | |
| (+) Land Homesite Value: | + | $0 | |
| (+) Land Non-Homesite Value: | + | $56,700 | |
| (+) Curr Use (HS): | + | $0 | $0 |
| (+) Curr Use (NHS): | + | $0 | $0 |
| | | -------------------------- | |
| (=) Market Value: | = | $342,770 | |
| (–) Productivity Loss: | – | $0 | |
| | | -------------------------- | |
| (=) Subtotal: | = | $342,770 | |
| (+) Senior Appraised Value: | + | $0 | |
| (+) Non-Senior Appraised Value: | + | $342,770 | |
| | | -------------------------- | |
| (=) Total Appraised Value: | = | $342,770 | |
| (–) Senior Exemption Loss: | – | $0 | |
| (–) Exemption Loss: | – | $0 | |
| | | -------------------------- | |
| (=) Taxable Value: | = | $342,770 | |
Taxing Jurisdiction
| Owner: | JENKINS ANDREW P & MARGARET M | | |
| % Ownership: | 100.0000000000% | | |
| Total Value: | $342,770 | | |
| Tax Area: | 75 - CP 250 |
| CERFD | CURRENT EXPENSE REFUND 010 | 0.0000000000 | $342,770 | $342,770 | $0.00 | | |
| CURREXP | CURRENT EXPENSE 010 | 1.0175366760 | $342,770 | $342,770 | $348.78 | | |
| HUMNSERV | HUMAN SERVICES 119 | 0.0250000000 | $342,770 | $342,770 | $8.57 | | |
| SLDREL | SOLDIERS RELIEF 121 | 0.0155990005 | $342,770 | $342,770 | $5.35 | | |
| COLLPLBOND | C OF CP BOND 644 | 0.4374241808 | $342,770 | $342,770 | $149.94 | | |
| COLLPLGEN | CITY OF CP 632 | 1.4453819216 | $342,770 | $342,770 | $495.43 | | |
| EMERGSER | EMS 147 | 0.3792580840 | $342,770 | $342,770 | $130.00 | | |
| EMSRFD | EMS REFUND 147 | 0.0000000000 | $342,770 | $342,770 | $0.00 | | |
| RURALLIB | RURAL LIBRARY 623 | 0.3710609029 | $342,770 | $342,770 | $127.19 | | |
| PORTRFD | PORT REFUND 640 | 0.0000000000 | $342,770 | $342,770 | $0.00 | | |
| PORTWWGEN | PORT OF WW 640 | 0.2460186015 | $342,770 | $342,770 | $84.33 | | |
| SD250BOND | SD #250 BOND 773 | 1.4560608159 | $342,770 | $342,770 | $499.09 | | |
| SD250GEN | SD #250 GENERAL 770 | 2.3880724087 | $342,770 | $342,770 | $818.56 | | |
| ST2 | STATE SCHOOL PART 2 600 | 0.8131451643 | $342,770 | $342,770 | $278.72 | | |
| STATESCHL | STATE SCHOOL 600 | 1.5158548041 | $342,770 | $342,770 | $519.59 | | |
| STREFUND | STATE REFUND LEVY 603 | 0.0000000000 | $342,770 | $342,770 | $0.00 | | |
| | Total Tax Rate: | 10.1104125603 | | | | | |
| | | | | Taxes w/Current Exemptions: | $3,465.55 | | |
| | | | | Taxes w/o Exemptions: | $3,465.55 | | |
Improvement / Building
| Improvement #1: | RESIDENTIAL | State Code: | 11 | 1350.0 sqft | Value: | $286,070 |
| Exterior Wall: | SIDING | Heating/Cooling: | FORCED AIR | | Number of Bathrooms: | 2 | Number of Bedrooms: | 4 | | Plumbing: | 9 | Roof Covering: | COMP SHINGLE |
|
| | Type | Description | Class CD | Sub Class CD | Year Built | Area |
| | MA | Main Area | 1 | 25 | 1970 | 1350.0 |
| | SI1 | SITE IMPROVEMENT | 1 | 25 | 1970 | 1.5 |
| | CPCG | CARPORT/ GABLE ROOF | 1 | 25 | 1970 | 132.0 |
| | UTST | Utility Storage Shed | 1 | 25 | 1970 | 48.0 |
Sketch
Property Image
Land
| 1 | RES 1 | Converted: Residential | 0.1928 | 8400.00 | 0.00 | 0.00 | 1.00 | $56,700 | $0 |
Roll Value History
| 2026 | N/A | N/A | N/A | N/A | N/A |
| 2025 | $257,470 | $84,000 | $0 | $341,470 | $341,470 |
| 2024 | $286,070 | $56,700 | $0 | $342,770 | $342,770 |
| 2023 | $286,070 | $56,700 | $0 | $342,770 | $342,770 |
| 2022 | $238,390 | $56,700 | $0 | $295,090 | $295,090 |
| 2021 | $170,280 | $56,700 | $0 | $226,980 | $226,980 |
| 2020 | $148,070 | $56,700 | $0 | $204,770 | $204,770 |
| 2019 | $158,970 | $45,800 | $0 | $204,770 | $204,770 |
| 2018 | $151,400 | $45,800 | $0 | $197,200 | $197,200 |
| 2017 | $121,120 | $45,800 | $0 | $166,920 | $166,920 |
| 2016 | $110,110 | $45,800 | $0 | $155,910 | $155,910 |
| 2015 | $100,100 | $45,800 | $0 | $145,900 | $145,900 |
| 2014 | $100,100 | $45,800 | $0 | $145,900 | $145,900 |
| 2013 | $100,100 | $45,800 | $0 | $145,900 | $145,900 |
| 2012 | $100,100 | $45,800 | $0 | $0 | $0 |
| 2011 | $100,100 | $45,800 | $0 | $0 | $0 |
| 2010 | $100,100 | $45,800 | $0 | $0 | $0 |
| 2009 | $116,300 | $45,800 | $0 | $0 | $0 |
| 2008 | $92,300 | $23,300 | $0 | $0 | $0 |
| 2007 | $92,300 | $23,300 | $0 | $0 | $0 |
Deed and Sales History
| 1 | 05/19/2020 | QCD | QUIT CLAIM DEED | JENKINS ANDREW P | JENKINS ANDREW P & MARGARET M | | | $0.00 | 139160 | 2020-04584 |
| 2 | 03/02/2018 | SWD | STATUTORY WARRANTY DEED | BAERG JOHN L & BECKY L | JENKINS ANDREW P | | | $209,500.00 | 134241 | 2018-01685 |
| 3 | 09/01/2005 | WARRANTY D | WARRANTY DEED | CALIFORNIA UNION PROPERTIES LL | BAERG, JOHN L & BECKY L | | | $154,000.00 | 108391 | 2005-10863 |
| 4 | 04/21/2005 | WARRANTY D | WARRANTY DEED | HILLEGAS, MICHAEL L & DEBRA | CALIFORNIA UNION PROPERTIES LL | | | $81,500.00 | 107297 | 2005-04511 |
| 5 | 05/18/1990 | WARRANTY D | WARRANTY DEED | | | | | $43,800.00 | 0 | 1829-003284 |
Payout Agreement
| No payout information available.. |