Property
Account |
| Property ID: | 15136 | Abbreviated Legal Description: | 25-7-38 NE1/4NE1/4 |
| Parcel Number: | 380725110001 | Agent Code: | |
| Type: | Real | | |
| Tax Area: | 120 - 140 | Land Use Code | 88 |
| Open Space: | N | DFL | Y |
| Historic Property: | N | Remodel Property: | N |
| Multi-Family Redevelopment: | N | | |
| Township: | 7 | Section: | 25 |
| Range: | 38 |
Location |
| Address: | 11146 LEWIS PEAK RD WA 99362 | Mapsco: | |
| Neighborhood: | 0 Farm | Map ID: | |
| Neighborhood CD: | 5250 |
Owner |
| Name: | RASCH CYNTHIA & MICHAEL | Owner ID: | 74030 |
| Mailing Address: | PO BOX 160 WALLA WALLA, WA 99362 | % Ownership: | 100.0000000000% |
| | | Exemptions: | |
Taxes and Assessment Details
Values
| (+) Improvement Homesite Value: | + | $0 | |
| (+) Improvement Non-Homesite Value: | + | $26,100 | |
| (+) Land Homesite Value: | + | $0 | |
| (+) Land Non-Homesite Value: | + | $0 | |
| (+) Curr Use (HS): | + | $0 | $0 |
| (+) Curr Use (NHS): | + | $46,700 | $18,320 |
| | | -------------------------- | |
| (=) Market Value: | = | $72,800 | |
| (–) Productivity Loss: | – | $28,390 | |
| | | -------------------------- | |
| (=) Subtotal: | = | $44,410 | |
| (+) Senior Appraised Value: | + | $0 | |
| (+) Non-Senior Appraised Value: | + | $44,420 | |
| | | -------------------------- | |
| (=) Total Appraised Value: | = | $44,420 | |
| (–) Senior Exemption Loss: | – | $0 | |
| (–) Exemption Loss: | – | $0 | |
| | | -------------------------- | |
| (=) Taxable Value: | = | $44,420 | |
Taxing Jurisdiction
| Owner: | RASCH CYNTHIA & MICHAEL | | |
| % Ownership: | 100.0000000000% | | |
| Total Value: | $72,800 | | |
| Tax Area: | 120 - 140 |
| CERFD | CURRENT EXPENSE REFUND 010 | 0.0000000000 | $44,420 | $44,420 | $0.00 | | |
| CURREXP | CURRENT EXPENSE 010 | 1.0175366760 | $44,420 | $44,420 | $45.20 | | |
| HUMNSERV | HUMAN SERVICES 119 | 0.0250000000 | $44,420 | $44,420 | $1.11 | | |
| SLDREL | SOLDIERS RELIEF 121 | 0.0155990005 | $44,420 | $44,420 | $0.69 | | |
| EMERGSER | EMS 147 | 0.3792580840 | $44,420 | $44,420 | $16.85 | | |
| EMSRFD | EMS REFUND 147 | 0.0000000000 | $44,420 | $44,420 | $0.00 | | |
| RLBRFD | RURAL LIBRARY REFUND 623 | 0.0000000000 | $44,420 | $44,420 | $0.00 | | |
| RURALLIB | RURAL LIBRARY 623 | 0.3710609029 | $44,420 | $44,420 | $16.48 | | |
| PORTRFD | PORT REFUND 640 | 0.0000000000 | $44,420 | $44,420 | $0.00 | | |
| PORTWWGEN | PORT OF WW 640 | 0.2460186015 | $44,420 | $44,420 | $10.93 | | |
| SD140BOND | SD #140 BOND 764 | 0.8342371393 | $44,420 | $44,420 | $37.06 | | |
| SD140GEN | SD #140 GENERAL 760 | 2.0646500647 | $44,420 | $44,420 | $91.71 | | |
| ST2 | STATE SCHOOL PART 2 600 | 0.8131451643 | $44,420 | $44,420 | $36.12 | | |
| STATESCHL | STATE SCHOOL 600 | 1.5158548041 | $44,420 | $44,420 | $67.33 | | |
| STREFUND | STATE REFUND LEVY 603 | 0.0000000000 | $44,420 | $44,420 | $0.00 | | |
| COROAD | COUNTY ROAD 115 | 1.6549953990 | $44,420 | $44,420 | $73.51 | | |
| CRPRD | COUNTY ROAD REFUND 115 | 0.0000000000 | $44,420 | $44,420 | $0.00 | | |
| | Total Tax Rate: | 8.9373558363 | | | | | |
| | | | | Taxes w/Current Exemptions: | $396.99 | | |
| | | | | Taxes w/o Exemptions: | $396.99 | | |
Improvement / Building
| Improvement #1: | RESIDENTIAL | State Code: | 88 | 720.0 sqft | Value: | $26,100 |
| Exterior Wall: | FINSHED CABIN | Foundation: | POST & PIER |
|
| | Type | Description | Class CD | Sub Class CD | Year Built | Area |
| | MA | Main Area | 19 | CABFN | 2009 | 720.0 |
| | WOD | Wood Deck | 19 | CABFN | 2009 | 186.0 |
Sketch
Property Image
Land
| 1 | 8-TBR | Timber | 18.0000 | 0.00 | 0.00 | 0.00 | 1.00 | $21,600 | $1,210 |
| 2 | 5-TBR | Timber | 15.0000 | 0.00 | 0.00 | 0.00 | 1.00 | $9,000 | $1,010 |
| 3 | 31-MTN | Mountain | 1.0000 | 0.00 | 0.00 | 0.00 | 1.00 | $12,500 | $12,500 |
| 4 | 25-MTN | Mountain | 6.0000 | 0.00 | 0.00 | 0.00 | 1.00 | $3,600 | $3,600 |
Roll Value History
| 2026 | N/A | N/A | N/A | N/A | N/A |
| 2025 | $26,100 | $77,000 | $40,840 | $66,940 | $66,940 |
| 2024 | $26,100 | $77,000 | $40,840 | $66,940 | $66,940 |
| 2023 | $26,100 | $46,700 | $18,320 | $44,420 | $44,420 |
| 2022 | $26,100 | $46,700 | $18,280 | $44,380 | $44,380 |
| 2021 | $26,100 | $46,700 | $18,280 | $44,380 | $44,380 |
| 2020 | $26,100 | $46,700 | $18,280 | $44,380 | $44,380 |
| 2019 | $26,100 | $46,700 | $18,180 | $44,280 | $44,280 |
| 2018 | $26,100 | $46,700 | $18,150 | $44,250 | $44,250 |
| 2017 | $26,100 | $43,000 | $15,050 | $41,150 | $41,150 |
| 2016 | $26,100 | $43,000 | $15,020 | $41,120 | $41,120 |
| 2015 | $26,100 | $43,000 | $14,910 | $41,010 | $41,010 |
| 2014 | $26,100 | $43,000 | $14,850 | $40,950 | $40,950 |
| 2013 | $26,100 | $43,000 | $14,900 | $41,000 | $41,000 |
| 2012 | $25,800 | $15,000 | $0 | $0 | $0 |
| 2011 | $0 | $5,500 | $0 | $0 | $0 |
| 2010 | $0 | $5,500 | $0 | $0 | $0 |
| 2009 | $0 | $5,500 | $0 | $0 | $0 |
| 2008 | $0 | $7,600 | $0 | $0 | $0 |
| 2007 | $0 | $10,200 | $0 | $0 | $0 |
Deed and Sales History
| 1 | 07/25/2023 | SWD | STATUTORY WARRANTY DEED | PERKINS MICHAEL D | RASCH CYNTHIA & MICHAEL | | | $315,000.00 | 146214 | 2023-04210 |
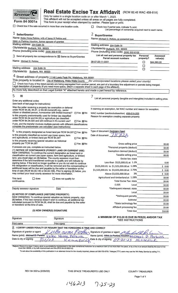
| 2 | 07/25/2023 | QCD | QUIT CLAIM DEED | PERKINS KEIKO NOMA | PERKINS MICHAEL D | | | | 146213 | 2023-04209 |
| 3 | 06/13/2014 | QCD | QUIT CLAIM DEED | PERKINS MICHAEL D | PERKINS MICHAEL D | | | $0.00 | 126065 | 2014-04080 |
| 4 | 07/29/2008 | WARRANTY D | WARRANTY DEED | LELAND, ROY & VIRGINIA | PERKINS, MICHAEL D | | | | 100004 | 2008-07835 |
| 5 | 07/23/2002 | WARRANTY D | WARRANTY DEED | | | | | $35,500.00 | 4 | 2002-0008302 |
Payout Agreement
| No payout information available.. |