Property
Account |
| Property ID: | 15111 | Abbreviated Legal Description: | 11-6-35 LOT 4 SHORT PLAT 2/289 1994-08857 (SELY PTN OF TAX 38 WITHIN SE1/4SW1/4) |
| Parcel Number: | 350611340065 | Agent Code: | |
| Type: | Real | | |
| Tax Area: | 311 - 250-4 | Land Use Code | 91 |
| Open Space: | N | DFL | N |
| Historic Property: | N | Remodel Property: | N |
| Multi-Family Redevelopment: | N | | |
| Township: | 6 | Section: | 11 |
| Range: | 35 |
Location |
| Address: | 552 COUNTY RD #448 WA 99324 | Mapsco: | |
| Neighborhood: | LAND ONLY RURAL | Map ID: | |
| Neighborhood CD: | 215093 |
Owner |
| Name: | LINEBAUGH PAUL & SHERRIE | Owner ID: | 13145 |
| Mailing Address: | C/O GARY COWLES 527 EDITH AVE WALLA WALLA, WA 99362 | % Ownership: | 100.0000000000% |
| | | Exemptions: | |
Taxes and Assessment Details
Values
| (+) Improvement Homesite Value: | + | $0 | |
| (+) Improvement Non-Homesite Value: | + | $0 | |
| (+) Land Homesite Value: | + | $0 | |
| (+) Land Non-Homesite Value: | + | $152,660 | |
| (+) Curr Use (HS): | + | $0 | $0 |
| (+) Curr Use (NHS): | + | $0 | $0 |
| | | -------------------------- | |
| (=) Market Value: | = | $152,660 | |
| (–) Productivity Loss: | – | $0 | |
| | | -------------------------- | |
| (=) Subtotal: | = | $152,660 | |
| (+) Senior Appraised Value: | + | $0 | |
| (+) Non-Senior Appraised Value: | + | $152,660 | |
| | | -------------------------- | |
| (=) Total Appraised Value: | = | $152,660 | |
| (–) Senior Exemption Loss: | – | $0 | |
| (–) Exemption Loss: | – | $0 | |
| | | -------------------------- | |
| (=) Taxable Value: | = | $152,660 | |
Taxing Jurisdiction
| Owner: | LINEBAUGH PAUL & SHERRIE | | |
| % Ownership: | 100.0000000000% | | |
| Total Value: | $152,660 | | |
| Tax Area: | 311 - 250-4 |
| CERFD | CURRENT EXPENSE REFUND 010 | 0.0000000000 | $152,660 | $152,660 | $0.00 | | |
| CURREXP | CURRENT EXPENSE 010 | 1.0175366760 | $152,660 | $152,660 | $155.34 | | |
| HUMNSERV | HUMAN SERVICES 119 | 0.0250000000 | $152,660 | $152,660 | $3.82 | | |
| SLDREL | SOLDIERS RELIEF 121 | 0.0155990005 | $152,660 | $152,660 | $2.38 | | |
| EMERGSER | EMS 147 | 0.3792580840 | $152,660 | $152,660 | $57.90 | | |
| EMSRFD | EMS REFUND 147 | 0.0000000000 | $152,660 | $152,660 | $0.00 | | |
| FD4EXP | FD #4 EXPENSE 686 | 0.8836993059 | $152,660 | $152,660 | $134.91 | | |
| RLBRFD | RURAL LIBRARY REFUND 623 | 0.0000000000 | $152,660 | $152,660 | $0.00 | | |
| RURALLIB | RURAL LIBRARY 623 | 0.3710609029 | $152,660 | $152,660 | $56.65 | | |
| PORTRFD | PORT REFUND 640 | 0.0000000000 | $152,660 | $152,660 | $0.00 | | |
| PORTWWGEN | PORT OF WW 640 | 0.2460186015 | $152,660 | $152,660 | $37.56 | | |
| SD250BOND | SD #250 BOND 773 | 1.4560608159 | $152,660 | $152,660 | $222.28 | | |
| SD250GEN | SD #250 GENERAL 770 | 2.3880724087 | $152,660 | $152,660 | $364.56 | | |
| ST2 | STATE SCHOOL PART 2 600 | 0.8131451643 | $152,660 | $152,660 | $124.13 | | |
| STATESCHL | STATE SCHOOL 600 | 1.5158548041 | $152,660 | $152,660 | $231.41 | | |
| STREFUND | STATE REFUND LEVY 603 | 0.0000000000 | $152,660 | $152,660 | $0.00 | | |
| COROAD | COUNTY ROAD 115 | 1.6549953990 | $152,660 | $152,660 | $252.65 | | |
| CRPRD | COUNTY ROAD REFUND 115 | 0.0000000000 | $152,660 | $152,660 | $0.00 | | |
| | Total Tax Rate: | 10.7663011628 | | | | | |
| | | | | Taxes w/Current Exemptions: | $1,643.59 | | |
| | | | | Taxes w/o Exemptions: | $1,643.59 | | |
Improvement / Building
Sketch
| No sketches available for this property. |
Property Image
Land
| 1 | RES 1 | Converted: Residential | 1.1131 | 48487.00 | 0.00 | 0.00 | 1.00 | $152,660 | $0 |
Roll Value History
| 2026 | N/A | N/A | N/A | N/A | N/A |
| 2025 | $0 | $152,660 | $0 | $152,660 | $152,660 |
| 2024 | $0 | $152,660 | $0 | $152,660 | $152,660 |
| 2023 | $0 | $152,660 | $0 | $152,660 | $152,660 |
| 2022 | $0 | $152,660 | $0 | $152,660 | $152,660 |
| 2021 | $0 | $152,660 | $0 | $152,660 | $152,660 |
| 2020 | $0 | $75,600 | $0 | $75,600 | $75,600 |
| 2019 | $0 | $5,600 | $0 | $5,600 | $5,600 |
| 2018 | $0 | $5,600 | $0 | $5,600 | $5,600 |
| 2017 | $0 | $5,600 | $0 | $5,600 | $5,600 |
| 2016 | $0 | $5,600 | $0 | $5,600 | $5,600 |
| 2015 | $0 | $5,600 | $0 | $5,600 | $5,600 |
| 2014 | $0 | $5,600 | $0 | $5,600 | $5,600 |
| 2013 | $0 | $5,600 | $0 | $5,600 | $5,600 |
| 2012 | $0 | $5,600 | $0 | $0 | $0 |
| 2011 | $0 | $5,600 | $0 | $0 | $0 |
| 2010 | $0 | $5,600 | $0 | $0 | $0 |
| 2009 | $0 | $4,500 | $0 | $0 | $0 |
| 2008 | $0 | $4,500 | $0 | $0 | $0 |
| 2007 | $0 | $4,500 | $0 | $0 | $0 |
Deed and Sales History
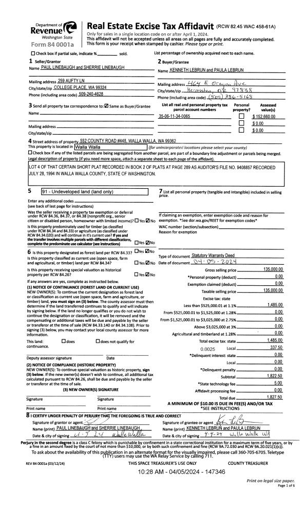
| 1 | 04/05/2024 | SWD | STATUTORY WARRANTY DEED | LINEBAUGH PAUL & SHERRIE | LEBRUN KENNETH & PAULA | | | $135,000.00 | 147346 | 2024-01665 |
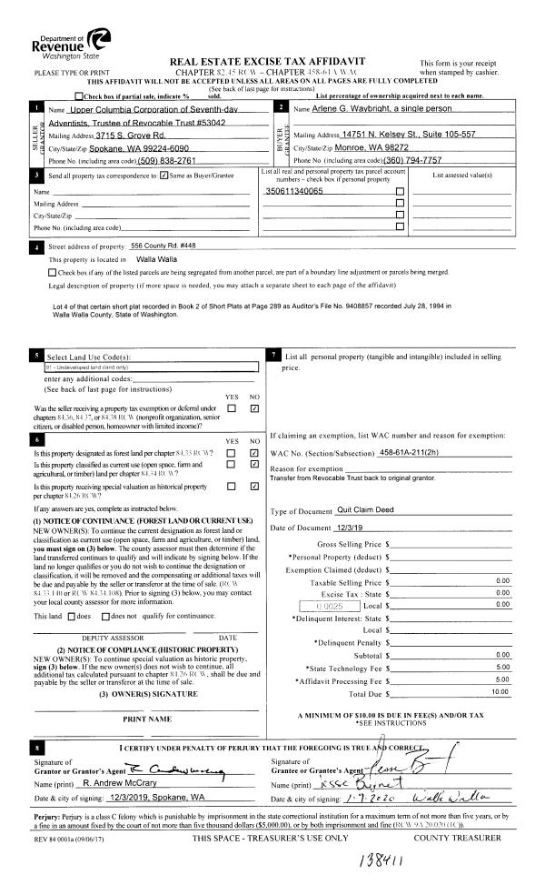
| 2 | 01/09/2020 | QCD | QUIT CLAIM DEED | WAYBRIGHT ARLENE G | LINEBAUGH PAUL & SHERRIE | | | $0.00 | 138412 | 2020-00307 |
| 3 | 01/09/2020 | QCD | QUIT CLAIM DEED | UPPER COLUMBIA CORP OF SDA | WAYBRIGHT ARLENE G | | | $0.00 | 138411 | 2020-00306 |
| 4 | 05/18/2005 | WARRANTY D | WARRANTY DEED | WAYBRIGHT, ARLENE G | UPPER COLUMBIA CORP OF SDA | | | | 107509 | 2005-05954 |
| 5 | 11/24/2003 | QCD | QUIT CLAIM DEED | WAYBRIGHT, ARLENE G | UPPER COLUMBIA CORP SDA | | | | 103583 | 2003-18040 |
| 6 | 08/14/2003 | QCD | QUIT CLAIM DEED | WESTERN WA CORP SDA | WAYBRIGHT, ARLENE G | | | | 102782 | 2003-12182 |
| 7 | 04/29/1997 | WARRANTY D | WARRANTY DEED | | | | | $35,000.00 | 88069 | 2519-703779 |
Payout Agreement
| No payout information available.. |