Property
Account |
| Property ID: | 15071 | Abbreviated Legal Description: | 14-7-38 (TRACT 17, ELK RIDGE TRACTS) S1/2S1/2SW1/4; S1/2SW1/4SE1/4 |
| Parcel Number: | 380714330010 | Agent Code: | |
| Type: | Real | | |
| Tax Area: | 309 - 101 | Land Use Code | 88 |
| Open Space: | N | DFL | Y |
| Historic Property: | N | Remodel Property: | N |
| Multi-Family Redevelopment: | N | | |
| Township: | 7 | Section: | 14 |
| Range: | 38 |
Location |
| Address: | 9392 LEWIS PEAK RD WA 99329 | Mapsco: | |
| Neighborhood: | 0 Farm | Map ID: | |
| Neighborhood CD: | 5250 |
Owner |
| Name: | BESIC HASIB & ZELJANA | Owner ID: | 59971 |
| Mailing Address: | 137 ENGLEWOOD DR RICHLAND, WA 99352 | % Ownership: | 100.0000000000% |
| | | Exemptions: | |
Taxes and Assessment Details
Property Tax Information as of
02/21/2026
Click on "Statement Details" to expand or collapse a tax statement.
* Please enter a valid date ** Please enter a valid date *
Statement Details |
| | TOTAL: | $0.00 | $0.00 | $0.00 | $0.00 | $0.00 | $0.00 |
|
| | $0.00 | $0.00 | $0.00 | $0.00 | $0.00 | $0.00 |
Values
| (+) Improvement Homesite Value: | + | $0 | |
| (+) Improvement Non-Homesite Value: | + | $193,060 | |
| (+) Land Homesite Value: | + | $55,000 | |
| (+) Land Non-Homesite Value: | + | $0 | |
| (+) Curr Use (HS): | + | $0 | $0 |
| (+) Curr Use (NHS): | + | $72,340 | $6,700 |
| | | -------------------------- | |
| (=) Market Value: | = | $320,400 | |
| (–) Productivity Loss: | – | $65,640 | |
| | | -------------------------- | |
| (=) Subtotal: | = | $254,760 | |
| (+) Senior Appraised Value: | + | $0 | |
| (+) Non-Senior Appraised Value: | + | $254,760 | |
| | | -------------------------- | |
| (=) Total Appraised Value: | = | $254,760 | |
| (–) Senior Exemption Loss: | – | $0 | |
| (–) Exemption Loss: | – | $0 | |
| | | -------------------------- | |
| (=) Taxable Value: | = | $254,760 | |
Taxing Jurisdiction
| Owner: | BESIC HASIB & ZELJANA | | |
| % Ownership: | 100.0000000000% | | |
| Total Value: | $320,400 | | |
| Tax Area: | 309 - 101 |
| CERFD | CURRENT EXPENSE REFUND 010 | 0.0000000000 | $254,760 | $254,760 | $0.00 | | |
| CURREXP | CURRENT EXPENSE 010 | 1.0175366760 | $254,760 | $254,760 | $259.23 | | |
| HUMNSERV | HUMAN SERVICES 119 | 0.0250000000 | $254,760 | $254,760 | $6.37 | | |
| SLDREL | SOLDIERS RELIEF 121 | 0.0155990005 | $254,760 | $254,760 | $3.97 | | |
| EMERGSER | EMS 147 | 0.3792580840 | $254,760 | $254,760 | $96.62 | | |
| EMSRFD | EMS REFUND 147 | 0.0000000000 | $254,760 | $254,760 | $0.00 | | |
| RLBRFD | RURAL LIBRARY REFUND 623 | 0.0000000000 | $254,760 | $254,760 | $0.00 | | |
| RURALLIB | RURAL LIBRARY 623 | 0.3710609029 | $254,760 | $254,760 | $94.53 | | |
| PORTRFD | PORT REFUND 640 | 0.0000000000 | $254,760 | $254,760 | $0.00 | | |
| PORTWWGEN | PORT OF WW 640 | 0.2460186015 | $254,760 | $254,760 | $62.68 | | |
| SD101CAP | SD #101 CAP 752 | 0.5894423472 | $254,760 | $254,760 | $150.17 | | |
| SD101GEN | SD #101 GENERAL 750 | 0.7455117868 | $254,760 | $254,760 | $189.93 | | |
| ST2 | STATE SCHOOL PART 2 600 | 0.8131451643 | $254,760 | $254,760 | $207.16 | | |
| STATESCHL | STATE SCHOOL 600 | 1.5158548041 | $254,760 | $254,760 | $386.18 | | |
| STREFUND | STATE REFUND LEVY 603 | 0.0000000000 | $254,760 | $254,760 | $0.00 | | |
| COROAD | COUNTY ROAD 115 | 1.6549953990 | $254,760 | $254,760 | $421.63 | | |
| CRPRD | COUNTY ROAD REFUND 115 | 0.0000000000 | $254,760 | $254,760 | $0.00 | | |
| | Total Tax Rate: | 7.3734227663 | | | | | |
| | | | | Taxes w/Current Exemptions: | $1,878.47 | | |
| | | | | Taxes w/o Exemptions: | $1,878.47 | | |
Improvement / Building
| Improvement #1: | RESIDENTIAL | State Code: | 88 | 1212.0 sqft | Value: | $193,060 |
| Exterior Wall: | METAL/STEEL | Heating/Cooling: | HEAT PUMP | | Number of Bathrooms: | 2 | Number of Bedrooms: | 2 | | Plumbing: | 9 | Roof Covering: | METAL ROOFING |
|
| | Type | Description | Class CD | Sub Class CD | Year Built | Area |
| | MA | Main Area | 4 | 25 | 2022 | 1212.0 |
| | WOD | Wood Deck | 4 | 30 | 2022 | 240.0 |
| | SI1 | SITE IMPROVEMENT | 4 | 30 | 2022 | 2.0 |
| | RCD | WOOD DECK W/ROOF, CEILED | 4 | 30 | 2022 | 240.0 |
| | TOOL | TOOL SHED | 4 | 30 | 2022 | 96.0 |
| | RCD | WOOD DECK W/ROOF, CEILED | 4 | 30 | 2022 | 48.0 |
| | UPFL | Upper Floor (included in main area) | 4 | 30 | 2022 | 288.0 |
Sketch
Property Image
Land
| 1 | 25-MTN | Mountain | 4.5600 | 0.00 | 0.00 | 0.00 | 1.00 | $2,740 | $2,740 |
| 2 | 13-TBR | TBR @ 2,500 | 18.0000 | 784080.00 | 0.00 | 0.00 | 1.00 | $45,000 | $1,210 |
| 3 | 55000-HS8 | Homesite 55000 No O/S | 1.0000 | 0.00 | 0.00 | 0.00 | 1.00 | $55,000 | $0 |
| 4 | 5-TBR | Timber | 41.0000 | 1785960.00 | 0.00 | 0.00 | 1.00 | $24,600 | $2,750 |
Roll Value History
| 2026 | N/A | N/A | N/A | N/A | N/A |
| 2025 | $193,060 | $171,740 | $6,750 | $274,810 | $274,810 |
| 2024 | $193,060 | $171,740 | $6,750 | $274,810 | $274,810 |
| 2023 | $193,060 | $127,340 | $6,700 | $254,760 | $254,760 |
| 2022 | $193,060 | $127,340 | $6,640 | $254,700 | $254,700 |
| 2021 | $0 | $127,340 | $6,640 | $61,640 | $61,640 |
| 2020 | $0 | $127,340 | $6,640 | $61,640 | $61,640 |
| 2019 | $0 | $127,340 | $6,450 | $61,450 | $61,450 |
| 2018 | $0 | $127,340 | $6,400 | $61,400 | $61,400 |
| 2017 | $0 | $63,080 | $9,540 | $9,540 | $9,540 |
| 2016 | $0 | $63,080 | $9,460 | $9,460 | $9,460 |
| 2015 | $0 | $63,080 | $9,280 | $9,280 | $9,280 |
| 2014 | $0 | $63,080 | $9,230 | $9,230 | $9,230 |
| 2013 | $0 | $63,100 | $9,200 | $9,200 | $9,200 |
| 2012 | $0 | $9,400 | $0 | $0 | $0 |
| 2011 | $0 | $9,500 | $0 | $0 | $0 |
| 2010 | $0 | $9,500 | $0 | $0 | $0 |
| 2009 | $0 | $9,400 | $0 | $0 | $0 |
| 2008 | $0 | $38,700 | $0 | $0 | $0 |
| 2007 | $0 | $38,700 | $0 | $0 | $0 |
Deed and Sales History
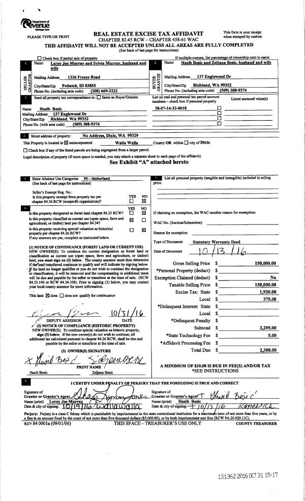
| 1 | 10/31/2016 | SWD | STATUTORY WARRANTY DEED | MURRAY V LEROY JOE & SYLVIA | BESIC HASIB & ZELJANA | | | $150,000.00 | 131362 | 2016-09033 |
| 2 | 06/09/2016 | SWD | STATUTORY WARRANTY DEED | WALLA WALLA TITLE COMPANY | MURRAY V LEROY JOE & SYLVIA | | | $100,000.00 | 130379 | 2016-04324 |
| 3 | 10/25/1999 | PACD | PURCHASER'S ASSG CONTRACT&DEED | WODTLI GERALD L & SHIRLEY R | WALLA WALLA TITLE COMPANY | | | | 0 | 1999-12233 |
| 4 | 08/17/1999 | WARRANTY D | WARRANTY DEED | | WODTLI GERALD L & SHIRLEY R | | | $99,500.00 | 93422 | 2889-909656 |
Payout Agreement
| No payout information available.. |