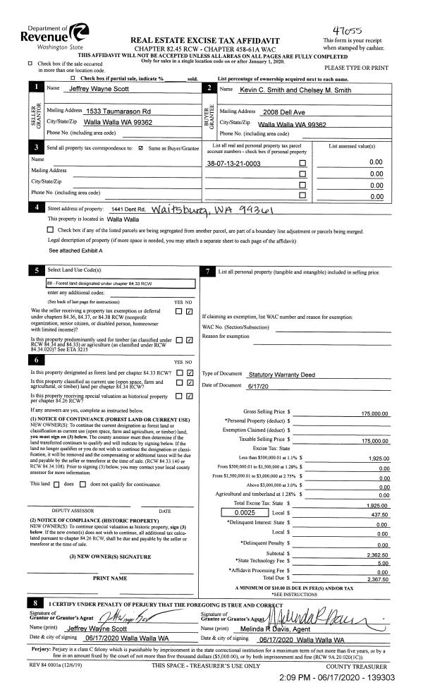
Property
Account |
| Property ID: | 15068 | Abbreviated Legal Description: | 13-7-38 N1/2NW1/4 |
| Parcel Number: | 380713210003 | Agent Code: | |
| Type: | Real | | |
| Tax Area: | 309 - 101 | Land Use Code | 88 |
| Open Space: | N | DFL | Y |
| Historic Property: | N | Remodel Property: | N |
| Multi-Family Redevelopment: | N | | |
| Township: | 7 | Section: | 13 |
| Range: | 38 |
Location |
| Address: | 1441 DENT RD WAITSBURG, WA 99329 | Mapsco: | |
| Neighborhood: | 0 Farm | Map ID: | |
| Neighborhood CD: | 5250 |
Owner |
| Name: | SMITH KEVIN & CHELSEY | Owner ID: | 53140 |
| Mailing Address: | 2008 DELL AVE WALLA WALLA, WA 99362 | % Ownership: | 100.0000000000% |
| | | Exemptions: | |
Taxes and Assessment Details
Property Tax Information as of
02/21/2026
Click on "Statement Details" to expand or collapse a tax statement.
* Please enter a valid date ** Please enter a valid date *
Statement Details |
| | TOTAL: | $0.00 | $0.00 | $0.00 | $0.00 | $0.00 | $0.00 |
|
| | $0.00 | $0.00 | $0.00 | $0.00 | $0.00 | $0.00 |
Values
| (+) Improvement Homesite Value: | + | $0 | |
| (+) Improvement Non-Homesite Value: | + | $23,700 | |
| (+) Land Homesite Value: | + | $0 | |
| (+) Land Non-Homesite Value: | + | $20,000 | |
| (+) Curr Use (HS): | + | $0 | $0 |
| (+) Curr Use (NHS): | + | $51,400 | $11,520 |
| | | -------------------------- | |
| (=) Market Value: | = | $95,100 | |
| (–) Productivity Loss: | – | $39,880 | |
| | | -------------------------- | |
| (=) Subtotal: | = | $55,220 | |
| (+) Senior Appraised Value: | + | $0 | |
| (+) Non-Senior Appraised Value: | + | $55,220 | |
| | | -------------------------- | |
| (=) Total Appraised Value: | = | $55,220 | |
| (–) Senior Exemption Loss: | – | $0 | |
| (–) Exemption Loss: | – | $0 | |
| | | -------------------------- | |
| (=) Taxable Value: | = | $55,220 | |
Taxing Jurisdiction
| Owner: | SMITH KEVIN & CHELSEY | | |
| % Ownership: | 100.0000000000% | | |
| Total Value: | $95,100 | | |
| Tax Area: | 309 - 101 |
| CERFD | CURRENT EXPENSE REFUND 010 | 0.0000000000 | $55,220 | $55,220 | $0.00 | | |
| CURREXP | CURRENT EXPENSE 010 | 1.0175366760 | $55,220 | $55,220 | $56.19 | | |
| HUMNSERV | HUMAN SERVICES 119 | 0.0250000000 | $55,220 | $55,220 | $1.38 | | |
| SLDREL | SOLDIERS RELIEF 121 | 0.0155990005 | $55,220 | $55,220 | $0.86 | | |
| EMERGSER | EMS 147 | 0.3792580840 | $55,220 | $55,220 | $20.94 | | |
| EMSRFD | EMS REFUND 147 | 0.0000000000 | $55,220 | $55,220 | $0.00 | | |
| RLBRFD | RURAL LIBRARY REFUND 623 | 0.0000000000 | $55,220 | $55,220 | $0.00 | | |
| RURALLIB | RURAL LIBRARY 623 | 0.3710609029 | $55,220 | $55,220 | $20.49 | | |
| PORTRFD | PORT REFUND 640 | 0.0000000000 | $55,220 | $55,220 | $0.00 | | |
| PORTWWGEN | PORT OF WW 640 | 0.2460186015 | $55,220 | $55,220 | $13.59 | | |
| SD101CAP | SD #101 CAP 752 | 0.5894423472 | $55,220 | $55,220 | $32.55 | | |
| SD101GEN | SD #101 GENERAL 750 | 0.7455117868 | $55,220 | $55,220 | $41.17 | | |
| ST2 | STATE SCHOOL PART 2 600 | 0.8131451643 | $55,220 | $55,220 | $44.90 | | |
| STATESCHL | STATE SCHOOL 600 | 1.5158548041 | $55,220 | $55,220 | $83.71 | | |
| STREFUND | STATE REFUND LEVY 603 | 0.0000000000 | $55,220 | $55,220 | $0.00 | | |
| COROAD | COUNTY ROAD 115 | 1.6549953990 | $55,220 | $55,220 | $91.39 | | |
| CRPRD | COUNTY ROAD REFUND 115 | 0.0000000000 | $55,220 | $55,220 | $0.00 | | |
| | Total Tax Rate: | 7.3734227663 | | | | | |
| | | | | Taxes w/Current Exemptions: | $407.17 | | |
| | | | | Taxes w/o Exemptions: | $407.17 | | |
Improvement / Building
| Improvement #1: | RESIDENTIAL | State Code: | 88 | 640.0 sqft | Value: | $23,700 |
| Exterior Wall: | FINSHED CABIN | Foundation: | POST & PIER | | Heating/Cooling: | STOVE-NO HEAT | Number of Bedrooms: | 2 |
|
| | Type | Description | Class CD | Sub Class CD | Year Built | Area |
| | MA | Main Area | 19 | CABFN | 2007 | 640.0 |
| | UTIL-STOR | UTILITY STORAGE | 1 | 20 | 2007 | 160.0 |
Sketch
Property Image
Land
| 1 | 20,000-CS | CABIN SITE @ 20,000 | 1.0000 | 0.00 | 0.00 | 0.00 | 1.00 | $20,000 | $0 |
| 2 | 2-TBR | Timber | 40.0000 | 1742400.00 | 0.00 | 0.00 | 1.00 | $20,000 | $2,680 |
| 3 | 3-MTN | Mountain | 22.0000 | 0.00 | 0.00 | 0.00 | 1.00 | $11,000 | $7,700 |
| 4 | 8-TBR | Timber | 17.0000 | 740520.00 | 0.00 | 0.00 | 1.00 | $20,400 | $1,140 |
Roll Value History
| 2026 | N/A | N/A | N/A | N/A | N/A |
| 2025 | $28,900 | $117,500 | $12,560 | $76,460 | $76,460 |
| 2024 | $28,900 | $117,500 | $12,560 | $76,460 | $76,460 |
| 2023 | $23,700 | $71,400 | $11,520 | $55,220 | $55,220 |
| 2022 | $23,700 | $71,400 | $11,460 | $55,160 | $55,160 |
| 2021 | $23,700 | $71,400 | $11,460 | $55,160 | $55,160 |
| 2020 | $23,700 | $71,400 | $10,360 | $54,060 | $54,060 |
| 2019 | $23,700 | $71,400 | $10,190 | $53,890 | $53,890 |
| 2018 | $23,700 | $71,400 | $10,130 | $53,830 | $53,830 |
| 2017 | $23,700 | $26,130 | $19,530 | $43,230 | $43,230 |
| 2016 | $23,700 | $26,080 | $19,480 | $43,180 | $43,180 |
| 2015 | $23,700 | $25,910 | $19,310 | $43,010 | $43,010 |
| 2014 | $23,700 | $25,790 | $19,190 | $42,890 | $42,890 |
| 2013 | $23,700 | $25,800 | $25,800 | $49,500 | $49,500 |
| 2012 | $23,500 | $26,100 | $0 | $0 | $0 |
| 2011 | $16,600 | $23,600 | $0 | $0 | $0 |
| 2010 | $10,700 | $23,600 | $0 | $0 | $0 |
| 2009 | $0 | $21,800 | $0 | $0 | $0 |
| 2008 | $0 | $26,300 | $0 | $0 | $0 |
| 2007 | $0 | $26,300 | $0 | $0 | $0 |
Deed and Sales History
| 1 | 06/17/2020 | SWD | STATUTORY WARRANTY DEED | SCOTT JEFFREY WAYNE | SMITH KEVIN & CHELSEY | | | $175,000.00 | 139303 | 2020-05537 |
| 2 | 02/12/2007 | QCD | QUIT CLAIM DEED | BOISE BUILDING SOLUTIONS MANUF | SCOTT, JEFFREY WAYNE | | | | 112226 | 2007-01709 |
| 3 | 11/15/2004 | WARRANTY D | WARRANTY DEED | BOISE CASCADE CORP | | | | | 106193 | 2004-13128 |
| 4 | 06/03/2004 | WARRANTY D | WARRANTY DEED | COCHRAN, IRA J | SCOTT, JEFFREY WAYNE | | | | 104921 | 2004-06066 |
| 5 | 06/03/2004 | QCD | QUIT CLAIM DEED | COCHRAN, BETTY JEAN | SCOTT, JEFFREY WAYNE | | | | 104922 | 2004-06065 |
| 6 | 12/20/1972 | WARRANTY D | WARRANTY DEED | | | | | $0.00 | 0 | 3480-526145 |
Payout Agreement
| No payout information available.. |