Property
Account |
| Property ID: | 15008 | Abbreviated Legal Description: | BRYANTS LT 24 BLK 3 |
| Parcel Number: | 360728530324 | Agent Code: | |
| Type: | Real | | |
| Tax Area: | 1 - OL-140-F | Land Use Code | 11 |
| Open Space: | N | DFL | N |
| Historic Property: | N | Remodel Property: | N |
| Multi-Family Redevelopment: | N | | |
| Township: | 7 | Section: | 28 |
| Range: | 36 |
Location |
| Address: | 503 JUNIPER ST WA 99362 | Mapsco: | |
| Neighborhood: | A Res | Map ID: | |
| Neighborhood CD: | 613011 |
Owner |
| Name: | GILLA MARIE EVE | Owner ID: | 74032 |
| Mailing Address: | 326 NE KINGWOOD PL COLLEGE PLACE, WA 99324 | % Ownership: | 100.0000000000% |
| | | Exemptions: | |
Taxes and Assessment Details
Property Tax Information as of
02/21/2026
Click on "Statement Details" to expand or collapse a tax statement.
* Please enter a valid date ** Please enter a valid date *
Statement Details |
| | TOTAL: | $0.00 | $0.00 | $0.00 | $0.00 | $0.00 | $0.00 |
|
| | $0.00 | $0.00 | $0.00 | $0.00 | $0.00 | $0.00 |
Values
| (+) Improvement Homesite Value: | + | $0 | |
| (+) Improvement Non-Homesite Value: | + | $234,670 | |
| (+) Land Homesite Value: | + | $0 | |
| (+) Land Non-Homesite Value: | + | $70,000 | |
| (+) Curr Use (HS): | + | $0 | $0 |
| (+) Curr Use (NHS): | + | $0 | $0 |
| | | -------------------------- | |
| (=) Market Value: | = | $304,670 | |
| (–) Productivity Loss: | – | $0 | |
| | | -------------------------- | |
| (=) Subtotal: | = | $304,670 | |
| (+) Senior Appraised Value: | + | $0 | |
| (+) Non-Senior Appraised Value: | + | $304,670 | |
| | | -------------------------- | |
| (=) Total Appraised Value: | = | $304,670 | |
| (–) Senior Exemption Loss: | – | $0 | |
| (–) Exemption Loss: | – | $0 | |
| | | -------------------------- | |
| (=) Taxable Value: | = | $304,670 | |
Taxing Jurisdiction
| Owner: | GILLA MARIE EVE | | |
| % Ownership: | 100.0000000000% | | |
| Total Value: | $304,670 | | |
| Tax Area: | 1 - OL-140-F |
| CERFD | CURRENT EXPENSE REFUND 010 | 0.0000000000 | $304,670 | $304,670 | $0.00 | | |
| CURREXP | CURRENT EXPENSE 010 | 1.0175366760 | $304,670 | $304,670 | $310.01 | | |
| HUMNSERV | HUMAN SERVICES 119 | 0.0250000000 | $304,670 | $304,670 | $7.62 | | |
| SLDREL | SOLDIERS RELIEF 121 | 0.0155990005 | $304,670 | $304,670 | $4.75 | | |
| EMERGSER | EMS 147 | 0.3792580840 | $304,670 | $304,670 | $115.55 | | |
| EMSRFD | EMS REFUND 147 | 0.0000000000 | $304,670 | $304,670 | $0.00 | | |
| PORTRFD | PORT REFUND 640 | 0.0000000000 | $304,670 | $304,670 | $0.00 | | |
| PORTWWGEN | PORT OF WW 640 | 0.2460186015 | $304,670 | $304,670 | $74.95 | | |
| SD140BOND | SD #140 BOND 764 | 0.8342371393 | $304,670 | $304,670 | $254.17 | | |
| SD140GEN | SD #140 GENERAL 760 | 2.0646500647 | $304,670 | $304,670 | $629.04 | | |
| ST2 | STATE SCHOOL PART 2 600 | 0.8131451643 | $304,670 | $304,670 | $247.74 | | |
| STATESCHL | STATE SCHOOL 600 | 1.5158548041 | $304,670 | $304,670 | $461.84 | | |
| STREFUND | STATE REFUND LEVY 603 | 0.0000000000 | $304,670 | $304,670 | $0.00 | | |
| CWWBOND | C OF WW BOND 643 | 0.2760494372 | $304,670 | $304,670 | $84.10 | | |
| CWWGEN | CITY OF WW 631 | 1.6100204973 | $304,670 | $304,670 | $490.52 | | |
| CWWRFD | CITY OF WALLA WALLA REFUND 631 | 0.0000000000 | $304,670 | $304,670 | $0.00 | | |
| | Total Tax Rate: | 8.7973694689 | | | | | |
| | | | | Taxes w/Current Exemptions: | $2,680.29 | | |
| | | | | Taxes w/o Exemptions: | $2,680.29 | | |
Improvement / Building
| Improvement #1: | RESIDENTIAL | State Code: | 11 | 1257.0 sqft | Value: | $234,670 |
| Exterior Wall: | HARDBOARD | Heating/Cooling: | FORCED AIR | | Number of Bathrooms: | 1 | Number of Bedrooms: | 2 | | Plumbing: | 7 | Roof Covering: | COMP SHINGLE |
|
| | Type | Description | Class CD | Sub Class CD | Year Built | Area |
| | MA | Main Area | 1 | 30 | 1930 | 1257.0 |
| | SI1 | SITE IMPROVEMENT | 1 | 30 | 1930 | 1.0 |
| | RCD | WOOD DECK W/ROOF, CEILED | 1 | 30 | 1930 | 220.0 |
| | DTG | Detached Garage | 1 | 30 | 1930 | 460.0 |
Sketch
Property Image
Land
| 1 | RES 1 | Converted: Residential | 0.1377 | 6000.00 | 0.00 | 0.00 | 1.00 | $70,000 | $0 |
Roll Value History
| 2026 | N/A | N/A | N/A | N/A | N/A |
| 2025 | $240,350 | $66,000 | $0 | $306,350 | $306,350 |
| 2024 | $234,670 | $70,000 | $0 | $304,670 | $304,670 |
| 2023 | $234,670 | $70,000 | $0 | $304,670 | $304,670 |
| 2022 | $247,020 | $55,000 | $0 | $302,020 | $302,020 |
| 2021 | $190,010 | $55,000 | $0 | $245,010 | $245,010 |
| 2020 | $140,750 | $55,000 | $0 | $195,750 | $195,750 |
| 2019 | $140,750 | $55,000 | $0 | $195,750 | $195,750 |
| 2018 | $125,140 | $36,000 | $0 | $161,140 | $161,140 |
| 2017 | $125,140 | $36,000 | $0 | $161,140 | $161,140 |
| 2016 | $90,000 | $36,000 | $0 | $126,000 | $126,000 |
| 2015 | $90,000 | $36,000 | $0 | $126,000 | $126,000 |
| 2014 | $90,000 | $36,000 | $0 | $126,000 | $126,000 |
| 2013 | $90,000 | $36,000 | $0 | $126,000 | $126,000 |
| 2012 | $84,600 | $36,000 | $0 | $0 | $0 |
| 2011 | $84,600 | $36,000 | $0 | $0 | $0 |
| 2010 | $92,300 | $36,000 | $0 | $0 | $0 |
| 2009 | $86,900 | $36,000 | $0 | $0 | $0 |
| 2008 | $86,900 | $36,000 | $0 | $0 | $0 |
| 2007 | $56,500 | $18,000 | $0 | $0 | $0 |
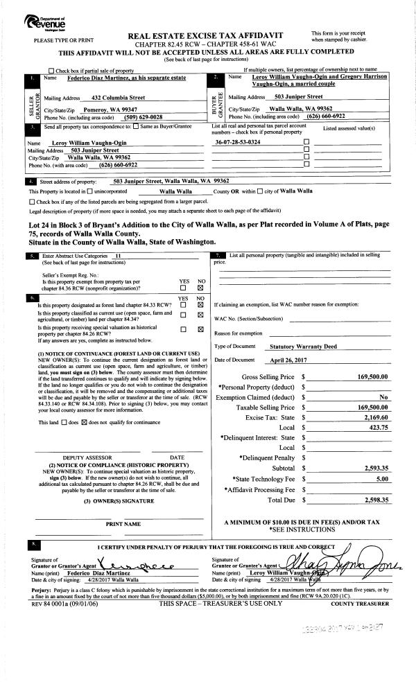
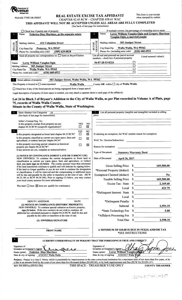
Deed and Sales History
| 1 | 07/27/2023 | SWD | STATUTORY WARRANTY DEED | VAUGHN-OGIN LEROY WILLIAM | GILLA MARIE EVE | | | $305,000.00 | 146222 | 2023-04258 |
| 2 | 05/01/2017 | SWD | STATUTORY WARRANTY DEED | MARTINEZ FEDERICO DIAZ | VAUGHN-OGIN LEROY WILLIAM | | | $169,500.00 | 132304 | 2017-03268 |
| 3 | 05/19/2008 | QCD | QUIT CLAIM DEED | DIAZ, ERENDRIA | MARTINEZ, FEDERICO DIAZ | | | $0.00 | 115050 | 2008-05067 |
| 4 | 05/19/2008 | WARRANTY D | WARRANTY DEED | SELDERS, LAWRENCE & ALYSSA | MARTINEZ, FEDERICO DIAZ | | | $145,000.00 | 115051 | 2008-05068 |
| 5 | 05/19/2005 | WARRANTY D | WARRANTY DEED | MAC DONALD, DEBRA R | SELDERS, LAWRENCE & ALYSSA | | | $122,000.00 | 107528 | 2005-06040 |
| 6 | 12/13/2002 | WARRANTY D | WARRANTY DEED | MAC DONALD, DAN G | MAC DONALD, DEBRA R | | | | 0 | CC#02-3-00210-7 |
| 7 | 12/31/1998 | WARRANTY D | WARRANTY DEED | | | | | $63,000.00 | 91946 | 2789-815225 |
Payout Agreement
| No payout information available.. |