Property
Account |
| Property ID: | 1499 | Abbreviated Legal Description: | AUTUMN MEADOWS LT 14 BLK 3 |
| Parcel Number: | 350736970314 | Agent Code: | |
| Type: | Real | | |
| Tax Area: | 77 - CP-250-F | Land Use Code | 11 |
| Open Space: | N | DFL | N |
| Historic Property: | N | Remodel Property: | N |
| Multi-Family Redevelopment: | N | | |
| Township: | 7 | Section: | 36 |
| Range: | 35 |
Location |
| Address: | 1148 SE SURITA CT WA 99324 | Mapsco: | |
| Neighborhood: | A SFR | Map ID: | |
| Neighborhood CD: | 113011 |
Owner |
| Name: | ROSAASEN MATTHEW T & TARA L | Owner ID: | 71530 |
| Mailing Address: | 1148 SE SURITA CT COLLEGE PLACE, WA 99324 | % Ownership: | 100.0000000000% |
| | | Exemptions: | |
Taxes and Assessment Details
Property Tax Information as of
02/21/2026
Click on "Statement Details" to expand or collapse a tax statement.
* Please enter a valid date ** Please enter a valid date *
Statement Details |
| | TOTAL: | $0.00 | $0.00 | $0.00 | $0.00 | $0.00 | $0.00 |
|
| | $0.00 | $0.00 | $0.00 | $0.00 | $0.00 | $0.00 |
Values
| (+) Improvement Homesite Value: | + | $0 | |
| (+) Improvement Non-Homesite Value: | + | $321,340 | |
| (+) Land Homesite Value: | + | $0 | |
| (+) Land Non-Homesite Value: | + | $70,000 | |
| (+) Curr Use (HS): | + | $0 | $0 |
| (+) Curr Use (NHS): | + | $0 | $0 |
| | | -------------------------- | |
| (=) Market Value: | = | $391,340 | |
| (–) Productivity Loss: | – | $0 | |
| | | -------------------------- | |
| (=) Subtotal: | = | $391,340 | |
| (+) Senior Appraised Value: | + | $0 | |
| (+) Non-Senior Appraised Value: | + | $391,340 | |
| | | -------------------------- | |
| (=) Total Appraised Value: | = | $391,340 | |
| (–) Senior Exemption Loss: | – | $0 | |
| (–) Exemption Loss: | – | $0 | |
| | | -------------------------- | |
| (=) Taxable Value: | = | $391,340 | |
Taxing Jurisdiction
| Owner: | ROSAASEN MATTHEW T & TARA L | | |
| % Ownership: | 100.0000000000% | | |
| Total Value: | $391,340 | | |
| Tax Area: | 77 - CP-250-F |
| CERFD | CURRENT EXPENSE REFUND 010 | 0.0000000000 | $391,340 | $391,340 | $0.00 | | |
| CURREXP | CURRENT EXPENSE 010 | 1.0175366760 | $391,340 | $391,340 | $398.20 | | |
| HUMNSERV | HUMAN SERVICES 119 | 0.0250000000 | $391,340 | $391,340 | $9.78 | | |
| SLDREL | SOLDIERS RELIEF 121 | 0.0155990005 | $391,340 | $391,340 | $6.10 | | |
| COLLPLBOND | C OF CP BOND 644 | 0.4374241808 | $391,340 | $391,340 | $171.18 | | |
| COLLPLGEN | CITY OF CP 632 | 1.4453819216 | $391,340 | $391,340 | $565.64 | | |
| EMERGSER | EMS 147 | 0.3792580840 | $391,340 | $391,340 | $148.42 | | |
| EMSRFD | EMS REFUND 147 | 0.0000000000 | $391,340 | $391,340 | $0.00 | | |
| RURALLIB | RURAL LIBRARY 623 | 0.3710609029 | $391,340 | $391,340 | $145.21 | | |
| PORTRFD | PORT REFUND 640 | 0.0000000000 | $391,340 | $391,340 | $0.00 | | |
| PORTWWGEN | PORT OF WW 640 | 0.2460186015 | $391,340 | $391,340 | $96.28 | | |
| SD250BOND | SD #250 BOND 773 | 1.4560608159 | $391,340 | $391,340 | $569.81 | | |
| SD250GEN | SD #250 GENERAL 770 | 2.3880724087 | $391,340 | $391,340 | $934.55 | | |
| ST2 | STATE SCHOOL PART 2 600 | 0.8131451643 | $391,340 | $391,340 | $318.22 | | |
| STATESCHL | STATE SCHOOL 600 | 1.5158548041 | $391,340 | $391,340 | $593.21 | | |
| STREFUND | STATE REFUND LEVY 603 | 0.0000000000 | $391,340 | $391,340 | $0.00 | | |
| | Total Tax Rate: | 10.1104125603 | | | | | |
| | | | | Taxes w/Current Exemptions: | $3,956.60 | | |
| | | | | Taxes w/o Exemptions: | $3,956.60 | | |
Improvement / Building
| Improvement #1: | RESIDENTIAL | State Code: | 11 | 2016.0 sqft | Value: | $321,340 |
| Exterior Wall: | PLYWOOD | Heating/Cooling: | WARM & COOLED AIR | | Number of Bathrooms: | 2.5 | Number of Bedrooms: | 4 | | Plumbing: | 11 | Roof Covering: | COMP SHINGLE |
|
| | Type | Description | Class CD | Sub Class CD | Year Built | Area |
| | MA | Main Area | 2 | 30 | 2003 | 2016.0 |
| | UPFL | Upper Floor (included in main area) | 2 | 30 | 2003 | 1008.0 |
| | SI1 | SITE IMPROVEMENT | 2 | 30 | 2003 | 2.0 |
| | ATG | Attached Garage | 2 | 30 | 2003 | 400.0 |
| | RPC | OPEN PORCH W/ROOF , CEILED | 2 | 30 | 2003 | 216.0 |
| | GFP | GAS FIREPLACE | 2 | 30 | 2003 | 1.0 |
Sketch
Property Image
Land
| 1 | RES 1 | Converted: Residential | 0.1930 | 8407.00 | 0.00 | 0.00 | 1.00 | $70,000 | $0 |
Roll Value History
| 2026 | N/A | N/A | N/A | N/A | N/A |
| 2025 | $289,210 | $125,000 | $0 | $414,210 | $414,210 |
| 2024 | $321,340 | $70,000 | $0 | $391,340 | $391,340 |
| 2023 | $321,340 | $70,000 | $0 | $391,340 | $391,340 |
| 2022 | $321,340 | $70,000 | $0 | $391,340 | $391,340 |
| 2021 | $221,610 | $70,000 | $0 | $291,610 | $291,610 |
| 2020 | $160,590 | $70,000 | $0 | $230,590 | $230,590 |
| 2019 | $175,590 | $55,000 | $0 | $230,590 | $230,590 |
| 2018 | $167,230 | $55,000 | $0 | $222,230 | $222,230 |
| 2017 | $139,360 | $55,000 | $0 | $194,360 | $194,360 |
| 2016 | $139,360 | $55,000 | $0 | $194,360 | $194,360 |
| 2015 | $132,720 | $55,000 | $0 | $187,720 | $187,720 |
| 2014 | $110,600 | $55,000 | $0 | $165,600 | $165,600 |
| 2013 | $110,600 | $55,000 | $0 | $165,600 | $165,600 |
| 2012 | $110,600 | $55,000 | $0 | $0 | $0 |
| 2011 | $139,800 | $55,000 | $0 | $0 | $0 |
| 2010 | $139,800 | $55,000 | $0 | $0 | $0 |
| 2009 | $161,400 | $55,000 | $0 | $0 | $0 |
| 2008 | $124,000 | $30,000 | $0 | $0 | $0 |
| 2007 | $124,000 | $30,000 | $0 | $0 | $0 |
Deed and Sales History
| 1 | 02/04/2025 | SWD | STATUTORY WARRANTY DEED | ROSAASEN MATTHEW T & TARA L | SHIRLEY KAREN | | | $435,000.00 | 148873 | 2025-00578 |
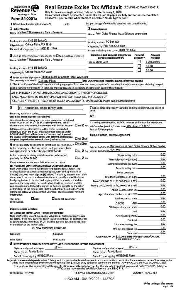
| 2 | 03/11/2021 | AGREEMENT | AGREEMENT | ROSAASEN MATTHEW T & TARA L | POINT DIGITAL FINANCE INC | | | $0.00 | 143792 | 2022-03318 |
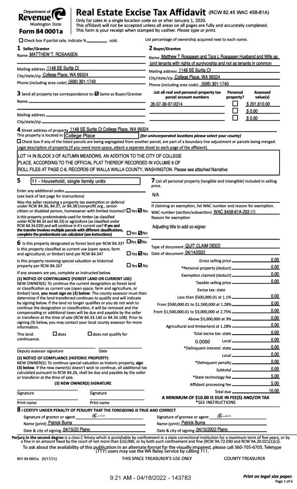
| 3 | 04/14/2022 | QCD | QUIT CLAIM DEED | ROSAASEN MATTHEW | ROSAASEN MATTHEW T & TARA L | | | $0.00 | 143783 | 2022-03316 |
| 4 | 06/06/2016 | QCD | QUIT CLAIM DEED | MONROE RASHEL L | ROSAASEN MATTHEW T | | | $0.00 | 130366 | 2016-04282 |
| 5 | 04/25/2013 | WARRANTY D | WARRANTY DEED | ROSAASEN, RASHEL | ROSAASEN, MATTHEW | | | $0.00 | 0 | CC #12-3-00179-5 |
| 6 | 04/01/2003 | WARRANTY D | WARRANTY DEED | HAYDEN ENTERPRISES INC | ROSAASEN, MATTHEW T & RASHEL L | | | $154,325.00 | 101726 | 2003-04570 |
| 7 | 08/21/2002 | WARRANTY D | WARRANTY DEED | VILLAGE PARK COLLEGE PLACE~LLC | | | | | 100199 | 2002-09391 |
Payout Agreement
| No payout information available.. |