Property
Account |
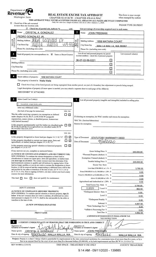
| Property ID: | 14884 | Abbreviated Legal Description: | VALLEY HOMES LOT 7 SHORT PLAT 4/159 2004-13429 (SELY PTN LOT 18 & SWLY PTN LOT 17 |
| Parcel Number: | 360722560221 | Agent Code: | |
| Type: | Real | | |
| Tax Area: | 6 - OL-140-F-FB | Land Use Code | 11 |
| Open Space: | N | DFL | N |
| Historic Property: | N | Remodel Property: | N |
| Multi-Family Redevelopment: | N | | |
| Township: | 7 | Section: | 22 |
| Range: | 36 |
Location |
| Address: | 1858 MATARA CT WA 99362 | Mapsco: | |
| Neighborhood: | A-Superior SFR | Map ID: | |
| Neighborhood CD: | 413211 |
Owner |
| Name: | FREEMAN JOHN | Owner ID: | 67927 |
| Mailing Address: | 1858 MATARA CT WALLA WALLA, WA 99362 | % Ownership: | 100.0000000000% |
| | | Exemptions: | |
Taxes and Assessment Details
Values
| (+) Improvement Homesite Value: | + | $0 | |
| (+) Improvement Non-Homesite Value: | + | $330,350 | |
| (+) Land Homesite Value: | + | $0 | |
| (+) Land Non-Homesite Value: | + | $80,840 | |
| (+) Curr Use (HS): | + | $0 | $0 |
| (+) Curr Use (NHS): | + | $0 | $0 |
| | | -------------------------- | |
| (=) Market Value: | = | $411,190 | |
| (–) Productivity Loss: | – | $0 | |
| | | -------------------------- | |
| (=) Subtotal: | = | $411,190 | |
| (+) Senior Appraised Value: | + | $0 | |
| (+) Non-Senior Appraised Value: | + | $411,190 | |
| | | -------------------------- | |
| (=) Total Appraised Value: | = | $411,190 | |
| (–) Senior Exemption Loss: | – | $0 | |
| (–) Exemption Loss: | – | $0 | |
| | | -------------------------- | |
| (=) Taxable Value: | = | $411,190 | |
Taxing Jurisdiction
| Owner: | FREEMAN JOHN | | |
| % Ownership: | 100.0000000000% | | |
| Total Value: | $411,190 | | |
| Tax Area: | 6 - OL-140-F-FB |
| CERFD | CURRENT EXPENSE REFUND 010 | 0.0000000000 | $411,190 | $411,190 | $0.00 | | |
| CURREXP | CURRENT EXPENSE 010 | 1.0175366760 | $411,190 | $411,190 | $418.40 | | |
| HUMNSERV | HUMAN SERVICES 119 | 0.0250000000 | $411,190 | $411,190 | $10.28 | | |
| SLDREL | SOLDIERS RELIEF 121 | 0.0155990005 | $411,190 | $411,190 | $6.41 | | |
| EMERGSER | EMS 147 | 0.3792580840 | $411,190 | $411,190 | $155.95 | | |
| EMSRFD | EMS REFUND 147 | 0.0000000000 | $411,190 | $411,190 | $0.00 | | |
| PORTRFD | PORT REFUND 640 | 0.0000000000 | $411,190 | $411,190 | $0.00 | | |
| PORTWWGEN | PORT OF WW 640 | 0.2460186015 | $411,190 | $411,190 | $101.16 | | |
| SD140BOND | SD #140 BOND 764 | 0.8342371393 | $411,190 | $411,190 | $343.03 | | |
| SD140GEN | SD #140 GENERAL 760 | 2.0646500647 | $411,190 | $411,190 | $848.96 | | |
| ST2 | STATE SCHOOL PART 2 600 | 0.8131451643 | $411,190 | $411,190 | $334.36 | | |
| STATESCHL | STATE SCHOOL 600 | 1.5158548041 | $411,190 | $411,190 | $623.30 | | |
| STREFUND | STATE REFUND LEVY 603 | 0.0000000000 | $411,190 | $411,190 | $0.00 | | |
| CWWBOND | C OF WW BOND 643 | 0.2760494372 | $411,190 | $411,190 | $113.51 | | |
| CWWGEN | CITY OF WW 631 | 1.6100204973 | $411,190 | $411,190 | $662.02 | | |
| CWWRFD | CITY OF WALLA WALLA REFUND 631 | 0.0000000000 | $411,190 | $411,190 | $0.00 | | |
| | Total Tax Rate: | 8.7973694689 | | | | | |
| | | | | Taxes w/Current Exemptions: | $3,617.38 | | |
| | | | | Taxes w/o Exemptions: | $3,617.38 | | |
Improvement / Building
| Improvement #1: | RESIDENTIAL | State Code: | 11 | 2064.0 sqft | Value: | $330,350 |
| Exterior Wall: | PLYWOOD | Heating/Cooling: | WARM & COOLED AIR | | Number of Bathrooms: | 3 | Number of Bedrooms: | 4 | | Plumbing: | 12 | Roof Covering: | COMP SHINGLE |
|
| | Type | Description | Class CD | Sub Class CD | Year Built | Area |
| | MA | Main Area | 4 | 30 | 2006 | 2064.0 |
| | SI1 | SITE IMPROVEMENT | 4 | 30 | 0 | 3.0 |
| | ATG | Attached Garage | 4 | 30 | 2006 | 420.0 |
| | UPFL | Upper Floor (included in main area) | 4 | 30 | 2006 | 648.0 |
| | RPO | OPEN PORCH W/ROOF | 4 | 30 | 2006 | 75.0 |
| | RPO | OPEN PORCH W/ROOF | 4 | 30 | 2006 | 78.0 |
| | BLW | WOOD BALCONIES | 4 | 30 | 2006 | 78.0 |
| | UTST | Utility Storage Shed | 4 | 30 | 2006 | 120.0 |
Sketch
Property Image
Land
| 1 | RES 1 | Converted: Residential | 0.2618 | 11402.00 | 0.00 | 0.00 | 1.00 | $80,840 | $0 |
Roll Value History
| 2026 | N/A | N/A | N/A | N/A | N/A |
| 2025 | $346,870 | $80,840 | $0 | $427,710 | $427,710 |
| 2024 | $346,870 | $80,840 | $0 | $427,710 | $427,710 |
| 2023 | $330,350 | $80,840 | $0 | $411,190 | $411,190 |
| 2022 | $339,150 | $65,000 | $0 | $404,150 | $404,150 |
| 2021 | $271,320 | $65,000 | $0 | $336,320 | $336,320 |
| 2020 | $208,710 | $65,000 | $0 | $273,710 | $273,710 |
| 2019 | $208,710 | $65,000 | $0 | $273,710 | $273,710 |
| 2018 | $181,490 | $65,000 | $0 | $246,490 | $246,490 |
| 2017 | $172,850 | $65,000 | $0 | $237,850 | $237,850 |
| 2016 | $172,850 | $55,000 | $0 | $227,850 | $227,850 |
| 2015 | $172,850 | $55,000 | $0 | $227,850 | $227,850 |
| 2014 | $150,300 | $55,000 | $0 | $205,300 | $205,300 |
| 2013 | $150,300 | $55,000 | $0 | $205,300 | $205,300 |
| 2012 | $131,600 | $55,000 | $0 | $0 | $0 |
| 2011 | $142,600 | $55,000 | $0 | $0 | $0 |
| 2010 | $141,800 | $55,000 | $0 | $0 | $0 |
| 2009 | $163,700 | $55,000 | $0 | $0 | $0 |
| 2008 | $163,700 | $55,000 | $0 | $0 | $0 |
| 2007 | $0 | $55,000 | $0 | $0 | $0 |
Deed and Sales History
| 1 | 09/11/2020 | SWD | STATUTORY WARRANTY DEED | GONZALEZ PEDRO JR & CRYSTAL A | FREEMAN JOHN | | | $345,000.00 | 139885 | 2020-09232 |
| 2 | 05/22/2015 | SWD | STATUTORY WARRANTY DEED | DUDENKOV VYACHESLAV V | GONZALEZ PEDRO JR & CRYSTAL A | | | $235,000.00 | 128029 | 2015-04352 |
| 3 | 05/19/2006 | WARRANTY D | WARRANTY DEED | TITUS CREEK DEVELOPMENT LLC | DUDENKOV, VYACHESLAV V | | | $52,000.00 | 110294 | 2006-05774 |
Payout Agreement
| No payout information available.. |