Property
Account |
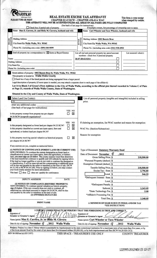
| Property ID: | 1484 | Abbreviated Legal Description: | LT 14 BLK 3 GREENS FIRST ADDN |
| Parcel Number: | 360720620314 | Agent Code: | |
| Type: | Real | | |
| Tax Area: | 1 - OL-140-F | Land Use Code | 11 |
| Open Space: | N | DFL | N |
| Historic Property: | N | Remodel Property: | N |
| Multi-Family Redevelopment: | N | | |
| Township: | 7 | Section: | 20 |
| Range: | 36 |
Location |
| Address: | 1002 BONNIE BRAE ST WA 99362 | Mapsco: | |
| Neighborhood: | A-SFR | Map ID: | |
| Neighborhood CD: | 513011 |
Owner |
| Name: | BLUES STUDENT RENTALS LLC | Owner ID: | 61826 |
| Mailing Address: | 228 CHERRY AVE MILTON FREEWATER, OR 97862 | % Ownership: | 100.0000000000% |
| | | Exemptions: | |
Taxes and Assessment Details
Property Tax Information as of
02/21/2026
Click on "Statement Details" to expand or collapse a tax statement.
* Please enter a valid date ** Please enter a valid date *
Statement Details |
| | TOTAL: | $0.00 | $0.00 | $0.00 | $0.00 | $0.00 | $0.00 |
|
| | $0.00 | $0.00 | $0.00 | $0.00 | $0.00 | $0.00 |
Values
| (+) Improvement Homesite Value: | + | $0 | |
| (+) Improvement Non-Homesite Value: | + | $418,640 | |
| (+) Land Homesite Value: | + | $0 | |
| (+) Land Non-Homesite Value: | + | $31,880 | |
| (+) Curr Use (HS): | + | $0 | $0 |
| (+) Curr Use (NHS): | + | $0 | $0 |
| | | -------------------------- | |
| (=) Market Value: | = | $450,520 | |
| (–) Productivity Loss: | – | $0 | |
| | | -------------------------- | |
| (=) Subtotal: | = | $450,520 | |
| (+) Senior Appraised Value: | + | $0 | |
| (+) Non-Senior Appraised Value: | + | $450,520 | |
| | | -------------------------- | |
| (=) Total Appraised Value: | = | $450,520 | |
| (–) Senior Exemption Loss: | – | $0 | |
| (–) Exemption Loss: | – | $0 | |
| | | -------------------------- | |
| (=) Taxable Value: | = | $450,520 | |
Taxing Jurisdiction
| Owner: | BLUES STUDENT RENTALS LLC | | |
| % Ownership: | 100.0000000000% | | |
| Total Value: | $450,520 | | |
| Tax Area: | 1 - OL-140-F |
| CERFD | CURRENT EXPENSE REFUND 010 | 0.0000000000 | $450,520 | $450,520 | $0.00 | | |
| CURREXP | CURRENT EXPENSE 010 | 1.0175366760 | $450,520 | $450,520 | $458.42 | | |
| HUMNSERV | HUMAN SERVICES 119 | 0.0250000000 | $450,520 | $450,520 | $11.26 | | |
| SLDREL | SOLDIERS RELIEF 121 | 0.0155990005 | $450,520 | $450,520 | $7.03 | | |
| EMERGSER | EMS 147 | 0.3792580840 | $450,520 | $450,520 | $170.86 | | |
| EMSRFD | EMS REFUND 147 | 0.0000000000 | $450,520 | $450,520 | $0.00 | | |
| PORTRFD | PORT REFUND 640 | 0.0000000000 | $450,520 | $450,520 | $0.00 | | |
| PORTWWGEN | PORT OF WW 640 | 0.2460186015 | $450,520 | $450,520 | $110.84 | | |
| SD140BOND | SD #140 BOND 764 | 0.8342371393 | $450,520 | $450,520 | $375.84 | | |
| SD140GEN | SD #140 GENERAL 760 | 2.0646500647 | $450,520 | $450,520 | $930.17 | | |
| ST2 | STATE SCHOOL PART 2 600 | 0.8131451643 | $450,520 | $450,520 | $366.34 | | |
| STATESCHL | STATE SCHOOL 600 | 1.5158548041 | $450,520 | $450,520 | $682.92 | | |
| STREFUND | STATE REFUND LEVY 603 | 0.0000000000 | $450,520 | $450,520 | $0.00 | | |
| CWWBOND | C OF WW BOND 643 | 0.2760494372 | $450,520 | $450,520 | $124.37 | | |
| CWWGEN | CITY OF WW 631 | 1.6100204973 | $450,520 | $450,520 | $725.35 | | |
| CWWRFD | CITY OF WALLA WALLA REFUND 631 | 0.0000000000 | $450,520 | $450,520 | $0.00 | | |
| | Total Tax Rate: | 8.7973694689 | | | | | |
| | | | | Taxes w/Current Exemptions: | $3,963.40 | | |
| | | | | Taxes w/o Exemptions: | $3,963.40 | | |
Improvement / Building
| Improvement #1: | RESIDENTIAL | State Code: | 11 | 2304.0 sqft | Value: | $418,640 |
| Exterior Wall: | HARDBOARD | Heating/Cooling: | WARM & COOLED AIR | | Number of Bathrooms: | 3.5 | Number of Bedrooms: | 4 | | Plumbing: | 16 | Roof Covering: | COMP SHINGLE |
|
| | Type | Description | Class CD | Sub Class CD | Year Built | Area |
| | MA | Main Area | 2 | 40 | 2002 | 2304.0 |
| | SI1 | SITE IMPROVEMENT | 2 | 40 | 2002 | 2.5 |
| | UPFL | Upper Floor (included in main area) | 2 | 40 | 2002 | 1436.0 |
| | BIG | Built In Garage | 2 | 40 | 2002 | 568.0 |
| | GFP | GAS FIREPLACE | 2 | 40 | 2002 | 1.0 |
| | RCD | WOOD DECK W/ROOF, CEILED | 2 | 40 | 2002 | 162.0 |
| | WOD | Wood Deck | 2 | 40 | 2002 | 80.0 |
Sketch
Property Image
Land
| 1 | RES 1 | Converted: Residential | 0.1171 | 5100.00 | 0.00 | 0.00 | 1.00 | $31,880 | $0 |
Roll Value History
| 2026 | N/A | N/A | N/A | N/A | N/A |
| 2025 | $442,000 | $51,000 | $0 | $493,000 | $493,000 |
| 2024 | $420,950 | $51,000 | $0 | $471,950 | $471,950 |
| 2023 | $418,640 | $31,880 | $0 | $450,520 | $450,520 |
| 2022 | $418,640 | $31,880 | $0 | $450,520 | $450,520 |
| 2021 | $299,030 | $31,880 | $0 | $330,910 | $330,910 |
| 2020 | $239,220 | $31,880 | $0 | $271,100 | $271,100 |
| 2019 | $239,220 | $31,880 | $0 | $271,100 | $271,100 |
| 2018 | $239,220 | $31,880 | $0 | $271,100 | $271,100 |
| 2017 | $230,780 | $20,400 | $0 | $251,180 | $251,180 |
| 2016 | $209,800 | $20,400 | $0 | $230,200 | $230,200 |
| 2015 | $209,800 | $20,400 | $0 | $230,200 | $230,200 |
| 2014 | $209,800 | $20,400 | $0 | $230,200 | $230,200 |
| 2013 | $209,800 | $20,400 | $0 | $230,200 | $230,200 |
| 2012 | $206,700 | $20,400 | $0 | $0 | $0 |
| 2011 | $195,900 | $20,400 | $0 | $0 | $0 |
| 2010 | $185,600 | $20,400 | $0 | $0 | $0 |
| 2009 | $208,500 | $20,400 | $0 | $0 | $0 |
| 2008 | $208,500 | $20,400 | $0 | $0 | $0 |
| 2007 | $208,500 | $20,400 | $0 | $0 | $0 |
Deed and Sales History
| 1 | 09/15/2017 | BARGAIN & | BARGAIN & SALE DEED | WHEELER CARL & TARA | BLUES STUDENT RENTALS LLC | | | $0.00 | 133294 | 2017-07641 |
| 2 | 11/15/2012 | WARRANTY D | WARRANTY DEED | CARRERA, MAX E JR & HOLLY M | WHEELER, CARL & TARA | | | $218,500.00 | 122995 | 2012-10077 |
| 3 | 03/17/2003 | WARRANTY D | WARRANTY DEED | BARBER, DAVID & TERRY | CARRERA, MAX E JR & HOLLY M | | | $180,000.00 | 101602 | 2003-03575 |
| 4 | 10/23/2000 | WARRANTY D | WARRANTY DEED | | | | | $16,000.00 | 96048 | 3040-010130 |
Payout Agreement
| No payout information available.. |