Property
Account |
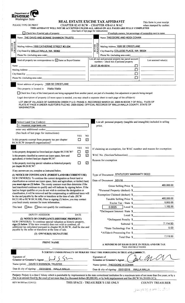
| Property ID: | 14674 | Abbreviated Legal Description: | VILLAGES OF GARRISON CREEK P.U.D. PHASE X LOT 268 |
| Parcel Number: | 350736490014 | Agent Code: | |
| Type: | Real | | |
| Tax Area: | 77 - CP-250-F | Land Use Code | 11 |
| Open Space: | N | DFL | N |
| Historic Property: | N | Remodel Property: | N |
| Multi-Family Redevelopment: | N | | |
| Township: | 7 | Section: | 36 |
| Range: | 35 |
Location |
| Address: | 1026 SE CRESTLANE DR WA 99324 | Mapsco: | |
| Neighborhood: | G SFR | Map ID: | |
| Neighborhood CD: | 114011 |
Owner |
| Name: | CASSETTO KIMBERLY S & JONATHAN M | Owner ID: | 65181 |
| Mailing Address: | 1026 SE CRESTLANE DR COLLEGE PLACE, WA 99324 | % Ownership: | 100.0000000000% |
| | | Exemptions: | |
Taxes and Assessment Details
Property Tax Information as of
02/21/2026
Click on "Statement Details" to expand or collapse a tax statement.
* Please enter a valid date ** Please enter a valid date *
Statement Details |
| | TOTAL: | $0.00 | $0.00 | $0.00 | $0.00 | $0.00 | $0.00 |
|
| | $0.00 | $0.00 | $0.00 | $0.00 | $0.00 | $0.00 |
Values
| (+) Improvement Homesite Value: | + | $0 | |
| (+) Improvement Non-Homesite Value: | + | $548,290 | |
| (+) Land Homesite Value: | + | $0 | |
| (+) Land Non-Homesite Value: | + | $100,000 | |
| (+) Curr Use (HS): | + | $0 | $0 |
| (+) Curr Use (NHS): | + | $0 | $0 |
| | | -------------------------- | |
| (=) Market Value: | = | $648,290 | |
| (–) Productivity Loss: | – | $0 | |
| | | -------------------------- | |
| (=) Subtotal: | = | $648,290 | |
| (+) Senior Appraised Value: | + | $0 | |
| (+) Non-Senior Appraised Value: | + | $648,290 | |
| | | -------------------------- | |
| (=) Total Appraised Value: | = | $648,290 | |
| (–) Senior Exemption Loss: | – | $0 | |
| (–) Exemption Loss: | – | $0 | |
| | | -------------------------- | |
| (=) Taxable Value: | = | $648,290 | |
Taxing Jurisdiction
| Owner: | CASSETTO KIMBERLY S & JONATHAN M | | |
| % Ownership: | 100.0000000000% | | |
| Total Value: | $648,290 | | |
| Tax Area: | 77 - CP-250-F |
| CERFD | CURRENT EXPENSE REFUND 010 | 0.0000000000 | $648,290 | $648,290 | $0.00 | | |
| CURREXP | CURRENT EXPENSE 010 | 1.0175366760 | $648,290 | $648,290 | $659.66 | | |
| HUMNSERV | HUMAN SERVICES 119 | 0.0250000000 | $648,290 | $648,290 | $16.21 | | |
| SLDREL | SOLDIERS RELIEF 121 | 0.0155990005 | $648,290 | $648,290 | $10.11 | | |
| COLLPLBOND | C OF CP BOND 644 | 0.4374241808 | $648,290 | $648,290 | $283.58 | | |
| COLLPLGEN | CITY OF CP 632 | 1.4453819216 | $648,290 | $648,290 | $937.03 | | |
| EMERGSER | EMS 147 | 0.3792580840 | $648,290 | $648,290 | $245.87 | | |
| EMSRFD | EMS REFUND 147 | 0.0000000000 | $648,290 | $648,290 | $0.00 | | |
| RURALLIB | RURAL LIBRARY 623 | 0.3710609029 | $648,290 | $648,290 | $240.56 | | |
| PORTRFD | PORT REFUND 640 | 0.0000000000 | $648,290 | $648,290 | $0.00 | | |
| PORTWWGEN | PORT OF WW 640 | 0.2460186015 | $648,290 | $648,290 | $159.49 | | |
| SD250BOND | SD #250 BOND 773 | 1.4560608159 | $648,290 | $648,290 | $943.95 | | |
| SD250GEN | SD #250 GENERAL 770 | 2.3880724087 | $648,290 | $648,290 | $1,548.16 | | |
| ST2 | STATE SCHOOL PART 2 600 | 0.8131451643 | $648,290 | $648,290 | $527.15 | | |
| STATESCHL | STATE SCHOOL 600 | 1.5158548041 | $648,290 | $648,290 | $982.71 | | |
| STREFUND | STATE REFUND LEVY 603 | 0.0000000000 | $648,290 | $648,290 | $0.00 | | |
| | Total Tax Rate: | 10.1104125603 | | | | | |
| | | | | Taxes w/Current Exemptions: | $6,554.48 | | |
| | | | | Taxes w/o Exemptions: | $6,554.48 | | |
Improvement / Building
| Improvement #1: | RESIDENTIAL | State Code: | 11 | 2166.0 sqft | Value: | $548,290 |
| Exterior Wall: | SIDING | Heating/Cooling: | WARM & COOLED AIR | | Number of Bathrooms: | 3.5 | Number of Bedrooms: | 4 | | Plumbing: | 18 | Roof Covering: | COMP SHINGLE |
|
| | Type | Description | Class CD | Sub Class CD | Year Built | Area |
| | MA | Main Area | 1 | 55 | 2006 | 2166.0 |
| | SI1 | SITE IMPROVEMENT | 1 | 55 | 2006 | 6.5 |
| | BASE | BASEMENT | 1 | 55 | 2006 | 2402.0 |
| | BPF | BASEMENT -PARTITIONED FINISH | 1 | 55 | 2006 | 2122.0 |
| | ATG | Attached Garage | 1 | 55 | 2006 | 592.0 |
| | BLW | WOOD BALCONIES | 1 | 55 | 2006 | 168.0 |
| | PRC | PORCH W STEPS, ROOF,CEILED | 1 | 55 | 2006 | 60.0 |
| | GFP | GAS FIREPLACE | 1 | 55 | 2006 | 1.0 |
Sketch
Property Image
Land
| 1 | RES 1 | Converted: Residential | 0.1811 | 7890.00 | 0.00 | 0.00 | 1.00 | $100,000 | $0 |
Roll Value History
| 2026 | N/A | N/A | N/A | N/A | N/A |
| 2025 | $477,010 | $175,000 | $0 | $652,010 | $652,010 |
| 2024 | $548,290 | $100,000 | $0 | $648,290 | $648,290 |
| 2023 | $548,290 | $100,000 | $0 | $648,290 | $648,290 |
| 2022 | $522,180 | $100,000 | $0 | $622,180 | $622,180 |
| 2021 | $454,070 | $100,000 | $0 | $554,070 | $554,070 |
| 2020 | $378,390 | $100,000 | $0 | $478,390 | $478,390 |
| 2019 | $413,390 | $65,000 | $0 | $478,390 | $478,390 |
| 2018 | $393,700 | $65,000 | $0 | $458,700 | $458,700 |
| 2017 | $393,700 | $65,000 | $0 | $458,700 | $458,700 |
| 2016 | $393,700 | $65,000 | $0 | $458,700 | $458,700 |
| 2015 | $393,700 | $65,000 | $0 | $458,700 | $458,700 |
| 2014 | $393,700 | $65,000 | $0 | $458,700 | $458,700 |
| 2013 | $393,700 | $65,000 | $0 | $458,700 | $458,700 |
| 2012 | $408,200 | $100,000 | $0 | $0 | $0 |
| 2011 | $464,700 | $100,000 | $0 | $0 | $0 |
| 2010 | $464,700 | $100,000 | $0 | $0 | $0 |
| 2009 | $494,400 | $100,000 | $0 | $0 | $0 |
| 2008 | $520,700 | $75,000 | $0 | $0 | $0 |
| 2007 | $125,000 | $75,000 | $0 | $0 | $0 |
Deed and Sales History
| 1 | 05/29/2019 | SWD | STATUTORY WARRANTY DEED | COHAN THEODORE W & HEIDI R | CASSETTO KIMBERLY S & JONATHAN M | | | $520,000.00 | 136958 | 2019-03635 |
| 2 | 04/01/2016 | SWD | STATUTORY WARRANTY DEED | SHANNON DAVID S TRUST | COHAN THEODORE W & HEIDI R | | | $465,000.00 | 129939 | 2016-02401 |
| 3 | 12/15/2006 | WARRANTY D | WARRANTY DEED | PHASE FIVE DEVELOPMENT LLC | SHANNON, DAVID S TRUST | | | $200,000.00 | 111910 | 2006-14974 |
Payout Agreement
| No payout information available.. |