Property
Account |
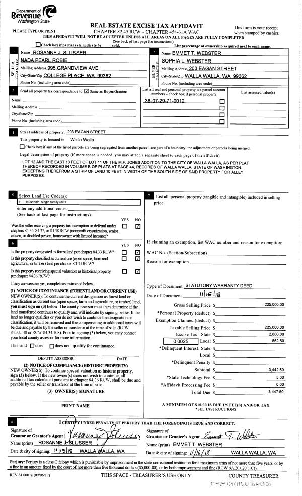
| Property ID: | 14664 | Abbreviated Legal Description: | JONES LOT 12 & E 13' OF LOT 11 LESS ALLEY |
| Parcel Number: | 360729710012 | Agent Code: | |
| Type: | Real | | |
| Tax Area: | 1 - OL-140-F | Land Use Code | 11 |
| Open Space: | N | DFL | N |
| Historic Property: | N | Remodel Property: | N |
| Multi-Family Redevelopment: | N | | |
| Township: | 7 | Section: | 29 |
| Range: | 36 |
Location |
| Address: | 203 EAGAN ST WA 99362 | Mapsco: | |
| Neighborhood: | Fair Inferior Res | Map ID: | |
| Neighborhood CD: | 512111 |
Owner |
| Name: | WEBSTER EMMET T & SOPHIA L | Owner ID: | 64280 |
| Mailing Address: | 203 EAGAN ST WALLA WALLA, WA 99362 | % Ownership: | 100.0000000000% |
| | | Exemptions: | |
Taxes and Assessment Details
Property Tax Information as of
04/19/2026
Click on "Statement Details" to expand or collapse a tax statement.
* Please enter a valid date ** Please enter a valid date *
Statement Details |
| | TOTAL: | $0.00 | $0.00 | $0.00 | $0.00 | $0.00 | $0.00 |
|
| | $0.00 | $0.00 | $0.00 | $0.00 | $0.00 | $0.00 |
Values
| (+) Improvement Homesite Value: | + | $0 | |
| (+) Improvement Non-Homesite Value: | + | $350,060 | |
| (+) Land Homesite Value: | + | $0 | |
| (+) Land Non-Homesite Value: | + | $36,230 | |
| (+) Curr Use (HS): | + | $0 | $0 |
| (+) Curr Use (NHS): | + | $0 | $0 |
| | | -------------------------- | |
| (=) Market Value: | = | $386,290 | |
| (–) Productivity Loss: | – | $0 | |
| | | -------------------------- | |
| (=) Subtotal: | = | $386,290 | |
| (+) Senior Appraised Value: | + | $0 | |
| (+) Non-Senior Appraised Value: | + | $386,290 | |
| | | -------------------------- | |
| (=) Total Appraised Value: | = | $386,290 | |
| (–) Senior Exemption Loss: | – | $0 | |
| (–) Exemption Loss: | – | $0 | |
| | | -------------------------- | |
| (=) Taxable Value: | = | $386,290 | |
Taxing Jurisdiction
| Owner: | WEBSTER EMMET T & SOPHIA L | | |
| % Ownership: | 100.0000000000% | | |
| Total Value: | $386,290 | | |
| Tax Area: | 1 - OL-140-F |
| CERFD | CURRENT EXPENSE REFUND 010 | 0.0000000000 | $386,290 | $386,290 | $0.00 | | |
| CURREXP | CURRENT EXPENSE 010 | 1.0175366760 | $386,290 | $386,290 | $393.06 | | |
| HUMNSERV | HUMAN SERVICES 119 | 0.0250000000 | $386,290 | $386,290 | $9.66 | | |
| SLDREL | SOLDIERS RELIEF 121 | 0.0155990005 | $386,290 | $386,290 | $6.03 | | |
| EMERGSER | EMS 147 | 0.3792580840 | $386,290 | $386,290 | $146.50 | | |
| EMSRFD | EMS REFUND 147 | 0.0000000000 | $386,290 | $386,290 | $0.00 | | |
| PORTRFD | PORT REFUND 640 | 0.0000000000 | $386,290 | $386,290 | $0.00 | | |
| PORTWWGEN | PORT OF WW 640 | 0.2460186015 | $386,290 | $386,290 | $95.03 | | |
| SD140BOND | SD #140 BOND 764 | 0.8342371393 | $386,290 | $386,290 | $322.26 | | |
| SD140GEN | SD #140 GENERAL 760 | 2.0646500647 | $386,290 | $386,290 | $797.55 | | |
| ST2 | STATE SCHOOL PART 2 600 | 0.8131451643 | $386,290 | $386,290 | $314.11 | | |
| STATESCHL | STATE SCHOOL 600 | 1.5158548041 | $386,290 | $386,290 | $585.56 | | |
| STREFUND | STATE REFUND LEVY 603 | 0.0000000000 | $386,290 | $386,290 | $0.00 | | |
| CWWBOND | C OF WW BOND 643 | 0.2760494372 | $386,290 | $386,290 | $106.64 | | |
| CWWGEN | CITY OF WW 631 | 1.6100204973 | $386,290 | $386,290 | $621.93 | | |
| CWWRFD | CITY OF WALLA WALLA REFUND 631 | 0.0000000000 | $386,290 | $386,290 | $0.00 | | |
| | Total Tax Rate: | 8.7973694689 | | | | | |
| | | | | Taxes w/Current Exemptions: | $3,398.33 | | |
| | | | | Taxes w/o Exemptions: | $3,398.33 | | |
Improvement / Building
| Improvement #1: | RESIDENTIAL | State Code: | 11 | 2828.0 sqft | Value: | $350,060 |
| Exterior Wall: | SIDING | Heating/Cooling: | FORCED AIR | | Number of Bathrooms: | 3 | Number of Bedrooms: | 5 | | Plumbing: | 14 | Roof Covering: | COMP SHINGLE |
|
| | Type | Description | Class CD | Sub Class CD | Year Built | Area |
| | MA | Main Area | 4 | 30 | 1900 | 2828.0 |
| | UPFL | Upper Floor (included in main area) | 4 | 30 | 1900 | 945.0 |
| | SI1 | SITE IMPROVEMENT | 4 | 30 | 1900 | 4.5 |
| | BASE | BASEMENT | 4 | 30 | 1900 | 860.0 |
| | BPF | BASEMENT -PARTITIONED FINISH | 4 | 30 | 1900 | 620.0 |
| | S1F | Single One Story Fireplace | 4 | 30 | 1900 | 1.0 |
| | RPO | OPEN PORCH W/ROOF | 4 | 30 | 1900 | 15.0 |
| | RCD | WOOD DECK W/ROOF, CEILED | 4 | 30 | 1900 | 248.0 |
| | DTG | Detached Garage | 4 | 30 | 1900 | 300.0 |
Sketch
Property Image
Land
| 1 | RES 1 | Converted: Residential | 0.1584 | 6900.00 | 0.00 | 0.00 | 1.00 | $36,230 | $0 |
Roll Value History
| 2026 | N/A | N/A | N/A | N/A | N/A |
| 2025 | $319,300 | $62,100 | $0 | $381,400 | $381,400 |
| 2024 | $319,300 | $62,100 | $0 | $381,400 | $381,400 |
| 2023 | $350,060 | $36,230 | $0 | $386,290 | $386,290 |
| 2022 | $250,040 | $36,230 | $0 | $286,270 | $286,270 |
| 2021 | $227,310 | $36,230 | $0 | $263,540 | $263,540 |
| 2020 | $174,850 | $36,230 | $0 | $211,080 | $211,080 |
| 2019 | $174,850 | $36,230 | $0 | $211,080 | $211,080 |
| 2018 | $145,710 | $36,230 | $0 | $181,940 | $181,940 |
| 2017 | $116,200 | $41,400 | $0 | $157,600 | $157,600 |
| 2016 | $116,200 | $41,400 | $0 | $157,600 | $157,600 |
| 2015 | $116,200 | $41,400 | $0 | $157,600 | $157,600 |
| 2014 | $116,200 | $41,400 | $0 | $157,600 | $157,600 |
| 2013 | $116,200 | $41,400 | $0 | $157,600 | $157,600 |
| 2012 | $111,200 | $41,400 | $0 | $0 | $0 |
| 2011 | $149,300 | $41,400 | $0 | $0 | $0 |
| 2010 | $149,300 | $41,400 | $0 | $0 | $0 |
| 2009 | $82,400 | $20,700 | $0 | $0 | $0 |
| 2008 | $82,400 | $20,700 | $0 | $0 | $0 |
| 2007 | $57,900 | $6,900 | $0 | $0 | $0 |
Deed and Sales History
| 1 | 07/11/2022 | AGREEMENT | AGREEMENT | WEBSTER EMMET T & SOPHIA L | HOMETAP INVESTMENT PARTNERS III SPV LLC | | | $0.00 | 144280 | 2022-05840 |
| 2 | 11/16/2018 | SWD | STATUTORY WARRANTY DEED | SLUSSER ROSANNE J | WEBSTER EMMET T & SOPHIA L | | | $225,000.00 | 135959 | 2018-09540 |
| 3 | 09/27/2005 | QCD | QUIT CLAIM DEED | ROBIE, NADA PEARL | SLUSSER, ROSANNE J | | | | 108591 | 2005-12013 |
| 4 | 04/30/1999 | WARRANTY D | WARRANTY DEED | | | | | $120,000.00 | 92665 | 2839-905290 |
Payout Agreement
| No payout information available.. |