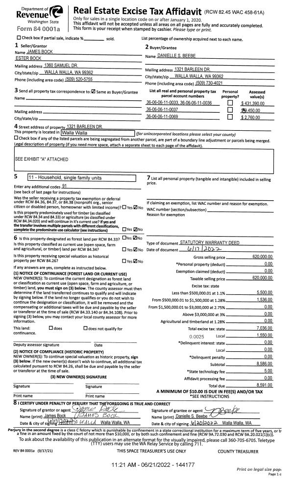
Property
Account |
| Property ID: | 1466 | Abbreviated Legal Description: | 36 06 06 TAX 28B REWRITTEN |
| Parcel Number: | 360606110036 | Agent Code: | |
| Type: | Real | | |
| Tax Area: | 101 - 140-4 | Land Use Code | 11 |
| Open Space: | N | DFL | N |
| Historic Property: | N | Remodel Property: | N |
| Multi-Family Redevelopment: | N | | |
| Township: | 6 | Section: | 6 |
| Range: | 36 |
Location |
| Address: | 1321 BARLEEN DR WA 99362 | Mapsco: | |
| Neighborhood: | G SFR Rural/City Inf | Map ID: | |
| Neighborhood CD: | 114012 |
Owner |
| Name: | BEEBE DANIELLE S | Owner ID: | 61697 |
| Mailing Address: | 1321 BARLEEN DR WALLA WALLA, WA 99362 | % Ownership: | 100.0000000000% |
| | | Exemptions: | |
Taxes and Assessment Details
Property Tax Information as of
02/21/2026
Click on "Statement Details" to expand or collapse a tax statement.
* Please enter a valid date ** Please enter a valid date *
Statement Details |
| | TOTAL: | $0.00 | $0.00 | $0.00 | $0.00 | $0.00 | $0.00 |
|
| | $0.00 | $0.00 | $0.00 | $0.00 | $0.00 | $0.00 |
Values
| (+) Improvement Homesite Value: | + | $0 | |
| (+) Improvement Non-Homesite Value: | + | $461,700 | |
| (+) Land Homesite Value: | + | $0 | |
| (+) Land Non-Homesite Value: | + | $157,640 | |
| (+) Curr Use (HS): | + | $0 | $0 |
| (+) Curr Use (NHS): | + | $0 | $0 |
| | | -------------------------- | |
| (=) Market Value: | = | $619,340 | |
| (–) Productivity Loss: | – | $0 | |
| | | -------------------------- | |
| (=) Subtotal: | = | $619,340 | |
| (+) Senior Appraised Value: | + | $0 | |
| (+) Non-Senior Appraised Value: | + | $619,340 | |
| | | -------------------------- | |
| (=) Total Appraised Value: | = | $619,340 | |
| (–) Senior Exemption Loss: | – | $0 | |
| (–) Exemption Loss: | – | $0 | |
| | | -------------------------- | |
| (=) Taxable Value: | = | $619,340 | |
Taxing Jurisdiction
| Owner: | BEEBE DANIELLE S | | |
| % Ownership: | 100.0000000000% | | |
| Total Value: | $619,340 | | |
| Tax Area: | 101 - 140-4 |
| CERFD | CURRENT EXPENSE REFUND 010 | 0.0000000000 | $619,340 | $619,340 | $0.00 | | |
| CURREXP | CURRENT EXPENSE 010 | 0.9851088983 | $619,340 | $619,340 | $610.12 | | |
| HUMNSERV | HUMAN SERVICES 119 | 0.0250000000 | $619,340 | $619,340 | $15.48 | | |
| SLDREL | SOLDIERS RELIEF 121 | 0.0155990000 | $619,340 | $619,340 | $9.66 | | |
| EMERGSER | EMS 147 | 0.3676811629 | $619,340 | $619,340 | $227.72 | | |
| EMSRFD | EMS REFUND 147 | 0.0000000000 | $619,340 | $619,340 | $0.00 | | |
| FD4EXP | FD #4 EXPENSE 686 | 1.2367913128 | $619,340 | $619,340 | $765.99 | | |
| RLBRFD | RURAL LIBRARY REFUND 623 | 0.0000000000 | $619,340 | $619,340 | $0.00 | | |
| RURALLIB | RURAL LIBRARY 623 | 0.3601547782 | $619,340 | $619,340 | $223.06 | | |
| PORTRFD | PORT REFUND 640 | 0.0000000000 | $619,340 | $619,340 | $0.00 | | |
| PORTWWGEN | PORT OF WW 640 | 0.2344301070 | $619,340 | $619,340 | $145.19 | | |
| SD140BOND | SD #140 BOND 764 | 0.8032434458 | $619,340 | $619,340 | $497.48 | | |
| SD140CAP | SD #140 CAP 762 | 0.3840034221 | $619,340 | $619,340 | $237.83 | | |
| SD140GEN | SD #140 GENERAL 760 | 2.4999999996 | $619,340 | $619,340 | $1,548.35 | | |
| ST2 | STATE SCHOOL PART 2 600 | 0.8853714103 | $619,340 | $619,340 | $548.35 | | |
| STATESCHL | STATE SCHOOL 600 | 1.6424571473 | $619,340 | $619,340 | $1,017.24 | | |
| STREFUND | STATE REFUND LEVY 603 | 0.0000000000 | $619,340 | $619,340 | $0.00 | | |
| COROAD | COUNTY ROAD 115 | 1.6137667997 | $619,340 | $619,340 | $999.47 | | |
| CRPRD | COUNTY ROAD REFUND 115 | 0.0000000000 | $619,340 | $619,340 | $0.00 | | |
| | Total Tax Rate: | 11.0536074840 | | | | | |
| | | | | Taxes w/Current Exemptions: | $6,845.94 | | |
| | | | | Taxes w/o Exemptions: | $6,845.94 | | |
Improvement / Building
| Improvement #1: | RESIDENTIAL | State Code: | 11 | 1896.0 sqft | Value: | $461,700 |
| Exterior Wall: | SIDING | Heating/Cooling: | FORCED AIR | | Number of Bathrooms: | 3 | Number of Bedrooms: | 3 | | Plumbing: | 12 | Roof Covering: | COMP SHINGLE |
|
| | Type | Description | Class CD | Sub Class CD | Year Built | Area |
| | MA | Main Area | 1 | 30 | 1964 | 1896.0 |
| | DTG | Detached Garage | 1 | 30 | 0 | 672.0 |
| | RPC | OPEN PORCH W/ROOF , CEILED | 1 | 30 | 0 | 56.0 |
| | SI1 | SITE IMPROVEMENT | 1 | 30 | 0 | 4.0 |
| | BASE | BASEMENT | 1 | 30 | 1964 | 1848.0 |
| | BPF | BASEMENT -PARTITIONED FINISH | 1 | 30 | 1964 | 900.0 |
| | ATG | Attached Garage | 1 | 30 | 0 | 624.0 |
| | BLW | WOOD BALCONIES | 1 | 30 | 0 | 442.0 |
| | D2F | Double 2 Story Fireplace | 1 | 30 | 0 | 1.0 |
Sketch
Property Image
Land
| 1 | RES 1 | Converted: Residential | 0.5500 | 23958.00 | 0.00 | 0.00 | 1.00 | $157,640 | $0 |
Roll Value History
| 2026 | N/A | N/A | N/A | N/A | N/A |
| 2025 | $461,700 | $157,640 | $0 | $619,340 | $619,340 |
| 2024 | $513,000 | $107,090 | $0 | $620,090 | $620,090 |
| 2023 | $513,000 | $107,090 | $0 | $620,090 | $620,090 |
| 2022 | $443,540 | $107,090 | $0 | $550,630 | $550,630 |
| 2021 | $316,810 | $107,090 | $0 | $423,900 | $423,900 |
| 2020 | $264,010 | $107,090 | $0 | $371,100 | $371,100 |
| 2019 | $290,400 | $80,700 | $0 | $371,100 | $371,100 |
| 2018 | $242,000 | $80,700 | $0 | $322,700 | $322,700 |
| 2017 | $193,600 | $80,700 | $0 | $274,300 | $274,300 |
| 2016 | $193,600 | $80,700 | $0 | $274,300 | $274,300 |
| 2015 | $193,600 | $80,700 | $0 | $274,300 | $274,300 |
| 2014 | $193,600 | $80,700 | $0 | $274,300 | $274,300 |
| 2013 | $193,600 | $80,700 | $0 | $274,300 | $274,300 |
| 2012 | $193,600 | $80,700 | $0 | $0 | $0 |
| 2011 | $168,700 | $105,600 | $0 | $0 | $0 |
| 2010 | $168,700 | $105,600 | $0 | $0 | $0 |
| 2009 | $199,200 | $105,600 | $0 | $0 | $0 |
| 2008 | $209,200 | $95,600 | $0 | $0 | $0 |
| 2007 | $180,800 | $36,500 | $0 | $0 | $0 |
Deed and Sales History
| 1 | 06/21/2022 | SWD | STATUTORY WARRANTY DEED | BOCK JAMES & ESTER | BEEBE DANIELLE S | | 4-PARCELS | $620,000.00 | 144177 | 2022-05207 |
|   | |
| 2 | 08/27/2002 | QCD | QUIT CLAIM DEED | BOCK, JAMES | BOCK JAMES & ESTER | | | | 100242 | 100242- |
| 3 | 08/01/1965 | WARRANTY D | WARRANTY DEED | | | | | $37,000.00 | 0 | 3150-469208 |
Payout Agreement
| No payout information available.. |