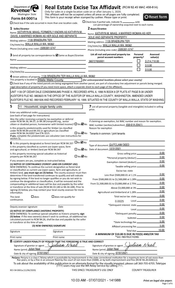
Property
Account |
| Property ID: | 14606 | Abbreviated Legal Description: | CEDAR DALE AMENDED PHASE 3 UNIT #1135 PARCEL A OF AMENDED PLAT |
| Parcel Number: | 360727650001 | Agent Code: | |
| Type: | Real | | |
| Tax Area: | 105 - 140-F-4 | Land Use Code | 11 |
| Open Space: | N | DFL | N |
| Historic Property: | N | Remodel Property: | N |
| Multi-Family Redevelopment: | N | | |
| Township: | 7 | Section: | 27 |
| Range: | 36 |
Location |
| Address: | 1135 BRAEBURN TER WALLA WALLA, WA 99362 | Mapsco: | |
| Neighborhood: | G Res | Map ID: | |
| Neighborhood CD: | 614011 |
Owner |
| Name: | MAAG KATHRYN M | Owner ID: | 69769 |
| Mailing Address: | 1135 BRAEBURN TER WALLA WALLA, WA 99362 | % Ownership: | 100.0000000000% |
| | | Exemptions: | |
Taxes and Assessment Details
Property Tax Information as of
02/21/2026
Click on "Statement Details" to expand or collapse a tax statement.
* Please enter a valid date ** Please enter a valid date *
Statement Details |
| | TOTAL: | $0.00 | $0.00 | $0.00 | $0.00 | $0.00 | $0.00 |
|
| | $0.00 | $0.00 | $0.00 | $0.00 | $0.00 | $0.00 |
Values
| (+) Improvement Homesite Value: | + | $0 | |
| (+) Improvement Non-Homesite Value: | + | $275,090 | |
| (+) Land Homesite Value: | + | $0 | |
| (+) Land Non-Homesite Value: | + | $75,000 | |
| (+) Curr Use (HS): | + | $0 | $0 |
| (+) Curr Use (NHS): | + | $0 | $0 |
| | | -------------------------- | |
| (=) Market Value: | = | $350,090 | |
| (–) Productivity Loss: | – | $0 | |
| | | -------------------------- | |
| (=) Subtotal: | = | $350,090 | |
| (+) Senior Appraised Value: | + | $0 | |
| (+) Non-Senior Appraised Value: | + | $350,090 | |
| | | -------------------------- | |
| (=) Total Appraised Value: | = | $350,090 | |
| (–) Senior Exemption Loss: | – | $0 | |
| (–) Exemption Loss: | – | $0 | |
| | | -------------------------- | |
| (=) Taxable Value: | = | $350,090 | |
Taxing Jurisdiction
| Owner: | MAAG KATHRYN M | | |
| % Ownership: | 100.0000000000% | | |
| Total Value: | $350,090 | | |
| Tax Area: | 105 - 140-F-4 |
| CERFD | CURRENT EXPENSE REFUND 010 | 0.0000000000 | $350,090 | $350,090 | $0.00 | | |
| CURREXP | CURRENT EXPENSE 010 | 1.0175366760 | $350,090 | $350,090 | $356.23 | | |
| HUMNSERV | HUMAN SERVICES 119 | 0.0250000000 | $350,090 | $350,090 | $8.75 | | |
| SLDREL | SOLDIERS RELIEF 121 | 0.0155990005 | $350,090 | $350,090 | $5.46 | | |
| EMERGSER | EMS 147 | 0.3792580840 | $350,090 | $350,090 | $132.77 | | |
| EMSRFD | EMS REFUND 147 | 0.0000000000 | $350,090 | $350,090 | $0.00 | | |
| FD4EXP | FD #4 EXPENSE 686 | 0.8836993059 | $350,090 | $350,090 | $309.37 | | |
| RLBRFD | RURAL LIBRARY REFUND 623 | 0.0000000000 | $350,090 | $350,090 | $0.00 | | |
| RURALLIB | RURAL LIBRARY 623 | 0.3710609029 | $350,090 | $350,090 | $129.90 | | |
| PORTRFD | PORT REFUND 640 | 0.0000000000 | $350,090 | $350,090 | $0.00 | | |
| PORTWWGEN | PORT OF WW 640 | 0.2460186015 | $350,090 | $350,090 | $86.13 | | |
| SD140BOND | SD #140 BOND 764 | 0.8342371393 | $350,090 | $350,090 | $292.06 | | |
| SD140GEN | SD #140 GENERAL 760 | 2.0646500647 | $350,090 | $350,090 | $722.81 | | |
| ST2 | STATE SCHOOL PART 2 600 | 0.8131451643 | $350,090 | $350,090 | $284.67 | | |
| STATESCHL | STATE SCHOOL 600 | 1.5158548041 | $350,090 | $350,090 | $530.69 | | |
| STREFUND | STATE REFUND LEVY 603 | 0.0000000000 | $350,090 | $350,090 | $0.00 | | |
| COROAD | COUNTY ROAD 115 | 1.6549953990 | $350,090 | $350,090 | $579.40 | | |
| CRPRD | COUNTY ROAD REFUND 115 | 0.0000000000 | $350,090 | $350,090 | $0.00 | | |
| | Total Tax Rate: | 9.8210551422 | | | | | |
| | | | | Taxes w/Current Exemptions: | $3,438.24 | | |
| | | | | Taxes w/o Exemptions: | $3,438.24 | | |
Improvement / Building
| Improvement #1: | RESIDENTIAL | State Code: | 11 | 1368.0 sqft | Value: | $275,090 |
| Exterior Wall: | PLYWOOD | Heating/Cooling: | WARM & COOLED AIR | | Number of Bathrooms: | 2 | Number of Bedrooms: | 2 | | Plumbing: | 10 | Roof Covering: | COMP SHINGLE |
|
| | Type | Description | Class CD | Sub Class CD | Year Built | Area |
| | MA | Main Area | 1 | 30 | 1998 | 1368.0 |
| | SI1 | SITE IMPROVEMENT | 1 | 30 | 1998 | 2.0 |
| | S1F | Single One Story Fireplace | 1 | 30 | 1998 | 1.0 |
| | OSP | Open | 1 | 30 | 1998 | 16.0 |
| | ATG | Attached Garage | 1 | 30 | 1998 | 308.0 |
Sketch
Property Image
Land
| 1 | RES 1 | Converted: Residential | 0.1321 | 5756.00 | 0.00 | 0.00 | 1.00 | $75,000 | $0 |
Roll Value History
| 2026 | N/A | N/A | N/A | N/A | N/A |
| 2025 | $248,360 | $125,000 | $0 | $373,360 | $373,360 |
| 2024 | $275,090 | $75,000 | $0 | $350,090 | $350,090 |
| 2023 | $275,090 | $75,000 | $0 | $350,090 | $350,090 |
| 2022 | $261,990 | $65,000 | $0 | $326,990 | $326,990 |
| 2021 | $209,590 | $65,000 | $0 | $274,590 | $274,590 |
| 2020 | $149,710 | $65,000 | $0 | $214,710 | $214,710 |
| 2019 | $149,710 | $65,000 | $0 | $214,710 | $214,710 |
| 2018 | $147,840 | $55,000 | $0 | $202,840 | $202,840 |
| 2017 | $134,400 | $55,000 | $0 | $189,400 | $189,400 |
| 2016 | $134,400 | $55,000 | $0 | $189,400 | $189,400 |
| 2015 | $134,400 | $55,000 | $0 | $189,400 | $189,400 |
| 2014 | $128,000 | $55,000 | $0 | $183,000 | $183,000 |
| 2013 | $128,000 | $55,000 | $0 | $183,000 | $183,000 |
| 2012 | $134,000 | $55,000 | $0 | $0 | $0 |
| 2011 | $134,000 | $55,000 | $0 | $0 | $0 |
| 2010 | $134,000 | $55,000 | $0 | $0 | $0 |
| 2009 | $150,400 | $55,000 | $0 | $0 | $0 |
| 2008 | $150,400 | $55,000 | $0 | $0 | $0 |
| 2007 | $110,500 | $25,000 | $0 | $0 | $0 |
Deed and Sales History
| 1 | 12/31/2020 | QCD | QUIT CLAIM DEED | DAVIS-MAAG KATHYRN M | MAAG KATHRYN M | | | $0.00 | 141988 | 2021-08212 |
| 2 | 09/12/2000 | WARRANTY D | WARRANTY DEED | | | | | $133,500.00 | 95794 | 3020-008644 |
Payout Agreement
| No payout information available.. |