Property
Account |
| Property ID: | 14595 | Abbreviated Legal Description: | 17-6-35 E1/2 OF N1/2 GOV LOT 4 TRACT II |
| Parcel Number: | 350617110003 | Agent Code: | |
| Type: | Real | | |
| Tax Area: | 311 - 250-4 | Land Use Code | 11 |
| Open Space: | N | DFL | N |
| Historic Property: | N | Remodel Property: | N |
| Multi-Family Redevelopment: | N | | |
| Township: | 6 | Section: | 17 |
| Range: | 35 |
Location |
| Address: | 288 MEADOWLARK LN WA 99324 | Mapsco: | |
| Neighborhood: | VG SFR RURAL | Map ID: | |
| Neighborhood CD: | 215013 |
Owner |
| Name: | COLTER ANNELI K & ALEX J | Owner ID: | 66271 |
| Mailing Address: | 288 MEADOWLARK LN TOUCHET, WA 99360 | % Ownership: | 100.0000000000% |
| | | Exemptions: | |
Taxes and Assessment Details
Values
| (+) Improvement Homesite Value: | + | $0 | |
| (+) Improvement Non-Homesite Value: | + | $535,050 | |
| (+) Land Homesite Value: | + | $0 | |
| (+) Land Non-Homesite Value: | + | $231,140 | |
| (+) Curr Use (HS): | + | $0 | $0 |
| (+) Curr Use (NHS): | + | $0 | $0 |
| | | -------------------------- | |
| (=) Market Value: | = | $766,190 | |
| (–) Productivity Loss: | – | $0 | |
| | | -------------------------- | |
| (=) Subtotal: | = | $766,190 | |
| (+) Senior Appraised Value: | + | $0 | |
| (+) Non-Senior Appraised Value: | + | $766,190 | |
| | | -------------------------- | |
| (=) Total Appraised Value: | = | $766,190 | |
| (–) Senior Exemption Loss: | – | $0 | |
| (–) Exemption Loss: | – | $0 | |
| | | -------------------------- | |
| (=) Taxable Value: | = | $766,190 | |
Taxing Jurisdiction
| Owner: | COLTER ANNELI K & ALEX J | | |
| % Ownership: | 100.0000000000% | | |
| Total Value: | $766,190 | | |
| Tax Area: | 311 - 250-4 |
| CERFD | CURRENT EXPENSE REFUND 010 | 0.0000000000 | $766,190 | $766,190 | $0.00 | | |
| CURREXP | CURRENT EXPENSE 010 | 1.0175366760 | $766,190 | $766,190 | $779.63 | | |
| HUMNSERV | HUMAN SERVICES 119 | 0.0250000000 | $766,190 | $766,190 | $19.15 | | |
| SLDREL | SOLDIERS RELIEF 121 | 0.0155990005 | $766,190 | $766,190 | $11.95 | | |
| EMERGSER | EMS 147 | 0.3792580840 | $766,190 | $766,190 | $290.58 | | |
| EMSRFD | EMS REFUND 147 | 0.0000000000 | $766,190 | $766,190 | $0.00 | | |
| FD4EXP | FD #4 EXPENSE 686 | 0.8836993059 | $766,190 | $766,190 | $677.08 | | |
| RLBRFD | RURAL LIBRARY REFUND 623 | 0.0000000000 | $766,190 | $766,190 | $0.00 | | |
| RURALLIB | RURAL LIBRARY 623 | 0.3710609029 | $766,190 | $766,190 | $284.30 | | |
| PORTRFD | PORT REFUND 640 | 0.0000000000 | $766,190 | $766,190 | $0.00 | | |
| PORTWWGEN | PORT OF WW 640 | 0.2460186015 | $766,190 | $766,190 | $188.50 | | |
| SD250BOND | SD #250 BOND 773 | 1.4560608159 | $766,190 | $766,190 | $1,115.62 | | |
| SD250GEN | SD #250 GENERAL 770 | 2.3880724087 | $766,190 | $766,190 | $1,829.72 | | |
| ST2 | STATE SCHOOL PART 2 600 | 0.8131451643 | $766,190 | $766,190 | $623.02 | | |
| STATESCHL | STATE SCHOOL 600 | 1.5158548041 | $766,190 | $766,190 | $1,161.43 | | |
| STREFUND | STATE REFUND LEVY 603 | 0.0000000000 | $766,190 | $766,190 | $0.00 | | |
| COROAD | COUNTY ROAD 115 | 1.6549953990 | $766,190 | $766,190 | $1,268.04 | | |
| CRPRD | COUNTY ROAD REFUND 115 | 0.0000000000 | $766,190 | $766,190 | $0.00 | | |
| | Total Tax Rate: | 10.7663011628 | | | | | |
| | | | | Taxes w/Current Exemptions: | $8,249.02 | | |
| | | | | Taxes w/o Exemptions: | $8,249.02 | | |
Improvement / Building
| Improvement #1: | RESIDENTIAL | State Code: | 11 | 1443.0 sqft | Value: | $535,050 |
| Exterior Wall: | SIDING | Heating/Cooling: | HEAT PUMP | | Number of Bathrooms: | 2 | Number of Bedrooms: | 3 | | Plumbing: | 10 | Roof Covering: | COMP SHINGLE |
|
| | Type | Description | Class CD | Sub Class CD | Year Built | Area |
| | MA | Main Area | 11 | 50 | 0 | 1443.0 |
| | SI1 | SITE IMPROVEMENT | 11 | 50 | 0 | 5.0 |
| | BASE | BASEMENT | 11 | 50 | 0 | 930.0 |
| | BIG | Built In Garage | 11 | 50 | 0 | 732.0 |
| | GFP | GAS FIREPLACE | 11 | 50 | 0 | 1.0 |
| | OSP | Open | 11 | 50 | 0 | 60.0 |
| | WOD | Wood Deck | 11 | 50 | 0 | 750.0 |
| | POL3 | POLE BUILDING-CON,ELEC,INSU | 11 | 50 | 0 | 1296.0 |
| | FBAT | FULL BATH | 11 | 50 | 2008 | 1.0 |
| | POL2 | POLE BUILDING-CONCRETE | 11 | 50 | 2008 | 864.0 |
| | LNTD | LEAN TO DIRT FLOOR | 11 | 50 | 0 | 360.0 |
| | POLE | POLE UTILITY BUILDING | 11 | 50 | 2008 | 432.0 |
| | UTILITY | UTILITY BUILDING | 11 | 50 | 0 | 400.0 |
| | BPF | BASEMENT -PARTITIONED FINISH | 11 | 50 | 1996 | 930.0 |
Sketch
Property Image
Land
| 1 | RES 1 | Converted: Residential | 13.6500 | 0.00 | 0.00 | 0.00 | 1.00 | $231,140 | $0 |
Roll Value History
| 2026 | N/A | N/A | N/A | N/A | N/A |
| 2025 | $535,050 | $231,140 | $0 | $766,190 | $766,190 |
| 2024 | $535,050 | $231,140 | $0 | $766,190 | $766,190 |
| 2023 | $535,050 | $231,140 | $0 | $766,190 | $766,190 |
| 2022 | $535,050 | $231,140 | $0 | $766,190 | $766,190 |
| 2021 | $486,410 | $231,140 | $0 | $717,550 | $717,550 |
| 2020 | $361,900 | $128,400 | $0 | $490,300 | $490,300 |
| 2019 | $361,900 | $128,400 | $0 | $490,300 | $490,300 |
| 2018 | $361,900 | $128,400 | $0 | $490,300 | $490,300 |
| 2017 | $361,900 | $128,400 | $0 | $490,300 | $490,300 |
| 2016 | $361,900 | $128,400 | $0 | $490,300 | $490,300 |
| 2015 | $361,900 | $128,400 | $0 | $490,300 | $490,300 |
| 2014 | $361,900 | $128,400 | $0 | $490,300 | $490,300 |
| 2013 | $361,900 | $128,400 | $0 | $490,300 | $490,300 |
| 2012 | $416,400 | $128,400 | $0 | $0 | $0 |
| 2011 | $416,400 | $128,400 | $0 | $0 | $0 |
| 2010 | $416,400 | $128,400 | $0 | $0 | $0 |
| 2009 | $503,900 | $88,300 | $0 | $0 | $0 |
| 2008 | $198,600 | $88,300 | $0 | $0 | $0 |
| 2007 | $198,600 | $88,300 | $0 | $0 | $0 |
Deed and Sales History
| 1 | 11/14/2019 | SWD | STATUTORY WARRANTY DEED | TAYLOR NANCY | COLTER ANNELI K & ALEX J | | | $770,000.00 | 138071 | 2019-09384 |
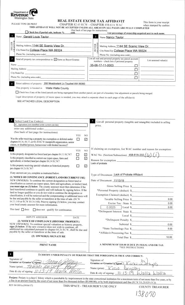
| 2 | 11/14/2019 | LOPA | LACK OF PROBATE AFFIDAVIT | TAYLOR GERALD L & NANCY L | TAYLOR NANCY | | | $0.00 | 138070 | 2019-09383 |
| 3 | 09/17/2018 | DEATH CERT | DEATH CERTIFICATE | TAYLOR GERALD LOUIS | | | | | 0 | 2018-07730 |
| 4 | 08/22/2006 | WARRANTY D | WARRANTY DEED | HAWMAN, CHARLES A & MERRILEE | TAYLOR, GERALD L & NANCY L | | | $637,000.00 | 111012 | 2006-10086 |
| 5 | 06/22/1994 | WARRANTY D | WARRANTY DEED | | | | | $42,500.00 | 81908 | 2209-407296 |
Payout Agreement
| No payout information available.. |