Property
Account |
| Property ID: | 14547 | Abbreviated Legal Description: | GARRISON CRK HGTS #2 PHASE 1 LOT 11 BLK 2 |
| Parcel Number: | 350736710211 | Agent Code: | |
| Type: | Real | | |
| Tax Area: | 77 - CP-250-F | Land Use Code | 11 |
| Open Space: | N | DFL | N |
| Historic Property: | N | Remodel Property: | N |
| Multi-Family Redevelopment: | N | | |
| Township: | 7 | Section: | 36 |
| Range: | 35 |
Location |
| Address: | 971 SE COMMODORE PL WA 99324 | Mapsco: | |
| Neighborhood: | G SFR | Map ID: | |
| Neighborhood CD: | 114011 |
Owner |
| Name: | SCHLOTTERBACK THOMAS M & KATHY A | Owner ID: | 56773 |
| Mailing Address: | 971 SE COMMODORE PL COLLEGE PLACE, WA 99324 | % Ownership: | 100.0000000000% |
| | | Exemptions: | |
Taxes and Assessment Details
Property Tax Information as of
04/19/2026
Click on "Statement Details" to expand or collapse a tax statement.
* Please enter a valid date ** Please enter a valid date *
Statement Details |
| | TOTAL: | $0.00 | $0.00 | $0.00 | $0.00 | $0.00 | $0.00 |
|
| | $0.00 | $0.00 | $0.00 | $0.00 | $0.00 | $0.00 |
Values
| (+) Improvement Homesite Value: | + | $0 | |
| (+) Improvement Non-Homesite Value: | + | $375,170 | |
| (+) Land Homesite Value: | + | $0 | |
| (+) Land Non-Homesite Value: | + | $75,000 | |
| (+) Curr Use (HS): | + | $0 | $0 |
| (+) Curr Use (NHS): | + | $0 | $0 |
| | | -------------------------- | |
| (=) Market Value: | = | $450,170 | |
| (–) Productivity Loss: | – | $0 | |
| | | -------------------------- | |
| (=) Subtotal: | = | $450,170 | |
| (+) Senior Appraised Value: | + | $0 | |
| (+) Non-Senior Appraised Value: | + | $450,170 | |
| | | -------------------------- | |
| (=) Total Appraised Value: | = | $450,170 | |
| (–) Senior Exemption Loss: | – | $0 | |
| (–) Exemption Loss: | – | $0 | |
| | | -------------------------- | |
| (=) Taxable Value: | = | $450,170 | |
Taxing Jurisdiction
| Owner: | SCHLOTTERBACK THOMAS M & KATHY A | | |
| % Ownership: | 100.0000000000% | | |
| Total Value: | $450,170 | | |
| Tax Area: | 77 - CP-250-F |
| CERFD | CURRENT EXPENSE REFUND 010 | 0.0000000000 | $450,170 | $450,170 | $0.00 | | |
| CURREXP | CURRENT EXPENSE 010 | 1.0175366760 | $450,170 | $450,170 | $458.06 | | |
| HUMNSERV | HUMAN SERVICES 119 | 0.0250000000 | $450,170 | $450,170 | $11.25 | | |
| SLDREL | SOLDIERS RELIEF 121 | 0.0155990005 | $450,170 | $450,170 | $7.02 | | |
| COLLPLBOND | C OF CP BOND 644 | 0.4374241808 | $450,170 | $450,170 | $196.92 | | |
| COLLPLGEN | CITY OF CP 632 | 1.4453819216 | $450,170 | $450,170 | $650.67 | | |
| EMERGSER | EMS 147 | 0.3792580840 | $450,170 | $450,170 | $170.73 | | |
| EMSRFD | EMS REFUND 147 | 0.0000000000 | $450,170 | $450,170 | $0.00 | | |
| RURALLIB | RURAL LIBRARY 623 | 0.3710609029 | $450,170 | $450,170 | $167.04 | | |
| PORTRFD | PORT REFUND 640 | 0.0000000000 | $450,170 | $450,170 | $0.00 | | |
| PORTWWGEN | PORT OF WW 640 | 0.2460186015 | $450,170 | $450,170 | $110.75 | | |
| SD250BOND | SD #250 BOND 773 | 1.4560608159 | $450,170 | $450,170 | $655.47 | | |
| SD250GEN | SD #250 GENERAL 770 | 2.3880724087 | $450,170 | $450,170 | $1,075.04 | | |
| ST2 | STATE SCHOOL PART 2 600 | 0.8131451643 | $450,170 | $450,170 | $366.05 | | |
| STATESCHL | STATE SCHOOL 600 | 1.5158548041 | $450,170 | $450,170 | $682.39 | | |
| STREFUND | STATE REFUND LEVY 603 | 0.0000000000 | $450,170 | $450,170 | $0.00 | | |
| | Total Tax Rate: | 10.1104125603 | | | | | |
| | | | | Taxes w/Current Exemptions: | $4,551.39 | | |
| | | | | Taxes w/o Exemptions: | $4,551.39 | | |
Improvement / Building
| Improvement #1: | RESIDENTIAL | State Code: | 11 | 1380.0 sqft | Value: | $375,170 |
| Exterior Wall: | PLYWOOD | Heating/Cooling: | WARM & COOLED AIR | | Number of Bathrooms: | 3 | Number of Bedrooms: | 4 | | Plumbing: | 14 | Roof Covering: | COMP SHINGLE |
|
| | Type | Description | Class CD | Sub Class CD | Year Built | Area |
| | MA | Main Area | 1 | 40 | 1995 | 1380.0 |
| | SI1 | SITE IMPROVEMENT | 1 | 40 | 1995 | 2.0 |
| | BASE | BASEMENT | 1 | 40 | 1995 | 1280.0 |
| | BPF | BASEMENT -PARTITIONED FINISH | 1 | 40 | 1995 | 1168.0 |
| | ATG | Attached Garage | 1 | 40 | 1995 | 468.0 |
| | GFP | GAS FIREPLACE | 1 | 40 | 1995 | 1.0 |
| | RPC | OPEN PORCH W/ROOF , CEILED | 1 | 40 | 1995 | 18.0 |
Sketch
Property Image
Land
| 1 | RES 1 | Converted: Residential | 0.2205 | 9605.00 | 0.00 | 0.00 | 1.00 | $75,000 | $0 |
Roll Value History
| 2026 | N/A | N/A | N/A | N/A | N/A |
| 2025 | $318,890 | $140,000 | $0 | $458,890 | $458,890 |
| 2024 | $375,170 | $75,000 | $0 | $450,170 | $450,170 |
| 2023 | $375,170 | $75,000 | $0 | $450,170 | $450,170 |
| 2022 | $375,170 | $75,000 | $0 | $450,170 | $450,170 |
| 2021 | $341,060 | $75,000 | $0 | $416,060 | $416,060 |
| 2020 | $272,850 | $75,000 | $0 | $347,850 | $347,850 |
| 2019 | $282,850 | $65,000 | $0 | $347,850 | $347,850 |
| 2018 | $217,580 | $65,000 | $0 | $282,580 | $282,580 |
| 2017 | $217,580 | $65,000 | $0 | $282,580 | $282,580 |
| 2016 | $197,800 | $65,000 | $0 | $262,800 | $262,800 |
| 2015 | $197,800 | $65,000 | $0 | $262,800 | $262,800 |
| 2014 | $172,000 | $65,000 | $0 | $237,000 | $237,000 |
| 2013 | $172,000 | $65,000 | $0 | $237,000 | $237,000 |
| 2012 | $172,000 | $65,000 | $0 | $0 | $0 |
| 2011 | $172,000 | $65,000 | $0 | $0 | $0 |
| 2010 | $172,000 | $65,000 | $0 | $0 | $0 |
| 2009 | $184,500 | $65,000 | $0 | $0 | $0 |
| 2008 | $156,700 | $40,000 | $0 | $0 | $0 |
| 2007 | $156,700 | $40,000 | $0 | $0 | $0 |
Deed and Sales History
| 1 | 04/26/2024 | SWD | STATUTORY WARRANTY DEED | SCHLOTTERBACK THOMAS M & KATHY A | MELTZER JONATHAN & RUTH | | | $465,000.00 | 147462 | 2024-02164 |
| 2 | 06/11/2015 | SWD | STATUTORY WARRANTY DEED | WINTER FAMILY REVOCABLE LIVING TRUST | SCHLOTTERBACK THOMAS M & KATHY A | | | $286,000.00 | 128144 | 2015-04919 |
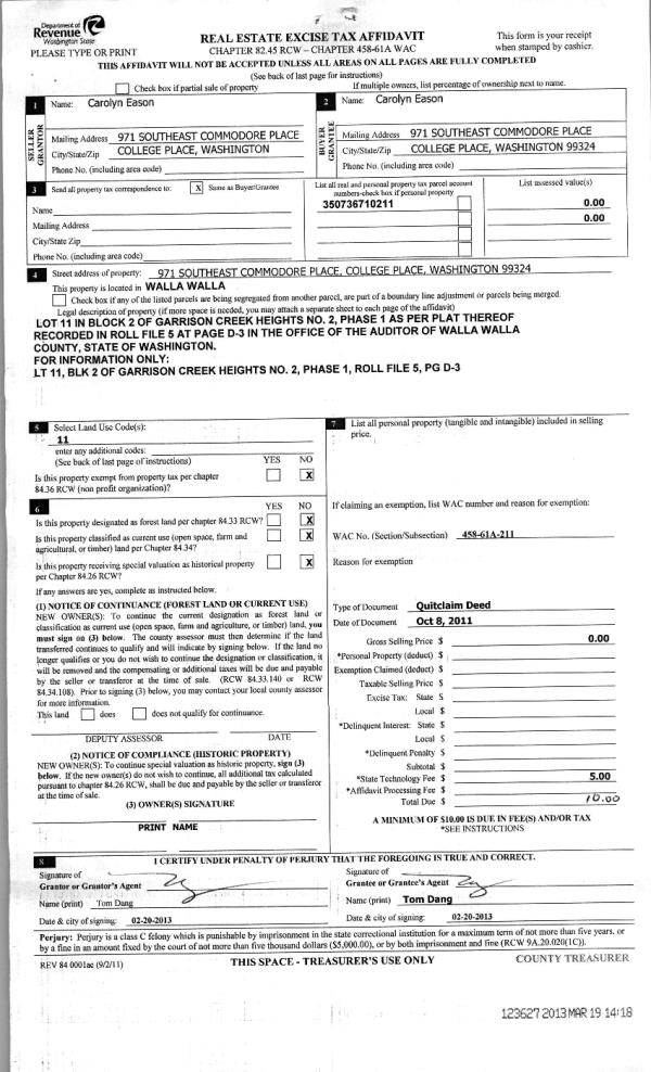
| 3 | 03/19/2013 | QCD | QUIT CLAIM DEED | EASON, CAROLYN (FORMERLY WISBE | EASON, CAROLYN | | | $0.00 | 123627 | 2013--02587 |
| 4 | 03/21/2005 | QCD | QUIT CLAIM DEED | WINTER FAMILY REV TRUST | WINTER, EUGENE | | | | 107036 | 2005-03188 |
| 5 | 03/21/2005 | QCD | QUIT CLAIM DEED | WINTER, EUGENE | WINTER FAMILY REVOCABLE LIVING | | | | 107037 | 2005-03190 |
| 6 | 01/10/1994 | WARRANTY D | WARRANTY DEED | | | | | $25,000.00 | 80855 | 2159-400424 |
| 7 | | WARRANTY D | WARRANTY DEED | | WINTER FAMILY REVOCABLE LIVING | | | | 0 | 2013-02587 |
Payout Agreement
| No payout information available.. |