Property
Account |
| Property ID: | 14541 | Abbreviated Legal Description: | CP #2 LOT 1 OF S/P (WLY 50' OF TAX 8) WITHIN LOT 3 BLK 25 |
| Parcel Number: | 350735602548 | Agent Code: | |
| Type: | Real | | |
| Tax Area: | 75 - CP 250 | Land Use Code | 11 |
| Open Space: | N | DFL | N |
| Historic Property: | N | Remodel Property: | N |
| Multi-Family Redevelopment: | N | | |
| Township: | 7 | Section: | 35 |
| Range: | 35 |
Location |
| Address: | 109 SW 9TH ST WA 99324 | Mapsco: | |
| Neighborhood: | A SFR | Map ID: | |
| Neighborhood CD: | 113011 |
Owner |
| Name: | MARLTON GEORGE A & PATRICIA F RIMA | Owner ID: | 58027 |
| Mailing Address: | 15 MOJONNIER PL WALLA WALLA, WA 99362 | % Ownership: | 100.0000000000% |
| | | Exemptions: | |
Taxes and Assessment Details
Property Tax Information as of
02/21/2026
Click on "Statement Details" to expand or collapse a tax statement.
* Please enter a valid date ** Please enter a valid date *
Statement Details |
| | TOTAL: | $0.00 | $0.00 | $0.00 | $0.00 | $0.00 | $0.00 |
|
| | $0.00 | $0.00 | $0.00 | $0.00 | $0.00 | $0.00 |
Values
| (+) Improvement Homesite Value: | + | $0 | |
| (+) Improvement Non-Homesite Value: | + | $164,210 | |
| (+) Land Homesite Value: | + | $0 | |
| (+) Land Non-Homesite Value: | + | $47,250 | |
| (+) Curr Use (HS): | + | $0 | $0 |
| (+) Curr Use (NHS): | + | $0 | $0 |
| | | -------------------------- | |
| (=) Market Value: | = | $211,460 | |
| (–) Productivity Loss: | – | $0 | |
| | | -------------------------- | |
| (=) Subtotal: | = | $211,460 | |
| (+) Senior Appraised Value: | + | $0 | |
| (+) Non-Senior Appraised Value: | + | $211,460 | |
| | | -------------------------- | |
| (=) Total Appraised Value: | = | $211,460 | |
| (–) Senior Exemption Loss: | – | $0 | |
| (–) Exemption Loss: | – | $0 | |
| | | -------------------------- | |
| (=) Taxable Value: | = | $211,460 | |
Taxing Jurisdiction
| Owner: | MARLTON GEORGE A & PATRICIA F RIMA | | |
| % Ownership: | 100.0000000000% | | |
| Total Value: | $211,460 | | |
| Tax Area: | 75 - CP 250 |
| CERFD | CURRENT EXPENSE REFUND 010 | 0.0000000000 | $211,460 | $211,460 | $0.00 | | |
| CURREXP | CURRENT EXPENSE 010 | 1.0175366760 | $211,460 | $211,460 | $215.17 | | |
| HUMNSERV | HUMAN SERVICES 119 | 0.0250000000 | $211,460 | $211,460 | $5.29 | | |
| SLDREL | SOLDIERS RELIEF 121 | 0.0155990005 | $211,460 | $211,460 | $3.30 | | |
| COLLPLBOND | C OF CP BOND 644 | 0.4374241808 | $211,460 | $211,460 | $92.50 | | |
| COLLPLGEN | CITY OF CP 632 | 1.4453819216 | $211,460 | $211,460 | $305.64 | | |
| EMERGSER | EMS 147 | 0.3792580840 | $211,460 | $211,460 | $80.20 | | |
| EMSRFD | EMS REFUND 147 | 0.0000000000 | $211,460 | $211,460 | $0.00 | | |
| RURALLIB | RURAL LIBRARY 623 | 0.3710609029 | $211,460 | $211,460 | $78.46 | | |
| PORTRFD | PORT REFUND 640 | 0.0000000000 | $211,460 | $211,460 | $0.00 | | |
| PORTWWGEN | PORT OF WW 640 | 0.2460186015 | $211,460 | $211,460 | $52.02 | | |
| SD250BOND | SD #250 BOND 773 | 1.4560608159 | $211,460 | $211,460 | $307.90 | | |
| SD250GEN | SD #250 GENERAL 770 | 2.3880724087 | $211,460 | $211,460 | $504.98 | | |
| ST2 | STATE SCHOOL PART 2 600 | 0.8131451643 | $211,460 | $211,460 | $171.95 | | |
| STATESCHL | STATE SCHOOL 600 | 1.5158548041 | $211,460 | $211,460 | $320.54 | | |
| STREFUND | STATE REFUND LEVY 603 | 0.0000000000 | $211,460 | $211,460 | $0.00 | | |
| | Total Tax Rate: | 10.1104125603 | | | | | |
| | | | | Taxes w/Current Exemptions: | $2,137.95 | | |
| | | | | Taxes w/o Exemptions: | $2,137.95 | | |
Improvement / Building
| Improvement #1: | RESIDENTIAL | State Code: | 11 | 816.0 sqft | Value: | $164,210 |
| Exterior Wall: | SIDING | Heating/Cooling: | FORCED AIR | | Number of Bathrooms: | 1 | Number of Bedrooms: | 2 | | Plumbing: | 6 | Roof Covering: | COMP SHINGLE |
|
| | Type | Description | Class CD | Sub Class CD | Year Built | Area |
| | MA | Main Area | 1 | 25 | 1920 | 816.0 |
| | SI1 | SITE IMPROVEMENT | 1 | 25 | 1920 | 1.2 |
| | RPO | OPEN PORCH W/ROOF | 1 | 25 | 1920 | 140.0 |
| | BNV | BUILDING NO VALUE | 1 | 20 | 1920 | 84.0 |
| | RPO | OPEN PORCH W/ROOF | 1 | 25 | 1920 | 32.0 |
Sketch
Property Image
Land
| 1 | RES 1 | Converted: Residential | 0.1607 | 7000.00 | 0.00 | 0.00 | 1.00 | $47,250 | $0 |
Roll Value History
| 2026 | N/A | N/A | N/A | N/A | N/A |
| 2025 | $147,790 | $70,000 | $0 | $217,790 | $217,790 |
| 2024 | $164,210 | $47,250 | $0 | $211,460 | $211,460 |
| 2023 | $164,210 | $47,250 | $0 | $211,460 | $211,460 |
| 2022 | $149,280 | $47,250 | $0 | $196,530 | $196,530 |
| 2021 | $119,420 | $47,250 | $0 | $166,670 | $166,670 |
| 2020 | $82,360 | $47,250 | $0 | $129,610 | $129,610 |
| 2019 | $87,610 | $42,000 | $0 | $129,610 | $129,610 |
| 2018 | $79,650 | $42,000 | $0 | $121,650 | $121,650 |
| 2017 | $72,410 | $42,000 | $0 | $114,410 | $114,410 |
| 2016 | $51,720 | $42,000 | $0 | $93,720 | $93,720 |
| 2015 | $43,100 | $42,000 | $0 | $85,100 | $85,100 |
| 2014 | $43,100 | $42,000 | $0 | $85,100 | $85,100 |
| 2013 | $43,100 | $42,000 | $0 | $85,100 | $85,100 |
| 2012 | $52,600 | $42,000 | $0 | $0 | $0 |
| 2011 | $52,600 | $42,000 | $0 | $0 | $0 |
| 2010 | $36,800 | $42,000 | $0 | $0 | $0 |
| 2009 | $45,500 | $42,000 | $0 | $0 | $0 |
| 2008 | $57,000 | $21,000 | $0 | $0 | $0 |
| 2007 | $57,000 | $21,000 | $0 | $0 | $0 |
Deed and Sales History
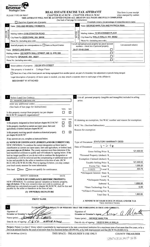
| 1 | 01/07/2016 | SWD | STATUTORY WARRANTY DEED | ROBERTS DANIEL W & BEVERLY J | MARLTON GEORGE A & PATRICIA F RIMA | | | $121,500.00 | 129474 | 2016-00141 |
| 2 | 03/28/2005 | WARRANTY D | WARRANTY DEED | STANCIU, ELI & JENNY | ROBERTS, DANIEL W & BEVERLY J | | | $93,500.00 | 107077 | 2005-03464 |
| 3 | 07/24/2003 | WARRANTY D | WARRANTY DEED | SCHWISOW, PHYLLIS A | STANCIU, ELI & JENNY | | | $79,000.00 | 102639 | 2003-10989 |
Payout Agreement
| No payout information available.. |