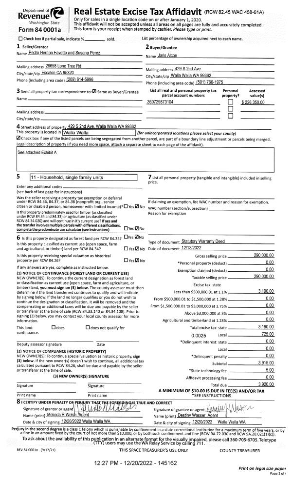
Property
Account |
| Property ID: | 1448 | Abbreviated Legal Description: | ROBERTS ADDITION TAX 4 BLK 31 (METES AND BOUNDS) |
| Parcel Number: | 360729873104 | Agent Code: | |
| Type: | Real | | |
| Tax Area: | 1 - OL-140-F | Land Use Code | 11 |
| Open Space: | N | DFL | N |
| Historic Property: | N | Remodel Property: | N |
| Multi-Family Redevelopment: | N | | |
| Township: | 7 | Section: | 29 |
| Range: | 36 |
Location |
| Address: | 429 S 2ND AVE WA 99362 | Mapsco: | |
| Neighborhood: | A-SFR | Map ID: | |
| Neighborhood CD: | 513011 |
Owner |
| Name: | ALCON JARIS | Owner ID: | 72876 |
| Mailing Address: | 429 S 2ND AVE WALLA WALLA, WA 99362 | % Ownership: | 100.0000000000% |
| | | Exemptions: | |
Taxes and Assessment Details
Property Tax Information as of
02/21/2026
Click on "Statement Details" to expand or collapse a tax statement.
* Please enter a valid date ** Please enter a valid date *
Statement Details |
| | TOTAL: | $0.00 | $0.00 | $0.00 | $0.00 | $0.00 | $0.00 |
|
| | $0.00 | $0.00 | $0.00 | $0.00 | $0.00 | $0.00 |
Values
| (+) Improvement Homesite Value: | + | $0 | |
| (+) Improvement Non-Homesite Value: | + | $206,390 | |
| (+) Land Homesite Value: | + | $0 | |
| (+) Land Non-Homesite Value: | + | $46,880 | |
| (+) Curr Use (HS): | + | $0 | $0 |
| (+) Curr Use (NHS): | + | $0 | $0 |
| | | -------------------------- | |
| (=) Market Value: | = | $253,270 | |
| (–) Productivity Loss: | – | $0 | |
| | | -------------------------- | |
| (=) Subtotal: | = | $253,270 | |
| (+) Senior Appraised Value: | + | $0 | |
| (+) Non-Senior Appraised Value: | + | $253,270 | |
| | | -------------------------- | |
| (=) Total Appraised Value: | = | $253,270 | |
| (–) Senior Exemption Loss: | – | $0 | |
| (–) Exemption Loss: | – | $0 | |
| | | -------------------------- | |
| (=) Taxable Value: | = | $253,270 | |
Taxing Jurisdiction
| Owner: | ALCON JARIS | | |
| % Ownership: | 100.0000000000% | | |
| Total Value: | $253,270 | | |
| Tax Area: | 1 - OL-140-F |
| CERFD | CURRENT EXPENSE REFUND 010 | 0.0000000000 | $253,270 | $253,270 | $0.00 | | |
| CURREXP | CURRENT EXPENSE 010 | 1.0175366760 | $253,270 | $253,270 | $257.71 | | |
| HUMNSERV | HUMAN SERVICES 119 | 0.0250000000 | $253,270 | $253,270 | $6.33 | | |
| SLDREL | SOLDIERS RELIEF 121 | 0.0155990005 | $253,270 | $253,270 | $3.95 | | |
| EMERGSER | EMS 147 | 0.3792580840 | $253,270 | $253,270 | $96.05 | | |
| EMSRFD | EMS REFUND 147 | 0.0000000000 | $253,270 | $253,270 | $0.00 | | |
| PORTRFD | PORT REFUND 640 | 0.0000000000 | $253,270 | $253,270 | $0.00 | | |
| PORTWWGEN | PORT OF WW 640 | 0.2460186015 | $253,270 | $253,270 | $62.31 | | |
| SD140BOND | SD #140 BOND 764 | 0.8342371393 | $253,270 | $253,270 | $211.29 | | |
| SD140GEN | SD #140 GENERAL 760 | 2.0646500647 | $253,270 | $253,270 | $522.91 | | |
| ST2 | STATE SCHOOL PART 2 600 | 0.8131451643 | $253,270 | $253,270 | $205.95 | | |
| STATESCHL | STATE SCHOOL 600 | 1.5158548041 | $253,270 | $253,270 | $383.92 | | |
| STREFUND | STATE REFUND LEVY 603 | 0.0000000000 | $253,270 | $253,270 | $0.00 | | |
| CWWBOND | C OF WW BOND 643 | 0.2760494372 | $253,270 | $253,270 | $69.92 | | |
| CWWGEN | CITY OF WW 631 | 1.6100204973 | $253,270 | $253,270 | $407.77 | | |
| CWWRFD | CITY OF WALLA WALLA REFUND 631 | 0.0000000000 | $253,270 | $253,270 | $0.00 | | |
| | Total Tax Rate: | 8.7973694689 | | | | | |
| | | | | Taxes w/Current Exemptions: | $2,228.11 | | |
| | | | | Taxes w/o Exemptions: | $2,228.11 | | |
Improvement / Building
| Improvement #1: | RESIDENTIAL | State Code: | 11 | 1757.0 sqft | Value: | $206,390 |
| Exterior Wall: | STUCCO | Heating/Cooling: | WARM & COOLED AIR | | Number of Bathrooms: | 2.5 | Number of Bedrooms: | 2 | | Plumbing: | 11 | Roof Covering: | COMP SHINGLE |
|
| | Type | Description | Class CD | Sub Class CD | Year Built | Area |
| | MA | Main Area | 4 | 25 | 1915 | 1757.0 |
| | UPFL | Upper Floor (included in main area) | 4 | 25 | 1915 | 450.0 |
| | SI1 | SITE IMPROVEMENT | 4 | 25 | 1915 | 1.0 |
| | BASE | BASEMENT | 4 | 25 | 1915 | 420.0 |
| | BPF | BASEMENT -PARTITIONED FINISH | 4 | 25 | 1915 | 420.0 |
| | RCD | WOOD DECK W/ROOF, CEILED | 4 | 25 | 1915 | 80.0 |
Sketch
Property Image
Land
| 1 | RES 1 | Converted: Residential | 0.1722 | 7500.00 | 0.00 | 0.00 | 1.00 | $46,880 | $0 |
Roll Value History
| 2026 | N/A | N/A | N/A | N/A | N/A |
| 2025 | $205,650 | $75,000 | $0 | $280,650 | $280,650 |
| 2024 | $186,950 | $75,000 | $0 | $261,950 | $261,950 |
| 2023 | $206,390 | $46,880 | $0 | $253,270 | $253,270 |
| 2022 | $179,470 | $46,880 | $0 | $226,350 | $226,350 |
| 2021 | $163,160 | $46,880 | $0 | $210,040 | $210,040 |
| 2020 | $108,770 | $46,880 | $0 | $155,650 | $155,650 |
| 2019 | $108,770 | $46,880 | $0 | $155,650 | $155,650 |
| 2018 | $103,590 | $46,880 | $0 | $150,470 | $150,470 |
| 2017 | $107,470 | $33,800 | $0 | $141,270 | $141,270 |
| 2016 | $97,700 | $33,800 | $0 | $131,500 | $131,500 |
| 2015 | $97,700 | $33,800 | $0 | $131,500 | $131,500 |
| 2014 | $97,700 | $33,800 | $0 | $131,500 | $131,500 |
| 2013 | $97,700 | $33,800 | $0 | $131,500 | $131,500 |
| 2012 | $97,700 | $33,800 | $0 | $0 | $0 |
| 2011 | $85,700 | $33,800 | $0 | $0 | $0 |
| 2010 | $80,200 | $33,800 | $0 | $0 | $0 |
| 2009 | $92,900 | $33,800 | $0 | $0 | $0 |
| 2008 | $76,400 | $33,800 | $0 | $0 | $0 |
| 2007 | $76,400 | $33,800 | $0 | $0 | $0 |
Deed and Sales History
| 1 | 12/20/2022 | SWD | STATUTORY WARRANTY DEED | FAVETTO PEDRO HERNAN & SUSANA PEREZ | ALCON JARIS | | | $290,000.00 | 145162 | 2022-09799 |
| 2 | 09/14/2020 | SWD | STATUTORY WARRANTY DEED | GREENE JAMES A & ROBIN C | FAVETTO PEDRO HERNAN & SUSANA PEREZ | | | $215,000.00 | 139913 | 2020-09367 |
| 3 | 01/31/2003 | WARRANTY D | WARRANTY DEED | JONES, NICK G & TAMI | GREENE, JAMES A & ROBIN C | | | $79,500.00 | 101314 | 2003-01437 |
| 4 | 05/22/2002 | WARRANTY D | WARRANTY DEED | | | | | $37,500.00 | 99552 | 2002-0006019 |
Payout Agreement
| No payout information available.. |