Property
Account |
| Property ID: | 14462 | Abbreviated Legal Description: | BREEN ADDITION LOT 6 |
| Parcel Number: | 350725710006 | Agent Code: | |
| Type: | Real | | |
| Tax Area: | 75 - CP 250 | Land Use Code | 11 |
| Open Space: | N | DFL | N |
| Historic Property: | N | Remodel Property: | N |
| Multi-Family Redevelopment: | N | | |
| Township: | 7 | Section: | 25 |
| Range: | 35 |
Location |
| Address: | 7 NE MULBERRY CT WA 99324 | Mapsco: | |
| Neighborhood: | A SFR | Map ID: | |
| Neighborhood CD: | 113011 |
Owner |
| Name: | VERCIO BETTY JO | Owner ID: | 40472 |
| Mailing Address: | 7 NE MULBERRY CT COLLEGE PLACE, WA 99324 | % Ownership: | 100.0000000000% |
| | | Exemptions: | |
Taxes and Assessment Details
Property Tax Information as of
02/21/2026
Click on "Statement Details" to expand or collapse a tax statement.
* Please enter a valid date ** Please enter a valid date *
Statement Details |
| | TOTAL: | $0.00 | $0.00 | $0.00 | $0.00 | $0.00 | $0.00 |
|
| | $0.00 | $0.00 | $0.00 | $0.00 | $0.00 | $0.00 |
Values
| (+) Improvement Homesite Value: | + | $0 | |
| (+) Improvement Non-Homesite Value: | + | $318,320 | |
| (+) Land Homesite Value: | + | $0 | |
| (+) Land Non-Homesite Value: | + | $65,000 | |
| (+) Curr Use (HS): | + | $0 | $0 |
| (+) Curr Use (NHS): | + | $0 | $0 |
| | | -------------------------- | |
| (=) Market Value: | = | $383,320 | |
| (–) Productivity Loss: | – | $0 | |
| | | -------------------------- | |
| (=) Subtotal: | = | $383,320 | |
| (+) Senior Appraised Value: | + | $0 | |
| (+) Non-Senior Appraised Value: | + | $383,320 | |
| | | -------------------------- | |
| (=) Total Appraised Value: | = | $383,320 | |
| (–) Senior Exemption Loss: | – | $0 | |
| (–) Exemption Loss: | – | $0 | |
| | | -------------------------- | |
| (=) Taxable Value: | = | $383,320 | |
Taxing Jurisdiction
| Owner: | VERCIO BETTY JO | | |
| % Ownership: | 100.0000000000% | | |
| Total Value: | $383,320 | | |
| Tax Area: | 75 - CP 250 |
| CERFD | CURRENT EXPENSE REFUND 010 | 0.0000000000 | $383,320 | $383,320 | $0.00 | | |
| CURREXP | CURRENT EXPENSE 010 | 1.0175366760 | $383,320 | $383,320 | $390.04 | | |
| HUMNSERV | HUMAN SERVICES 119 | 0.0250000000 | $383,320 | $383,320 | $9.58 | | |
| SLDREL | SOLDIERS RELIEF 121 | 0.0155990005 | $383,320 | $383,320 | $5.98 | | |
| COLLPLBOND | C OF CP BOND 644 | 0.4374241808 | $383,320 | $383,320 | $167.67 | | |
| COLLPLGEN | CITY OF CP 632 | 1.4453819216 | $383,320 | $383,320 | $554.04 | | |
| EMERGSER | EMS 147 | 0.3792580840 | $383,320 | $383,320 | $145.38 | | |
| EMSRFD | EMS REFUND 147 | 0.0000000000 | $383,320 | $383,320 | $0.00 | | |
| RURALLIB | RURAL LIBRARY 623 | 0.3710609029 | $383,320 | $383,320 | $142.24 | | |
| PORTRFD | PORT REFUND 640 | 0.0000000000 | $383,320 | $383,320 | $0.00 | | |
| PORTWWGEN | PORT OF WW 640 | 0.2460186015 | $383,320 | $383,320 | $94.30 | | |
| SD250BOND | SD #250 BOND 773 | 1.4560608159 | $383,320 | $383,320 | $558.14 | | |
| SD250GEN | SD #250 GENERAL 770 | 2.3880724087 | $383,320 | $383,320 | $915.40 | | |
| ST2 | STATE SCHOOL PART 2 600 | 0.8131451643 | $383,320 | $383,320 | $311.69 | | |
| STATESCHL | STATE SCHOOL 600 | 1.5158548041 | $383,320 | $383,320 | $581.06 | | |
| STREFUND | STATE REFUND LEVY 603 | 0.0000000000 | $383,320 | $383,320 | $0.00 | | |
| | Total Tax Rate: | 10.1104125603 | | | | | |
| | | | | Taxes w/Current Exemptions: | $3,875.52 | | |
| | | | | Taxes w/o Exemptions: | $3,875.52 | | |
Improvement / Building
| Improvement #1: | RESIDENTIAL | State Code: | 11 | 1574.0 sqft | Value: | $318,320 |
| Exterior Wall: | SIDING | Heating/Cooling: | WARM & COOLED AIR | | Number of Bathrooms: | 2 | Number of Bedrooms: | 3 | | Plumbing: | 10 | Roof Covering: | COMP SHINGLE |
|
| | Type | Description | Class CD | Sub Class CD | Year Built | Area |
| | MA | Main Area | 1 | 30 | 2005 | 1574.0 |
| | SI1 | SITE IMPROVEMENT | 1 | 30 | 2005 | 2.0 |
| | ATG | Attached Garage | 1 | 30 | 2005 | 400.0 |
| | GFP | GAS FIREPLACE | 1 | 30 | 2005 | 1.0 |
| | RPC | OPEN PORCH W/ROOF , CEILED | 1 | 30 | 2005 | 18.0 |
Sketch
Property Image
Land
| 1 | RES 1 | Converted: Residential | 0.1377 | 6000.00 | 0.00 | 0.00 | 1.00 | $65,000 | $0 |
Roll Value History
| 2026 | N/A | N/A | N/A | N/A | N/A |
| 2025 | $261,030 | $130,000 | $0 | $391,030 | $391,030 |
| 2024 | $318,320 | $65,000 | $0 | $383,320 | $383,320 |
| 2023 | $318,320 | $65,000 | $0 | $383,320 | $383,320 |
| 2022 | $318,320 | $65,000 | $0 | $383,320 | $383,320 |
| 2021 | $219,530 | $65,000 | $0 | $284,530 | $284,530 |
| 2020 | $156,810 | $65,000 | $0 | $221,810 | $221,810 |
| 2019 | $166,810 | $55,000 | $0 | $221,810 | $221,810 |
| 2018 | $158,870 | $55,000 | $0 | $213,870 | $213,870 |
| 2017 | $158,870 | $55,000 | $0 | $213,870 | $213,870 |
| 2016 | $151,300 | $55,000 | $0 | $206,300 | $206,300 |
| 2015 | $151,300 | $55,000 | $0 | $206,300 | $206,300 |
| 2014 | $151,300 | $55,000 | $0 | $206,300 | $206,300 |
| 2013 | $151,300 | $55,000 | $0 | $206,300 | $206,300 |
| 2012 | $151,300 | $55,000 | $0 | $0 | $0 |
| 2011 | $151,300 | $55,000 | $0 | $0 | $0 |
| 2010 | $151,300 | $55,000 | $0 | $0 | $0 |
| 2009 | $174,200 | $55,000 | $0 | $0 | $0 |
| 2008 | $148,900 | $35,000 | $0 | $0 | $0 |
| 2007 | $148,900 | $35,000 | $0 | $0 | $0 |
Deed and Sales History
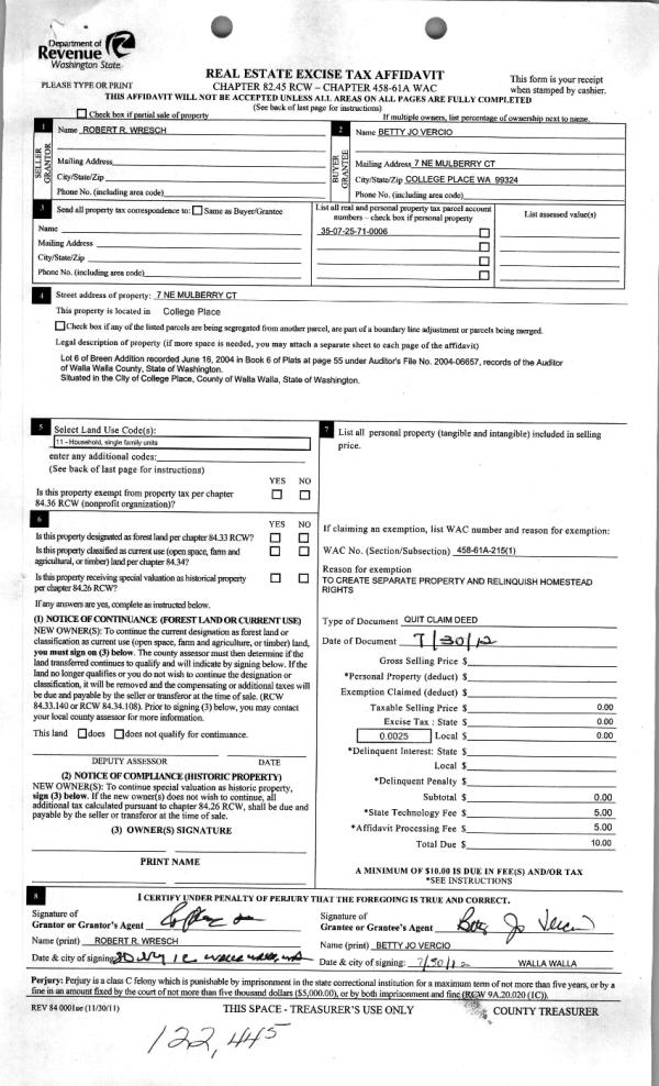
| 1 | 08/03/2012 | QCD | QUIT CLAIM DEED | WRESCH, ROBERT R | VERCIO, BETTY JO | | | $0.00 | 122445 | 2012-06593 |
| 2 | 05/27/2005 | QCD | QUIT CLAIM DEED | VERCIO, WILLIAM PAUL | VERCIO, BETTY JO | | | | 107623 | 2005-06433 |
| 3 | 05/27/2005 | WARRANTY D | WARRANTY DEED | DENNIS & DENNIS, LLC | VERCIO, BETTY JO | | | $185,951.00 | 107600 | 2005-06434 |
| 4 | 05/27/2005 | WARRANTY D | WARRANTY DEED | MAJERUS, DOUGLAS A & CHRISTINA | DENNIS & DENNIS, LLC | | | | 107599 | 2005-06432 |
| 5 | 03/04/2005 | WARRANTY D | WARRANTY DEED | "DENNIS & DENNIS, A~PARTNERSHI | MAJERUS DOUGLAS A & CHRISTINA M DBA | | | | 106927 | 2005--02523 |
| 6 | 06/09/2004 | WARRANTY D | WARRANTY DEED | "HARDY, ROBERT L" | | | | | 104972 | 2004-06332 |
Payout Agreement
| No payout information available.. |