Property
Account |
| Property ID: | 14448 | Abbreviated Legal Description: | DEANS LOT 21 BLK 1; W 10' OF LOT 22 BLK 1 |
| Parcel Number: | 360727520121 | Agent Code: | |
| Type: | Real | | |
| Tax Area: | 105 - 140-F-4 | Land Use Code | 11 |
| Open Space: | N | DFL | N |
| Historic Property: | N | Remodel Property: | N |
| Multi-Family Redevelopment: | N | | |
| Township: | 7 | Section: | 27 |
| Range: | 36 |
Location |
| Address: | 1709 STUART ST WA 99362 | Mapsco: | |
| Neighborhood: | A Res | Map ID: | |
| Neighborhood CD: | 613011 |
Owner |
| Name: | GLEASON JOSHUA WAYNE & AMANDA RACHEL | Owner ID: | 56510 |
| Mailing Address: | 1709 STUART ST WALLA WALLA, WA 99362 | % Ownership: | 100.0000000000% |
| | | Exemptions: | |
Taxes and Assessment Details
Values
| (+) Improvement Homesite Value: | + | $0 | |
| (+) Improvement Non-Homesite Value: | + | $270,060 | |
| (+) Land Homesite Value: | + | $0 | |
| (+) Land Non-Homesite Value: | + | $67,500 | |
| (+) Curr Use (HS): | + | $0 | $0 |
| (+) Curr Use (NHS): | + | $0 | $0 |
| | | -------------------------- | |
| (=) Market Value: | = | $337,560 | |
| (–) Productivity Loss: | – | $0 | |
| | | -------------------------- | |
| (=) Subtotal: | = | $337,560 | |
| (+) Senior Appraised Value: | + | $0 | |
| (+) Non-Senior Appraised Value: | + | $337,560 | |
| | | -------------------------- | |
| (=) Total Appraised Value: | = | $337,560 | |
| (–) Senior Exemption Loss: | – | $0 | |
| (–) Exemption Loss: | – | $0 | |
| | | -------------------------- | |
| (=) Taxable Value: | = | $337,560 | |
Taxing Jurisdiction
| Owner: | GLEASON JOSHUA WAYNE & AMANDA RACHEL | | |
| % Ownership: | 100.0000000000% | | |
| Total Value: | $337,560 | | |
| Tax Area: | 105 - 140-F-4 |
| CERFD | CURRENT EXPENSE REFUND 010 | 0.0000000000 | $337,560 | $337,560 | $0.00 | | |
| CURREXP | CURRENT EXPENSE 010 | 1.0175366760 | $337,560 | $337,560 | $343.48 | | |
| HUMNSERV | HUMAN SERVICES 119 | 0.0250000000 | $337,560 | $337,560 | $8.44 | | |
| SLDREL | SOLDIERS RELIEF 121 | 0.0155990005 | $337,560 | $337,560 | $5.27 | | |
| EMERGSER | EMS 147 | 0.3792580840 | $337,560 | $337,560 | $128.02 | | |
| EMSRFD | EMS REFUND 147 | 0.0000000000 | $337,560 | $337,560 | $0.00 | | |
| FD4EXP | FD #4 EXPENSE 686 | 0.8836993059 | $337,560 | $337,560 | $298.30 | | |
| RLBRFD | RURAL LIBRARY REFUND 623 | 0.0000000000 | $337,560 | $337,560 | $0.00 | | |
| RURALLIB | RURAL LIBRARY 623 | 0.3710609029 | $337,560 | $337,560 | $125.26 | | |
| PORTRFD | PORT REFUND 640 | 0.0000000000 | $337,560 | $337,560 | $0.00 | | |
| PORTWWGEN | PORT OF WW 640 | 0.2460186015 | $337,560 | $337,560 | $83.05 | | |
| SD140BOND | SD #140 BOND 764 | 0.8342371393 | $337,560 | $337,560 | $281.61 | | |
| SD140GEN | SD #140 GENERAL 760 | 2.0646500647 | $337,560 | $337,560 | $696.94 | | |
| ST2 | STATE SCHOOL PART 2 600 | 0.8131451643 | $337,560 | $337,560 | $274.49 | | |
| STATESCHL | STATE SCHOOL 600 | 1.5158548041 | $337,560 | $337,560 | $511.69 | | |
| STREFUND | STATE REFUND LEVY 603 | 0.0000000000 | $337,560 | $337,560 | $0.00 | | |
| COROAD | COUNTY ROAD 115 | 1.6549953990 | $337,560 | $337,560 | $558.66 | | |
| CRPRD | COUNTY ROAD REFUND 115 | 0.0000000000 | $337,560 | $337,560 | $0.00 | | |
| | Total Tax Rate: | 9.8210551422 | | | | | |
| | | | | Taxes w/Current Exemptions: | $3,315.21 | | |
| | | | | Taxes w/o Exemptions: | $3,315.21 | | |
Improvement / Building
| Improvement #1: | RESIDENTIAL | State Code: | 11 | 1274.0 sqft | Value: | $270,060 |
| Exterior Wall: | PLYWOOD | Heating/Cooling: | WARM & COOLED AIR | | Number of Bathrooms: | 2 | Number of Bedrooms: | 3 | | Plumbing: | 8 | Roof Covering: | COMP ROLL |
|
| | Type | Description | Class CD | Sub Class CD | Year Built | Area |
| | MA | Main Area | 1 | 30 | 1963 | 1274.0 |
| | SI1 | SITE IMPROVEMENT | 1 | 30 | 1963 | 1.5 |
| | BASE | BASEMENT | 1 | 30 | 1963 | 672.0 |
| | S1F | Single One Story Fireplace | 1 | 30 | 1963 | 1.0 |
| | RPO | OPEN PORCH W/ROOF | 1 | 30 | 1963 | 20.0 |
| | CPC | COVERED CARPORT/PATIO | 1 | 30 | 1963 | 560.0 |
Sketch
Property Image
Land
| 1 | RES 1 | Converted: Residential | 0.1722 | 7500.00 | 0.00 | 0.00 | 1.00 | $67,500 | $0 |
Roll Value History
| 2026 | N/A | N/A | N/A | N/A | N/A |
| 2025 | $285,650 | $82,500 | $0 | $368,150 | $368,150 |
| 2024 | $270,060 | $67,500 | $0 | $337,560 | $337,560 |
| 2023 | $270,060 | $67,500 | $0 | $337,560 | $337,560 |
| 2022 | $270,060 | $54,380 | $0 | $324,440 | $324,440 |
| 2021 | $186,250 | $54,380 | $0 | $240,630 | $240,630 |
| 2020 | $143,270 | $54,380 | $0 | $197,650 | $197,650 |
| 2019 | $143,270 | $54,380 | $0 | $197,650 | $197,650 |
| 2018 | $131,870 | $45,000 | $0 | $176,870 | $176,870 |
| 2017 | $119,880 | $45,000 | $0 | $164,880 | $164,880 |
| 2016 | $99,900 | $45,000 | $0 | $144,900 | $144,900 |
| 2015 | $99,900 | $45,000 | $0 | $144,900 | $144,900 |
| 2014 | $99,900 | $45,000 | $0 | $144,900 | $144,900 |
| 2013 | $99,900 | $45,000 | $0 | $144,900 | $144,900 |
| 2012 | $103,000 | $45,000 | $0 | $0 | $0 |
| 2011 | $103,000 | $45,000 | $0 | $0 | $0 |
| 2010 | $89,500 | $45,000 | $0 | $0 | $0 |
| 2009 | $104,400 | $45,000 | $0 | $0 | $0 |
| 2008 | $104,400 | $45,000 | $0 | $0 | $0 |
| 2007 | $70,400 | $22,500 | $0 | $0 | $0 |
Deed and Sales History
| 1 | 01/04/2024 | SWD | STATUTORY WARRANTY DEED | GLEASON JOSHUA WAYNE & AMANDA RACHEL | EGGERS SUSAN ANN | | | $360,000.00 | 146990 | 2024-00054 |
| 2 | 04/23/2015 | BARGAIN & | BARGAIN & SALE DEED | US BANK NATIONAL ASSOCIATION | GLEASON JOSHUA WAYNE & AMANDA RACHEL | | | $152,000.00 | 127834 | 2015-03342 |
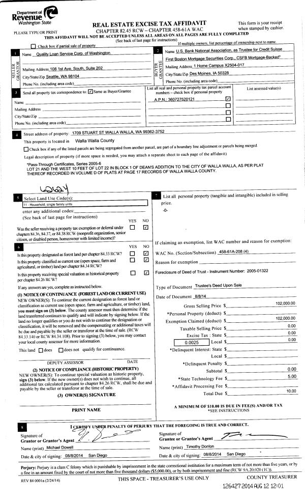
| 3 | 08/08/2014 | TRUSTEES D | TRUSTEE'S DEED | MAY MERL M | US BANK NATIONAL ASSOCIATION | | | $102,000.00 | 126427 | 2014-05756 |
| 4 | 12/03/2008 | QCD | QUIT CLAIM DEED | MAY, KIMBERLY D | MAY, MERL M | | | | 116037 | 2008-11937 |
| 5 | 02/02/2005 | WARRANTY D | WARRANTY DEED | ROGERS, ERNEST V (ESTATE OF) | MAY, MERL M & KIMBERLY D | | | $148,500.00 | 106705 | 2005-01324 |
| 6 | 08/01/1963 | WARRANTY D | WARRANTY DEED | | | | | $18,000.00 | 0 | 3070-450867 |
Payout Agreement
| No payout information available.. |