Property
Account |
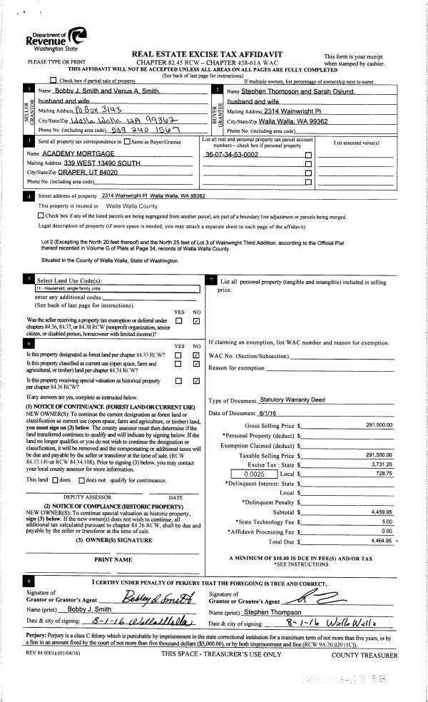
| Property ID: | 14440 | Abbreviated Legal Description: | WAINWRIGHT 3RD LESS N 20' LOT 2 N 25' OF LOT 3 |
| Parcel Number: | 360734530002 | Agent Code: | |
| Type: | Real | | |
| Tax Area: | 101 - 140-4 | Land Use Code | 11 |
| Open Space: | N | DFL | N |
| Historic Property: | N | Remodel Property: | N |
| Multi-Family Redevelopment: | N | | |
| Township: | 7 | Section: | 34 |
| Range: | 36 |
Location |
| Address: | 2314 WAINWRIGHT PL WA 99362 | Mapsco: | |
| Neighborhood: | VG Res Rural/City Inf | Map ID: | |
| Neighborhood CD: | 415012 |
Owner |
| Name: | DUVALL BRIAN G & CAROL J | Owner ID: | 62212 |
| Mailing Address: | 2314 WAINWRIGHT PL WALLA WALLA, WA 99362 | % Ownership: | 100.0000000000% |
| | | Exemptions: | |
Taxes and Assessment Details
Values
| (+) Improvement Homesite Value: | + | $0 | |
| (+) Improvement Non-Homesite Value: | + | $347,650 | |
| (+) Land Homesite Value: | + | $0 | |
| (+) Land Non-Homesite Value: | + | $138,450 | |
| (+) Curr Use (HS): | + | $0 | $0 |
| (+) Curr Use (NHS): | + | $0 | $0 |
| | | -------------------------- | |
| (=) Market Value: | = | $486,100 | |
| (–) Productivity Loss: | – | $0 | |
| | | -------------------------- | |
| (=) Subtotal: | = | $486,100 | |
| (+) Senior Appraised Value: | + | $0 | |
| (+) Non-Senior Appraised Value: | + | $486,100 | |
| | | -------------------------- | |
| (=) Total Appraised Value: | = | $486,100 | |
| (–) Senior Exemption Loss: | – | $0 | |
| (–) Exemption Loss: | – | $0 | |
| | | -------------------------- | |
| (=) Taxable Value: | = | $486,100 | |
Taxing Jurisdiction
| Owner: | DUVALL BRIAN G & CAROL J | | |
| % Ownership: | 100.0000000000% | | |
| Total Value: | $486,100 | | |
| Tax Area: | 101 - 140-4 |
| CERFD | CURRENT EXPENSE REFUND 010 | 0.0000000000 | $486,100 | $486,100 | $0.00 | | |
| CURREXP | CURRENT EXPENSE 010 | 1.0175366760 | $486,100 | $486,100 | $494.62 | | |
| HUMNSERV | HUMAN SERVICES 119 | 0.0250000000 | $486,100 | $486,100 | $12.15 | | |
| SLDREL | SOLDIERS RELIEF 121 | 0.0155990005 | $486,100 | $486,100 | $7.58 | | |
| EMERGSER | EMS 147 | 0.3792580840 | $486,100 | $486,100 | $184.36 | | |
| EMSRFD | EMS REFUND 147 | 0.0000000000 | $486,100 | $486,100 | $0.00 | | |
| FD4EXP | FD #4 EXPENSE 686 | 0.8836993059 | $486,100 | $486,100 | $429.57 | | |
| RLBRFD | RURAL LIBRARY REFUND 623 | 0.0000000000 | $486,100 | $486,100 | $0.00 | | |
| RURALLIB | RURAL LIBRARY 623 | 0.3710609029 | $486,100 | $486,100 | $180.37 | | |
| PORTRFD | PORT REFUND 640 | 0.0000000000 | $486,100 | $486,100 | $0.00 | | |
| PORTWWGEN | PORT OF WW 640 | 0.2460186015 | $486,100 | $486,100 | $119.59 | | |
| SD140BOND | SD #140 BOND 764 | 0.8342371393 | $486,100 | $486,100 | $405.52 | | |
| SD140GEN | SD #140 GENERAL 760 | 2.0646500647 | $486,100 | $486,100 | $1,003.63 | | |
| ST2 | STATE SCHOOL PART 2 600 | 0.8131451643 | $486,100 | $486,100 | $395.27 | | |
| STATESCHL | STATE SCHOOL 600 | 1.5158548041 | $486,100 | $486,100 | $736.86 | | |
| STREFUND | STATE REFUND LEVY 603 | 0.0000000000 | $486,100 | $486,100 | $0.00 | | |
| COROAD | COUNTY ROAD 115 | 1.6549953990 | $486,100 | $486,100 | $804.49 | | |
| CRPRD | COUNTY ROAD REFUND 115 | 0.0000000000 | $486,100 | $486,100 | $0.00 | | |
| | Total Tax Rate: | 9.8210551422 | | | | | |
| | | | | Taxes w/Current Exemptions: | $4,774.01 | | |
| | | | | Taxes w/o Exemptions: | $4,774.01 | | |
Improvement / Building
| Improvement #1: | RESIDENTIAL | State Code: | 11 | 2472.0 sqft | Value: | $347,650 |
| Exterior Wall: | VINYL | Heating/Cooling: | WARM & COOLED AIR | | Number of Bathrooms: | 3 | Number of Bedrooms: | 4 | | Plumbing: | 14 | Roof Covering: | COMP SHINGLE |
|
| | Type | Description | Class CD | Sub Class CD | Year Built | Area |
| | MA | Main Area | 1 | 35 | 1969 | 2472.0 |
| | SI1 | SITE IMPROVEMENT | 1 | 35 | 1969 | 4.0 |
| | ATG | Attached Garage | 1 | 35 | 1969 | 620.0 |
| | RPO | OPEN PORCH W/ROOF | 1 | 35 | 1969 | 110.0 |
| | WOD | Wood Deck | 1 | 35 | 1969 | 304.0 |
| | D1F | Double 1 Story Fireplace | 1 | 35 | 1969 | 1.0 |
| | WDR | WOOD DECK W/ROOF | 1 | 35 | 1969 | 200.0 |
Sketch
Property Image
Land
| 1 | RES 1 | Converted: Residential | 0.5126 | 22330.00 | 0.00 | 0.00 | 1.00 | $138,450 | $0 |
Roll Value History
| 2026 | N/A | N/A | N/A | N/A | N/A |
| 2025 | $458,900 | $138,450 | $0 | $597,350 | $597,350 |
| 2024 | $417,180 | $138,450 | $0 | $555,630 | $555,630 |
| 2023 | $347,650 | $138,450 | $0 | $486,100 | $486,100 |
| 2022 | $386,280 | $67,660 | $0 | $453,940 | $453,940 |
| 2021 | $297,140 | $67,660 | $0 | $364,800 | $364,800 |
| 2020 | $247,620 | $67,660 | $0 | $315,280 | $315,280 |
| 2019 | $247,620 | $67,660 | $0 | $315,280 | $315,280 |
| 2018 | $215,320 | $67,660 | $0 | $282,980 | $282,980 |
| 2017 | $205,060 | $67,660 | $0 | $272,720 | $272,720 |
| 2016 | $207,020 | $57,600 | $0 | $264,620 | $264,620 |
| 2015 | $188,200 | $57,600 | $0 | $245,800 | $245,800 |
| 2014 | $188,200 | $57,600 | $0 | $245,800 | $245,800 |
| 2013 | $188,200 | $57,600 | $0 | $245,800 | $245,800 |
| 2012 | $188,200 | $57,600 | $0 | $0 | $0 |
| 2011 | $167,600 | $57,600 | $0 | $0 | $0 |
| 2010 | $167,600 | $57,600 | $0 | $0 | $0 |
| 2009 | $192,600 | $57,600 | $0 | $0 | $0 |
| 2008 | $192,600 | $57,600 | $0 | $0 | $0 |
| 2007 | $136,000 | $35,100 | $0 | $0 | $0 |
Deed and Sales History
| 1 | 12/05/2017 | SWD | STATUTORY WARRANTY DEED | THOMPSON STEPHEN | DUVALL BRIAN G & CAROL J | | | $320,000.00 | 133738 | 2017-09737 |
| 2 | 08/02/2016 | SWD | STATUTORY WARRANTY DEED | SMITH BOBBY J & VENUS A | THOMPSON STEPHEN | | | $291,500.00 | 130761 | 2016-06116 |
| 3 | 02/11/2005 | WARRANTY D | WARRANTY DEED | WINGER, ERIC & MELISSA | SMITH, BOBBY J & VENUS A | | | $207,700.00 | 106760 | 2005-01643 |
| 4 | 08/13/1999 | WARRANTY D | WARRANTY DEED | | | | | $168,500.00 | 93402 | 2889-909523 |
Payout Agreement
| No payout information available.. |