Property
Account |
| Property ID: | 14428 | Abbreviated Legal Description: | SAGE VIEW ADD LOT 28 |
| Parcel Number: | 300812580028 | Agent Code: | |
| Type: | Real | | |
| Tax Area: | 331 - 400-M-5-W4 | Land Use Code | 11 |
| Open Space: | N | DFL | N |
| Historic Property: | N | Remodel Property: | N |
| Multi-Family Redevelopment: | N | | |
| Township: | 8 | Section: | 12 |
| Range: | 30 |
Location |
| Address: | 607 HANSON LOOP WA 99323 | Mapsco: | |
| Neighborhood: | Burbank A MH | Map ID: | |
| Neighborhood CD: | 213761 |
Owner |
| Name: | GARRISON DOUGLAS N | Owner ID: | 66757 |
| Mailing Address: | PO BOX 502 RICHLAND, WA 99352 | % Ownership: | 100.0000000000% |
| | | Exemptions: | |
Taxes and Assessment Details
Values
| (+) Improvement Homesite Value: | + | $0 | |
| (+) Improvement Non-Homesite Value: | + | $157,370 | |
| (+) Land Homesite Value: | + | $0 | |
| (+) Land Non-Homesite Value: | + | $59,670 | |
| (+) Curr Use (HS): | + | $0 | $0 |
| (+) Curr Use (NHS): | + | $0 | $0 |
| | | -------------------------- | |
| (=) Market Value: | = | $217,040 | |
| (–) Productivity Loss: | – | $0 | |
| | | -------------------------- | |
| (=) Subtotal: | = | $217,040 | |
| (+) Senior Appraised Value: | + | $0 | |
| (+) Non-Senior Appraised Value: | + | $217,040 | |
| | | -------------------------- | |
| (=) Total Appraised Value: | = | $217,040 | |
| (–) Senior Exemption Loss: | – | $0 | |
| (–) Exemption Loss: | – | $0 | |
| | | -------------------------- | |
| (=) Taxable Value: | = | $217,040 | |
Taxing Jurisdiction
| Owner: | GARRISON DOUGLAS N | | |
| % Ownership: | 100.0000000000% | | |
| Total Value: | $217,040 | | |
| Tax Area: | 331 - 400-M-5-W4 |
| CERFD | CURRENT EXPENSE REFUND 010 | 0.0000000000 | $217,040 | $217,040 | $0.00 | | |
| CURREXP | CURRENT EXPENSE 010 | 1.0175366760 | $217,040 | $217,040 | $220.85 | | |
| HUMNSERV | HUMAN SERVICES 119 | 0.0250000000 | $217,040 | $217,040 | $5.43 | | |
| SLDREL | SOLDIERS RELIEF 121 | 0.0155990005 | $217,040 | $217,040 | $3.39 | | |
| EMERGSER | EMS 147 | 0.3792580840 | $217,040 | $217,040 | $82.31 | | |
| EMSRFD | EMS REFUND 147 | 0.0000000000 | $217,040 | $217,040 | $0.00 | | |
| FD5EXP | FD #5 EXPENSE 689 | 1.2045331840 | $217,040 | $217,040 | $261.43 | | |
| RLBRFD | RURAL LIBRARY REFUND 623 | 0.0000000000 | $217,040 | $217,040 | $0.00 | | |
| RURALLIB | RURAL LIBRARY 623 | 0.3710609029 | $217,040 | $217,040 | $80.54 | | |
| PORTRFD | PORT REFUND 640 | 0.0000000000 | $217,040 | $217,040 | $0.00 | | |
| PORTWWGEN | PORT OF WW 640 | 0.2460186015 | $217,040 | $217,040 | $53.40 | | |
| SD400BOND | SD #400 BOND 793 | 0.0000000000 | $217,040 | $217,040 | $0.00 | | |
| SD400CAP | SD #400 CP 792 | 0.3443722657 | $217,040 | $217,040 | $74.74 | | |
| SD400GEN | SD #400 GENERAL 790 | 1.9278469916 | $217,040 | $217,040 | $418.42 | | |
| ST2 | STATE SCHOOL PART 2 600 | 0.8131451643 | $217,040 | $217,040 | $176.49 | | |
| STATESCHL | STATE SCHOOL 600 | 1.5158548041 | $217,040 | $217,040 | $329.00 | | |
| STREFUND | STATE REFUND LEVY 603 | 0.0000000000 | $217,040 | $217,040 | $0.00 | | |
| COROAD | COUNTY ROAD 115 | 1.6549953990 | $217,040 | $217,040 | $359.20 | | |
| CRPRD | COUNTY ROAD REFUND 115 | 0.0000000000 | $217,040 | $217,040 | $0.00 | | |
| | Total Tax Rate: | 9.5152210736 | | | | | |
| | | | | Taxes w/Current Exemptions: | $2,065.20 | | |
| | | | | Taxes w/o Exemptions: | $2,065.20 | | |
Improvement / Building
| Improvement #1: | MANUFACTURED HOME | State Code: | 11 | 960.0 sqft | Value: | $157,370 |
| Exterior Wall: | METAL/STEEL | Heating/Cooling: | HEAT PUMP | | Number of Bathrooms: | 2 | Number of Bedrooms: | 2 | | Plumbing: | 8 | Roof Covering: | BITUMEN MEMBRANE | | SKIRTING: | MTL/VYN |   |   |
|
| | Type | Description | Class CD | Sub Class CD | Year Built | Area |
| | MOBHOME | MANUFACTURD HOMES | 1 | 30 | 1977 | 960.0 |
| | MI1 | MH SET-UP COSTS | 1 | 30 | 1977 | 1.0 |
| | WOD | Wood Deck | 1 | 30 | 2019 | 240.0 |
| | WOD | Wood Deck | 1 | 30 | 2019 | 240.0 |
| | POL3 | POLE BUILDING-CON,ELEC,INSU | 1 | 30 | 2000 | 600.0 |
Sketch
Property Image
Land
| 1 | RES 1 | Converted: Residential | 0.2878 | 12535.00 | 0.00 | 0.00 | 1.00 | $59,670 | $0 |
Roll Value History
| 2026 | N/A | N/A | N/A | N/A | N/A |
| 2025 | $196,710 | $59,670 | $0 | $256,380 | $256,380 |
| 2024 | $157,370 | $59,670 | $0 | $217,040 | $217,040 |
| 2023 | $157,370 | $59,670 | $0 | $217,040 | $217,040 |
| 2022 | $157,370 | $59,670 | $0 | $217,040 | $217,040 |
| 2021 | $157,370 | $59,670 | $0 | $217,040 | $217,040 |
| 2020 | $117,010 | $22,800 | $0 | $139,810 | $139,810 |
| 2019 | $12,960 | $22,800 | $0 | $35,760 | $35,760 |
| 2018 | $7,200 | $22,800 | $0 | $30,000 | $30,000 |
| 2017 | $7,200 | $22,800 | $0 | $30,000 | $30,000 |
| 2016 | $7,200 | $22,800 | $0 | $30,000 | $30,000 |
| 2015 | $7,200 | $22,800 | $0 | $30,000 | $30,000 |
| 2014 | $7,200 | $22,800 | $0 | $30,000 | $30,000 |
| 2013 | $7,200 | $22,800 | $0 | $30,000 | $30,000 |
| 2012 | $7,200 | $22,800 | $0 | $0 | $0 |
| 2011 | $7,200 | $22,800 | $0 | $0 | $0 |
| 2010 | $7,200 | $22,800 | $0 | $0 | $0 |
| 2009 | $7,200 | $18,400 | $0 | $0 | $0 |
| 2008 | $7,200 | $18,400 | $0 | $0 | $0 |
| 2007 | $7,200 | $18,400 | $0 | $0 | $0 |
Deed and Sales History
| 1 | 04/05/2023 | TODD | TRANSFER ON DEATH DEED | GARRISON DOUGLAS N | WEBER JAMES | | | | 0 | 2023-01758 |
| 2 | 02/21/2020 | QCD | QUIT CLAIM DEED | GARRISON DIANNA L | GARRISON DOUGLAS N | | | | 138650 | 2020-01603 |
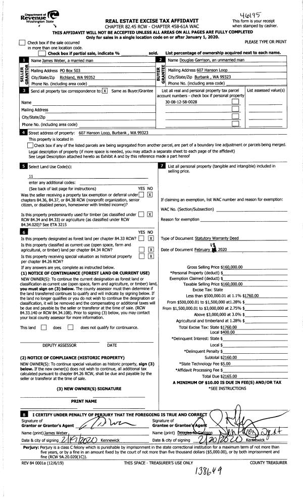
| 3 | 02/21/2020 | SWD | STATUTORY WARRANTY DEED | WEBER JAMES | GARRISON DOUGLAS N | | | $160,000.00 | 138649 | 2020-01602 |
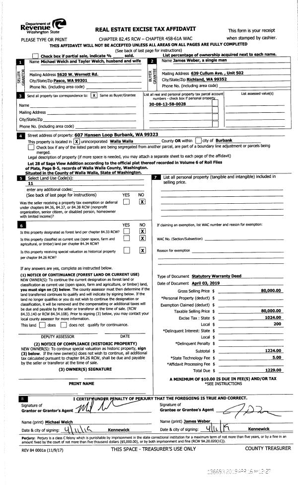
| 4 | 04/16/2019 | SWD | STATUTORY WARRANTY DEED | WELCH MICHAEL & TAYLER | WEBER JAMES | | | $80,000.00 | 136693 | 2019-02398 |
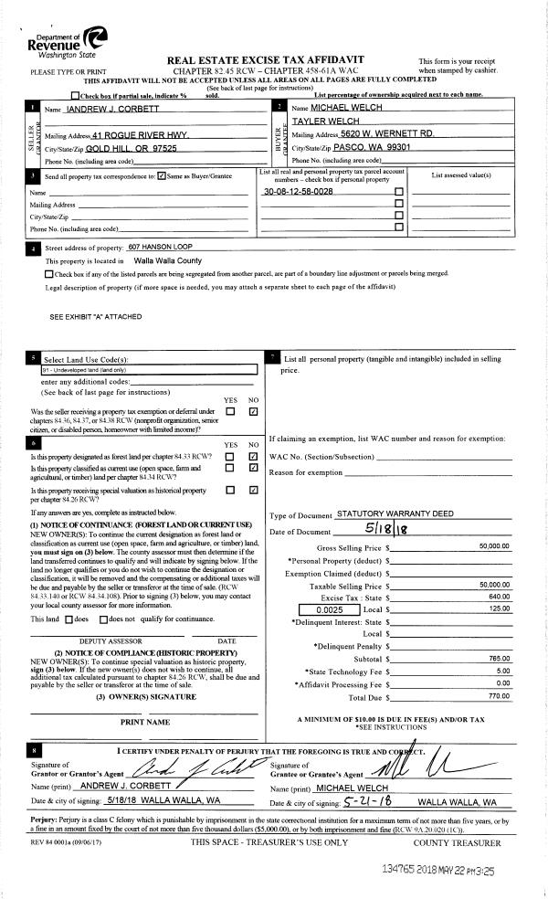
| 5 | 05/22/2018 | SWD | STATUTORY WARRANTY DEED | CORBETT ANDREW J | WELCH MICHAEL & TAYLER | | | $50,000.00 | 134765 | 2018-04056 |
| 6 | 04/21/2006 | WARRANTY D | WARRANTY DEED | FEDERAL HOME LOAN MORTGAGE COR | CORBETT, ANDREW J | | | $32,000.00 | 110077 | 2006-04502 |
| 7 | 02/24/2005 | WARRANTY D | WARRANTY DEED | MORTGAGE ELECTRONIC REGISTRATI | FEDERAL HOME LOAN MORTGAGE COR | | | | 106835 | 2005-02116 |
| 8 | 02/24/2005 | WARRANTY D | WARRANTY DEED | WOOLEVER, DARRYLD & KAROL | MORTGAGE ELECTRONIC REGISTRATI | | | | 106834 | 2005-02115 |
| 9 | 01/01/1996 | WARRANTY D | WARRANTY DEED | | | | | $17,500.00 | 85547 | 2379-601026 |
Payout Agreement
| No payout information available.. |