| 1 | 08/10/2021 | QCD | QUIT CLAIM DEED | WASSER PHILIP C R & TARRAH BROWN | WASSER PHILIP C R & TARRAH J | | | $0.00 | 142258 | 2021-09766 |
| 2 | 12/12/2012 | QCD | QUIT CLAIM DEED | WASSER, PHILIP C & S REID | WASSER, PHILIP C R & TARRAH J | | | $0.00 | 123143 | 2012-11073 |
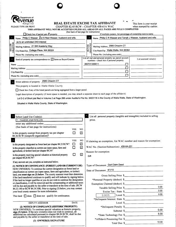
| 3 | 04/01/2010 | QCD | QUIT CLAIM DEED | WASSER, PHILIP C & S REID | WASSER, PHILIP C.R. & TARRAH J | | | | 118286 | 2010-02660 |
| 4 | 12/12/2005 | WARRANTY D | WARRANTY DEED | MAJERUS, DOUGLAS & CHRISTINA | WASSER, PHILIP C R & TARRAH BR | | | $49,900.00 | 109227 | 2005-15520 |
| 5 | 12/12/2005 | WARRANTY D | WARRANTY DEED | MAJERUS, DOUGLAS & CHRISTINA | WASSER, PHILIP C & S REID | | | $380,000.00 | 109226 | 2005-15519 |
| 6 | 03/16/2005 | WARRANTY D | WARRANTY DEED | LIVINGSTON, JEFF & PAULA | MAJERUS, DOUGLAS A & CHRISTINA | | | $70,000.00 | 107006 | 2005-02979 |
| 7 | 08/14/1995 | WARRANTY D | WARRANTY DEED | | | | | $25,900.00 | 84546 | 2329-507646 |