Property
Account |
| Property ID: | 14416 | Abbreviated Legal Description: | HENDERSON PARCEL 1 OF SHORT PLAT (NLY PTN TAX 2) BLOCK 50 |
| Parcel Number: | 360729684008 | Agent Code: | |
| Type: | Real | | |
| Tax Area: | 1 - OL-140-F | Land Use Code | 11 |
| Open Space: | N | DFL | N |
| Historic Property: | N | Remodel Property: | N |
| Multi-Family Redevelopment: | N | | |
| Township: | 7 | Section: | 29 |
| Range: | 36 |
Location |
| Address: | 1011 S 4TH AVE WA 99362 | Mapsco: | |
| Neighborhood: | Fair Res Duplex/Town | Map ID: | |
| Neighborhood CD: | 612031 |
Owner |
| Name: | GREER ERIC J | Owner ID: | 54465 |
| Mailing Address: | 1125 SAGEBRUSH LN TOUCHET, WA 99360 | % Ownership: | 100.0000000000% |
| | | Exemptions: | |
Taxes and Assessment Details
Values
| (+) Improvement Homesite Value: | + | $0 | |
| (+) Improvement Non-Homesite Value: | + | $338,910 | |
| (+) Land Homesite Value: | + | $0 | |
| (+) Land Non-Homesite Value: | + | $62,920 | |
| (+) Curr Use (HS): | + | $0 | $0 |
| (+) Curr Use (NHS): | + | $0 | $0 |
| | | -------------------------- | |
| (=) Market Value: | = | $401,830 | |
| (–) Productivity Loss: | – | $0 | |
| | | -------------------------- | |
| (=) Subtotal: | = | $401,830 | |
| (+) Senior Appraised Value: | + | $0 | |
| (+) Non-Senior Appraised Value: | + | $401,830 | |
| | | -------------------------- | |
| (=) Total Appraised Value: | = | $401,830 | |
| (–) Senior Exemption Loss: | – | $0 | |
| (–) Exemption Loss: | – | $0 | |
| | | -------------------------- | |
| (=) Taxable Value: | = | $401,830 | |
Taxing Jurisdiction
| Owner: | GREER ERIC J | | |
| % Ownership: | 100.0000000000% | | |
| Total Value: | $401,830 | | |
| Tax Area: | 1 - OL-140-F |
| CERFD | CURRENT EXPENSE REFUND 010 | 0.0000000000 | $401,830 | $401,830 | $0.00 | | |
| CURREXP | CURRENT EXPENSE 010 | 1.0175366760 | $401,830 | $401,830 | $408.88 | | |
| HUMNSERV | HUMAN SERVICES 119 | 0.0250000000 | $401,830 | $401,830 | $10.05 | | |
| SLDREL | SOLDIERS RELIEF 121 | 0.0155990005 | $401,830 | $401,830 | $6.27 | | |
| EMERGSER | EMS 147 | 0.3792580840 | $401,830 | $401,830 | $152.40 | | |
| EMSRFD | EMS REFUND 147 | 0.0000000000 | $401,830 | $401,830 | $0.00 | | |
| PORTRFD | PORT REFUND 640 | 0.0000000000 | $401,830 | $401,830 | $0.00 | | |
| PORTWWGEN | PORT OF WW 640 | 0.2460186015 | $401,830 | $401,830 | $98.86 | | |
| SD140BOND | SD #140 BOND 764 | 0.8342371393 | $401,830 | $401,830 | $335.22 | | |
| SD140GEN | SD #140 GENERAL 760 | 2.0646500647 | $401,830 | $401,830 | $829.64 | | |
| ST2 | STATE SCHOOL PART 2 600 | 0.8131451643 | $401,830 | $401,830 | $326.75 | | |
| STATESCHL | STATE SCHOOL 600 | 1.5158548041 | $401,830 | $401,830 | $609.12 | | |
| STREFUND | STATE REFUND LEVY 603 | 0.0000000000 | $401,830 | $401,830 | $0.00 | | |
| CWWBOND | C OF WW BOND 643 | 0.2760494372 | $401,830 | $401,830 | $110.92 | | |
| CWWGEN | CITY OF WW 631 | 1.6100204973 | $401,830 | $401,830 | $646.95 | | |
| CWWRFD | CITY OF WALLA WALLA REFUND 631 | 0.0000000000 | $401,830 | $401,830 | $0.00 | | |
| | Total Tax Rate: | 8.7973694689 | | | | | |
| | | | | Taxes w/Current Exemptions: | $3,535.06 | | |
| | | | | Taxes w/o Exemptions: | $3,535.06 | | |
Improvement / Building
| Improvement #1: | RESIDENTIAL | State Code: | 11 | 2174.0 sqft | Value: | $338,910 |
| Exterior Wall: | SIDING | Heating/Cooling: | WARM & COOLED AIR | | Number of Bathrooms: | 4 | Number of Bedrooms: | 4 | | Plumbing: | 24 | Roof Covering: | COMP SHINGLE |
|
| | Type | Description | Class CD | Sub Class CD | Year Built | Area |
| | MA | Main Area | 1 | 35 | 2006 | 2174.0 |
| | SI1 | SITE IMPROVEMENT | 1 | 35 | 2006 | 2.5 |
| | ATG | Attached Garage | 1 | 35 | 2006 | 1058.0 |
| | RPC | OPEN PORCH W/ROOF , CEILED | 1 | 35 | 2006 | 21.0 |
| | RPC | OPEN PORCH W/ROOF , CEILED | 1 | 35 | 2006 | 28.0 |
Sketch
Property Image
Land
| 1 | RES 1 | Converted: Residential | 0.1806 | 7865.00 | 0.00 | 0.00 | 1.00 | $62,920 | $0 |
Roll Value History
| 2026 | N/A | N/A | N/A | N/A | N/A |
| 2025 | $325,900 | $78,650 | $0 | $404,550 | $404,550 |
| 2024 | $334,500 | $70,800 | $0 | $405,300 | $405,300 |
| 2023 | $338,910 | $62,920 | $0 | $401,830 | $401,830 |
| 2022 | $338,910 | $49,160 | $0 | $388,070 | $388,070 |
| 2021 | $282,430 | $49,160 | $0 | $331,590 | $331,590 |
| 2020 | $225,940 | $49,160 | $0 | $275,100 | $275,100 |
| 2019 | $225,940 | $49,160 | $0 | $275,100 | $275,100 |
| 2018 | $184,470 | $45,300 | $0 | $229,770 | $229,770 |
| 2017 | $184,470 | $45,300 | $0 | $229,770 | $229,770 |
| 2016 | $167,700 | $45,300 | $0 | $213,000 | $213,000 |
| 2015 | $159,720 | $45,300 | $0 | $205,020 | $205,020 |
| 2014 | $187,900 | $45,300 | $0 | $233,200 | $233,200 |
| 2013 | $187,900 | $45,300 | $0 | $233,200 | $233,200 |
| 2012 | $187,900 | $45,300 | $0 | $0 | $0 |
| 2011 | $187,900 | $45,300 | $0 | $0 | $0 |
| 2010 | $187,900 | $45,300 | $0 | $0 | $0 |
| 2009 | $213,800 | $45,300 | $0 | $0 | $0 |
| 2008 | $213,800 | $45,300 | $0 | $0 | $0 |
| 2007 | $208,200 | $15,700 | $0 | $0 | $0 |
Deed and Sales History
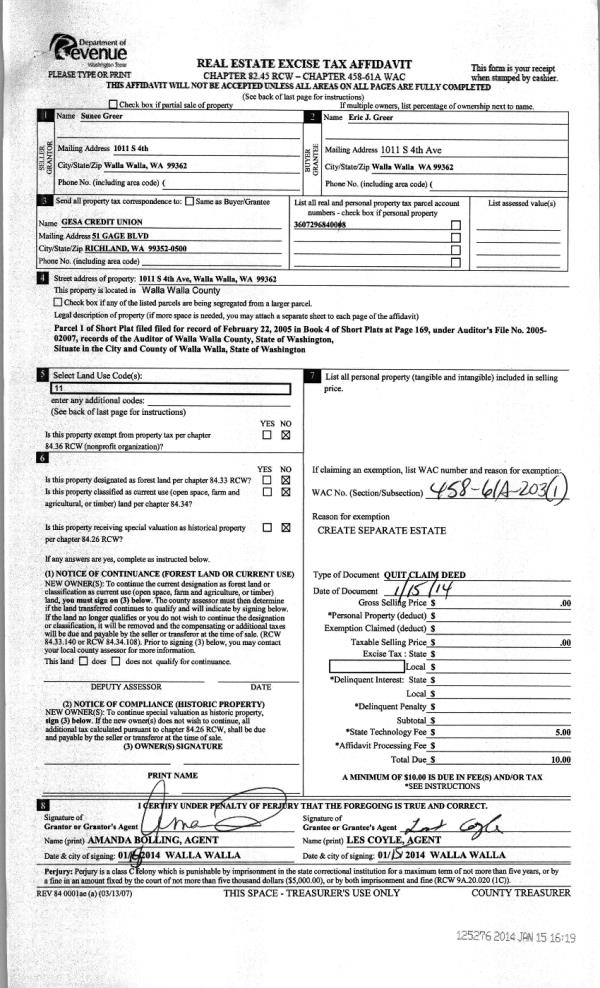
| 1 | 01/15/2014 | QCD | QUIT CLAIM DEED | GREER ERIC J | | | | | 125276 | 2014-00342 |
| 2 | 01/15/2014 | SWD | STATUTORY WARRANTY DEED | VIXIE WILLIAM D | GREER ERIC J | | | $210,000.00 | 125275 | 2014-00341 |
| 3 | 02/28/2011 | QCD | QUIT CLAIM DEED | VIXIE, RACHEL J | VIXIE, WILLIAM D | | | | 119807 | 2011-01851 |
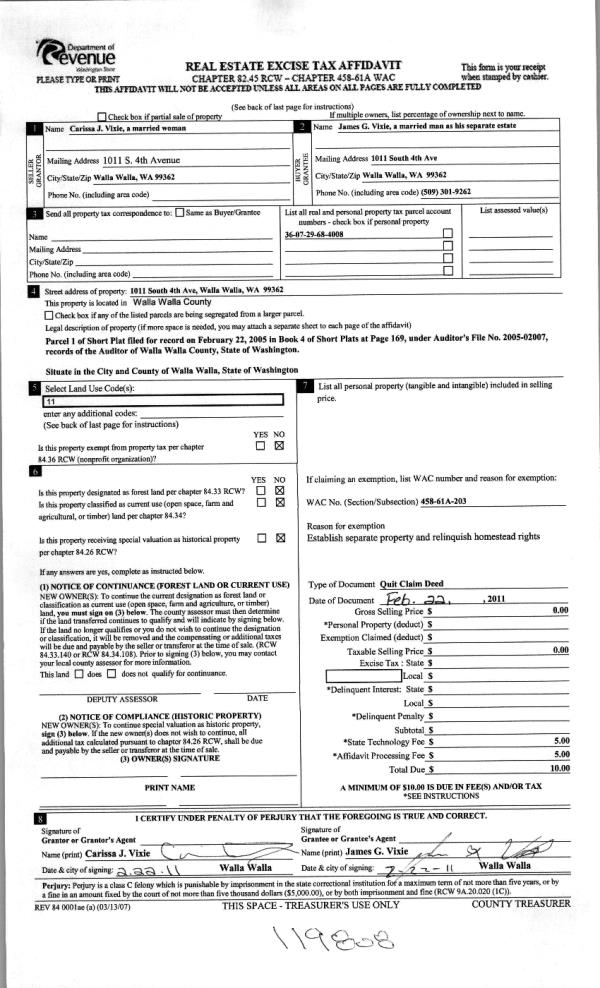
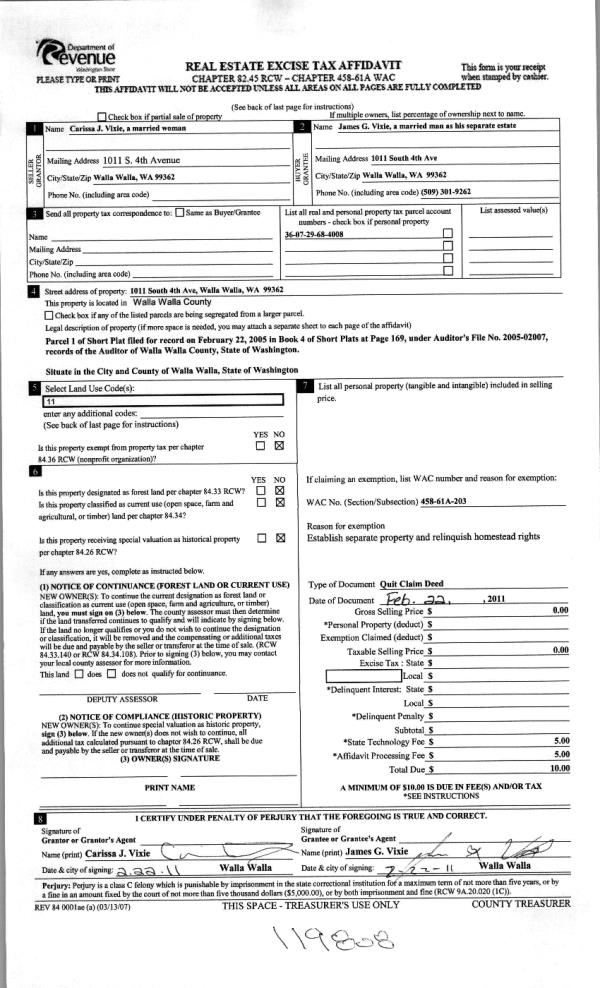
| 4 | 02/28/2011 | QCD | QUIT CLAIM DEED | VIXIE, CARISSA J | VIXIE, JAMES G | | | | 119808 | 2011-01852 |
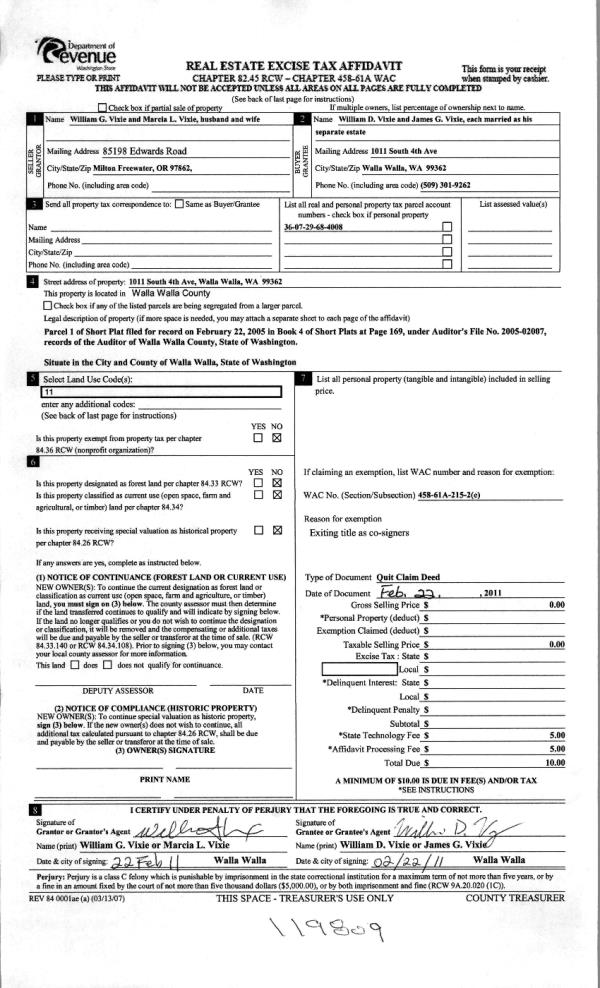
| 5 | 02/28/2011 | QCD | QUIT CLAIM DEED | VIXIE, WILLIAM G & MARCIA L | VIXIE, WILLIAM D | | | | 119809 | 2011-01853 |
| 6 | 03/16/2005 | WARRANTY D | WARRANTY DEED | NEW YORK STORE, INC | VIXIE, WILLIAM G & MARCIA L | | | $29,000.00 | 107002 | 2005-02965 |
Payout Agreement
| No payout information available.. |