Property
Account |
| Property ID: | 1441 | Abbreviated Legal Description: | SCENIC VIEW ADDN LTS 21 & 22 BLK 10 |
| Parcel Number: | 350736581021 | Agent Code: | |
| Type: | Real | | |
| Tax Area: | 75 - CP 250 | Land Use Code | 12 |
| Open Space: | N | DFL | N |
| Historic Property: | N | Remodel Property: | N |
| Multi-Family Redevelopment: | N | | |
| Township: | 7 | Section: | 36 |
| Range: | 35 |
Location |
| Address: | 717 SE SCENIC VIEW DR WA 99324 | Mapsco: | |
| Neighborhood: | A Apartment | Map ID: | |
| Neighborhood CD: | 113021 |
Owner |
| Name: | HERNANDEZ JAVIER & BERONICA | Owner ID: | 4254 |
| Mailing Address: | 606 S COLLEGE AVE COLLEGE PLACE, WA 99324 | % Ownership: | 100.0000000000% |
| | | Exemptions: | |
Taxes and Assessment Details
Property Tax Information as of
02/21/2026
Click on "Statement Details" to expand or collapse a tax statement.
* Please enter a valid date ** Please enter a valid date *
Statement Details |
| | TOTAL: | $0.00 | $0.00 | $0.00 | $0.00 | $0.00 | $0.00 |
|
| | $0.00 | $0.00 | $0.00 | $0.00 | $0.00 | $0.00 |
Values
| (+) Improvement Homesite Value: | + | $0 | |
| (+) Improvement Non-Homesite Value: | + | $335,490 | |
| (+) Land Homesite Value: | + | $0 | |
| (+) Land Non-Homesite Value: | + | $62,550 | |
| (+) Curr Use (HS): | + | $0 | $0 |
| (+) Curr Use (NHS): | + | $0 | $0 |
| | | -------------------------- | |
| (=) Market Value: | = | $398,040 | |
| (–) Productivity Loss: | – | $0 | |
| | | -------------------------- | |
| (=) Subtotal: | = | $398,040 | |
| (+) Senior Appraised Value: | + | $0 | |
| (+) Non-Senior Appraised Value: | + | $398,040 | |
| | | -------------------------- | |
| (=) Total Appraised Value: | = | $398,040 | |
| (–) Senior Exemption Loss: | – | $0 | |
| (–) Exemption Loss: | – | $0 | |
| | | -------------------------- | |
| (=) Taxable Value: | = | $398,040 | |
Taxing Jurisdiction
| Owner: | HERNANDEZ JAVIER & BERONICA | | |
| % Ownership: | 100.0000000000% | | |
| Total Value: | $398,040 | | |
| Tax Area: | 75 - CP 250 |
| CERFD | CURRENT EXPENSE REFUND 010 | 0.0000000000 | $398,040 | $398,040 | $0.00 | | |
| CURREXP | CURRENT EXPENSE 010 | 1.0175366760 | $398,040 | $398,040 | $405.02 | | |
| HUMNSERV | HUMAN SERVICES 119 | 0.0250000000 | $398,040 | $398,040 | $9.95 | | |
| SLDREL | SOLDIERS RELIEF 121 | 0.0155990005 | $398,040 | $398,040 | $6.21 | | |
| COLLPLBOND | C OF CP BOND 644 | 0.4374241808 | $398,040 | $398,040 | $174.11 | | |
| COLLPLGEN | CITY OF CP 632 | 1.4453819216 | $398,040 | $398,040 | $575.32 | | |
| EMERGSER | EMS 147 | 0.3792580840 | $398,040 | $398,040 | $150.96 | | |
| EMSRFD | EMS REFUND 147 | 0.0000000000 | $398,040 | $398,040 | $0.00 | | |
| RURALLIB | RURAL LIBRARY 623 | 0.3710609029 | $398,040 | $398,040 | $147.70 | | |
| PORTRFD | PORT REFUND 640 | 0.0000000000 | $398,040 | $398,040 | $0.00 | | |
| PORTWWGEN | PORT OF WW 640 | 0.2460186015 | $398,040 | $398,040 | $97.93 | | |
| SD250BOND | SD #250 BOND 773 | 1.4560608159 | $398,040 | $398,040 | $579.57 | | |
| SD250GEN | SD #250 GENERAL 770 | 2.3880724087 | $398,040 | $398,040 | $950.55 | | |
| ST2 | STATE SCHOOL PART 2 600 | 0.8131451643 | $398,040 | $398,040 | $323.66 | | |
| STATESCHL | STATE SCHOOL 600 | 1.5158548041 | $398,040 | $398,040 | $603.37 | | |
| STREFUND | STATE REFUND LEVY 603 | 0.0000000000 | $398,040 | $398,040 | $0.00 | | |
| | Total Tax Rate: | 10.1104125603 | | | | | |
| | | | | Taxes w/Current Exemptions: | $4,024.35 | | |
| | | | | Taxes w/o Exemptions: | $4,024.35 | | |
Improvement / Building
| Improvement #1: | RESIDENTIAL | State Code: | 12 | 2098.0 sqft | Value: | $335,490 |
| Exterior Wall: | STUCCO | Heating/Cooling: | WARM & COOLED AIR | | Number of Bathrooms: | 3 | Number of Bedrooms: | 3 | | Plumbing: | 14 | Roof Covering: | COMP SHINGLE |
|
| | Type | Description | Class CD | Sub Class CD | Year Built | Area |
| | MA | Main Area | 1 | 30 | 1959 | 2098.0 |
| | SI1 | SITE IMPROVEMENT | 1 | 30 | 1959 | 2.0 |
| | BASE | BASEMENT | 1 | 30 | 1959 | 2098.0 |
| | BPF | BASEMENT -PARTITIONED FINISH | 1 | 30 | 1959 | 1784.0 |
| | STG1 | Sub Terrain Garage Single | 1 | 30 | 1959 | 1.0 |
| | S2F | Single 2S Fireplace | 1 | 30 | 1959 | 1.0 |
| | BLW | WOOD BALCONIES | 1 | 30 | 1959 | 192.0 |
| | APP | APPLIANCE ALLOWANCE | 1 | 30 | 1959 | 2.0 |
| | FBAT | FULL BATH | 1 | 30 | 1959 | 1.0 |
| | WOD | Wood Deck | 1 | 30 | 1959 | 247.0 |
Sketch
Property Image
Land
| 1 | RES 1 | Converted: Residential | 0.2810 | 12240.00 | 0.00 | 0.00 | 1.00 | $62,550 | $0 |
Roll Value History
| 2026 | N/A | N/A | N/A | N/A | N/A |
| 2025 | $335,490 | $93,760 | $0 | $429,250 | $429,250 |
| 2024 | $335,490 | $62,550 | $0 | $398,040 | $398,040 |
| 2023 | $335,490 | $62,550 | $0 | $398,040 | $398,040 |
| 2022 | $335,490 | $62,550 | $0 | $398,040 | $398,040 |
| 2021 | $335,490 | $62,550 | $0 | $398,040 | $398,040 |
| 2020 | $231,370 | $62,550 | $0 | $293,920 | $293,920 |
| 2019 | $244,920 | $49,000 | $0 | $293,920 | $293,920 |
| 2018 | $233,260 | $49,000 | $0 | $282,260 | $282,260 |
| 2017 | $226,460 | $49,000 | $0 | $275,460 | $275,460 |
| 2016 | $205,880 | $49,000 | $0 | $254,880 | $254,880 |
| 2015 | $205,880 | $49,000 | $0 | $254,880 | $254,880 |
| 2014 | $164,700 | $49,000 | $0 | $213,700 | $213,700 |
| 2013 | $164,700 | $49,000 | $0 | $213,700 | $213,700 |
| 2012 | $164,700 | $49,000 | $0 | $0 | $0 |
| 2011 | $164,700 | $49,000 | $0 | $0 | $0 |
| 2010 | $147,700 | $49,000 | $0 | $0 | $0 |
| 2009 | $169,500 | $49,000 | $0 | $0 | $0 |
| 2008 | $170,600 | $26,700 | $0 | $0 | $0 |
| 2007 | $170,600 | $26,700 | $0 | $0 | $0 |
Deed and Sales History
| 1 | 01/22/2021 | SWD | STATUTORY WARRANTY DEED | EKBASIS INTERNATIONAL #1 LLC | HERNANDEZ JAVIER & BERONICA | | | $400,000.00 | 140785 | 2021-00869 |
| 2 | 12/20/2018 | QCD | QUIT CLAIM DEED | NELSON CHARLES L | EKBASIS INTERNATIONAL #1 LLC | | | $0.00 | 136122 | 2018-10509 |
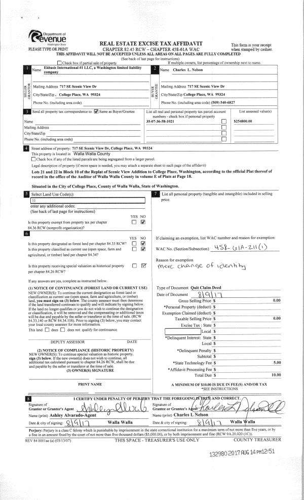
| 3 | 08/09/2017 | QCD | QUIT CLAIM DEED | EKBASIS INTERNATIONAL #1 LLC | NELSON CHARLES L | | | $0.00 | 132980 | 2017-06197 |
| 4 | 01/27/2016 | QCD | QUIT CLAIM DEED | NELSON CHARLES L | EKBASIS INTERNATIONAL #1 LLC | | | $0.00 | 129575 | 2016-00665 |
| 5 | 07/10/2014 | SWD | STATUTORY WARRANTY DEED | HERNANDEZ DONNA L | NELSON CHARLES L | | | $270,000.00 | 126227 | 2014-04791 |
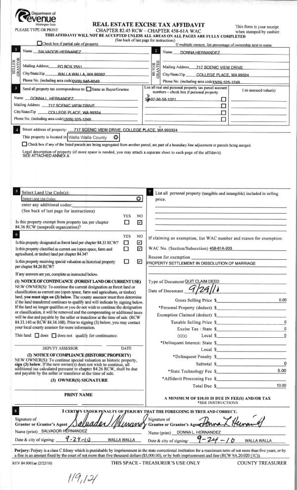
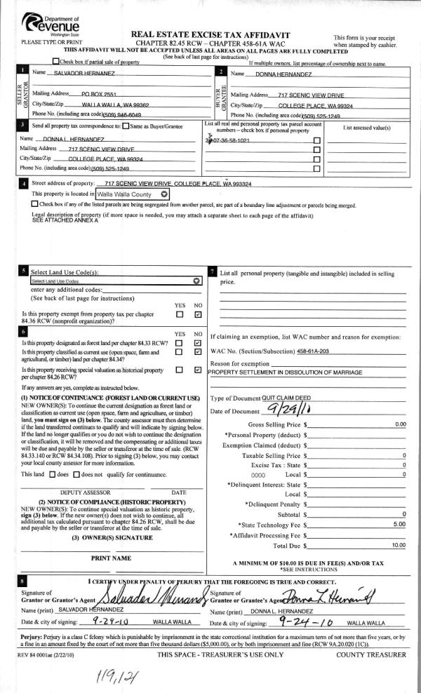
| 6 | 10/04/2010 | QCD | QUIT CLAIM DEED | HERNANDEZ, SALVADOR | HERNANDEZ, DONNA L | | | | 119121 | 2010-07901 |
| 7 | 02/28/2003 | WARRANTY D | WARRANTY DEED | ROGERS, DONLEY L | HERNANDEZ, SALVADOR & DONNA L | | | $198,000.00 | 101490 | 2003-02654 |
| 8 | 08/29/1978 | WARRANTY D | WARRANTY DEED | | | | | $65,000.00 | 0 | 8878-07653 |
Payout Agreement
| No payout information available.. |