Property
Account |
| Property ID: | 14338 | Abbreviated Legal Description: | DONNIES LOT 3 |
| Parcel Number: | 360732520003 | Agent Code: | |
| Type: | Real | | |
| Tax Area: | 1 - OL-140-F | Land Use Code | 11 |
| Open Space: | N | DFL | N |
| Historic Property: | N | Remodel Property: | N |
| Multi-Family Redevelopment: | N | | |
| Township: | 7 | Section: | 32 |
| Range: | 36 |
Location |
| Address: | 145 WINNEBAGO ST WA 99362 | Mapsco: | |
| Neighborhood: | A Res | Map ID: | |
| Neighborhood CD: | 613011 |
Owner |
| Name: | MIWA JUN | Owner ID: | 73141 |
| Mailing Address: | 145 WINNEBAGO ST WALLA WALLA, WA 99362 | % Ownership: | 100.0000000000% |
| | | Exemptions: | |
Taxes and Assessment Details
Values
| (+) Improvement Homesite Value: | + | $0 | |
| (+) Improvement Non-Homesite Value: | + | $190,150 | |
| (+) Land Homesite Value: | + | $0 | |
| (+) Land Non-Homesite Value: | + | $57,420 | |
| (+) Curr Use (HS): | + | $0 | $0 |
| (+) Curr Use (NHS): | + | $0 | $0 |
| | | -------------------------- | |
| (=) Market Value: | = | $247,570 | |
| (–) Productivity Loss: | – | $0 | |
| | | -------------------------- | |
| (=) Subtotal: | = | $247,570 | |
| (+) Senior Appraised Value: | + | $0 | |
| (+) Non-Senior Appraised Value: | + | $247,570 | |
| | | -------------------------- | |
| (=) Total Appraised Value: | = | $247,570 | |
| (–) Senior Exemption Loss: | – | $0 | |
| (–) Exemption Loss: | – | $0 | |
| | | -------------------------- | |
| (=) Taxable Value: | = | $247,570 | |
Taxing Jurisdiction
| Owner: | MIWA JUN | | |
| % Ownership: | 100.0000000000% | | |
| Total Value: | $247,570 | | |
| Tax Area: | 1 - OL-140-F |
| CERFD | CURRENT EXPENSE REFUND 010 | 0.0000000000 | $247,570 | $247,570 | $0.00 | | |
| CURREXP | CURRENT EXPENSE 010 | 1.0175366760 | $247,570 | $247,570 | $251.91 | | |
| HUMNSERV | HUMAN SERVICES 119 | 0.0250000000 | $247,570 | $247,570 | $6.19 | | |
| SLDREL | SOLDIERS RELIEF 121 | 0.0155990005 | $247,570 | $247,570 | $3.86 | | |
| EMERGSER | EMS 147 | 0.3792580840 | $247,570 | $247,570 | $93.89 | | |
| EMSRFD | EMS REFUND 147 | 0.0000000000 | $247,570 | $247,570 | $0.00 | | |
| PORTRFD | PORT REFUND 640 | 0.0000000000 | $247,570 | $247,570 | $0.00 | | |
| PORTWWGEN | PORT OF WW 640 | 0.2460186015 | $247,570 | $247,570 | $60.91 | | |
| SD140BOND | SD #140 BOND 764 | 0.8342371393 | $247,570 | $247,570 | $206.53 | | |
| SD140GEN | SD #140 GENERAL 760 | 2.0646500647 | $247,570 | $247,570 | $511.15 | | |
| ST2 | STATE SCHOOL PART 2 600 | 0.8131451643 | $247,570 | $247,570 | $201.31 | | |
| STATESCHL | STATE SCHOOL 600 | 1.5158548041 | $247,570 | $247,570 | $375.28 | | |
| STREFUND | STATE REFUND LEVY 603 | 0.0000000000 | $247,570 | $247,570 | $0.00 | | |
| CWWBOND | C OF WW BOND 643 | 0.2760494372 | $247,570 | $247,570 | $68.34 | | |
| CWWGEN | CITY OF WW 631 | 1.6100204973 | $247,570 | $247,570 | $398.59 | | |
| CWWRFD | CITY OF WALLA WALLA REFUND 631 | 0.0000000000 | $247,570 | $247,570 | $0.00 | | |
| | Total Tax Rate: | 8.7973694689 | | | | | |
| | | | | Taxes w/Current Exemptions: | $2,177.96 | | |
| | | | | Taxes w/o Exemptions: | $2,177.96 | | |
Improvement / Building
| Improvement #1: | RESIDENTIAL | State Code: | 11 | 822.0 sqft | Value: | $190,150 |
| Exterior Wall: | CONCRETE BLOCK | Heating/Cooling: | WARM & COOLED AIR | | Number of Bathrooms: | 1 | Number of Bedrooms: | 2 | | Plumbing: | 6 | Roof Covering: | COMP SHINGLE |
|
| | Type | Description | Class CD | Sub Class CD | Year Built | Area |
| | MA | Main Area | 1 | 30 | 1950 | 822.0 |
| | SI1 | SITE IMPROVEMENT | 1 | 30 | 1950 | 1.0 |
| | ATG | Attached Garage | 1 | 30 | 1950 | 230.0 |
| | SUN | SOLAR ROOM | 1 | 30 | 1950 | 105.0 |
| | UTST | Utility Storage Shed | 1 | 30 | 1950 | 56.0 |
Sketch
Property Image
Land
| 1 | RES 1 | Converted: Residential | 0.1465 | 6380.00 | 0.00 | 0.00 | 1.00 | $57,420 | $0 |
Roll Value History
| 2026 | N/A | N/A | N/A | N/A | N/A |
| 2025 | $228,190 | $70,180 | $0 | $298,370 | $298,370 |
| 2024 | $190,150 | $57,420 | $0 | $247,570 | $247,570 |
| 2023 | $190,150 | $57,420 | $0 | $247,570 | $247,570 |
| 2022 | $190,150 | $46,260 | $0 | $236,410 | $236,410 |
| 2021 | $158,460 | $46,260 | $0 | $204,720 | $204,720 |
| 2020 | $105,640 | $46,260 | $0 | $151,900 | $151,900 |
| 2019 | $105,640 | $46,260 | $0 | $151,900 | $151,900 |
| 2018 | $83,130 | $38,300 | $0 | $121,430 | $121,430 |
| 2017 | $75,570 | $38,300 | $0 | $113,870 | $113,870 |
| 2016 | $68,700 | $38,300 | $0 | $107,000 | $107,000 |
| 2015 | $68,700 | $38,300 | $0 | $107,000 | $107,000 |
| 2014 | $68,700 | $38,300 | $0 | $107,000 | $107,000 |
| 2013 | $68,700 | $38,300 | $0 | $107,000 | $107,000 |
| 2012 | $85,600 | $38,300 | $0 | $0 | $0 |
| 2011 | $85,600 | $38,300 | $0 | $0 | $0 |
| 2010 | $75,400 | $38,300 | $0 | $0 | $0 |
| 2009 | $88,000 | $38,300 | $0 | $0 | $0 |
| 2008 | $88,000 | $38,300 | $0 | $0 | $0 |
| 2007 | $52,800 | $19,100 | $0 | $0 | $0 |
Deed and Sales History
| 1 | 11/30/2023 | SWD | STATUTORY WARRANTY DEED | MIWA JUN | STILLER SHERYL L | | | $300,000.00 | 146873 | 2023-06933 |
| 2 | 01/31/2023 | QCD | QUIT CLAIM DEED | SUGIYAMA KAZUAKI | MIWA JUN | | | $0.00 | 145338 | 2023-00486 |
| 3 | 04/16/2021 | SWD | STATUTORY WARRANTY DEED | BECKER LACEY | SUGIYAMA KAZUAKI | | | $250,000.00 | 141349 | 2021-04472 |
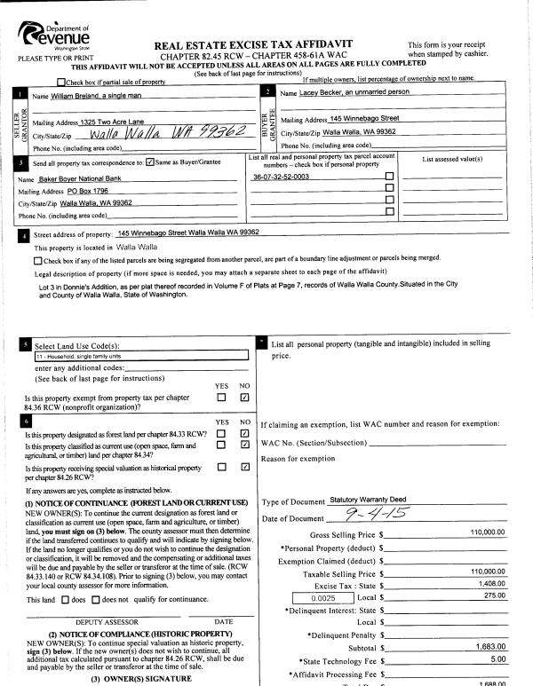
| 4 | 09/04/2015 | SWD | STATUTORY WARRANTY DEED | BRELAND WILLIAM M | BECKER LACEY | | | $110,000.00 | 128774 | 2015-07841 |
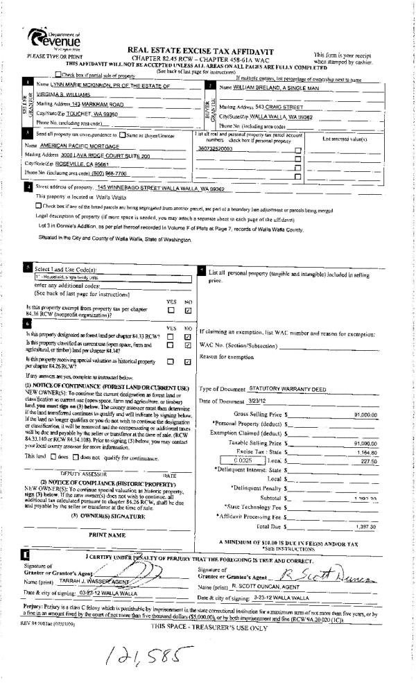
| 5 | 03/27/2012 | WARRANTY D | WARRANTY DEED | WILLIAMS, VIRGINIA B ESTATE OF | BRELAND, WILLIAM M | | | $91,000.00 | 121585 | 2012-02449 |
| 6 | 08/01/1967 | WARRANTY D | WARRANTY DEED | | | | | $9,000.00 | 0 | 3230-488579 |
Payout Agreement
| No payout information available.. |