Property
Account |
| Property ID: | 14331 | Abbreviated Legal Description: | WHITMAN P.U.D. PHASE IV LOT 13 BLOCK 2 |
| Parcel Number: | 350736480213 | Agent Code: | |
| Type: | Real | | |
| Tax Area: | 75 - CP 250 | Land Use Code | 11 |
| Open Space: | N | DFL | N |
| Historic Property: | N | Remodel Property: | N |
| Multi-Family Redevelopment: | N | | |
| Township: | | Section: | |
| Range: | |
Location |
| Address: | 215 SE CALIFORNIA AVE WA 99324 | Mapsco: | |
| Neighborhood: | G SFR | Map ID: | |
| Neighborhood CD: | 114011 |
Owner |
| Name: | KENNEDY AMIE ROSE & PATRICK | Owner ID: | 70450 |
| Mailing Address: | 215 SE CALIFORNIA AVE COLLEGE PLACE, WA 99324 | % Ownership: | 100.0000000000% |
| | | Exemptions: | |
Taxes and Assessment Details
Values
| (+) Improvement Homesite Value: | + | $0 | |
| (+) Improvement Non-Homesite Value: | + | $325,230 | |
| (+) Land Homesite Value: | + | $0 | |
| (+) Land Non-Homesite Value: | + | $70,000 | |
| (+) Curr Use (HS): | + | $0 | $0 |
| (+) Curr Use (NHS): | + | $0 | $0 |
| | | -------------------------- | |
| (=) Market Value: | = | $395,230 | |
| (–) Productivity Loss: | – | $0 | |
| | | -------------------------- | |
| (=) Subtotal: | = | $395,230 | |
| (+) Senior Appraised Value: | + | $0 | |
| (+) Non-Senior Appraised Value: | + | $395,230 | |
| | | -------------------------- | |
| (=) Total Appraised Value: | = | $395,230 | |
| (–) Senior Exemption Loss: | – | $0 | |
| (–) Exemption Loss: | – | $0 | |
| | | -------------------------- | |
| (=) Taxable Value: | = | $395,230 | |
Taxing Jurisdiction
| Owner: | KENNEDY AMIE ROSE & PATRICK | | |
| % Ownership: | 100.0000000000% | | |
| Total Value: | $395,230 | | |
| Tax Area: | 75 - CP 250 |
| CERFD | CURRENT EXPENSE REFUND 010 | 0.0000000000 | $395,230 | $395,230 | $0.00 | | |
| CURREXP | CURRENT EXPENSE 010 | 1.0175366760 | $395,230 | $395,230 | $402.16 | | |
| HUMNSERV | HUMAN SERVICES 119 | 0.0250000000 | $395,230 | $395,230 | $9.88 | | |
| SLDREL | SOLDIERS RELIEF 121 | 0.0155990005 | $395,230 | $395,230 | $6.17 | | |
| COLLPLBOND | C OF CP BOND 644 | 0.4374241808 | $395,230 | $395,230 | $172.88 | | |
| COLLPLGEN | CITY OF CP 632 | 1.4453819216 | $395,230 | $395,230 | $571.26 | | |
| EMERGSER | EMS 147 | 0.3792580840 | $395,230 | $395,230 | $149.89 | | |
| EMSRFD | EMS REFUND 147 | 0.0000000000 | $395,230 | $395,230 | $0.00 | | |
| RURALLIB | RURAL LIBRARY 623 | 0.3710609029 | $395,230 | $395,230 | $146.65 | | |
| PORTRFD | PORT REFUND 640 | 0.0000000000 | $395,230 | $395,230 | $0.00 | | |
| PORTWWGEN | PORT OF WW 640 | 0.2460186015 | $395,230 | $395,230 | $97.23 | | |
| SD250BOND | SD #250 BOND 773 | 1.4560608159 | $395,230 | $395,230 | $575.48 | | |
| SD250GEN | SD #250 GENERAL 770 | 2.3880724087 | $395,230 | $395,230 | $943.84 | | |
| ST2 | STATE SCHOOL PART 2 600 | 0.8131451643 | $395,230 | $395,230 | $321.38 | | |
| STATESCHL | STATE SCHOOL 600 | 1.5158548041 | $395,230 | $395,230 | $599.11 | | |
| STREFUND | STATE REFUND LEVY 603 | 0.0000000000 | $395,230 | $395,230 | $0.00 | | |
| | Total Tax Rate: | 10.1104125603 | | | | | |
| | | | | Taxes w/Current Exemptions: | $3,995.93 | | |
| | | | | Taxes w/o Exemptions: | $3,995.93 | | |
Improvement / Building
| Improvement #1: | RESIDENTIAL | State Code: | 11 | 1812.0 sqft | Value: | $325,230 |
| Exterior Wall: | SIDING | Heating/Cooling: | WARM & COOLED AIR | | Number of Bathrooms: | 2 | Number of Bedrooms: | 3 | | Plumbing: | 11 | Roof Covering: | COMP SHINGLE |
|
| | Type | Description | Class CD | Sub Class CD | Year Built | Area |
| | MA | Main Area | 1 | 35 | 2005 | 1812.0 |
| | ATG | Attached Garage | 1 | 35 | 2005 | 440.0 |
| | SI1 | SITE IMPROVEMENT | 1 | 35 | 2005 | 2.5 |
| | RPO | OPEN PORCH W/ROOF | 1 | 35 | 2005 | 204.0 |
Sketch
Property Image
Land
| 1 | RES 1 | Converted: Residential | 0.1239 | 5396.00 | 0.00 | 0.00 | 1.00 | $70,000 | $0 |
Roll Value History
| 2026 | N/A | N/A | N/A | N/A | N/A |
| 2025 | $243,930 | $130,000 | $0 | $373,930 | $373,930 |
| 2024 | $325,230 | $70,000 | $0 | $395,230 | $395,230 |
| 2023 | $325,230 | $70,000 | $0 | $395,230 | $395,230 |
| 2022 | $309,750 | $70,000 | $0 | $379,750 | $379,750 |
| 2021 | $281,590 | $70,000 | $0 | $351,590 | $351,590 |
| 2020 | $225,270 | $70,000 | $0 | $295,270 | $295,270 |
| 2019 | $250,270 | $45,000 | $0 | $295,270 | $295,270 |
| 2018 | $208,560 | $45,000 | $0 | $253,560 | $253,560 |
| 2017 | $181,360 | $45,000 | $0 | $226,360 | $226,360 |
| 2016 | $181,360 | $45,000 | $0 | $226,360 | $226,360 |
| 2015 | $181,360 | $45,000 | $0 | $226,360 | $226,360 |
| 2014 | $190,900 | $45,000 | $0 | $235,900 | $235,900 |
| 2013 | $190,900 | $45,000 | $0 | $235,900 | $235,900 |
| 2012 | $175,700 | $65,000 | $0 | $0 | $0 |
| 2011 | $175,700 | $65,000 | $0 | $0 | $0 |
| 2010 | $175,700 | $65,000 | $0 | $0 | $0 |
| 2009 | $188,400 | $65,000 | $0 | $0 | $0 |
| 2008 | $175,100 | $30,000 | $0 | $0 | $0 |
| 2007 | $175,100 | $30,000 | $0 | $0 | $0 |
Deed and Sales History
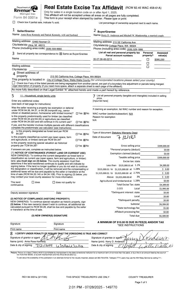
| 1 | 07/28/2025 | SWD | STATUTORY WARRANTY DEED | KENNEDY AMIE ROSE & PATRICK | ANDERSON KERRY D & MITHELL W BLANKENSHIP | | | $399,000.00 | 149770 | 2025-04375 |
| 2 | 10/13/2021 | SWD | STATUTORY WARRANTY DEED | BORGES ERIK & KRISTEN | KENNEDY AMIE ROSE & PATRICK | | | $355,000.00 | 142664 | 2021-12484 |
| 3 | 11/22/2019 | QCD | QUIT CLAIM DEED | BORGES ERIK & KIRSTEN | BORGES ERIK & KRISTEN | | | $0.00 | 138385 | 2020-01082 |
| 4 | 07/02/2019 | SWD | STATUTORY WARRANTY DEED | CARVER KRIS | BORGES ERIK & KIRSTEN | | | $285,000.00 | 137209 | 2019-04736 |
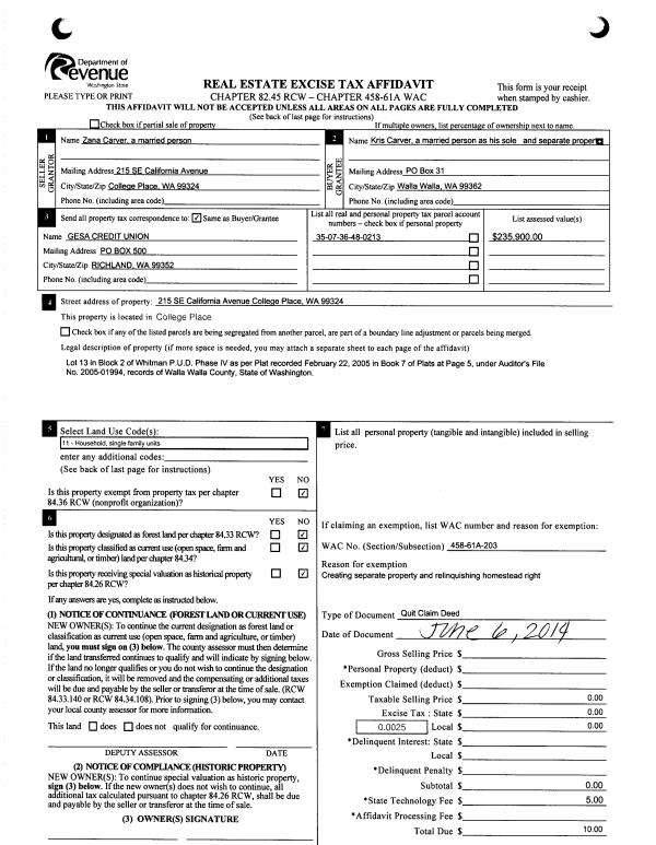
| 5 | 06/11/2014 | QCD | QUIT CLAIM DEED | CARVER KRIS & ZANA | CARVER KRIS | | | | 126053 | 2014-04019 |
| 6 | 12/08/2005 | WARRANTY D | WARRANTY DEED | WHITMAN DEVELOPMENT CORP | CARVER, KRIS & ZANA | | | $39,000.00 | 109204 | 2005-15381 |
Payout Agreement
| No payout information available.. |