Property
Account |
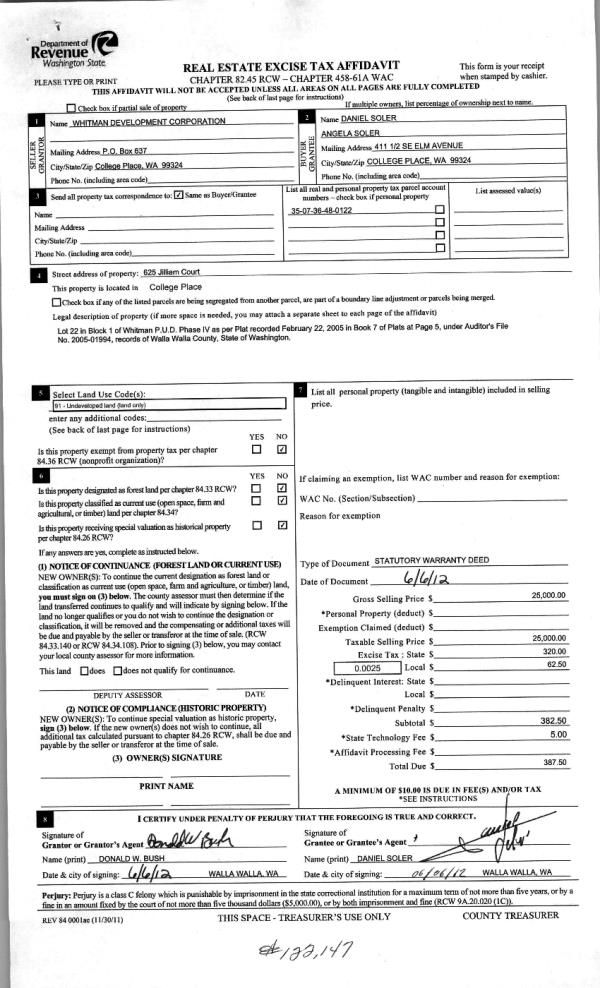
| Property ID: | 14330 | Abbreviated Legal Description: | WHITMAN P.U.D. PHASE IV LOT 22 BLOCK 1 |
| Parcel Number: | 350736480122 | Agent Code: | |
| Type: | Real | | |
| Tax Area: | 75 - CP 250 | Land Use Code | 11 |
| Open Space: | N | DFL | N |
| Historic Property: | N | Remodel Property: | N |
| Multi-Family Redevelopment: | N | | |
| Township: | | Section: | |
| Range: | |
Location |
| Address: | 625 SE JILLIAN CT WA 99324 | Mapsco: | |
| Neighborhood: | G SFR | Map ID: | |
| Neighborhood CD: | 114011 |
Owner |
| Name: | SOLER DANIEL & ANGELA | Owner ID: | 51302 |
| Mailing Address: | 625 SE JILLIAN COURT COLLEGE PLACE, WA 99324 | % Ownership: | 100.0000000000% |
| | | Exemptions: | |
Taxes and Assessment Details
Values
| (+) Improvement Homesite Value: | + | $0 | |
| (+) Improvement Non-Homesite Value: | + | $337,880 | |
| (+) Land Homesite Value: | + | $0 | |
| (+) Land Non-Homesite Value: | + | $70,000 | |
| (+) Curr Use (HS): | + | $0 | $0 |
| (+) Curr Use (NHS): | + | $0 | $0 |
| | | -------------------------- | |
| (=) Market Value: | = | $407,880 | |
| (–) Productivity Loss: | – | $0 | |
| | | -------------------------- | |
| (=) Subtotal: | = | $407,880 | |
| (+) Senior Appraised Value: | + | $0 | |
| (+) Non-Senior Appraised Value: | + | $407,880 | |
| | | -------------------------- | |
| (=) Total Appraised Value: | = | $407,880 | |
| (–) Senior Exemption Loss: | – | $0 | |
| (–) Exemption Loss: | – | $0 | |
| | | -------------------------- | |
| (=) Taxable Value: | = | $407,880 | |
Taxing Jurisdiction
| Owner: | SOLER DANIEL & ANGELA | | |
| % Ownership: | 100.0000000000% | | |
| Total Value: | $407,880 | | |
| Tax Area: | 75 - CP 250 |
| CERFD | CURRENT EXPENSE REFUND 010 | 0.0000000000 | $407,880 | $407,880 | $0.00 | | |
| CURREXP | CURRENT EXPENSE 010 | 1.0175366760 | $407,880 | $407,880 | $415.03 | | |
| HUMNSERV | HUMAN SERVICES 119 | 0.0250000000 | $407,880 | $407,880 | $10.20 | | |
| SLDREL | SOLDIERS RELIEF 121 | 0.0155990005 | $407,880 | $407,880 | $6.36 | | |
| COLLPLBOND | C OF CP BOND 644 | 0.4374241808 | $407,880 | $407,880 | $178.42 | | |
| COLLPLGEN | CITY OF CP 632 | 1.4453819216 | $407,880 | $407,880 | $589.54 | | |
| EMERGSER | EMS 147 | 0.3792580840 | $407,880 | $407,880 | $154.69 | | |
| EMSRFD | EMS REFUND 147 | 0.0000000000 | $407,880 | $407,880 | $0.00 | | |
| RURALLIB | RURAL LIBRARY 623 | 0.3710609029 | $407,880 | $407,880 | $151.35 | | |
| PORTRFD | PORT REFUND 640 | 0.0000000000 | $407,880 | $407,880 | $0.00 | | |
| PORTWWGEN | PORT OF WW 640 | 0.2460186015 | $407,880 | $407,880 | $100.35 | | |
| SD250BOND | SD #250 BOND 773 | 1.4560608159 | $407,880 | $407,880 | $593.90 | | |
| SD250GEN | SD #250 GENERAL 770 | 2.3880724087 | $407,880 | $407,880 | $974.05 | | |
| ST2 | STATE SCHOOL PART 2 600 | 0.8131451643 | $407,880 | $407,880 | $331.67 | | |
| STATESCHL | STATE SCHOOL 600 | 1.5158548041 | $407,880 | $407,880 | $618.29 | | |
| STREFUND | STATE REFUND LEVY 603 | 0.0000000000 | $407,880 | $407,880 | $0.00 | | |
| | Total Tax Rate: | 10.1104125603 | | | | | |
| | | | | Taxes w/Current Exemptions: | $4,123.85 | | |
| | | | | Taxes w/o Exemptions: | $4,123.85 | | |
Improvement / Building
| Improvement #1: | RESIDENTIAL | State Code: | 11 | 1766.0 sqft | Value: | $337,880 |
| Exterior Wall: | HARDBOARD | Heating/Cooling: | WARM & COOLED AIR | | Number of Bathrooms: | 2 | Number of Bedrooms: | 4 | | Plumbing: | 10 | Roof Covering: | COMP SHINGLE |
|
| | Type | Description | Class CD | Sub Class CD | Year Built | Area |
| | MA | Main Area | 1 | 35 | 2013 | 1766.0 |
| | SI1 | SITE IMPROVEMENT | 1 | 35 | 2013 | 2.0 |
| | ATG | Attached Garage | 1 | 35 | 2013 | 400.0 |
| | RPC | OPEN PORCH W/ROOF , CEILED | 1 | 35 | 2013 | 36.0 |
Sketch
Property Image
Land
| 1 | RES 1 | Converted: Residential | 0.1667 | 7260.00 | 0.00 | 0.00 | 1.00 | $70,000 | $0 |
Roll Value History
| 2026 | N/A | N/A | N/A | N/A | N/A |
| 2025 | $326,300 | $130,000 | $0 | $456,300 | $456,300 |
| 2024 | $337,880 | $70,000 | $0 | $407,880 | $407,880 |
| 2023 | $337,880 | $70,000 | $0 | $407,880 | $407,880 |
| 2022 | $321,790 | $70,000 | $0 | $391,790 | $391,790 |
| 2021 | $279,820 | $70,000 | $0 | $349,820 | $349,820 |
| 2020 | $207,270 | $70,000 | $0 | $277,270 | $277,270 |
| 2019 | $242,270 | $35,000 | $0 | $277,270 | $277,270 |
| 2018 | $201,890 | $35,000 | $0 | $236,890 | $236,890 |
| 2017 | $175,560 | $35,000 | $0 | $210,560 | $210,560 |
| 2016 | $167,200 | $35,000 | $0 | $202,200 | $202,200 |
| 2015 | $167,200 | $35,000 | $0 | $202,200 | $202,200 |
| 2014 | $167,200 | $35,000 | $0 | $202,200 | $202,200 |
| 2013 | $167,200 | $35,000 | $0 | $202,200 | $202,200 |
| 2012 | $0 | $65,000 | $0 | $0 | $0 |
| 2011 | $0 | $65,000 | $0 | $0 | $0 |
| 2010 | $0 | $65,000 | $0 | $0 | $0 |
| 2009 | $0 | $65,000 | $0 | $0 | $0 |
| 2008 | $0 | $2,400 | $0 | $0 | $0 |
| 2007 | $0 | $2,400 | $0 | $0 | $0 |
Deed and Sales History
| 1 | 06/07/2012 | WARRANTY D | WARRANTY DEED | WHITMAN DEVELOPMENT CORP | SOLER, DANIEL & ANGELA | | | $25,000.00 | 122147 | 2012-04667 |
Payout Agreement
| No payout information available.. |