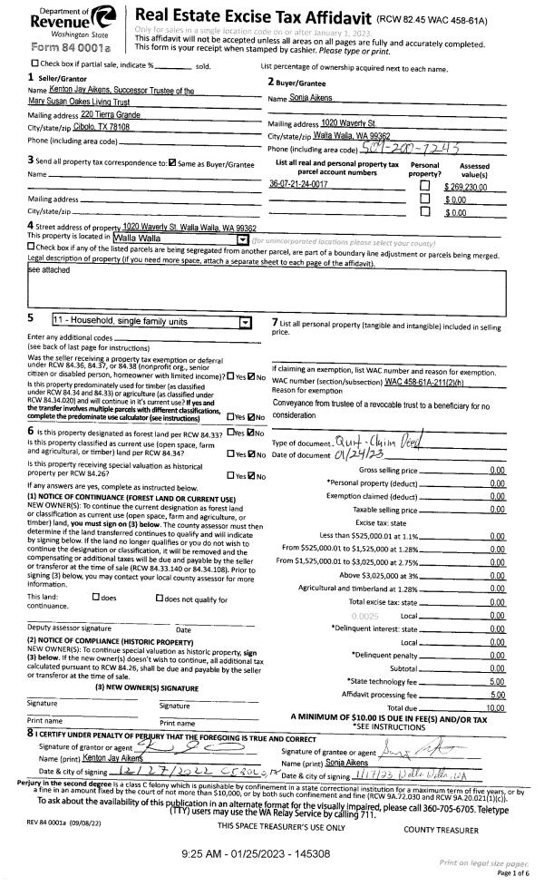
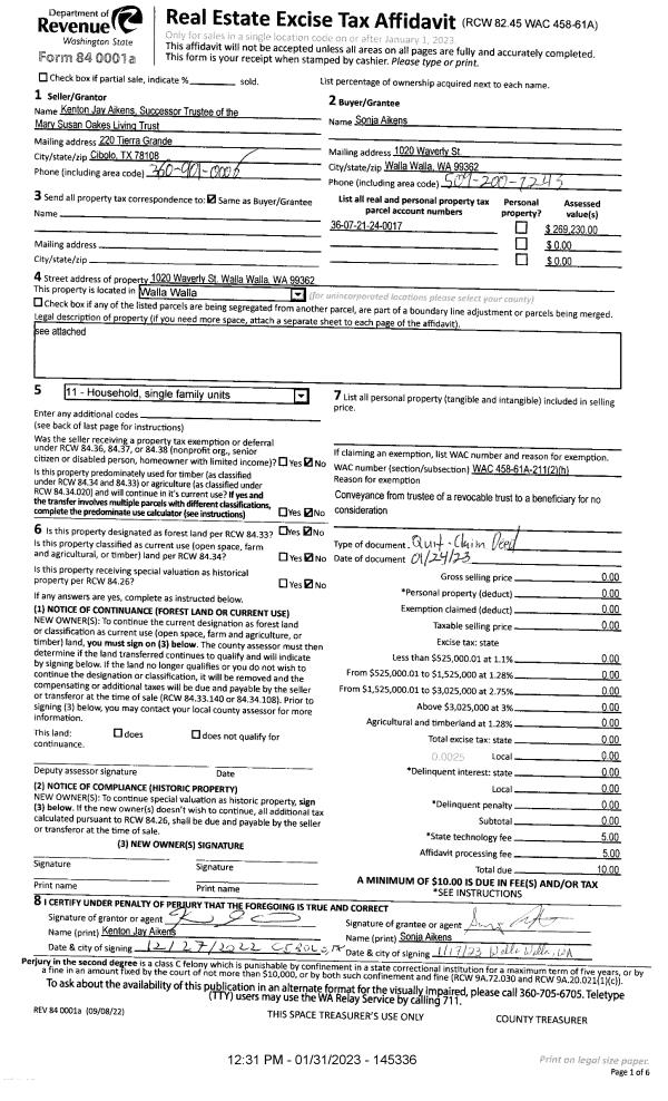
Property
Account |
| Property ID: | 1433 | Abbreviated Legal Description: | 21-7-36 PORTION SE 1/4 NW 1/4 TAX 63A |
| Parcel Number: | 360721240017 | Agent Code: | |
| Type: | Real | | |
| Tax Area: | 1 - OL-140-F | Land Use Code | 11 |
| Open Space: | N | DFL | N |
| Historic Property: | N | Remodel Property: | N |
| Multi-Family Redevelopment: | N | | |
| Township: | 7 | Section: | 21 |
| Range: | 36 |
Location |
| Address: | 1020 WAVERLY ST WA 99362 | Mapsco: | |
| Neighborhood: | A-SFR | Map ID: | |
| Neighborhood CD: | 513011 |
Owner |
| Name: | AIKENS SONJA | Owner ID: | 73139 |
| Mailing Address: | 1020 WAVERLY ST WALLA WALLA, WA 99362 | % Ownership: | 100.0000000000% |
| | | Exemptions: | |
Taxes and Assessment Details
Values
| (+) Improvement Homesite Value: | + | $0 | |
| (+) Improvement Non-Homesite Value: | + | $259,520 | |
| (+) Land Homesite Value: | + | $0 | |
| (+) Land Non-Homesite Value: | + | $43,560 | |
| (+) Curr Use (HS): | + | $0 | $0 |
| (+) Curr Use (NHS): | + | $0 | $0 |
| | | -------------------------- | |
| (=) Market Value: | = | $303,080 | |
| (–) Productivity Loss: | – | $0 | |
| | | -------------------------- | |
| (=) Subtotal: | = | $303,080 | |
| (+) Senior Appraised Value: | + | $0 | |
| (+) Non-Senior Appraised Value: | + | $303,080 | |
| | | -------------------------- | |
| (=) Total Appraised Value: | = | $303,080 | |
| (–) Senior Exemption Loss: | – | $0 | |
| (–) Exemption Loss: | – | $0 | |
| | | -------------------------- | |
| (=) Taxable Value: | = | $303,080 | |
Taxing Jurisdiction
| Owner: | AIKENS SONJA | | |
| % Ownership: | 100.0000000000% | | |
| Total Value: | $303,080 | | |
| Tax Area: | 1 - OL-140-F |
| CERFD | CURRENT EXPENSE REFUND 010 | 0.0000000000 | $303,080 | $303,080 | $0.00 | | |
| CURREXP | CURRENT EXPENSE 010 | 1.0175366760 | $303,080 | $303,080 | $308.40 | | |
| HUMNSERV | HUMAN SERVICES 119 | 0.0250000000 | $303,080 | $303,080 | $7.58 | | |
| SLDREL | SOLDIERS RELIEF 121 | 0.0155990005 | $303,080 | $303,080 | $4.73 | | |
| EMERGSER | EMS 147 | 0.3792580840 | $303,080 | $303,080 | $114.95 | | |
| EMSRFD | EMS REFUND 147 | 0.0000000000 | $303,080 | $303,080 | $0.00 | | |
| PORTRFD | PORT REFUND 640 | 0.0000000000 | $303,080 | $303,080 | $0.00 | | |
| PORTWWGEN | PORT OF WW 640 | 0.2460186015 | $303,080 | $303,080 | $74.56 | | |
| SD140BOND | SD #140 BOND 764 | 0.8342371393 | $303,080 | $303,080 | $252.84 | | |
| SD140GEN | SD #140 GENERAL 760 | 2.0646500647 | $303,080 | $303,080 | $625.75 | | |
| ST2 | STATE SCHOOL PART 2 600 | 0.8131451643 | $303,080 | $303,080 | $246.45 | | |
| STATESCHL | STATE SCHOOL 600 | 1.5158548041 | $303,080 | $303,080 | $459.43 | | |
| STREFUND | STATE REFUND LEVY 603 | 0.0000000000 | $303,080 | $303,080 | $0.00 | | |
| CWWBOND | C OF WW BOND 643 | 0.2760494372 | $303,080 | $303,080 | $83.67 | | |
| CWWGEN | CITY OF WW 631 | 1.6100204973 | $303,080 | $303,080 | $487.97 | | |
| CWWRFD | CITY OF WALLA WALLA REFUND 631 | 0.0000000000 | $303,080 | $303,080 | $0.00 | | |
| | Total Tax Rate: | 8.7973694689 | | | | | |
| | | | | Taxes w/Current Exemptions: | $2,666.33 | | |
| | | | | Taxes w/o Exemptions: | $2,666.33 | | |
Improvement / Building
| Improvement #1: | RESIDENTIAL | State Code: | 11 | 861.0 sqft | Value: | $259,520 |
| Exterior Wall: | VINYL | Heating/Cooling: | HEAT PUMP | | Number of Bathrooms: | 2 | Number of Bedrooms: | 2 | | Plumbing: | 9 | Roof Covering: | COMP SHINGLE |
|
| | Type | Description | Class CD | Sub Class CD | Year Built | Area |
| | MA | Main Area | 1 | 30 | 1946 | 861.0 |
| | SI1 | SITE IMPROVEMENT | 1 | 30 | 0 | 1.0 |
| | BASE | BASEMENT | 1 | 30 | 1946 | 861.0 |
| | OPS | OPEN PORCH W/STEPS | 1 | 30 | 1946 | 35.0 |
| | BPF | BASEMENT -PARTITIONED FINISH | 1 | 30 | 1946 | 861.0 |
| | DTG | Detached Garage | 1 | 30 | 1946 | 308.0 |
Sketch
Property Image
Land
| 1 | RES 1 | Converted: Residential | 0.1600 | 6969.00 | 0.00 | 0.00 | 1.00 | $43,560 | $0 |
Roll Value History
| 2026 | N/A | N/A | N/A | N/A | N/A |
| 2025 | $231,920 | $69,690 | $0 | $301,610 | $301,610 |
| 2024 | $231,920 | $69,690 | $0 | $301,610 | $301,610 |
| 2023 | $259,520 | $43,560 | $0 | $303,080 | $303,080 |
| 2022 | $225,670 | $43,560 | $0 | $269,230 | $269,230 |
| 2021 | $161,190 | $43,560 | $0 | $204,750 | $204,750 |
| 2020 | $119,400 | $43,560 | $0 | $162,960 | $162,960 |
| 2019 | $119,400 | $43,560 | $0 | $162,960 | $162,960 |
| 2018 | $119,400 | $43,560 | $0 | $162,960 | $162,960 |
| 2017 | $123,000 | $27,900 | $0 | $150,900 | $150,900 |
| 2016 | $111,820 | $27,900 | $0 | $139,720 | $139,720 |
| 2015 | $106,490 | $27,900 | $0 | $134,390 | $134,390 |
| 2014 | $92,600 | $27,900 | $0 | $120,500 | $120,500 |
| 2013 | $92,600 | $27,900 | $0 | $120,500 | $120,500 |
| 2012 | $92,600 | $27,900 | $0 | $0 | $0 |
| 2011 | $92,600 | $27,900 | $0 | $0 | $0 |
| 2010 | $92,600 | $27,900 | $0 | $0 | $0 |
| 2009 | $106,000 | $27,900 | $0 | $0 | $0 |
| 2008 | $100,900 | $27,900 | $0 | $0 | $0 |
| 2007 | $100,900 | $27,900 | $0 | $0 | $0 |
Deed and Sales History
| 1 | 01/31/2023 | QCD | QUIT CLAIM DEED | OAKES MARY SUSAN LIVING TRUST | AIKENS SONJA | | | $0.00 | 145336 | 2023-00483 |
| 2 | 01/25/2023 | REET | REAL ESTATE AFFIDAVIT | OAKES MARY SUSAN LIVING TRUST | AIKENS SONJA | | | $0.00 | 145308 | NONE |
| 3 | 01/30/2017 | QCD | QUIT CLAIM DEED | OAKES MARY SUE | OAKES MARY SUSAN LIVING TRUST | | | $0.00 | 132171 | 2017-02612 |
| 4 | 01/27/2003 | WARRANTY D | WARRANTY DEED | ZUG, BRIAN P | OAKES, MARY SUE | | | $110,000.00 | 101273 | 2003-01170 |
| 5 | 06/15/2000 | WARRANTY D | WARRANTY DEED | | | | | $71,000.00 | 95266 | 2990-005711 |
| 6 | 10/05/1999 | SWP | Special Warranty Deed | | | | | | 93765 | 2901-911584 |
Payout Agreement
| No payout information available.. |