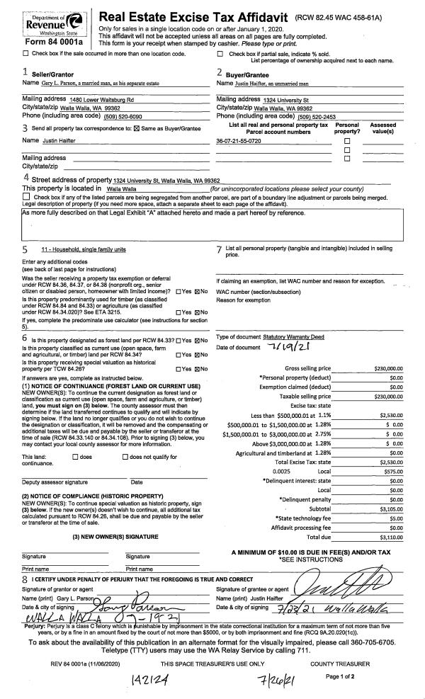
Property
Account |
| Property ID: | 1432 | Abbreviated Legal Description: | ENNIS ANNEX METES AND BOUNDS |
| Parcel Number: | 360721550720 | Agent Code: | |
| Type: | Real | | |
| Tax Area: | 1 - OL-140-F | Land Use Code | 11 |
| Open Space: | N | DFL | N |
| Historic Property: | N | Remodel Property: | N |
| Multi-Family Redevelopment: | N | | |
| Township: | 7 | Section: | 21 |
| Range: | 36 |
Location |
| Address: | 1324 UNIVERSITY ST WA 99362 | Mapsco: | |
| Neighborhood: | A-SFR | Map ID: | |
| Neighborhood CD: | 513011 |
Owner |
| Name: | HAIFTER JUSTIN | Owner ID: | 69957 |
| Mailing Address: | 738 OPP CT WALLA WALLA, WA 99362 | % Ownership: | 100.0000000000% |
| | | Exemptions: | |
Taxes and Assessment Details
Property Tax Information as of
02/21/2026
Click on "Statement Details" to expand or collapse a tax statement.
* Please enter a valid date ** Please enter a valid date *
Statement Details |
| | TOTAL: | $0.00 | $0.00 | $0.00 | $0.00 | $0.00 | $0.00 |
|
| | $0.00 | $0.00 | $0.00 | $0.00 | $0.00 | $0.00 |
Values
| (+) Improvement Homesite Value: | + | $0 | |
| (+) Improvement Non-Homesite Value: | + | $216,980 | |
| (+) Land Homesite Value: | + | $0 | |
| (+) Land Non-Homesite Value: | + | $31,250 | |
| (+) Curr Use (HS): | + | $0 | $0 |
| (+) Curr Use (NHS): | + | $0 | $0 |
| | | -------------------------- | |
| (=) Market Value: | = | $248,230 | |
| (–) Productivity Loss: | – | $0 | |
| | | -------------------------- | |
| (=) Subtotal: | = | $248,230 | |
| (+) Senior Appraised Value: | + | $0 | |
| (+) Non-Senior Appraised Value: | + | $248,230 | |
| | | -------------------------- | |
| (=) Total Appraised Value: | = | $248,230 | |
| (–) Senior Exemption Loss: | – | $0 | |
| (–) Exemption Loss: | – | $0 | |
| | | -------------------------- | |
| (=) Taxable Value: | = | $248,230 | |
Taxing Jurisdiction
| Owner: | HAIFTER JUSTIN | | |
| % Ownership: | 100.0000000000% | | |
| Total Value: | $248,230 | | |
| Tax Area: | 1 - OL-140-F |
| CERFD | CURRENT EXPENSE REFUND 010 | 0.0000000000 | $248,230 | $248,230 | $0.00 | | |
| CURREXP | CURRENT EXPENSE 010 | 1.0175366760 | $248,230 | $248,230 | $252.58 | | |
| HUMNSERV | HUMAN SERVICES 119 | 0.0250000000 | $248,230 | $248,230 | $6.21 | | |
| SLDREL | SOLDIERS RELIEF 121 | 0.0155990005 | $248,230 | $248,230 | $3.87 | | |
| EMERGSER | EMS 147 | 0.3792580840 | $248,230 | $248,230 | $94.14 | | |
| EMSRFD | EMS REFUND 147 | 0.0000000000 | $248,230 | $248,230 | $0.00 | | |
| PORTRFD | PORT REFUND 640 | 0.0000000000 | $248,230 | $248,230 | $0.00 | | |
| PORTWWGEN | PORT OF WW 640 | 0.2460186015 | $248,230 | $248,230 | $61.07 | | |
| SD140BOND | SD #140 BOND 764 | 0.8342371393 | $248,230 | $248,230 | $207.08 | | |
| SD140GEN | SD #140 GENERAL 760 | 2.0646500647 | $248,230 | $248,230 | $512.51 | | |
| ST2 | STATE SCHOOL PART 2 600 | 0.8131451643 | $248,230 | $248,230 | $201.85 | | |
| STATESCHL | STATE SCHOOL 600 | 1.5158548041 | $248,230 | $248,230 | $376.28 | | |
| STREFUND | STATE REFUND LEVY 603 | 0.0000000000 | $248,230 | $248,230 | $0.00 | | |
| CWWBOND | C OF WW BOND 643 | 0.2760494372 | $248,230 | $248,230 | $68.52 | | |
| CWWGEN | CITY OF WW 631 | 1.6100204973 | $248,230 | $248,230 | $399.66 | | |
| CWWRFD | CITY OF WALLA WALLA REFUND 631 | 0.0000000000 | $248,230 | $248,230 | $0.00 | | |
| | Total Tax Rate: | 8.7973694689 | | | | | |
| | | | | Taxes w/Current Exemptions: | $2,183.77 | | |
| | | | | Taxes w/o Exemptions: | $2,183.77 | | |
Improvement / Building
| Improvement #1: | RESIDENTIAL | State Code: | 11 | 1056.0 sqft | Value: | $216,980 |
| Exterior Wall: | PLYWOOD | Heating/Cooling: | FORCED AIR | | Number of Bathrooms: | 1 | Number of Bedrooms: | 2 | | Plumbing: | 6 | Roof Covering: | COMP SHINGLE |
|
| | Type | Description | Class CD | Sub Class CD | Year Built | Area |
| | MA | Main Area | 1 | 30 | 1965 | 1056.0 |
| | CPC | COVERED CARPORT/PATIO | 1 | 30 | 0 | 360.0 |
| | SI1 | SITE IMPROVEMENT | 1 | 30 | 0 | 1.5 |
| | S1F | Single One Story Fireplace | 1 | 30 | 1965 | 1.0 |
Sketch
Property Image
Land
| 1 | RES 1 | Converted: Residential | 0.1148 | 5000.00 | 0.00 | 0.00 | 1.00 | $31,250 | $0 |
Roll Value History
| 2026 | N/A | N/A | N/A | N/A | N/A |
| 2025 | $241,540 | $50,000 | $0 | $291,540 | $291,540 |
| 2024 | $201,280 | $50,000 | $0 | $251,280 | $251,280 |
| 2023 | $216,980 | $31,250 | $0 | $248,230 | $248,230 |
| 2022 | $206,640 | $31,250 | $0 | $237,890 | $237,890 |
| 2021 | $121,560 | $31,250 | $0 | $152,810 | $152,810 |
| 2020 | $121,560 | $31,250 | $0 | $152,810 | $152,810 |
| 2019 | $121,560 | $31,250 | $0 | $152,810 | $152,810 |
| 2018 | $105,700 | $31,250 | $0 | $136,950 | $136,950 |
| 2017 | $114,000 | $20,000 | $0 | $134,000 | $134,000 |
| 2016 | $108,570 | $20,000 | $0 | $128,570 | $128,570 |
| 2015 | $103,400 | $20,000 | $0 | $123,400 | $123,400 |
| 2014 | $103,400 | $20,000 | $0 | $123,400 | $123,400 |
| 2013 | $103,400 | $20,000 | $0 | $123,400 | $123,400 |
| 2012 | $113,000 | $20,000 | $0 | $0 | $0 |
| 2011 | $113,000 | $20,000 | $0 | $0 | $0 |
| 2010 | $106,700 | $20,000 | $0 | $0 | $0 |
| 2009 | $120,800 | $20,000 | $0 | $0 | $0 |
| 2008 | $92,600 | $20,000 | $0 | $0 | $0 |
| 2007 | $92,600 | $20,000 | $0 | $0 | $0 |
Deed and Sales History
| 1 | 07/26/2021 | SWD | STATUTORY WARRANTY DEED | PARSON GARY | HAIFTER JUSTIN | | | $230,000.00 | 142124 | 2021-09099 |
| 2 | 02/05/2003 | WARRANTY D | WARRANTY DEED | SMITH, CLAUDINE V | PARSON, GARY | | | $30,000.00 | 101347 | 2003-01670 |
| 3 | 11/13/1974 | WARRANTY D | WARRANTY DEED | | | | | $0.00 | 0 | 2105-40849 |
Payout Agreement
| No payout information available.. |