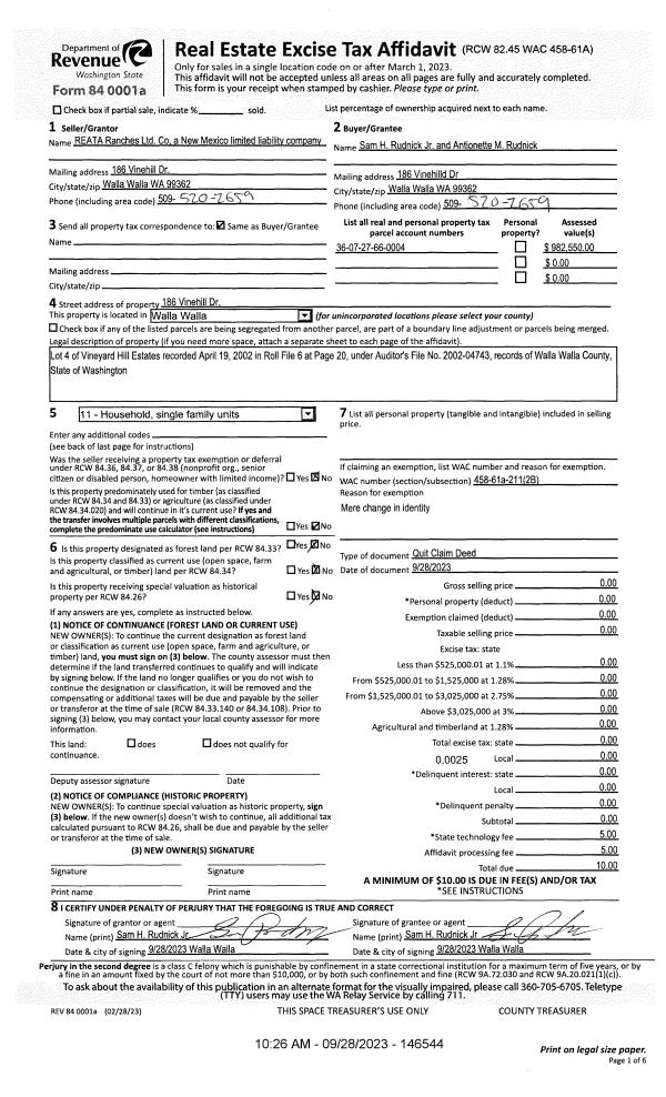
Property
Account |
| Property ID: | 14297 | Abbreviated Legal Description: | VINEYARD HILL ESTATES LT 4 |
| Parcel Number: | 360727660004 | Agent Code: | |
| Type: | Real | | |
| Tax Area: | 101 - 140-4 | Land Use Code | 11 |
| Open Space: | N | DFL | N |
| Historic Property: | N | Remodel Property: | N |
| Multi-Family Redevelopment: | N | | |
| Township: | 7 | Section: | 27 |
| Range: | 36 |
Location |
| Address: | 186 VINEHILL DR WA 99362 | Mapsco: | |
| Neighborhood: | CYCLE 4 EXCELLENT (A) | Map ID: | |
| Neighborhood CD: | 416012 |
Owner |
| Name: | REATA RANCHES LTD CO | Owner ID: | 55902 |
| Mailing Address: | 186 VINEHILL DR WALLA WALLA, WA 99362 | % Ownership: | 100.0000000000% |
| | | Exemptions: | |
Taxes and Assessment Details
Property Tax Information as of
02/21/2026
Click on "Statement Details" to expand or collapse a tax statement.
* Please enter a valid date ** Please enter a valid date *
Statement Details |
| | TOTAL: | $0.00 | $0.00 | $0.00 | $0.00 | $0.00 | $0.00 |
|
| | $0.00 | $0.00 | $0.00 | $0.00 | $0.00 | $0.00 |
Values
| (+) Improvement Homesite Value: | + | $0 | |
| (+) Improvement Non-Homesite Value: | + | $940,420 | |
| (+) Land Homesite Value: | + | $0 | |
| (+) Land Non-Homesite Value: | + | $215,150 | |
| (+) Curr Use (HS): | + | $0 | $0 |
| (+) Curr Use (NHS): | + | $0 | $0 |
| | | -------------------------- | |
| (=) Market Value: | = | $1,155,570 | |
| (–) Productivity Loss: | – | $0 | |
| | | -------------------------- | |
| (=) Subtotal: | = | $1,155,570 | |
| (+) Senior Appraised Value: | + | $0 | |
| (+) Non-Senior Appraised Value: | + | $1,155,570 | |
| | | -------------------------- | |
| (=) Total Appraised Value: | = | $1,155,570 | |
| (–) Senior Exemption Loss: | – | $0 | |
| (–) Exemption Loss: | – | $0 | |
| | | -------------------------- | |
| (=) Taxable Value: | = | $1,155,570 | |
Taxing Jurisdiction
| Owner: | REATA RANCHES LTD CO | | |
| % Ownership: | 100.0000000000% | | |
| Total Value: | $1,155,570 | | |
| Tax Area: | 101 - 140-4 |
| CERFD | CURRENT EXPENSE REFUND 010 | 0.0000000000 | $1,155,570 | $1,155,570 | $0.00 | | |
| CURREXP | CURRENT EXPENSE 010 | 1.0175366760 | $1,155,570 | $1,155,570 | $1,175.83 | | |
| HUMNSERV | HUMAN SERVICES 119 | 0.0250000000 | $1,155,570 | $1,155,570 | $28.89 | | |
| SLDREL | SOLDIERS RELIEF 121 | 0.0155990005 | $1,155,570 | $1,155,570 | $18.03 | | |
| EMERGSER | EMS 147 | 0.3792580840 | $1,155,570 | $1,155,570 | $438.26 | | |
| EMSRFD | EMS REFUND 147 | 0.0000000000 | $1,155,570 | $1,155,570 | $0.00 | | |
| FD4EXP | FD #4 EXPENSE 686 | 0.8836993059 | $1,155,570 | $1,155,570 | $1,021.18 | | |
| RLBRFD | RURAL LIBRARY REFUND 623 | 0.0000000000 | $1,155,570 | $1,155,570 | $0.00 | | |
| RURALLIB | RURAL LIBRARY 623 | 0.3710609029 | $1,155,570 | $1,155,570 | $428.79 | | |
| PORTRFD | PORT REFUND 640 | 0.0000000000 | $1,155,570 | $1,155,570 | $0.00 | | |
| PORTWWGEN | PORT OF WW 640 | 0.2460186015 | $1,155,570 | $1,155,570 | $284.29 | | |
| SD140BOND | SD #140 BOND 764 | 0.8342371393 | $1,155,570 | $1,155,570 | $964.02 | | |
| SD140GEN | SD #140 GENERAL 760 | 2.0646500647 | $1,155,570 | $1,155,570 | $2,385.85 | | |
| ST2 | STATE SCHOOL PART 2 600 | 0.8131451643 | $1,155,570 | $1,155,570 | $939.65 | | |
| STATESCHL | STATE SCHOOL 600 | 1.5158548041 | $1,155,570 | $1,155,570 | $1,751.68 | | |
| STREFUND | STATE REFUND LEVY 603 | 0.0000000000 | $1,155,570 | $1,155,570 | $0.00 | | |
| COROAD | COUNTY ROAD 115 | 1.6549953990 | $1,155,570 | $1,155,570 | $1,912.46 | | |
| CRPRD | COUNTY ROAD REFUND 115 | 0.0000000000 | $1,155,570 | $1,155,570 | $0.00 | | |
| | Total Tax Rate: | 9.8210551422 | | | | | |
| | | | | Taxes w/Current Exemptions: | $11,348.93 | | |
| | | | | Taxes w/o Exemptions: | $11,348.93 | | |
Improvement / Building
| Improvement #1: | RESIDENTIAL | State Code: | 11 | 3196.0 sqft | Value: | $940,420 |
| Exterior Wall: | STUCCO | Heating/Cooling: | WARM & COOLED AIR | | Number of Bathrooms: | 4 | Number of Bedrooms: | 5 | | Plumbing: | 18 | Roof Covering: | CONCRETE TILE |
|
| | Type | Description | Class CD | Sub Class CD | Year Built | Area |
| | MA | Main Area | 1 | 60 | 2004 | 3196.0 |
| | BONU | BONUS ROOM W/FINISH | 1 | 60 | 2004 | 760.0 |
| | BRW | BREEZEWAY | 1 | 60 | 2004 | 132.0 |
| | CPCG | CARPORT/ GABLE ROOF | 1 | 60 | 2004 | 338.0 |
| | SI1 | SITE IMPROVEMENT | 1 | 60 | 2004 | 6.5 |
| | WDR | WOOD DECK W/ROOF | 1 | 60 | 2004 | 449.0 |
| | ATG | Attached Garage | 1 | 60 | 2004 | 912.0 |
| | BLW | WOOD BALCONIES | 1 | 60 | 2004 | 300.0 |
| | ATG | Attached Garage | 1 | 60 | 2022 | 1024.0 |
Sketch
Property Image
Land
| 1 | RES 1 | Converted: Residential | 2.8500 | 0.00 | 0.00 | 0.00 | 1.00 | $215,150 | $0 |
Roll Value History
| 2026 | N/A | N/A | N/A | N/A | N/A |
| 2025 | $1,137,900 | $215,150 | $0 | $1,353,050 | $1,353,050 |
| 2024 | $1,034,460 | $215,150 | $0 | $1,249,610 | $1,249,610 |
| 2023 | $940,420 | $215,150 | $0 | $1,155,570 | $1,155,570 |
| 2022 | $817,750 | $164,800 | $0 | $982,550 | $982,550 |
| 2021 | $584,110 | $164,800 | $0 | $748,910 | $748,910 |
| 2020 | $531,010 | $164,800 | $0 | $695,810 | $695,810 |
| 2019 | $531,010 | $164,800 | $0 | $695,810 | $695,810 |
| 2018 | $531,010 | $164,800 | $0 | $695,810 | $695,810 |
| 2017 | $531,010 | $164,800 | $0 | $695,810 | $695,810 |
| 2016 | $485,100 | $164,800 | $0 | $649,900 | $649,900 |
| 2015 | $485,100 | $164,800 | $0 | $649,900 | $649,900 |
| 2014 | $485,100 | $164,800 | $0 | $649,900 | $649,900 |
| 2013 | $606,400 | $164,800 | $0 | $771,200 | $771,200 |
| 2012 | $618,600 | $164,800 | $0 | $0 | $0 |
| 2011 | $521,300 | $164,800 | $0 | $0 | $0 |
| 2010 | $521,300 | $164,800 | $0 | $0 | $0 |
| 2009 | $561,200 | $164,800 | $0 | $0 | $0 |
| 2008 | $561,200 | $164,800 | $0 | $0 | $0 |
| 2007 | $520,700 | $109,100 | $0 | $0 | $0 |
Deed and Sales History
| 1 | 09/28/2023 | QCD | QUIT CLAIM DEED | REATA RANCHES LTD CO | RUDNICK SAM H JR & ANTIONETTE M | | | | 146544 | 2023-05674 |
| 2 | 12/19/2014 | SWD | STATUTORY WARRANTY DEED | HAIR JASON E & JOANNE | REATA RANCHES LTD CO | | | $662,050.00 | 127136 | 2014-09243 |
| 3 | 06/12/2003 | QCD | QUIT CLAIM DEED | BELLA TERRA LLC | HAIR, JASON E & JOANNE | | | | 102320 | 2003-08740 |
Payout Agreement
| No payout information available.. |