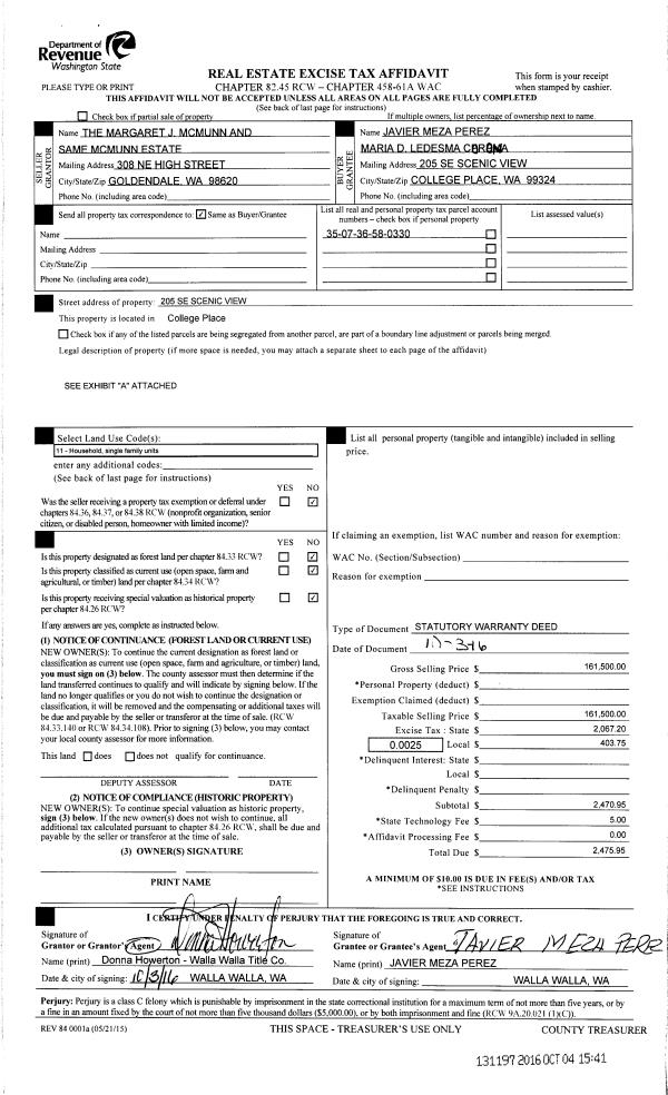
Property
Account |
| Property ID: | 14261 | Abbreviated Legal Description: | SCENIC VIEW LOT 30 BLK 3, E1/2 LOT 31 BLK 3 |
| Parcel Number: | 350736580330 | Agent Code: | |
| Type: | Real | | |
| Tax Area: | 75 - CP 250 | Land Use Code | 11 |
| Open Space: | N | DFL | N |
| Historic Property: | N | Remodel Property: | N |
| Multi-Family Redevelopment: | N | | |
| Township: | 7 | Section: | 36 |
| Range: | 35 |
Location |
| Address: | 205 SE SCENIC VIEW DR WA 99324 | Mapsco: | |
| Neighborhood: | A SFR | Map ID: | |
| Neighborhood CD: | 113011 |
Owner |
| Name: | PEREZ JAVIER MEZA | Owner ID: | 59757 |
| Mailing Address: | MARIA D LEDESMA CORONA 205 SE SCENIC VIEW DR COLLEGE PLACE, WA 99324 | % Ownership: | 100.0000000000% |
| | | Exemptions: | |
Taxes and Assessment Details
Values
| (+) Improvement Homesite Value: | + | $246,200 | |
| (+) Improvement Non-Homesite Value: | + | $0 | |
| (+) Land Homesite Value: | + | $60,750 | |
| (+) Land Non-Homesite Value: | + | $0 | |
| (+) Curr Use (HS): | + | $0 | $0 |
| (+) Curr Use (NHS): | + | $0 | $0 |
| | | -------------------------- | |
| (=) Market Value: | = | $306,950 | |
| (–) Productivity Loss: | – | $0 | |
| | | -------------------------- | |
| (=) Subtotal: | = | $306,950 | |
| (+) Senior Appraised Value: | + | $0 | |
| (+) Non-Senior Appraised Value: | + | $306,950 | |
| | | -------------------------- | |
| (=) Total Appraised Value: | = | $306,950 | |
| (–) Senior Exemption Loss: | – | $0 | |
| (–) Exemption Loss: | – | $0 | |
| | | -------------------------- | |
| (=) Taxable Value: | = | $306,950 | |
Taxing Jurisdiction
| Owner: | PEREZ JAVIER MEZA | | |
| % Ownership: | 100.0000000000% | | |
| Total Value: | $306,950 | | |
| Tax Area: | 75 - CP 250 |
| CERFD | CURRENT EXPENSE REFUND 010 | 0.0000000000 | $306,950 | $306,950 | $0.00 | | |
| CURREXP | CURRENT EXPENSE 010 | 1.0175366760 | $306,950 | $306,950 | $312.33 | | |
| HUMNSERV | HUMAN SERVICES 119 | 0.0250000000 | $306,950 | $306,950 | $7.67 | | |
| SLDREL | SOLDIERS RELIEF 121 | 0.0155990005 | $306,950 | $306,950 | $4.79 | | |
| COLLPLBOND | C OF CP BOND 644 | 0.4374241808 | $306,950 | $306,950 | $134.27 | | |
| COLLPLGEN | CITY OF CP 632 | 1.4453819216 | $306,950 | $306,950 | $443.66 | | |
| EMERGSER | EMS 147 | 0.3792580840 | $306,950 | $306,950 | $116.41 | | |
| EMSRFD | EMS REFUND 147 | 0.0000000000 | $306,950 | $306,950 | $0.00 | | |
| RURALLIB | RURAL LIBRARY 623 | 0.3710609029 | $306,950 | $306,950 | $113.90 | | |
| PORTRFD | PORT REFUND 640 | 0.0000000000 | $306,950 | $306,950 | $0.00 | | |
| PORTWWGEN | PORT OF WW 640 | 0.2460186015 | $306,950 | $306,950 | $75.52 | | |
| SD250BOND | SD #250 BOND 773 | 1.4560608159 | $306,950 | $306,950 | $446.94 | | |
| SD250GEN | SD #250 GENERAL 770 | 2.3880724087 | $306,950 | $306,950 | $733.02 | | |
| ST2 | STATE SCHOOL PART 2 600 | 0.8131451643 | $306,950 | $306,950 | $249.59 | | |
| STATESCHL | STATE SCHOOL 600 | 1.5158548041 | $306,950 | $306,950 | $465.29 | | |
| STREFUND | STATE REFUND LEVY 603 | 0.0000000000 | $306,950 | $306,950 | $0.00 | | |
| | Total Tax Rate: | 10.1104125603 | | | | | |
| | | | | Taxes w/Current Exemptions: | $3,103.39 | | |
| | | | | Taxes w/o Exemptions: | $3,103.39 | | |
Improvement / Building
| Improvement #1: | RESIDENTIAL | State Code: | 11 | 1368.0 sqft | Value: | $246,200 |
| Exterior Wall: | SIDING | Heating/Cooling: | FORCED AIR | | Number of Bathrooms: | 1.5 | Number of Bedrooms: | 3 | | Plumbing: | 6 | Roof Covering: | COMP SHINGLE |
|
| | Type | Description | Class CD | Sub Class CD | Year Built | Area |
| | MA | Main Area | 1 | 30 | 1956 | 1368.0 |
| | SI1 | SITE IMPROVEMENT | 1 | 30 | 1956 | 1.5 |
| | ATG | Attached Garage | 1 | 30 | 1956 | 440.0 |
| | RPS | PORCH W/STEPS,ROOF | 1 | 30 | 1956 | 28.0 |
| | S1F | Single One Story Fireplace | 1 | 30 | 1956 | 1.0 |
| | DTG | Detached Garage | 1 | 30 | 1956 | 360.0 |
| | RPO | OPEN PORCH W/ROOF | 1 | 30 | 1956 | 140.0 |
Sketch
Property Image
Land
| 1 | RES 1 | Converted: Residential | 0.2066 | 9000.00 | 0.00 | 0.00 | 1.00 | $60,750 | $0 |
Roll Value History
| 2026 | N/A | N/A | N/A | N/A | N/A |
| 2025 | $221,580 | $90,000 | $0 | $311,580 | $311,580 |
| 2024 | $246,200 | $60,750 | $0 | $306,950 | $306,950 |
| 2023 | $246,200 | $60,750 | $0 | $306,950 | $306,950 |
| 2022 | $246,200 | $60,750 | $0 | $306,950 | $306,950 |
| 2021 | $189,380 | $60,750 | $0 | $250,130 | $250,130 |
| 2020 | $145,680 | $60,750 | $0 | $206,430 | $206,430 |
| 2019 | $160,130 | $46,300 | $0 | $206,430 | $206,430 |
| 2018 | $110,430 | $46,300 | $0 | $156,730 | $156,730 |
| 2017 | $107,220 | $46,300 | $0 | $153,520 | $153,520 |
| 2016 | $107,220 | $46,300 | $0 | $153,520 | $153,520 |
| 2015 | $97,470 | $46,300 | $0 | $143,770 | $57,508 |
| 2014 | $102,600 | $46,300 | $0 | $148,900 | $59,560 |
| 2013 | $102,600 | $46,300 | $0 | $148,900 | $96,785 |
| 2012 | $102,600 | $46,300 | $0 | $0 | $0 |
| 2011 | $102,600 | $46,300 | $0 | $0 | $0 |
| 2010 | $95,500 | $46,300 | $0 | $0 | $0 |
| 2009 | $111,300 | $46,300 | $0 | $0 | $0 |
| 2008 | $83,000 | $23,800 | $0 | $0 | $0 |
| 2007 | $83,000 | $23,800 | $0 | $0 | $0 |
Deed and Sales History
| 1 | 10/04/2016 | SWD | STATUTORY WARRANTY DEED | MC MUNN SAM & MARGARET J ESTATE OF | PEREZ JAVIER MEZA | | | $161,500.00 | 131197 | 2016-08200 |
| 2 | 07/01/1990 | WARRANTY D | WARRANTY DEED | | | | | $55,000.00 | 0 | 1849-005217 |
Payout Agreement
| No payout information available.. |