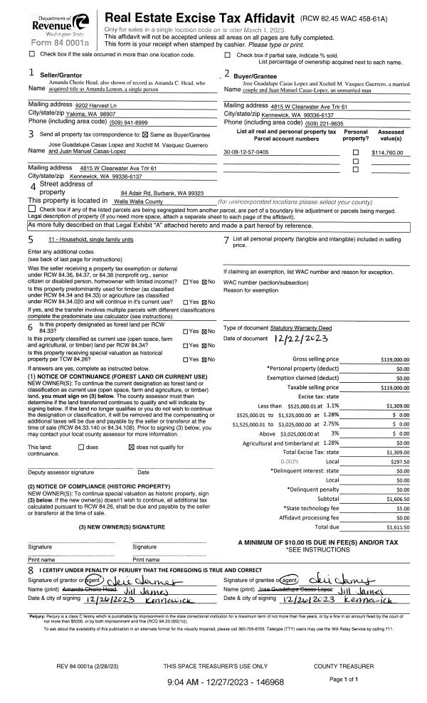
Property
Account |
| Property ID: | 14250 | Abbreviated Legal Description: | HARRISON & RAY INC ADD LOT 5 BLK 4 |
| Parcel Number: | 300812570405 | Agent Code: | |
| Type: | Real | | |
| Tax Area: | 331 - 400-M-5-W4 | Land Use Code | 11 |
| Open Space: | N | DFL | N |
| Historic Property: | N | Remodel Property: | N |
| Multi-Family Redevelopment: | N | | |
| Township: | 8 | Section: | 12 |
| Range: | 30 |
Location |
| Address: | 84 ADAIR RD WA 99323 | Mapsco: | |
| Neighborhood: | Burbank A MH | Map ID: | |
| Neighborhood CD: | 213761 |
Owner |
| Name: | HEAD AMANDA CHERIE | Owner ID: | 55603 |
| Mailing Address: | PO BOX 541 YAKIMA, WA 98907 | % Ownership: | 100.0000000000% |
| | | Exemptions: | |
Taxes and Assessment Details
Values
| (+) Improvement Homesite Value: | + | $0 | |
| (+) Improvement Non-Homesite Value: | + | $54,570 | |
| (+) Land Homesite Value: | + | $0 | |
| (+) Land Non-Homesite Value: | + | $60,190 | |
| (+) Curr Use (HS): | + | $0 | $0 |
| (+) Curr Use (NHS): | + | $0 | $0 |
| | | -------------------------- | |
| (=) Market Value: | = | $114,760 | |
| (–) Productivity Loss: | – | $0 | |
| | | -------------------------- | |
| (=) Subtotal: | = | $114,760 | |
| (+) Senior Appraised Value: | + | $0 | |
| (+) Non-Senior Appraised Value: | + | $114,760 | |
| | | -------------------------- | |
| (=) Total Appraised Value: | = | $114,760 | |
| (–) Senior Exemption Loss: | – | $0 | |
| (–) Exemption Loss: | – | $0 | |
| | | -------------------------- | |
| (=) Taxable Value: | = | $114,760 | |
Taxing Jurisdiction
| Owner: | HEAD AMANDA CHERIE | | |
| % Ownership: | 100.0000000000% | | |
| Total Value: | $114,760 | | |
| Tax Area: | 331 - 400-M-5-W4 |
| CERFD | CURRENT EXPENSE REFUND 010 | 0.0000000000 | $114,760 | $114,760 | $0.00 | | |
| CURREXP | CURRENT EXPENSE 010 | 1.0175366760 | $114,760 | $114,760 | $116.77 | | |
| HUMNSERV | HUMAN SERVICES 119 | 0.0250000000 | $114,760 | $114,760 | $2.87 | | |
| SLDREL | SOLDIERS RELIEF 121 | 0.0155990005 | $114,760 | $114,760 | $1.79 | | |
| EMERGSER | EMS 147 | 0.3792580840 | $114,760 | $114,760 | $43.52 | | |
| EMSRFD | EMS REFUND 147 | 0.0000000000 | $114,760 | $114,760 | $0.00 | | |
| FD5EXP | FD #5 EXPENSE 689 | 1.2045331840 | $114,760 | $114,760 | $138.23 | | |
| RLBRFD | RURAL LIBRARY REFUND 623 | 0.0000000000 | $114,760 | $114,760 | $0.00 | | |
| RURALLIB | RURAL LIBRARY 623 | 0.3710609029 | $114,760 | $114,760 | $42.58 | | |
| PORTRFD | PORT REFUND 640 | 0.0000000000 | $114,760 | $114,760 | $0.00 | | |
| PORTWWGEN | PORT OF WW 640 | 0.2460186015 | $114,760 | $114,760 | $28.23 | | |
| SD400BOND | SD #400 BOND 793 | 0.0000000000 | $114,760 | $114,760 | $0.00 | | |
| SD400CAP | SD #400 CP 792 | 0.3443722657 | $114,760 | $114,760 | $39.52 | | |
| SD400GEN | SD #400 GENERAL 790 | 1.9278469916 | $114,760 | $114,760 | $221.24 | | |
| ST2 | STATE SCHOOL PART 2 600 | 0.8131451643 | $114,760 | $114,760 | $93.32 | | |
| STATESCHL | STATE SCHOOL 600 | 1.5158548041 | $114,760 | $114,760 | $173.96 | | |
| STREFUND | STATE REFUND LEVY 603 | 0.0000000000 | $114,760 | $114,760 | $0.00 | | |
| COROAD | COUNTY ROAD 115 | 1.6549953990 | $114,760 | $114,760 | $189.93 | | |
| CRPRD | COUNTY ROAD REFUND 115 | 0.0000000000 | $114,760 | $114,760 | $0.00 | | |
| | Total Tax Rate: | 9.5152210736 | | | | | |
| | | | | Taxes w/Current Exemptions: | $1,091.96 | | |
| | | | | Taxes w/o Exemptions: | $1,091.96 | | |
Improvement / Building
| Improvement #1: | MANUFACTURED HOME | State Code: | 11 | 948.0 sqft | Value: | $54,570 |
| Exterior Wall: | RIBBED ALUMINUM | Heating/Cooling: | WARM & COOLED AIR | | Number of Bathrooms: | 1 | Number of Bedrooms: | 3 | | Plumbing: | 5 | Roof Covering: | COMP SHINGLE |
|
| | Type | Description | Class CD | Sub Class CD | Year Built | Area |
| | MOBHOME | MANUFACTURD HOMES | 1 | 20 | 1975 | 948.0 |
| | MI1 | MH SET-UP COSTS | 1 | 20 | 1975 | 1.0 |
| | WOD | Wood Deck | 1 | 20 | 1975 | 96.0 |
| | WOD | Wood Deck | 1 | 20 | 1975 | 108.0 |
| | POL2 | POLE BUILDING-CONCRETE | 1 | 20 | 1975 | 400.0 |
| | TOOL | TOOL SHED | 1 | 20 | 1975 | 108.0 |
Sketch
Property Image
Land
| 1 | RES 1 | Converted: Residential | 0.3177 | 13837.00 | 0.00 | 0.00 | 1.00 | $60,190 | $0 |
Roll Value History
| 2026 | N/A | N/A | N/A | N/A | N/A |
| 2025 | $60,020 | $60,190 | $0 | $120,210 | $120,210 |
| 2024 | $54,570 | $60,190 | $0 | $114,760 | $114,760 |
| 2023 | $54,570 | $60,190 | $0 | $114,760 | $114,760 |
| 2022 | $49,610 | $60,190 | $0 | $109,800 | $109,800 |
| 2021 | $29,180 | $60,190 | $0 | $89,370 | $89,370 |
| 2020 | $42,690 | $23,400 | $0 | $66,090 | $66,090 |
| 2019 | $42,690 | $23,400 | $0 | $66,090 | $66,090 |
| 2018 | $42,690 | $23,400 | $0 | $66,090 | $66,090 |
| 2017 | $38,810 | $23,400 | $0 | $62,210 | $62,210 |
| 2016 | $32,340 | $23,400 | $0 | $55,740 | $55,740 |
| 2015 | $32,340 | $23,400 | $0 | $55,740 | $55,740 |
| 2014 | $23,100 | $23,400 | $0 | $46,500 | $46,500 |
| 2013 | $23,100 | $23,400 | $0 | $46,500 | $46,500 |
| 2012 | $23,100 | $23,400 | $0 | $0 | $0 |
| 2011 | $23,100 | $23,400 | $0 | $0 | $0 |
| 2010 | $23,100 | $23,400 | $0 | $0 | $0 |
| 2009 | $28,200 | $19,500 | $0 | $0 | $0 |
| 2008 | $25,900 | $19,500 | $0 | $0 | $0 |
| 2007 | $25,900 | $19,500 | $0 | $0 | $0 |
Deed and Sales History
| 1 | 12/27/2023 | SWD | STATUTORY WARRANTY DEED | HEAD AMANDA CHERIE | LOPEZ JOSE GUADALUPE CASAS | | | $119,000.00 | 146968 | 2023-07470 |
| 2 | 12/02/2014 | FORE | FORECLOSURE | JONKERS JEFF | HEAD AMANDA CHERIE | | | $0.00 | 127006 | 2014-08709 |
| 3 | 06/11/2014 | REAL ESTAT | REAL ESTATE CONTRACT | LEMON AMANDA | JONKERS JEFF | | | $60,000.00 | 126047 | 2014-04009 |
| 4 | 07/31/2008 | WARRANTY D | WARRANTY DEED | NORTHWEST TRUSTEE SERVICES INC | LEMON, AMANDA | | | $26,283.00 | 115413 | 2008-07905 |
Payout Agreement
| No payout information available.. |