Property
Account |
| Property ID: | 14228 | Abbreviated Legal Description: | SEC 30 TWN 7 RNG 34 LOT 1 OF SHORT PLAT (PT TAX 6) |
| Parcel Number: | 340730340002 | Agent Code: | |
| Type: | Real | | |
| Tax Area: | 318 - 300-6-TM | Land Use Code | 81 |
| Open Space: | N | DFL | N |
| Historic Property: | N | Remodel Property: | N |
| Multi-Family Redevelopment: | N | | |
| Township: | 7 | Section: | 30 |
| Range: | 34 |
Location |
| Address: | 21 REEDS RD WA 99360 | Mapsco: | |
| Neighborhood: | A SFR Rural | Map ID: | |
| Neighborhood CD: | 213013 |
Owner |
| Name: | HODNEFIELD JACOB | Owner ID: | 63440 |
| Mailing Address: | 21 REEDS ROAD TOUCHET, WA 99360 | % Ownership: | 100.0000000000% |
| | | Exemptions: | |
Taxes and Assessment Details
Values
| (+) Improvement Homesite Value: | + | $0 | |
| (+) Improvement Non-Homesite Value: | + | $243,720 | |
| (+) Land Homesite Value: | + | $60,000 | |
| (+) Land Non-Homesite Value: | + | $34,200 | |
| (+) Curr Use (HS): | + | $0 | $0 |
| (+) Curr Use (NHS): | + | $0 | $0 |
| | | -------------------------- | |
| (=) Market Value: | = | $337,920 | |
| (–) Productivity Loss: | – | $0 | |
| | | -------------------------- | |
| (=) Subtotal: | = | $337,920 | |
| (+) Senior Appraised Value: | + | $0 | |
| (+) Non-Senior Appraised Value: | + | $337,920 | |
| | | -------------------------- | |
| (=) Total Appraised Value: | = | $337,920 | |
| (–) Senior Exemption Loss: | – | $0 | |
| (–) Exemption Loss: | – | $0 | |
| | | -------------------------- | |
| (=) Taxable Value: | = | $337,920 | |
Taxing Jurisdiction
| Owner: | HODNEFIELD JACOB | | |
| % Ownership: | 100.0000000000% | | |
| Total Value: | $337,920 | | |
| Tax Area: | 318 - 300-6-TM |
| CERFD | CURRENT EXPENSE REFUND 010 | 0.0000000000 | $337,920 | $337,920 | $0.00 | | |
| CURREXP | CURRENT EXPENSE 010 | 1.0175366760 | $337,920 | $337,920 | $343.85 | | |
| HUMNSERV | HUMAN SERVICES 119 | 0.0250000000 | $337,920 | $337,920 | $8.45 | | |
| SLDREL | SOLDIERS RELIEF 121 | 0.0155990005 | $337,920 | $337,920 | $5.27 | | |
| EMERGSER | EMS 147 | 0.3792580840 | $337,920 | $337,920 | $128.16 | | |
| EMSRFD | EMS REFUND 147 | 0.0000000000 | $337,920 | $337,920 | $0.00 | | |
| FD6EXP | FD #6 EXPENSE 693 | 0.6692985746 | $337,920 | $337,920 | $226.17 | | |
| RLBRFD | RURAL LIBRARY REFUND 623 | 0.0000000000 | $337,920 | $337,920 | $0.00 | | |
| RURALLIB | RURAL LIBRARY 623 | 0.3710609029 | $337,920 | $337,920 | $125.39 | | |
| PORTRFD | PORT REFUND 640 | 0.0000000000 | $337,920 | $337,920 | $0.00 | | |
| PORTWWGEN | PORT OF WW 640 | 0.2460186015 | $337,920 | $337,920 | $83.13 | | |
| SD300BOND | SD #300 BOND 783 | 1.8964951620 | $337,920 | $337,920 | $640.86 | | |
| SD300GEN | SD #300 GENERAL 780 | 2.1198322866 | $337,920 | $337,920 | $716.33 | | |
| ST2 | STATE SCHOOL PART 2 600 | 0.8131451643 | $337,920 | $337,920 | $274.78 | | |
| STATESCHL | STATE SCHOOL 600 | 1.5158548041 | $337,920 | $337,920 | $512.24 | | |
| STREFUND | STATE REFUND LEVY 603 | 0.0000000000 | $337,920 | $337,920 | $0.00 | | |
| COROAD | COUNTY ROAD 115 | 1.6549953990 | $337,920 | $337,920 | $559.26 | | |
| CRPRD | COUNTY ROAD REFUND 115 | 0.0000000000 | $337,920 | $337,920 | $0.00 | | |
| | Total Tax Rate: | 10.7240946555 | | | | | |
| | | | | Taxes w/Current Exemptions: | $3,623.89 | | |
| | | | | Taxes w/o Exemptions: | $3,623.89 | | |
Improvement / Building
| Improvement #1: | RESIDENTIAL | State Code: | 81 | 1527.0 sqft | Value: | $243,720 |
| Exterior Wall: | SIDING | Heating/Cooling: | GRAVITY FURNACE | | Number of Bathrooms: | 1 | Number of Bedrooms: | 2 | | Plumbing: | 6 | Roof Covering: | GALVANIZED METAL |
|
| | Type | Description | Class CD | Sub Class CD | Year Built | Area |
| | MA | Main Area | 5 | 20 | 1942 | 1527.0 |
| | BNV | BUILDING NO VALUE | 1 | 10 | 1940 | 1280.0 |
| | SI1 | SITE IMPROVEMENT | 5 | 20 | 1942 | 1.0 |
| | BASE | BASEMENT | 5 | 20 | 1942 | 1026.0 |
| | UPFL | Upper Floor (included in main area) | 5 | 20 | 1942 | 513.0 |
| | BNV | BUILDING NO VALUE | 1 | 10 | 1940 | 1280.0 |
Sketch
Property Image
Land
| 1 | C4-I | Class 4 Irrigated | 9.0000 | 0.00 | 0.00 | 0.00 | 1.00 | $34,200 | $0 |
| 2 | 60000-HS | Homesite 60000 | 1.0000 | 0.00 | 0.00 | 0.00 | 1.00 | $60,000 | $0 |
Roll Value History
| 2026 | N/A | N/A | N/A | N/A | N/A |
| 2025 | $268,090 | $96,900 | $0 | $364,990 | $364,990 |
| 2024 | $268,090 | $95,100 | $0 | $363,190 | $363,190 |
| 2023 | $243,720 | $94,200 | $0 | $337,920 | $337,920 |
| 2022 | $60,930 | $90,600 | $0 | $151,530 | $151,530 |
| 2021 | $60,930 | $88,800 | $0 | $149,730 | $149,730 |
| 2020 | $60,930 | $70,200 | $0 | $131,130 | $131,130 |
| 2019 | $60,930 | $69,300 | $0 | $130,230 | $130,230 |
| 2018 | $60,930 | $68,400 | $0 | $129,330 | $129,330 |
| 2017 | $47,200 | $68,400 | $0 | $115,600 | $115,600 |
| 2016 | $47,200 | $68,400 | $0 | $115,600 | $115,600 |
| 2015 | $47,200 | $64,800 | $0 | $112,000 | $112,000 |
| 2014 | $47,200 | $64,800 | $0 | $112,000 | $112,000 |
| 2013 | $47,200 | $63,900 | $18,902 | $111,100 | $111,100 |
| 2012 | $46,500 | $61,200 | $0 | $0 | $0 |
| 2011 | $46,900 | $61,200 | $0 | $0 | $0 |
| 2010 | $45,500 | $61,200 | $0 | $0 | $0 |
| 2009 | $55,000 | $51,200 | $0 | $0 | $0 |
| 2008 | $51,000 | $27,600 | $0 | $0 | $0 |
| 2007 | $51,000 | $27,600 | $0 | $0 | $0 |
Deed and Sales History
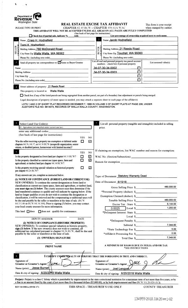
| 1 | 06/20/2018 | SWD | STATUTORY WARRANTY DEED | HODNEFIELD CRAIG & TAMI K | HODNEFIELD JACOB | | 2-PARCELS | $480,000.00 | 134959 | 2018-04950 |
|   | |
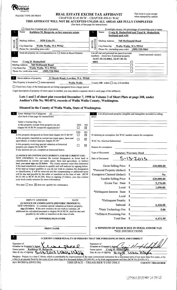
| 2 | 05/14/2015 | SWD | STATUTORY WARRANTY DEED | BERGEVIN RUSSELL F ESTATE OF | HODNEFIELD CRAIG & TAMI K | | 2-PARCELS | $420,000.00 | 127960 | 2015-04039 |
|   | |
Payout Agreement
| No payout information available.. |