Property
Account |
| Property ID: | 14227 | Abbreviated Legal Description: | ARLENES #2 LOT 2 BLK 2 |
| Parcel Number: | 310807550202 | Agent Code: | |
| Type: | Real | | |
| Tax Area: | 328 - 400-M-5 | Land Use Code | 11 |
| Open Space: | N | DFL | N |
| Historic Property: | N | Remodel Property: | N |
| Multi-Family Redevelopment: | N | | |
| Township: | 8 | Section: | 7 |
| Range: | 31 |
Location |
| Address: | 99 EDITH ST WA 99323 | Mapsco: | |
| Neighborhood: | G BURBANK SFR | Map ID: | |
| Neighborhood CD: | 214711 |
Owner |
| Name: | SWEET CARISSA L | Owner ID: | 56647 |
| Mailing Address: | 99 EDITH ST BURBANK, WA 99323 | % Ownership: | 100.0000000000% |
| | | Exemptions: | |
Taxes and Assessment Details
Property Tax Information as of
02/21/2026
Click on "Statement Details" to expand or collapse a tax statement.
* Please enter a valid date ** Please enter a valid date *
Statement Details |
| | TOTAL: | $0.00 | $0.00 | $0.00 | $0.00 | $0.00 | $0.00 |
|
| | $0.00 | $0.00 | $0.00 | $0.00 | $0.00 | $0.00 |
Values
| (+) Improvement Homesite Value: | + | $0 | |
| (+) Improvement Non-Homesite Value: | + | $259,060 | |
| (+) Land Homesite Value: | + | $0 | |
| (+) Land Non-Homesite Value: | + | $75,000 | |
| (+) Curr Use (HS): | + | $0 | $0 |
| (+) Curr Use (NHS): | + | $0 | $0 |
| | | -------------------------- | |
| (=) Market Value: | = | $334,060 | |
| (–) Productivity Loss: | – | $0 | |
| | | -------------------------- | |
| (=) Subtotal: | = | $334,060 | |
| (+) Senior Appraised Value: | + | $0 | |
| (+) Non-Senior Appraised Value: | + | $334,060 | |
| | | -------------------------- | |
| (=) Total Appraised Value: | = | $334,060 | |
| (–) Senior Exemption Loss: | – | $0 | |
| (–) Exemption Loss: | – | $0 | |
| | | -------------------------- | |
| (=) Taxable Value: | = | $334,060 | |
Taxing Jurisdiction
| Owner: | SWEET CARISSA L | | |
| % Ownership: | 100.0000000000% | | |
| Total Value: | $334,060 | | |
| Tax Area: | 328 - 400-M-5 |
| CERFD | CURRENT EXPENSE REFUND 010 | 0.0000000000 | $334,060 | $334,060 | $0.00 | | |
| CURREXP | CURRENT EXPENSE 010 | 1.0175366760 | $334,060 | $334,060 | $339.92 | | |
| HUMNSERV | HUMAN SERVICES 119 | 0.0250000000 | $334,060 | $334,060 | $8.35 | | |
| SLDREL | SOLDIERS RELIEF 121 | 0.0155990005 | $334,060 | $334,060 | $5.21 | | |
| EMERGSER | EMS 147 | 0.3792580840 | $334,060 | $334,060 | $126.69 | | |
| EMSRFD | EMS REFUND 147 | 0.0000000000 | $334,060 | $334,060 | $0.00 | | |
| FD5EXP | FD #5 EXPENSE 689 | 1.2045331840 | $334,060 | $334,060 | $402.39 | | |
| RLBRFD | RURAL LIBRARY REFUND 623 | 0.0000000000 | $334,060 | $334,060 | $0.00 | | |
| RURALLIB | RURAL LIBRARY 623 | 0.3710609029 | $334,060 | $334,060 | $123.96 | | |
| PORTRFD | PORT REFUND 640 | 0.0000000000 | $334,060 | $334,060 | $0.00 | | |
| PORTWWGEN | PORT OF WW 640 | 0.2460186015 | $334,060 | $334,060 | $82.18 | | |
| SD400BOND | SD #400 BOND 793 | 0.0000000000 | $334,060 | $334,060 | $0.00 | | |
| SD400CAP | SD #400 CP 792 | 0.3443722657 | $334,060 | $334,060 | $115.04 | | |
| SD400GEN | SD #400 GENERAL 790 | 1.9278469916 | $334,060 | $334,060 | $644.02 | | |
| ST2 | STATE SCHOOL PART 2 600 | 0.8131451643 | $334,060 | $334,060 | $271.64 | | |
| STATESCHL | STATE SCHOOL 600 | 1.5158548041 | $334,060 | $334,060 | $506.39 | | |
| STREFUND | STATE REFUND LEVY 603 | 0.0000000000 | $334,060 | $334,060 | $0.00 | | |
| COROAD | COUNTY ROAD 115 | 1.6549953990 | $334,060 | $334,060 | $552.87 | | |
| CRPRD | COUNTY ROAD REFUND 115 | 0.0000000000 | $334,060 | $334,060 | $0.00 | | |
| | Total Tax Rate: | 9.5152210736 | | | | | |
| | | | | Taxes w/Current Exemptions: | $3,178.66 | | |
| | | | | Taxes w/o Exemptions: | $3,178.66 | | |
Improvement / Building
| Improvement #1: | RESIDENTIAL | State Code: | 11 | 1426.0 sqft | Value: | $259,060 |
| Exterior Wall: | PLYWOOD | Heating/Cooling: | WARM & COOLED AIR | | Number of Bathrooms: | 2 | Number of Bedrooms: | 3 | | Plumbing: | 9 | Roof Covering: | COMP SHINGLE |
|
| | Type | Description | Class CD | Sub Class CD | Year Built | Area |
| | MA | Main Area | 1 | 30 | 1980 | 1426.0 |
| | SI1 | SITE IMPROVEMENT | 1 | 30 | 1980 | 1.0 |
| | ATG | Attached Garage | 1 | 30 | 1980 | 504.0 |
| | S1F | Single One Story Fireplace | 1 | 30 | 1980 | 1.0 |
| | RPS | PORCH W/STEPS,ROOF | 1 | 30 | 1980 | 30.0 |
Sketch
Property Image
Land
| 1 | RES 1 | Converted: Residential | 0.6663 | 29025.00 | 0.00 | 0.00 | 1.00 | $75,000 | $0 |
Roll Value History
| 2026 | N/A | N/A | N/A | N/A | N/A |
| 2025 | $284,970 | $75,000 | $0 | $359,970 | $359,970 |
| 2024 | $259,060 | $75,000 | $0 | $334,060 | $334,060 |
| 2023 | $259,060 | $75,000 | $0 | $334,060 | $334,060 |
| 2022 | $246,730 | $75,000 | $0 | $321,730 | $321,730 |
| 2021 | $197,380 | $75,000 | $0 | $272,380 | $272,380 |
| 2020 | $180,960 | $35,000 | $0 | $215,960 | $215,960 |
| 2019 | $180,960 | $35,000 | $0 | $215,960 | $215,960 |
| 2018 | $139,200 | $35,000 | $0 | $174,200 | $174,200 |
| 2017 | $139,200 | $35,000 | $0 | $174,200 | $174,200 |
| 2016 | $139,200 | $35,000 | $0 | $174,200 | $174,200 |
| 2015 | $139,200 | $35,000 | $0 | $174,200 | $174,200 |
| 2014 | $139,200 | $35,000 | $0 | $174,200 | $174,200 |
| 2013 | $139,200 | $35,000 | $0 | $174,200 | $174,200 |
| 2012 | $109,300 | $35,000 | $0 | $0 | $0 |
| 2011 | $109,300 | $35,000 | $0 | $0 | $0 |
| 2010 | $109,300 | $35,000 | $0 | $0 | $0 |
| 2009 | $116,000 | $25,000 | $0 | $0 | $0 |
| 2008 | $116,000 | $25,000 | $0 | $0 | $0 |
| 2007 | $116,000 | $25,000 | $0 | $0 | $0 |
Deed and Sales History
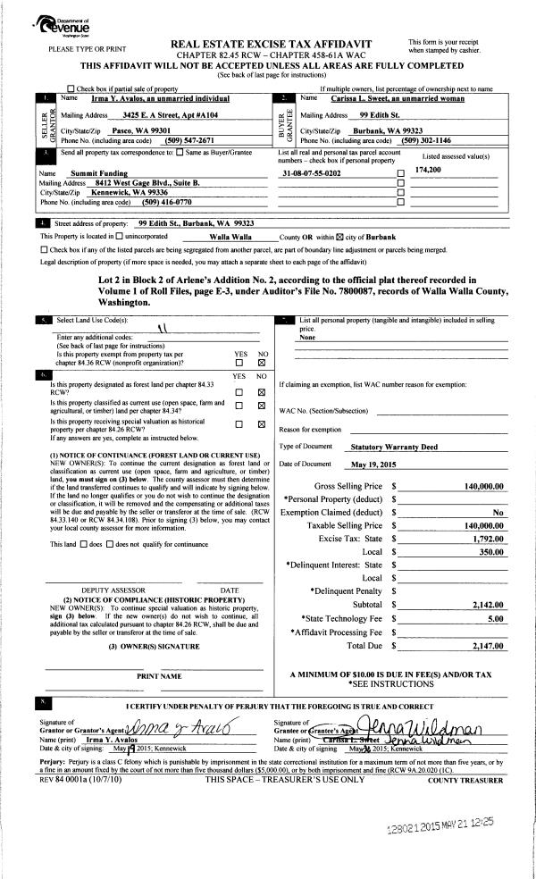
| 1 | 05/21/2015 | SWD | STATUTORY WARRANTY DEED | AVALOS IRMA Y | SWEET CARISSA L | | | $140,000.00 | 128021 | 2015-04311 |
| 2 | 06/30/2008 | WARRANTY D | WARRANTY DEED | MC CLAIN, STACEY & ALISE | AVALOS, IRMA Y | | | $169,900.00 | 115269 | 2008-06737 |
| 3 | 01/31/2005 | WARRANTY D | WARRANTY DEED | WALDBAUER, RONALD L | MC CLAIN, STACEY & ALISE | | | $142,500.00 | 106690 | 2005-01190 |
| 4 | 04/07/1996 | WARRANTY D | WARRANTY DEED | | | | | $95,000.00 | 85867 | 2399-603166 |
Payout Agreement
| No payout information available.. |