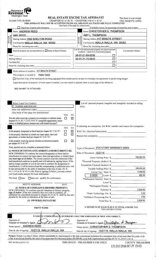
| 1 | 10/27/2016 | SWD | STATUTORY WARRANTY DEED | REED ANDREW L & AMY | THOMPSON CHRISTOPHER S & AMY L | | 2-PARCELS | $185,000.00 | 131332 | 2016-08918 |
|   | |
| 2 | 06/23/2005 | WARRANTY D | WARRANTY DEED | SECRETARY OF HOUSING & URBAN D | REED ANDREW L & AMY | | | $117,000.00 | 107791 | 2005-07573 |
|   | |
| 3 | 03/09/2005 | WARRANTY D | WARRANTY DEED | MORTGAGE ELECTRONIC REGISTRATI | SECRETARY OF HOUSING & URBAN DEV | | | $116,914.00 | 106952 | 2005-02694 |
|   | |
| 4 | 01/13/2005 | WARRANTY D | WARRANTY DEED | NORTHWEST TRUSTEE SERVICES, IN | MORTGAGE ELECTRONIC REGISTRATI | | | $125,970.00 | 106595 | 2005-00518 |
|   | |
| 5 | 05/30/2003 | WARRANTY D | WARRANTY DEED | SELF HELEN M | TALICH DENNIS E | | | | 102212 | 2003-07986 |
| 6 | 12/07/1994 | WARRANTY D | WARRANTY DEED | | | | | $75,000.00 | 83099 | 2259-413833 |
|   | |