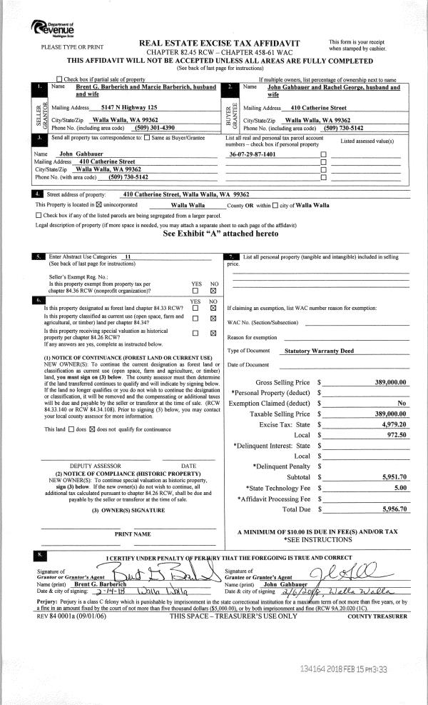
Property
Account |
| Property ID: | 14211 | Abbreviated Legal Description: | ROBERTS TAX 1 BLK 14 LESS TAX 1A |
| Parcel Number: | 360729871401 | Agent Code: | |
| Type: | Real | | |
| Tax Area: | 1 - OL-140-F | Land Use Code | 11 |
| Open Space: | N | DFL | N |
| Historic Property: | N | Remodel Property: | N |
| Multi-Family Redevelopment: | N | | |
| Township: | 7 | Section: | 29 |
| Range: | 36 |
Location |
| Address: | 410 CATHERINE ST WA 99362 | Mapsco: | |
| Neighborhood: | G-SFR | Map ID: | |
| Neighborhood CD: | 514011 |
Owner |
| Name: | GAHBAUER JOHN | Owner ID: | 62617 |
| Mailing Address: | RACHEL GEORGE 410 CATHERINE ST WALLA WALLA, WA 99362 | % Ownership: | 100.0000000000% |
| | | Exemptions: | |
Taxes and Assessment Details
Values
| (+) Improvement Homesite Value: | + | $0 | |
| (+) Improvement Non-Homesite Value: | + | $418,480 | |
| (+) Land Homesite Value: | + | $0 | |
| (+) Land Non-Homesite Value: | + | $71,700 | |
| (+) Curr Use (HS): | + | $0 | $0 |
| (+) Curr Use (NHS): | + | $0 | $0 |
| | | -------------------------- | |
| (=) Market Value: | = | $490,180 | |
| (–) Productivity Loss: | – | $0 | |
| | | -------------------------- | |
| (=) Subtotal: | = | $490,180 | |
| (+) Senior Appraised Value: | + | $0 | |
| (+) Non-Senior Appraised Value: | + | $490,180 | |
| | | -------------------------- | |
| (=) Total Appraised Value: | = | $490,180 | |
| (–) Senior Exemption Loss: | – | $0 | |
| (–) Exemption Loss: | – | $0 | |
| | | -------------------------- | |
| (=) Taxable Value: | = | $490,180 | |
Taxing Jurisdiction
| Owner: | GAHBAUER JOHN | | |
| % Ownership: | 100.0000000000% | | |
| Total Value: | $490,180 | | |
| Tax Area: | 1 - OL-140-F |
| CERFD | CURRENT EXPENSE REFUND 010 | 0.0000000000 | $490,180 | $490,180 | $0.00 | | |
| CURREXP | CURRENT EXPENSE 010 | 1.0175366760 | $490,180 | $490,180 | $498.78 | | |
| HUMNSERV | HUMAN SERVICES 119 | 0.0250000000 | $490,180 | $490,180 | $12.25 | | |
| SLDREL | SOLDIERS RELIEF 121 | 0.0155990005 | $490,180 | $490,180 | $7.65 | | |
| EMERGSER | EMS 147 | 0.3792580840 | $490,180 | $490,180 | $185.90 | | |
| EMSRFD | EMS REFUND 147 | 0.0000000000 | $490,180 | $490,180 | $0.00 | | |
| PORTRFD | PORT REFUND 640 | 0.0000000000 | $490,180 | $490,180 | $0.00 | | |
| PORTWWGEN | PORT OF WW 640 | 0.2460186015 | $490,180 | $490,180 | $120.59 | | |
| SD140BOND | SD #140 BOND 764 | 0.8342371393 | $490,180 | $490,180 | $408.93 | | |
| SD140GEN | SD #140 GENERAL 760 | 2.0646500647 | $490,180 | $490,180 | $1,012.05 | | |
| ST2 | STATE SCHOOL PART 2 600 | 0.8131451643 | $490,180 | $490,180 | $398.59 | | |
| STATESCHL | STATE SCHOOL 600 | 1.5158548041 | $490,180 | $490,180 | $743.04 | | |
| STREFUND | STATE REFUND LEVY 603 | 0.0000000000 | $490,180 | $490,180 | $0.00 | | |
| CWWBOND | C OF WW BOND 643 | 0.2760494372 | $490,180 | $490,180 | $135.31 | | |
| CWWGEN | CITY OF WW 631 | 1.6100204973 | $490,180 | $490,180 | $789.20 | | |
| CWWRFD | CITY OF WALLA WALLA REFUND 631 | 0.0000000000 | $490,180 | $490,180 | $0.00 | | |
| | Total Tax Rate: | 8.7973694689 | | | | | |
| | | | | Taxes w/Current Exemptions: | $4,312.29 | | |
| | | | | Taxes w/o Exemptions: | $4,312.29 | | |
Improvement / Building
| Improvement #1: | RESIDENTIAL | State Code: | 11 | 2672.0 sqft | Value: | $418,480 |
| Exterior Wall: | SIDING | Heating/Cooling: | WARM & COOLED AIR | | Number of Bathrooms: | 3 | Number of Bedrooms: | 5 | | Plumbing: | 13 | Roof Covering: | COMP SHINGLE |
|
| | Type | Description | Class CD | Sub Class CD | Year Built | Area |
| | MA | Main Area | 4 | 35 | 1886 | 2672.0 |
| | SI1 | SITE IMPROVEMENT | 4 | 35 | 1886 | 2.0 |
| | UPFL | Upper Floor (included in main area) | 4 | 35 | 1886 | 950.0 |
| | BASE | BASEMENT | 4 | 35 | 1886 | 750.0 |
| | BPF | BASEMENT -PARTITIONED FINISH | 4 | 35 | 1886 | 750.0 |
| | S1F | Single One Story Fireplace | 4 | 35 | 1886 | 1.0 |
| | PRC | PORCH W STEPS, ROOF,CEILED | 4 | 35 | 1886 | 40.0 |
| | RCD | WOOD DECK W/ROOF, CEILED | 4 | 35 | 1886 | 70.0 |
| | ATG | Attached Garage | 4 | 35 | 1886 | 520.0 |
Sketch
Property Image
Land
| 1 | RES 1 | Converted: Residential | 0.2270 | 9890.00 | 0.00 | 0.00 | 1.00 | $71,700 | $0 |
Roll Value History
| 2026 | N/A | N/A | N/A | N/A | N/A |
| 2025 | $391,300 | $108,790 | $0 | $500,090 | $500,090 |
| 2024 | $391,300 | $108,790 | $0 | $500,090 | $500,090 |
| 2023 | $418,480 | $71,700 | $0 | $490,180 | $490,180 |
| 2022 | $398,550 | $71,700 | $0 | $470,250 | $470,250 |
| 2021 | $362,320 | $71,700 | $0 | $434,020 | $434,020 |
| 2020 | $301,930 | $71,700 | $0 | $373,630 | $373,630 |
| 2019 | $301,930 | $71,700 | $0 | $373,630 | $373,630 |
| 2018 | $301,930 | $71,700 | $0 | $373,630 | $373,630 |
| 2017 | $225,320 | $44,500 | $0 | $269,820 | $269,820 |
| 2016 | $214,590 | $44,500 | $0 | $259,090 | $259,090 |
| 2015 | $214,590 | $44,500 | $0 | $259,090 | $259,090 |
| 2014 | $191,500 | $44,500 | $0 | $236,000 | $236,000 |
| 2013 | $191,500 | $44,500 | $0 | $236,000 | $236,000 |
| 2012 | $189,800 | $44,500 | $0 | $0 | $0 |
| 2011 | $189,800 | $44,500 | $0 | $0 | $0 |
| 2010 | $178,600 | $44,500 | $0 | $0 | $0 |
| 2009 | $203,400 | $44,500 | $0 | $0 | $0 |
| 2008 | $171,100 | $44,500 | $0 | $0 | $0 |
| 2007 | $171,100 | $44,500 | $0 | $0 | $0 |
Deed and Sales History
| 1 | 02/15/2018 | SWD | STATUTORY WARRANTY DEED | BARBERICH BRENT G & MARCIE | GAHBAUER JOHN | | | $389,000.00 | 134164 | 2018-01317 |
| 2 | 12/28/2004 | WARRANTY D | WARRANTY DEED | SMITH, KELLI JO | BARBERICH, BRENT G & MARCIE | | | $215,900.00 | 106507 | 2004-14874 |
| 3 | 05/25/2001 | WARRANTY D | WARRANTY DEED | | | | | $160,000.00 | 97244 | 3130-105533 |
Payout Agreement
| No payout information available.. |