Property
Account |
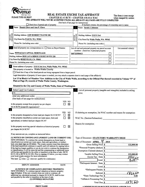
| Property ID: | 1421 | Abbreviated Legal Description: | MEADOW VIEW ADDN LT 13 BLK 4 |
| Parcel Number: | 360732550413 | Agent Code: | |
| Type: | Real | | |
| Tax Area: | 1 - OL-140-F | Land Use Code | 11 |
| Open Space: | N | DFL | N |
| Historic Property: | N | Remodel Property: | N |
| Multi-Family Redevelopment: | N | | |
| Township: | 7 | Section: | 32 |
| Range: | 36 |
Location |
| Address: | 2115 S 3RD AVE WA 99362 | Mapsco: | |
| Neighborhood: | A Res | Map ID: | |
| Neighborhood CD: | 613011 |
Owner |
| Name: | SPALDING STEPHEN P | Owner ID: | 72197 |
| Mailing Address: | BREANN M PICKETT 2115 S 3RD AVE WALLA WALLA, WA 99362 | % Ownership: | 100.0000000000% |
| | | Exemptions: | |
Taxes and Assessment Details
Values
| (+) Improvement Homesite Value: | + | $0 | |
| (+) Improvement Non-Homesite Value: | + | $242,930 | |
| (+) Land Homesite Value: | + | $0 | |
| (+) Land Non-Homesite Value: | + | $90,340 | |
| (+) Curr Use (HS): | + | $0 | $0 |
| (+) Curr Use (NHS): | + | $0 | $0 |
| | | -------------------------- | |
| (=) Market Value: | = | $333,270 | |
| (–) Productivity Loss: | – | $0 | |
| | | -------------------------- | |
| (=) Subtotal: | = | $333,270 | |
| (+) Senior Appraised Value: | + | $0 | |
| (+) Non-Senior Appraised Value: | + | $333,270 | |
| | | -------------------------- | |
| (=) Total Appraised Value: | = | $333,270 | |
| (–) Senior Exemption Loss: | – | $0 | |
| (–) Exemption Loss: | – | $0 | |
| | | -------------------------- | |
| (=) Taxable Value: | = | $333,270 | |
Taxing Jurisdiction
| Owner: | SPALDING STEPHEN P | | |
| % Ownership: | 100.0000000000% | | |
| Total Value: | $333,270 | | |
| Tax Area: | 1 - OL-140-F |
| CERFD | CURRENT EXPENSE REFUND 010 | 0.0000000000 | $333,270 | $333,270 | $0.00 | | |
| CURREXP | CURRENT EXPENSE 010 | 1.0175366760 | $333,270 | $333,270 | $339.11 | | |
| HUMNSERV | HUMAN SERVICES 119 | 0.0250000000 | $333,270 | $333,270 | $8.33 | | |
| SLDREL | SOLDIERS RELIEF 121 | 0.0155990005 | $333,270 | $333,270 | $5.20 | | |
| EMERGSER | EMS 147 | 0.3792580840 | $333,270 | $333,270 | $126.40 | | |
| EMSRFD | EMS REFUND 147 | 0.0000000000 | $333,270 | $333,270 | $0.00 | | |
| PORTRFD | PORT REFUND 640 | 0.0000000000 | $333,270 | $333,270 | $0.00 | | |
| PORTWWGEN | PORT OF WW 640 | 0.2460186015 | $333,270 | $333,270 | $81.99 | | |
| SD140BOND | SD #140 BOND 764 | 0.8342371393 | $333,270 | $333,270 | $278.03 | | |
| SD140GEN | SD #140 GENERAL 760 | 2.0646500647 | $333,270 | $333,270 | $688.09 | | |
| ST2 | STATE SCHOOL PART 2 600 | 0.8131451643 | $333,270 | $333,270 | $271.00 | | |
| STATESCHL | STATE SCHOOL 600 | 1.5158548041 | $333,270 | $333,270 | $505.19 | | |
| STREFUND | STATE REFUND LEVY 603 | 0.0000000000 | $333,270 | $333,270 | $0.00 | | |
| CWWBOND | C OF WW BOND 643 | 0.2760494372 | $333,270 | $333,270 | $92.00 | | |
| CWWGEN | CITY OF WW 631 | 1.6100204973 | $333,270 | $333,270 | $536.57 | | |
| CWWRFD | CITY OF WALLA WALLA REFUND 631 | 0.0000000000 | $333,270 | $333,270 | $0.00 | | |
| | Total Tax Rate: | 8.7973694689 | | | | | |
| | | | | Taxes w/Current Exemptions: | $2,931.91 | | |
| | | | | Taxes w/o Exemptions: | $2,931.91 | | |
Improvement / Building
| Improvement #1: | RESIDENTIAL | State Code: | 11 | 750.0 sqft | Value: | $242,930 |
| Exterior Wall: | PLYWOOD | Heating/Cooling: | BASEBOARD ELECTRIC | | Number of Bathrooms: | 2 | Number of Bedrooms: | 3 | | Plumbing: | 9 | Roof Covering: | COMP SHINGLE |
|
| | Type | Description | Class CD | Sub Class CD | Year Built | Area |
| | MA | Main Area | 11 | 30 | 1968 | 750.0 |
| | SI1 | SITE IMPROVEMENT | 11 | 30 | 1968 | 1.5 |
| | BASE | BASEMENT | 11 | 30 | 1968 | 750.0 |
| | BPF | BASEMENT -PARTITIONED FINISH | 11 | 30 | 1968 | 750.0 |
| | ATG | Attached Garage | 11 | 30 | 1968 | 528.0 |
| | RPO | OPEN PORCH W/ROOF | 11 | 30 | 1968 | 15.0 |
| | WOD | Wood Deck | 11 | 30 | 1968 | 360.0 |
Sketch
Property Image
Land
| 1 | RES 1 | Converted: Residential | 0.2378 | 10360.00 | 0.00 | 0.00 | 1.00 | $90,340 | $0 |
Roll Value History
| 2026 | N/A | N/A | N/A | N/A | N/A |
| 2025 | $252,440 | $110,330 | $0 | $362,770 | $362,770 |
| 2024 | $267,220 | $90,340 | $0 | $357,560 | $357,560 |
| 2023 | $242,930 | $90,340 | $0 | $333,270 | $333,270 |
| 2022 | $202,440 | $72,730 | $0 | $275,170 | $275,170 |
| 2021 | $155,720 | $72,730 | $0 | $228,450 | $228,450 |
| 2020 | $129,770 | $72,730 | $0 | $202,500 | $202,500 |
| 2019 | $129,770 | $72,730 | $0 | $202,500 | $202,500 |
| 2018 | $93,430 | $47,400 | $0 | $140,830 | $140,830 |
| 2017 | $84,940 | $47,400 | $0 | $132,340 | $132,340 |
| 2016 | $80,890 | $47,400 | $0 | $128,290 | $128,290 |
| 2015 | $77,040 | $47,400 | $0 | $124,440 | $124,440 |
| 2014 | $96,300 | $47,400 | $0 | $143,700 | $143,700 |
| 2013 | $96,300 | $47,400 | $0 | $143,700 | $143,700 |
| 2012 | $99,300 | $47,400 | $0 | $0 | $0 |
| 2011 | $99,300 | $47,400 | $0 | $0 | $0 |
| 2010 | $92,300 | $47,400 | $0 | $0 | $0 |
| 2009 | $107,800 | $47,400 | $0 | $0 | $0 |
| 2008 | $107,800 | $47,400 | $0 | $0 | $0 |
| 2007 | $77,300 | $24,900 | $0 | $0 | $0 |
Deed and Sales History
| 1 | 10/24/2025 | QCD | QUIT CLAIM DEED | | SPALDING STEPHEN P | | | | 150247 | 2025-06591 |
| 2 | 08/31/2022 | SWD | STATUTORY WARRANTY DEED | JOHNSON SARAH J | SPALDING STEPHEN P | | | $365,000.00 | 144600 | 2022-07326 |
| 3 | 05/25/2017 | WARRANTY D | WARRANTY DEED | JOHNSON SARAH J | JOHNSON SARAH J | | | $0.00 | 132654 | 2017-04828 |
| 4 | 04/09/2014 | SWD | STATUTORY WARRANTY DEED | GLORE DENNIS D & ANN F | JOHNSON SARAH J | | | $122,000.00 | 125698 | 2014-02422 |
| 5 | 02/27/2003 | WARRANTY D | WARRANTY DEED | OGDEN, JAMES G | GLORE, DENNIS D & ANN F | | | $101,500.00 | 101477 | 2003-02572 |
| 6 | 07/18/1975 | WARRANTY D | WARRANTY DEED | | | | | $27,000.00 | 0 | 2905-46492 |
Payout Agreement
| No payout information available.. |