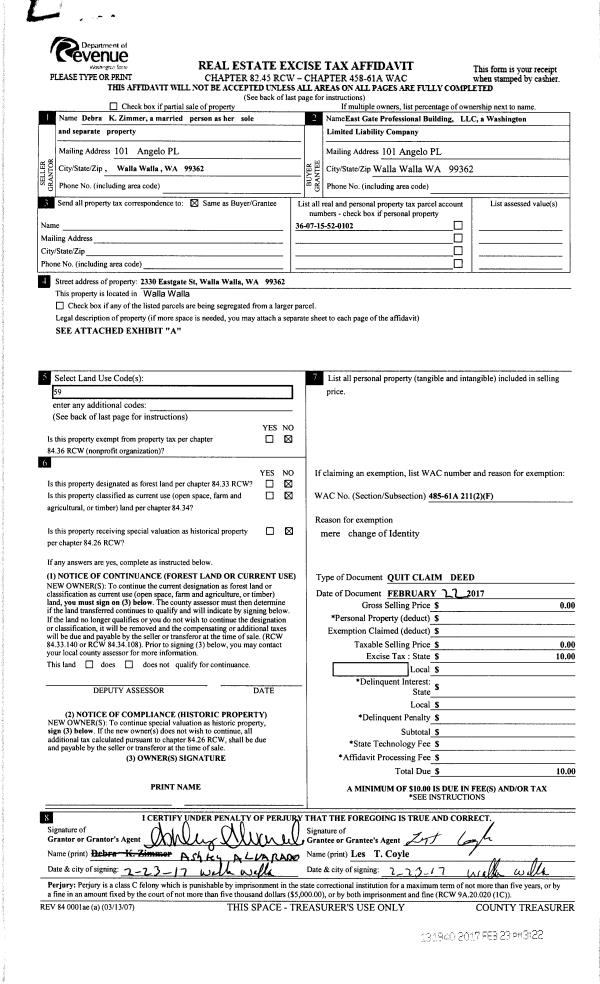
Property
Account |
| Property ID: | 14199 | Abbreviated Legal Description: | EASTGATE NORTH BUS. PARK LOT 2 BLK 1 |
| Parcel Number: | 360715520102 | Agent Code: | |
| Type: | Real | | |
| Tax Area: | 5 - OL-140 | Land Use Code | 63 |
| Open Space: | N | DFL | N |
| Historic Property: | N | Remodel Property: | N |
| Multi-Family Redevelopment: | N | | |
| Township: | 7 | Section: | 15 |
| Range: | 36 |
Location |
| Address: | 2316 EASTGATE ST WA 99362 | Mapsco: | |
| Neighborhood: | Walla Walla Comm 2 | Map ID: | |
| Neighborhood CD: | 4303 |
Owner |
| Name: | EASTGATE COMMERCIAL BUILDING LLC | Owner ID: | 60463 |
| Mailing Address: | 101 ANGELO PL WALLA WALLA, WA 99362 | % Ownership: | 100.0000000000% |
| | | Exemptions: | |
Taxes and Assessment Details
Values
| (+) Improvement Homesite Value: | + | $0 | |
| (+) Improvement Non-Homesite Value: | + | $297,600 | |
| (+) Land Homesite Value: | + | $0 | |
| (+) Land Non-Homesite Value: | + | $296,200 | |
| (+) Curr Use (HS): | + | $0 | $0 |
| (+) Curr Use (NHS): | + | $0 | $0 |
| | | -------------------------- | |
| (=) Market Value: | = | $593,800 | |
| (–) Productivity Loss: | – | $0 | |
| | | -------------------------- | |
| (=) Subtotal: | = | $593,800 | |
| (+) Senior Appraised Value: | + | $0 | |
| (+) Non-Senior Appraised Value: | + | $593,800 | |
| | | -------------------------- | |
| (=) Total Appraised Value: | = | $593,800 | |
| (–) Senior Exemption Loss: | – | $0 | |
| (–) Exemption Loss: | – | $0 | |
| | | -------------------------- | |
| (=) Taxable Value: | = | $593,800 | |
Taxing Jurisdiction
| Owner: | EASTGATE COMMERCIAL BUILDING LLC | | |
| % Ownership: | 100.0000000000% | | |
| Total Value: | $593,800 | | |
| Tax Area: | 5 - OL-140 |
| CERFD | CURRENT EXPENSE REFUND 010 | 0.0000000000 | $593,800 | $593,800 | $0.00 | | |
| CURREXP | CURRENT EXPENSE 010 | 0.9851088983 | $593,800 | $593,800 | $584.96 | | |
| HUMNSERV | HUMAN SERVICES 119 | 0.0250000000 | $593,800 | $593,800 | $14.85 | | |
| SLDREL | SOLDIERS RELIEF 121 | 0.0155990000 | $593,800 | $593,800 | $9.26 | | |
| EMERGSER | EMS 147 | 0.3676811629 | $593,800 | $593,800 | $218.33 | | |
| EMSRFD | EMS REFUND 147 | 0.0000000000 | $593,800 | $593,800 | $0.00 | | |
| PORTRFD | PORT REFUND 640 | 0.0000000000 | $593,800 | $593,800 | $0.00 | | |
| PORTWWGEN | PORT OF WW 640 | 0.2344301070 | $593,800 | $593,800 | $139.20 | | |
| SD140BOND | SD #140 BOND 764 | 0.8032434458 | $593,800 | $593,800 | $476.97 | | |
| SD140CAP | SD #140 CAP 762 | 0.3840034221 | $593,800 | $593,800 | $228.02 | | |
| SD140GEN | SD #140 GENERAL 760 | 2.4999999996 | $593,800 | $593,800 | $1,484.50 | | |
| ST2 | STATE SCHOOL PART 2 600 | 0.8853714103 | $593,800 | $593,800 | $525.73 | | |
| STATESCHL | STATE SCHOOL 600 | 1.6424571473 | $593,800 | $593,800 | $975.29 | | |
| STREFUND | STATE REFUND LEVY 603 | 0.0000000000 | $593,800 | $593,800 | $0.00 | | |
| CWWBOND | C OF WW BOND 643 | 0.2642134255 | $593,800 | $593,800 | $156.89 | | |
| CWWGEN | CITY OF WW 631 | 1.6110494978 | $593,800 | $593,800 | $956.64 | | |
| CWWRFD | CITY OF WALLA WALLA REFUND 631 | 0.0000000000 | $593,800 | $593,800 | $0.00 | | |
| | Total Tax Rate: | 9.7181575166 | | | | | |
| | | | | Taxes w/Current Exemptions: | $5,770.64 | | |
| | | | | Taxes w/o Exemptions: | $5,770.64 | | |
Improvement / Building
| Improvement #1: | COMMERCIAL | State Code: | 63 | 11520.0 sqft | Value: | $297,600 |
| | Type | Description | Class CD | Sub Class CD | Year Built | Area |
| | MA | Main Area | D | * | 1980 | 11520.0 |
| | SI1 | SITE IMPROVEMENT | D | * | 1980 | 4.0 |
| | RPO | OPEN PORCH W/ROOF | D | * | 1980 | 1100.0 |
| | RPO | OPEN PORCH W/ROOF | D | * | 1980 | 840.0 |
| | RPO | OPEN PORCH W/ROOF | D | * | 1980 | 808.0 |
Sketch
Property Image
Land
| 1 | COM 1 | Converted: Commercial | 0.8501 | 37030.36 | 0.00 | 0.00 | 1.00 | $296,200 | $0 |
Roll Value History
| 2026 | N/A | N/A | N/A | N/A | N/A |
| 2025 | $297,600 | $296,200 | $0 | $593,800 | $593,800 |
| 2024 | $294,500 | $296,200 | $0 | $590,700 | $590,700 |
| 2023 | $294,500 | $296,200 | $0 | $590,700 | $590,700 |
| 2022 | $296,000 | $222,180 | $0 | $518,180 | $518,180 |
| 2021 | $296,000 | $222,180 | $0 | $518,180 | $518,180 |
| 2020 | $296,000 | $222,180 | $0 | $518,180 | $518,180 |
| 2019 | $296,000 | $222,180 | $0 | $518,180 | $518,180 |
| 2018 | $256,000 | $222,180 | $0 | $478,180 | $478,180 |
| 2017 | $256,000 | $222,180 | $0 | $478,180 | $478,180 |
| 2016 | $256,000 | $129,400 | $0 | $385,400 | $385,400 |
| 2015 | $256,000 | $129,400 | $0 | $385,400 | $385,400 |
| 2014 | $256,000 | $129,400 | $0 | $385,400 | $385,400 |
| 2013 | $256,000 | $129,400 | $0 | $385,400 | $385,400 |
| 2012 | $256,000 | $129,400 | $0 | $0 | $0 |
| 2011 | $254,900 | $129,400 | $0 | $0 | $0 |
| 2010 | $254,900 | $129,400 | $0 | $0 | $0 |
| 2009 | $254,900 | $129,400 | $0 | $0 | $0 |
| 2008 | $254,900 | $129,400 | $0 | $0 | $0 |
| 2007 | $254,900 | $129,400 | $0 | $0 | $0 |
Deed and Sales History
| 1 | 02/22/2017 | QCD | QUIT CLAIM DEED | ZIMMER DEBRA K | EASTGATE COMMERCIAL BUILDING LLC | | | | 131940 | 2017-01468 |
| 2 | 08/21/2006 | WARRANTY D | WARRANTY DEED | "ZIMMER, DAVID R & DEBRA K~TRU | ZIMMER DEBRA K | | | | 111004 | 2006-09989 |
| 3 | 01/10/2005 | QCD | QUIT CLAIM DEED | ZIMMER, DAVID R & DEBRA K | ZIMMER, DAVID R & DEBRA K TRUS | | | $106,572.00 | 106572 | 2005-00389 |
| 4 | 05/19/1999 | WARRANTY D | WARRANTY DEED | | | | | $705,000.00 | 92786 | 2849-906091 |
|   | |
Payout Agreement
| No payout information available.. |