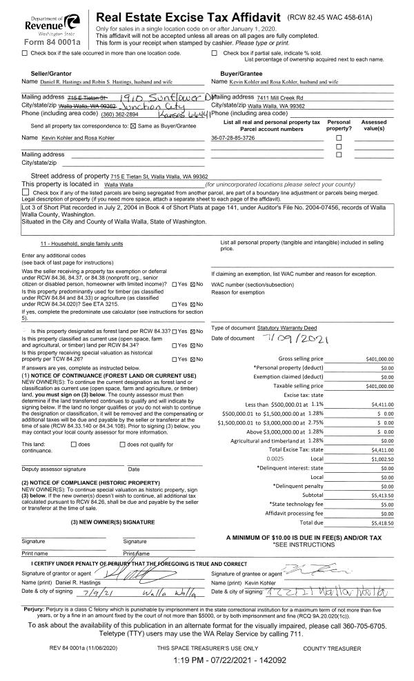
Property
Account |
| Property ID: | 14195 | Abbreviated Legal Description: | MT VIEW ADDITION LOT 3 OF SHORT PLAT (SLY PTN TAX 1) BLOCK 37 |
| Parcel Number: | 360728853726 | Agent Code: | |
| Type: | Real | | |
| Tax Area: | 1 - OL-140-F | Land Use Code | 11 |
| Open Space: | N | DFL | N |
| Historic Property: | N | Remodel Property: | N |
| Multi-Family Redevelopment: | N | | |
| Township: | 7 | Section: | 28 |
| Range: | 36 |
Location |
| Address: | 715 E TIETAN ST WA 99362 | Mapsco: | |
| Neighborhood: | G Res | Map ID: | |
| Neighborhood CD: | 614011 |
Owner |
| Name: | KOHLER KEVIN & ROSA | Owner ID: | 69859 |
| Mailing Address: | 715 E TIETAN ST WALLA WALLA, WA 99362 | % Ownership: | 100.0000000000% |
| | | Exemptions: | |
Taxes and Assessment Details
Values
| (+) Improvement Homesite Value: | + | $0 | |
| (+) Improvement Non-Homesite Value: | + | $323,130 | |
| (+) Land Homesite Value: | + | $0 | |
| (+) Land Non-Homesite Value: | + | $100,630 | |
| (+) Curr Use (HS): | + | $0 | $0 |
| (+) Curr Use (NHS): | + | $0 | $0 |
| | | -------------------------- | |
| (=) Market Value: | = | $423,760 | |
| (–) Productivity Loss: | – | $0 | |
| | | -------------------------- | |
| (=) Subtotal: | = | $423,760 | |
| (+) Senior Appraised Value: | + | $0 | |
| (+) Non-Senior Appraised Value: | + | $423,760 | |
| | | -------------------------- | |
| (=) Total Appraised Value: | = | $423,760 | |
| (–) Senior Exemption Loss: | – | $0 | |
| (–) Exemption Loss: | – | $0 | |
| | | -------------------------- | |
| (=) Taxable Value: | = | $423,760 | |
Taxing Jurisdiction
| Owner: | KOHLER KEVIN & ROSA | | |
| % Ownership: | 100.0000000000% | | |
| Total Value: | $423,760 | | |
| Tax Area: | 1 - OL-140-F |
| CERFD | CURRENT EXPENSE REFUND 010 | 0.0000000000 | $423,760 | $423,760 | $0.00 | | |
| CURREXP | CURRENT EXPENSE 010 | 1.0175366760 | $423,760 | $423,760 | $431.19 | | |
| HUMNSERV | HUMAN SERVICES 119 | 0.0250000000 | $423,760 | $423,760 | $10.59 | | |
| SLDREL | SOLDIERS RELIEF 121 | 0.0155990005 | $423,760 | $423,760 | $6.61 | | |
| EMERGSER | EMS 147 | 0.3792580840 | $423,760 | $423,760 | $160.71 | | |
| EMSRFD | EMS REFUND 147 | 0.0000000000 | $423,760 | $423,760 | $0.00 | | |
| PORTRFD | PORT REFUND 640 | 0.0000000000 | $423,760 | $423,760 | $0.00 | | |
| PORTWWGEN | PORT OF WW 640 | 0.2460186015 | $423,760 | $423,760 | $104.25 | | |
| SD140BOND | SD #140 BOND 764 | 0.8342371393 | $423,760 | $423,760 | $353.52 | | |
| SD140GEN | SD #140 GENERAL 760 | 2.0646500647 | $423,760 | $423,760 | $874.92 | | |
| ST2 | STATE SCHOOL PART 2 600 | 0.8131451643 | $423,760 | $423,760 | $344.58 | | |
| STATESCHL | STATE SCHOOL 600 | 1.5158548041 | $423,760 | $423,760 | $642.36 | | |
| STREFUND | STATE REFUND LEVY 603 | 0.0000000000 | $423,760 | $423,760 | $0.00 | | |
| CWWBOND | C OF WW BOND 643 | 0.2760494372 | $423,760 | $423,760 | $116.98 | | |
| CWWGEN | CITY OF WW 631 | 1.6100204973 | $423,760 | $423,760 | $682.26 | | |
| CWWRFD | CITY OF WALLA WALLA REFUND 631 | 0.0000000000 | $423,760 | $423,760 | $0.00 | | |
| | Total Tax Rate: | 8.7973694689 | | | | | |
| | | | | Taxes w/Current Exemptions: | $3,727.97 | | |
| | | | | Taxes w/o Exemptions: | $3,727.97 | | |
Improvement / Building
| Improvement #1: | RESIDENTIAL | State Code: | 11 | 1713.0 sqft | Value: | $323,130 |
| Exterior Wall: | PLYWOOD | Heating/Cooling: | WARM & COOLED AIR | | Number of Bathrooms: | 2 | Number of Bedrooms: | 3 | | Plumbing: | 10 | Roof Covering: | COMP SHINGLE |
|
| | Type | Description | Class CD | Sub Class CD | Year Built | Area |
| | MA | Main Area | 1 | 40 | 2005 | 1713.0 |
| | SI1 | SITE IMPROVEMENT | 1 | 40 | 2005 | 3.5 |
| | ATG | Attached Garage | 1 | 40 | 2005 | 768.0 |
| | RPC | OPEN PORCH W/ROOF , CEILED | 1 | 40 | 2005 | 52.0 |
| | OSP | Open | 1 | 40 | 2009 | 175.0 |
Sketch
Property Image
Land
| 1 | RES 1 | Converted: Residential | 0.2310 | 10063.00 | 0.00 | 0.00 | 1.00 | $100,630 | $0 |
Roll Value History
| 2026 | N/A | N/A | N/A | N/A | N/A |
| 2025 | $313,570 | $120,760 | $0 | $434,330 | $434,330 |
| 2024 | $323,130 | $100,630 | $0 | $423,760 | $423,760 |
| 2023 | $323,130 | $100,630 | $0 | $423,760 | $423,760 |
| 2022 | $307,740 | $83,020 | $0 | $390,760 | $390,760 |
| 2021 | $267,600 | $83,020 | $0 | $350,620 | $350,620 |
| 2020 | $214,080 | $83,020 | $0 | $297,100 | $297,100 |
| 2019 | $214,080 | $83,020 | $0 | $297,100 | $297,100 |
| 2018 | $224,120 | $47,200 | $0 | $271,320 | $271,320 |
| 2017 | $224,120 | $47,200 | $0 | $271,320 | $271,320 |
| 2016 | $213,440 | $47,200 | $0 | $260,640 | $260,640 |
| 2015 | $203,280 | $47,200 | $0 | $250,480 | $250,480 |
| 2014 | $193,600 | $47,200 | $0 | $240,800 | $240,800 |
| 2013 | $193,600 | $47,200 | $0 | $240,800 | $240,800 |
| 2012 | $193,600 | $47,200 | $0 | $0 | $0 |
| 2011 | $193,600 | $47,200 | $0 | $0 | $0 |
| 2010 | $171,700 | $47,200 | $0 | $0 | $0 |
| 2009 | $196,000 | $47,200 | $0 | $0 | $0 |
| 2008 | $196,000 | $47,200 | $0 | $0 | $0 |
| 2007 | $172,800 | $24,700 | $0 | $0 | $0 |
Deed and Sales History
| 1 | 07/22/2021 | SWD | STATUTORY WARRANTY DEED | HASTINGS DANIEL R & ROBIN S | KOHLER KEVIN & ROSA | | | $401,000.00 | 142092 | 2021-08912 |
| 2 | 04/09/2019 | SWD | STATUTORY WARRANTY DEED | DESOMBER RICHARD K & LORNA J | HASTINGS DANIEL R & ROBIN S | | | $312,000.00 | 136641 | 2019-02219 |
| 3 | 01/11/2005 | WARRANTY D | WARRANTY DEED | SIRMON, THAD | DESOMBER, RICHARD K & LORNA J | | | $199,802.00 | 106582 | 2005-00438 |
Payout Agreement
| No payout information available.. |