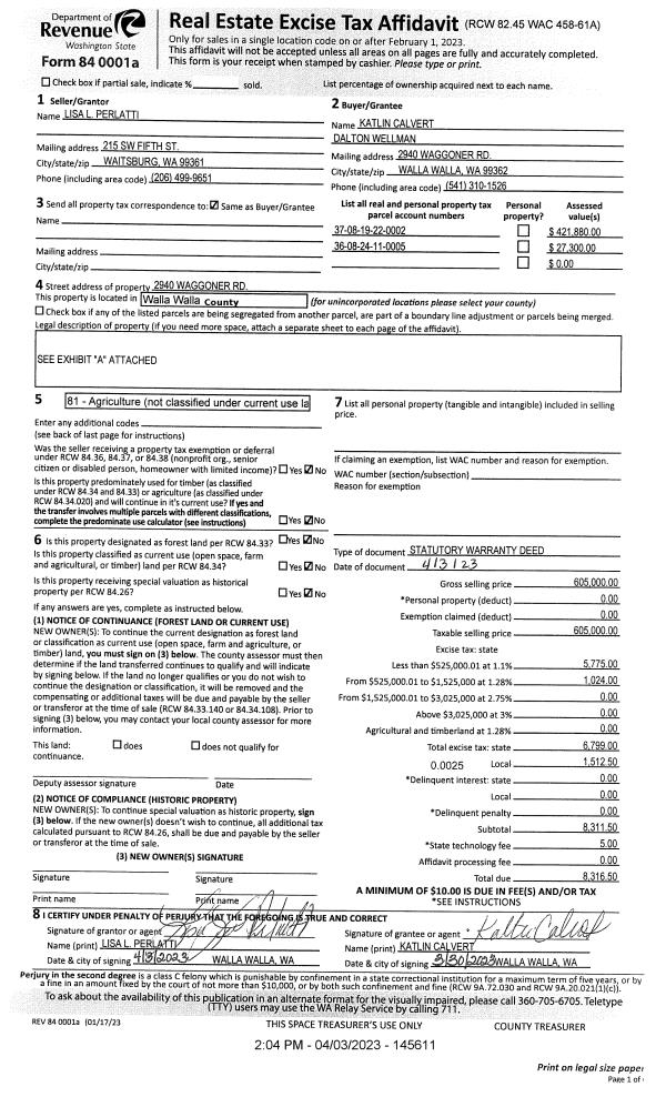
Property
Account |
| Property ID: | 1419 | Abbreviated Legal Description: | 19-08-37 PORTION NW 1/4 METES AND BOUNDS |
| Parcel Number: | 370819220002 | Agent Code: | |
| Type: | Real | | |
| Tax Area: | 100 - 140-8 | Land Use Code | 81 |
| Open Space: | N | DFL | N |
| Historic Property: | N | Remodel Property: | N |
| Multi-Family Redevelopment: | N | | |
| Township: | 8 | Section: | 19 |
| Range: | 37 |
Location |
| Address: | 2940 WAGGONER RD WA 99362 | Mapsco: | |
| Neighborhood: | A Res Ext Rural | Map ID: | |
| Neighborhood CD: | 413114 |
Owner |
| Name: | CALVERT KATLIN | Owner ID: | 73397 |
| Mailing Address: | DALTON WELLMAN 2940 WAGGONER RD WALLA WALLA, WA 99362 | % Ownership: | 100.0000000000% |
| | | Exemptions: | |
Taxes and Assessment Details
Property Tax Information as of
02/21/2026
Click on "Statement Details" to expand or collapse a tax statement.
* Please enter a valid date ** Please enter a valid date *
Statement Details |
| | TOTAL: | $0.00 | $0.00 | $0.00 | $0.00 | $0.00 | $0.00 |
|
| | $0.00 | $0.00 | $0.00 | $0.00 | $0.00 | $0.00 |
Values
| (+) Improvement Homesite Value: | + | $0 | |
| (+) Improvement Non-Homesite Value: | + | $385,550 | |
| (+) Land Homesite Value: | + | $0 | |
| (+) Land Non-Homesite Value: | + | $139,250 | |
| (+) Curr Use (HS): | + | $0 | $0 |
| (+) Curr Use (NHS): | + | $0 | $0 |
| | | -------------------------- | |
| (=) Market Value: | = | $524,800 | |
| (–) Productivity Loss: | – | $0 | |
| | | -------------------------- | |
| (=) Subtotal: | = | $524,800 | |
| (+) Senior Appraised Value: | + | $0 | |
| (+) Non-Senior Appraised Value: | + | $524,800 | |
| | | -------------------------- | |
| (=) Total Appraised Value: | = | $524,800 | |
| (–) Senior Exemption Loss: | – | $0 | |
| (–) Exemption Loss: | – | $0 | |
| | | -------------------------- | |
| (=) Taxable Value: | = | $524,800 | |
Taxing Jurisdiction
| Owner: | CALVERT KATLIN | | |
| % Ownership: | 100.0000000000% | | |
| Total Value: | $524,800 | | |
| Tax Area: | 100 - 140-8 |
| CERFD | CURRENT EXPENSE REFUND 010 | 0.0000000000 | $524,800 | $524,800 | $0.00 | | |
| CURREXP | CURRENT EXPENSE 010 | 1.0175366760 | $524,800 | $524,800 | $534.00 | | |
| HUMNSERV | HUMAN SERVICES 119 | 0.0250000000 | $524,800 | $524,800 | $13.12 | | |
| SLDREL | SOLDIERS RELIEF 121 | 0.0155990005 | $524,800 | $524,800 | $8.19 | | |
| EMERGSER | EMS 147 | 0.3792580840 | $524,800 | $524,800 | $199.03 | | |
| EMSRFD | EMS REFUND 147 | 0.0000000000 | $524,800 | $524,800 | $0.00 | | |
| FD8EXP | FD #8 EXPENSE 697 | 0.6647992540 | $524,800 | $524,800 | $348.89 | | |
| RLBRFD | RURAL LIBRARY REFUND 623 | 0.0000000000 | $524,800 | $524,800 | $0.00 | | |
| RURALLIB | RURAL LIBRARY 623 | 0.3710609029 | $524,800 | $524,800 | $194.73 | | |
| PORTRFD | PORT REFUND 640 | 0.0000000000 | $524,800 | $524,800 | $0.00 | | |
| PORTWWGEN | PORT OF WW 640 | 0.2460186015 | $524,800 | $524,800 | $129.11 | | |
| SD140BOND | SD #140 BOND 764 | 0.8342371393 | $524,800 | $524,800 | $437.81 | | |
| SD140GEN | SD #140 GENERAL 760 | 2.0646500647 | $524,800 | $524,800 | $1,083.53 | | |
| ST2 | STATE SCHOOL PART 2 600 | 0.8131451643 | $524,800 | $524,800 | $426.74 | | |
| STATESCHL | STATE SCHOOL 600 | 1.5158548041 | $524,800 | $524,800 | $795.52 | | |
| STREFUND | STATE REFUND LEVY 603 | 0.0000000000 | $524,800 | $524,800 | $0.00 | | |
| COROAD | COUNTY ROAD 115 | 1.6549953990 | $524,800 | $524,800 | $868.54 | | |
| CRPRD | COUNTY ROAD REFUND 115 | 0.0000000000 | $524,800 | $524,800 | $0.00 | | |
| | Total Tax Rate: | 9.6021550903 | | | | | |
| | | | | Taxes w/Current Exemptions: | $5,039.21 | | |
| | | | | Taxes w/o Exemptions: | $5,039.21 | | |
Improvement / Building
| Improvement #1: | RESIDENTIAL | State Code: | 81 | 1950.0 sqft | Value: | $385,550 |
| Exterior Wall: | PLYWOOD | Heating/Cooling: | HEAT PUMP | | Number of Bathrooms: | 1 | Number of Bedrooms: | 3 | | Plumbing: | 6 | Roof Covering: | COMP SHINGLE |
|
| | Type | Description | Class CD | Sub Class CD | Year Built | Area |
| | MA | Main Area | 1 | 30 | 1973 | 1950.0 |
| | SI1 | SITE IMPROVEMENT | 1 | 30 | 0 | 2.0 |
| | BASE | BASEMENT | 1 | 30 | 1973 | 1950.0 |
| | S2F | Single 2S Fireplace | 1 | 30 | 1973 | 1.0 |
| | BLW | WOOD BALCONIES | 1 | 30 | 1973 | 195.0 |
| | WOD | Wood Deck | 1 | 30 | 1973 | 326.0 |
| | UTST | Utility Storage Shed | 1 | 30 | 1973 | 1280.0 |
| | CPCD | CARPORT/DIRT FLOOR | 1 | 30 | 2015 | 480.0 |
Sketch
Property Image
Land
| 1 | RES 1 | Converted: Residential | 4.9200 | 0.00 | 0.00 | 0.00 | 1.00 | $139,250 | $0 |
Roll Value History
| 2026 | N/A | N/A | N/A | N/A | N/A |
| 2025 | $443,380 | $139,250 | $0 | $582,630 | $582,630 |
| 2024 | $385,550 | $139,250 | $0 | $524,800 | $524,800 |
| 2023 | $385,550 | $139,250 | $0 | $524,800 | $524,800 |
| 2022 | $331,180 | $90,700 | $0 | $421,880 | $421,880 |
| 2021 | $220,790 | $90,700 | $0 | $311,490 | $311,490 |
| 2020 | $220,790 | $90,700 | $0 | $311,490 | $311,490 |
| 2019 | $220,790 | $90,700 | $0 | $311,490 | $311,490 |
| 2018 | $210,280 | $90,700 | $0 | $300,980 | $300,980 |
| 2017 | $161,750 | $90,700 | $0 | $252,450 | $252,450 |
| 2016 | $158,880 | $90,700 | $0 | $249,580 | $249,580 |
| 2015 | $158,880 | $90,700 | $0 | $249,580 | $249,580 |
| 2014 | $132,400 | $90,700 | $0 | $223,100 | $223,100 |
| 2013 | $132,400 | $90,700 | $0 | $223,100 | $223,100 |
| 2012 | $121,800 | $90,700 | $0 | $0 | $0 |
| 2011 | $119,700 | $90,700 | $0 | $0 | $0 |
| 2010 | $119,700 | $90,700 | $0 | $0 | $0 |
| 2009 | $143,100 | $90,700 | $0 | $0 | $0 |
| 2008 | $143,100 | $90,700 | $0 | $0 | $0 |
| 2007 | $102,800 | $37,800 | $0 | $0 | $0 |
Deed and Sales History
| 1 | 04/03/2023 | SWD | STATUTORY WARRANTY DEED | PERLATTI LISA L | CALVERT KATLIN | | 2-PARCLELS | $605,000.00 | 145611 | 2023-01698 |
|   | |
| 2 | 09/01/2017 | SWD | STATUTORY WARRANTY DEED | PALMER GREG | PERLATTI LISA L | | | $0.00 | 134450 | 2018-02624 |
| 3 | 09/27/2017 | SWD | STATUTORY WARRANTY DEED | PALMER GREG | PERLATTI LISA L | | 2-PARCELS | $325,000.00 | 133291 | 2017-07624 |
|   | |
| 4 | 02/12/2003 | WARRANTY D | WARRANTY DEED | RAMER KEVIN ROBERT ESTATE OF | PALMER GREG | | | $103,000.00 | 101381 | 2003-01930 |
|   | |
| 5 | 04/06/1973 | WARRANTY D | WARRANTY DEED | | | | | | 0 | 4052-8311 |
Payout Agreement
| No payout information available.. |