Property
Account |
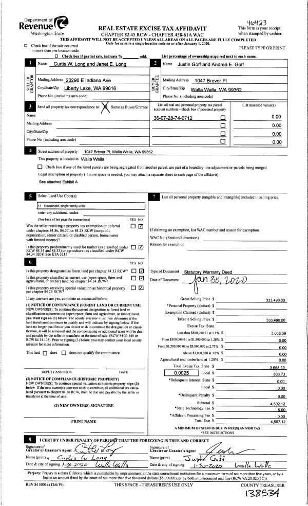
| Property ID: | 14140 | Abbreviated Legal Description: | STUBBLEFIELD SUB DVN LOT 12 BLK 7 |
| Parcel Number: | 360728740712 | Agent Code: | |
| Type: | Real | | |
| Tax Area: | 1 - OL-140-F | Land Use Code | 11 |
| Open Space: | N | DFL | N |
| Historic Property: | N | Remodel Property: | N |
| Multi-Family Redevelopment: | N | | |
| Township: | 7 | Section: | 28 |
| Range: | 36 |
Location |
| Address: | 1047 BREVOR PL WA 99362 | Mapsco: | |
| Neighborhood: | G Res | Map ID: | |
| Neighborhood CD: | 614011 |
Owner |
| Name: | GOFF JUSTIN & ANDREA E | Owner ID: | 66649 |
| Mailing Address: | 1047 BREVOR PL WALLA WALLA, WA 99362 | % Ownership: | 100.0000000000% |
| | | Exemptions: | |
Taxes and Assessment Details
Property Tax Information as of
02/21/2026
Click on "Statement Details" to expand or collapse a tax statement.
* Please enter a valid date ** Please enter a valid date *
Statement Details |
| | TOTAL: | $0.00 | $0.00 | $0.00 | $0.00 | $0.00 | $0.00 |
|
| | $0.00 | $0.00 | $0.00 | $0.00 | $0.00 | $0.00 |
Values
| (+) Improvement Homesite Value: | + | $0 | |
| (+) Improvement Non-Homesite Value: | + | $449,820 | |
| (+) Land Homesite Value: | + | $0 | |
| (+) Land Non-Homesite Value: | + | $120,000 | |
| (+) Curr Use (HS): | + | $0 | $0 |
| (+) Curr Use (NHS): | + | $0 | $0 |
| | | -------------------------- | |
| (=) Market Value: | = | $569,820 | |
| (–) Productivity Loss: | – | $0 | |
| | | -------------------------- | |
| (=) Subtotal: | = | $569,820 | |
| (+) Senior Appraised Value: | + | $0 | |
| (+) Non-Senior Appraised Value: | + | $569,820 | |
| | | -------------------------- | |
| (=) Total Appraised Value: | = | $569,820 | |
| (–) Senior Exemption Loss: | – | $0 | |
| (–) Exemption Loss: | – | $0 | |
| | | -------------------------- | |
| (=) Taxable Value: | = | $569,820 | |
Taxing Jurisdiction
| Owner: | GOFF JUSTIN & ANDREA E | | |
| % Ownership: | 100.0000000000% | | |
| Total Value: | $569,820 | | |
| Tax Area: | 1 - OL-140-F |
| CERFD | CURRENT EXPENSE REFUND 010 | 0.0000000000 | $569,820 | $569,820 | $0.00 | | |
| CURREXP | CURRENT EXPENSE 010 | 1.0175366760 | $569,820 | $569,820 | $579.81 | | |
| HUMNSERV | HUMAN SERVICES 119 | 0.0250000000 | $569,820 | $569,820 | $14.25 | | |
| SLDREL | SOLDIERS RELIEF 121 | 0.0155990005 | $569,820 | $569,820 | $8.89 | | |
| EMERGSER | EMS 147 | 0.3792580840 | $569,820 | $569,820 | $216.11 | | |
| EMSRFD | EMS REFUND 147 | 0.0000000000 | $569,820 | $569,820 | $0.00 | | |
| PORTRFD | PORT REFUND 640 | 0.0000000000 | $569,820 | $569,820 | $0.00 | | |
| PORTWWGEN | PORT OF WW 640 | 0.2460186015 | $569,820 | $569,820 | $140.19 | | |
| SD140BOND | SD #140 BOND 764 | 0.8342371393 | $569,820 | $569,820 | $475.37 | | |
| SD140GEN | SD #140 GENERAL 760 | 2.0646500647 | $569,820 | $569,820 | $1,176.48 | | |
| ST2 | STATE SCHOOL PART 2 600 | 0.8131451643 | $569,820 | $569,820 | $463.35 | | |
| STATESCHL | STATE SCHOOL 600 | 1.5158548041 | $569,820 | $569,820 | $863.76 | | |
| STREFUND | STATE REFUND LEVY 603 | 0.0000000000 | $569,820 | $569,820 | $0.00 | | |
| CWWBOND | C OF WW BOND 643 | 0.2760494372 | $569,820 | $569,820 | $157.30 | | |
| CWWGEN | CITY OF WW 631 | 1.6100204973 | $569,820 | $569,820 | $917.42 | | |
| CWWRFD | CITY OF WALLA WALLA REFUND 631 | 0.0000000000 | $569,820 | $569,820 | $0.00 | | |
| | Total Tax Rate: | 8.7973694689 | | | | | |
| | | | | Taxes w/Current Exemptions: | $5,012.93 | | |
| | | | | Taxes w/o Exemptions: | $5,012.93 | | |
Improvement / Building
| Improvement #1: | RESIDENTIAL | State Code: | 11 | 1588.0 sqft | Value: | $449,820 |
| Exterior Wall: | VINYL | Heating/Cooling: | WARM & COOLED AIR | | Number of Bathrooms: | 3 | Number of Bedrooms: | 4 | | Plumbing: | 12 | Roof Covering: | COMP SHINGLE |
|
| | Type | Description | Class CD | Sub Class CD | Year Built | Area |
| | MA | Main Area | 11 | 40 | 1974 | 1588.0 |
| | SI1 | SITE IMPROVEMENT | 11 | 40 | 1974 | 4.0 |
| | BASE | BASEMENT | 11 | 40 | 1974 | 1312.0 |
| | BPF | BASEMENT -PARTITIONED FINISH | 11 | 40 | 1974 | 1312.0 |
| | ATG | Attached Garage | 11 | 40 | 1974 | 572.0 |
| | RPO | OPEN PORCH W/ROOF | 11 | 40 | 1974 | 32.0 |
| | D2F | Double 2 Story Fireplace | 11 | 40 | 1974 | 1.0 |
| | WDR | WOOD DECK W/ROOF | 11 | 40 | 1974 | 144.0 |
| | TOOL | TOOL SHED | 11 | 40 | 1974 | 144.0 |
Sketch
Property Image
Land
| 1 | RES 1 | Converted: Residential | 0.3500 | 15246.00 | 0.00 | 0.00 | 1.00 | $120,000 | $0 |
Roll Value History
| 2026 | N/A | N/A | N/A | N/A | N/A |
| 2025 | $456,040 | $150,000 | $0 | $606,040 | $606,040 |
| 2024 | $449,820 | $120,000 | $0 | $569,820 | $569,820 |
| 2023 | $449,820 | $120,000 | $0 | $569,820 | $569,820 |
| 2022 | $449,820 | $85,000 | $0 | $534,820 | $534,820 |
| 2021 | $264,600 | $85,000 | $0 | $349,600 | $349,600 |
| 2020 | $264,600 | $85,000 | $0 | $349,600 | $349,600 |
| 2019 | $264,600 | $85,000 | $0 | $349,600 | $349,600 |
| 2018 | $258,170 | $50,000 | $0 | $308,170 | $308,170 |
| 2017 | $245,870 | $50,000 | $0 | $295,870 | $295,870 |
| 2016 | $223,520 | $50,000 | $0 | $273,520 | $273,520 |
| 2015 | $223,520 | $50,000 | $0 | $273,520 | $273,520 |
| 2014 | $203,200 | $50,000 | $0 | $253,200 | $253,200 |
| 2013 | $203,200 | $50,000 | $0 | $253,200 | $253,200 |
| 2012 | $186,000 | $50,000 | $0 | $0 | $0 |
| 2011 | $186,000 | $50,000 | $0 | $0 | $0 |
| 2010 | $186,000 | $50,000 | $0 | $0 | $0 |
| 2009 | $226,000 | $50,000 | $0 | $0 | $0 |
| 2008 | $226,000 | $50,000 | $0 | $0 | $0 |
| 2007 | $155,700 | $30,000 | $0 | $0 | $0 |
Deed and Sales History
| 1 | 01/31/2020 | SWD | STATUTORY WARRANTY DEED | LONG CURTIS W & JANET E | GOFF JUSTIN & ANDREA E | | | $333,490.00 | 138534 | 2020-00925 |
| 2 | 02/10/2009 | QCD | QUIT CLAIM DEED | LONG, CURTIS W & JANET E TRUST | LONG, CURTIS W & JANET E | | | | 116314 | 2009-01235 |
| 3 | 12/21/2004 | QCD | QUIT CLAIM DEED | LONG, CURTIS W & JANET E | LONG, CURTIS W & JANET E TRUST | | | | 106461 | 2004-14656 |
| 4 | 07/02/1984 | WARRANTY D | WARRANTY DEED | | | | | $95,000.00 | 0 | 1448-404667 |
Payout Agreement
| No payout information available.. |